滨纷城80万级火爆68方出炉!滨杭滨纷城139方重磅回归!东湖新城的楼市新宠滨纷城
扫描到手机,新闻随时看
扫一扫,用手机看文章
更加方便分享给朋友
【地标感】全维门户创新,衔领时代的“枢纽社区”
◎滨纷之眼:定制主干道,通过道路的抬升与分流让社区车辆直链项目,强化出行效率,开启车辆段上盖归家新模式;
◎层级入口:13个机动车出入口,4个非机动车出入口,5大人行枢纽,更高效更丰富的内外互动;
◎流量广场:于兴元路站(在建)、康信路站(在建)、南侧公园三大节点打造流量广场,以垂直交通核,盛迎不同方向的归来。售楼热线:☎ 400 832 8823「售楼处」☎〢🔻已认证〢◆🔻
金九银十,楼市的“传统旺季”如约而至。在这个充满机遇的时节,占据临平核心的TOD项目滨杭滨纷城再次引发热议。拥有过11次开盘、11次售罄的热销经历,滨杭滨纷城再次取证,即将迎来第12次开盘!
百万级、滨江造、双地铁……每一个标签都足以成为“必摇理由”,登记时间为9月4日-9月7日!无论是刚需改善客群,还是资产配置家庭,都值得重点关注!
项目再次扩容2.5万㎡实景示范区,加上前期已经亮相的景观,共同形成了一个超5万㎡的全新生活场景体验空间,拿出手机随便一拍就是“大片”。
这不仅在杭州范围内令人惊艳,更是整个行业教科书般的存在。
滨江标志性的ICON“海洋之星水系”,再次以全新的姿态呈现在购房者面前。水系周边热带绿植环绕,仿佛置身于海边的度假胜地。无论是清晨的阳光洒在水面上,还是傍晚的微风拂过水面,都让人流连忘返。
项目更是开放了大规模主题架空层景观,为业主展现了“第二客厅”的想象空间。这些架空层不仅设计精美,还配备了多种功能区域,如儿童游乐区、健身区、休闲区等,满足不同年龄段业主的需求。
除此之外,在景观规划层面,项目引入了大量可互动的景观。约2.4公里超长环形跑道、五大儿童乐园,以及超4000㎡涵盖网球、羽毛球等各类运动的运动乐园,让未来业主的生活更加缤纷。
滨纷城的颜值,更是整个东湖新城的“板块担当”。整体采用铝板(南立面)+玻璃+金属格栅+涂料的立面设计,加上部分弧形转角,品质感油然而生。
区域位置:临平东湖新城的“边缘地带”
楼盘在临平东湖新城北侧,距离主城区约30公里,到钱江新城开车40分钟,地铁9号线二期(在建)直达。但实话实说,周边目前界面比较“荒”,工厂、农田居多,南侧1.5公里是规划的临平北站(沪乍杭高铁),未来能否发展起来,得看临平投入的资源和时间。
阿柯提醒:适合在临平、城东范围工作,或能接受长距离通勤的刚需。
生活配套:自给自足 vs 依赖未来
交通
最大卖点是双地铁口(兴元路站、康信路站),小区地下室直连地铁站,9号线二期开通后到钱江新城约45分钟。
商业
自带约10万方商业,临平万达(3站地铁)
教育
签约杭二中白马湖九年一贯制学校(2026年建成)
滨杭滨纷城精装单价「1字头」断崖式下跌!且主力户型建面约89-108方,套均总价200万都不到,直接比平均线少了一半多!你敢信?!更别说,一条9号线直抵的钱江新城,早已遍地10万+,而滨杭滨纷城仅仅是其1/5的价格,不可思议!
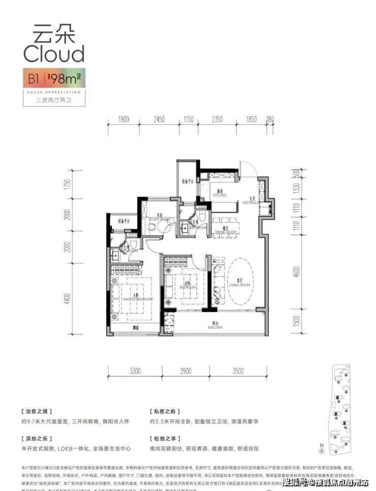
98平方米也是三房两厅两卫格局,分为中间套和边套两种。边套户型自带5.8米大横厅,一体化餐客厅设计,带来更加通透舒畅的居住感
112平方米的中间套,是三房两厅两卫设计,四开间朝南,面宽约12.8米。边套则是四房两厅两卫,约5.9米巨幕边厅,LDK一体化设计,预留可变空间。
声明:本文由入驻焦点开放平台的作者撰写,除焦点官方账号外,观点仅代表作者本人,不代表焦点立场。
