滨江兴耀松川境-萧山松川境楼盘详情(2026房价+户型)杭州房产天下(滨江兴耀松川境售楼处)首页网站丨2026萧山市北【松川境】滨江兴耀松川境售楼处→楼盘百科
扫描到手机,新闻随时看
扫一扫,用手机看文章
更加方便分享给朋友
💠滨江兴耀·松川境在奥体高密度开发、高度压榨土地价值的背景下,松川境以约1.8超低容积率规划,奢献奥体至高规模墅境住区,守护一份关于居住品质的纯粹理想。📍📍滨江兴耀·松川境售楼处电话:400 886 7015 🔻🔻置业顾问:13071887623「微信同步」
并且,以超越时代的眼光,重磅打造奥体罕见约3300㎡中央景观,铺陈约210米巨幅景观画轴,三进院落、层层递进,串联「松川11境」,构建由喧嚣至静谧的归家情绪动线。
ᨏᨓ ᨏ ᨏᨓ ᨏᨓᨏᨏ
📍📍滨江兴耀·松川境售楼处电话:400 886 7015 🔻🔻置业顾问:13071887623「微信同步」
💠首开性价比最高勿错过!
💠楼王中的楼王,类一梯一户
💠全城等待 年度Zui值得期待的𝟖𝟎𝟎万级‼️
💠滨江造|近天街,近享奥体配套,性价比之王
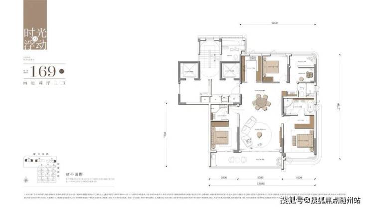
💠首开劲爆价均价45999元/m² 面积169方大四房/199方
💠松川境直线约 860 米,可达地铁 15 号线与 7 号线交汇的明星路站,2站奥体中心,3站市民中心。
💠一路之隔,直线约300米左右的距离就是龙湖天街,总体量约10万方,预计29年开业;如果这还不满足,周边3公里内,还有奥体印象城、SKP等。
项目简介
建筑面积|约79760㎡
占地面积|约26650㎡
规划户数|约232户
容 积 率|低至约1.8
绿 地 率|高达约30%
户型面积|约169-199㎡;约300-332㎡
奥体2英里峰脊线,纵向金鸡路奥体顶豪林立,横向建设四路滨江产业澎湃。交相辉映的黄金十字轴,是见证杭州蓬勃向前的重要板块。
松川境直线约 860 米,可达地铁 15 号线与 7 号线交汇的明星路站,2站奥体中心,3站市民中心。
商业方面:一路之隔,直线约300米左右的距离就是龙湖天街,总体量约10万方,预计29年开业;如果这还不满足,周边3公里内,还有奥体印象城、SKP等。
教育资源方面:有科大讯飞与浙大教育学院合作的信息港小学,以及北京外国语大学附属杭州信息港初中、杭二中等名校环绕。
产业方面:项目西面约1公里就是占地约 9.5 平方公里的信息港小镇,是杭州强劲的科创引擎之一,已吸引科大讯飞、微医集团、无忧传媒等 500 余家科技企业扎根,其中 7 家上市公司和 30 余家独角兽......
门头气势恢宏。做了约80米宽,6.5 米高。大门材质用的是熔铜,入口处还设置 25 米长叠级水景承托整个入口,沉香米黄、蓝翡翠潘多拉等多种名贵石材搭配,每平米光石材成本就是近万元。
立面和奥映鸣翠同等级别。整体采用超 70%大面积的全面屏玻璃、珠光青铜铝板与弧形造型,从视觉上就把项目直接拉到2000万级产品行列,这是越级提升!
🔘建面约𝟏𝟔𝟗-𝟏𝟗𝟗㎡墅境住宅大平层
奥体罕见的墅境住宅大平层,栋栋皆楼王,景观视野阔绰。弧形全景玻璃+四面铝板,金色线条勾勒无界视野,重构城市菁英的静谧奢享。
🔘建面约𝟐𝟗𝟖-𝟑𝟑𝟐 m²独立美学排屋墅区
微弧曲面玻璃和全面屏视野,彰显温润包容现代美学,山墙起伏如“松下听涛”,市芯难得的一方自在天地,俯仰皆世界。

是板块里唯一一个 5 万内楼盘带专属会所的,同时也是体量最大的。
恒温泳池、健身房、私宴厅、会客厅及书吧等功能空间,被很好的融合在一起,营造出酒店式的隐奢感觉。
穿梭于恒温泳池、巨幕书吧、下沉庭院等标识性场景,不仅极致拓展生活场景的丰盈度,更围合起一个独属的圈层引力场。
松川境的首开热罄,让世界奥体,再一次见证了产品主义的伟大胜利。
滨江豪宅豪宅基因、兴耀房产独立美学,加上两大TOP民营房企给出的诚意让利价格,也在不经意间攻破了高净值置业者的内心防线。
每一个数据,都是松川境热销的一个答案;每一次选择,都是市场对真实价值的一次认证。售罄不是终点,而是下一个价值的起点。
💠滨江兴耀·松川境
💠首开性价比最高勿错过!
💠楼王中的楼王,类一梯一户
💠全城等待 年度Zui值得期待的𝟖𝟎𝟎万级‼️
💠滨江造|近天街,近享奥体配套,性价比之王
💠首开劲爆价均价45999元/m² 面积169方大四房/199方
💠松川境直线约 860 米,可达地铁 15 号线与 7 号线交汇的明星路站,2站奥体中心,3站市民中心。
💠一路之隔,直线约300米左右的距离就是龙湖天街,总体量约10万方,预计29年开业;如果这还不满足,周边3公里内,还有奥体印象城、SKP等。
ᨏᨓ ᨏ ᨏᨓ ᨏᨓᨏᨏ
📍📍滨江兴耀·松川境售楼处电话:400 886 7015 🔻🔻置业顾问:13071887623「微信同步」
声明:本文由入驻焦点开放平台的作者撰写,除焦点官方账号外,观点仅代表作者本人,不代表焦点立场。
