英冠绿城春来晴翠园瞰钱塘江约1km 竺可桢学校等名校环伺 104-169㎡精装高层 七大收纳两轴九境景观 绿城服务定义滨江改善新范本
扫描到手机,新闻随时看
扫一扫,用手机看文章
更加方便分享给朋友
【英冠绿城•春来晴翠园】
主城国际滨·高端产学研集聚·稀缺地铁口大盘
☎️置业顾问⫸ 130 7367 8721「微信同步」
为保证参观体验,售楼处实施1V1销售专业讲解,请提前电话预约登记
 
【稀缺TOD大盘】绿城国际滨第八子,为改善而来
【江南科学城芯】紧靠国际零磁科学谷,商住产学研一体
【地铁便捷出行】近邻地铁4号线浦炬街站(在建)
【江岸品质生活】直线距离约1km钱塘江,江景、优教、商圈、医疗全配齐(不作学区承诺)
【全维生活范本】“两轴一街九境N组团”景观|24H全龄主题架空层|七大分镜式收纳
 
项目概况
【开发商】英冠控股/绿城中国
【总占地面积】约5.3万㎡
【总建筑面积】约23.1万㎡
【容积率】3.0
【绿化率】35%
【建筑类型】18幢住宅+3幢商办
【高层户型】建面约104-125-139-169㎡
【均价】36000左右
【交房时间】2027年6月份
【总户数】852户
【物业服务】绿城物业
【项目位置】滨江区浦沿路与零磁谷街交汇处
 
板块价值
本案位于滨江区江南科学城核心——零磁科学谷,零磁科学谷作为国家直属科研特区,承载"国之重器"战略使命。未来,这座钱江南岸崛起的“创新之城”,将形成“产研城”相融大格局,成就智慧城市新地标。
 
【高效出行】同步杭城脉动
直线距离地铁4号线浦炬街站(在建)约100米,且享有“两横两纵”快速路网和“五横四纵”主干路网,便捷通达全城,实现高效都市理想。
 
【商圈矩阵】执掌繁华主场
直线距离约4公里范围内汇集约30多万方商业综合体,金盛嘉悦广场、CC小镇、映创城、滨江开元广场、滨江宝龙城等,为精彩生活加码。
 
【人文书香】赋能全龄成长
直线距离约600米范围内有竺可桢学校和振浦小学(规划在建),周边硅谷小学、硅谷中学、滨兰实验学校、浦沿中学、杭州第二中学滨江校区等名校环伺伴成长。(新房不承诺学区,具体教育信息以政府教育部门政策为准)。
 
【医疗护航】充实生活底气
直线距离约400米为杭州市第四人民医院,计划2028 年投入使用。此外,直线距离约5公里内覆盖省儿保滨江院区,直线距离约7公里接驳浙大二院滨江院区,为健康生活保驾护航。
 
【生态宜居】邂逅自然诗意
步行约1公里即达钱塘江畔,冠山公园,白马湖公园等绿意环抱,生态宜居画卷徐徐展开,让自然浸润生活日常。
 
产品价值
面向年轻群体,以“SUNSHINE”价值体系,打造“2025绿城国际滨全维生活范本”,构筑7x24H生活解决方案,让每一种需求都能找到答案。
 
🍀Synergy品牌价值:
绿城30载迭新之作,迭代滨江改善人居;
🌆Ubiquity城市价值:
于国际滨时代主场,乘“拥江发展”东风;
💠Nuance建筑价值:
超纤细金丝画框立面,塑造流动天际线;
⛲️Symbiosis景观价值:
“两轴一街九境N组团”景观,沉浸式公园住区;
🛋️Holography户型价值:
精装3-4房,满足家庭全生命周期需求;
🗃️Infrastructure收纳价值:
七大分镜式收纳场景,匠呈秩序之美;
✨Navigate生活价值:
自带商业解锁一站式缤纷;全天候全龄架空层,集萃万般逸趣 ;
💞Exchange圈层价值:
绿城服务+四季IP+志趣社群,为社交赋能。
户型鉴赏
为城市菁英定制更从容的居家享受,绿城匠心精琢,以人性布局、极致收纳、适老适幼化设计,满载满配精装细节等,谨献建筑面积约104-169㎡改善高层,满足当代人居需求。
建面约104方户型
装修效果展示空间效果图
 
建面约109方户型图设计过程稿
 
建面约124方户型
装修效果展示空间效果图
 
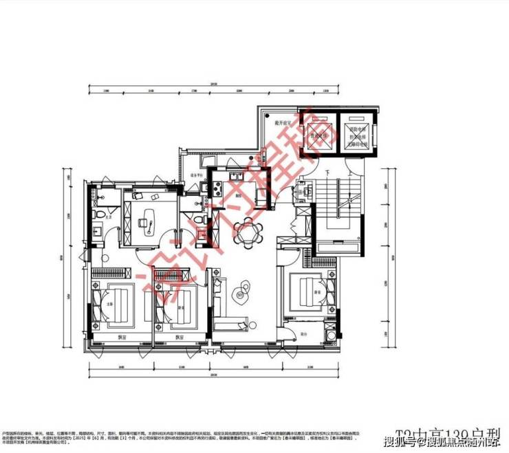
建面约139方户型
装修效果展示空间效果图
 
建面约169方户型
装修效果展示空间效果图
 
 
▓ ㊣ VIP-Line ※ 400 963 3309 ♂ ☎ 13073678721♀﹝已认证﹞
●温馨提示:〢欢迎来电咨询〢预约可节省您的时间〢恭迎品鉴〢
●免责声明:本资料旨在提供相关信息,不代表出卖人对此作出承诺
●免责声明:如有图片涉及侵权,请第一时间联系我们删除,谢谢!
声明:本文由入驻焦点开放平台的作者撰写,除焦点官方账号外,观点仅代表作者本人,不代表焦点立场。
 
  
  
 
 
  
  
  
   
   
   
   
  