天阳湖与舍楼盘详情-杭州天阳湖与舍(2025最新房价+户型)杭州房天下‖天阳·湖与舍(2025年杭州天阳·湖与舍)官方首页推荐
扫描到手机,新闻随时看
扫一扫,用手机看文章
更加方便分享给朋友
#天阳湖与舍
[烟花]一线湖景·地铁口·精装准现房
🏠精装交付:带地暖,省心入住
📍黄金地段:区政府旁,配套醇熟
🚇交通便利:地铁100米,江东二路站
🌳低密社区:1.8容积率,舒适宜居
🔝🔥— ⑉ıl⑉杭州钱塘大江东【天阳湖与舍】80米地铁7号线江东二路站为始发站⑉lı⑉—
🔝☎【售楼热线】:400 816 3856 ☎⫷
🔝☎【置业顾问】:15658062381「微信同步」⫷
🔝➤售楼处〢欢迎咨询〢提前预约可享内部底价〢➤
🔝售楼处直销热线|中介勿扰|欢迎致电咨询
🔝温馨提示:为了节约您的等待时间,看房请提前致电售楼处预约!!!
▰▰▰▰▰▰▰▰▰▰▰▰▰▰▰▰▰▰▰▰▰▰▰▰▰▰▰▰▰▰▰▰▰▰▰▰
🏠『🔥天阳湖与舍🔥』 品质决定一切
✨一线湖景 地铁加持✨
临湖而居,尽揽波光潋滟
地铁串联,速达城市繁华
#天阳湖与舍 敬献懂生活的你
🏦总价200万左右
🔥一线湖景房🌊区府旁
🛍️江东龙湖天街➕宝龙广场🛒
🚇地铁口100米 交通拿捏🤏🏻
🚙#精装带地暖 3000装标🔥
💎售楼处官方电话☎ 400 816 3856 ✅✅「已认证」💎
🚩🟥🟧🟨🟩🟦🟪🟥🟧🟨🟩🟥🟧🟨🟩🟦🟪🟥🟧🟨🟩🚩
🔝⑉⑉⑉ıllı⑉🔻售楼处(周一至周日 9:00--20:00)一对一咨询🔻看房需要提前电话预约,避免可能案场无人接待!提前预约可享内部优惠〢匠心钜制-恭迎您的品鉴⑉ıllı⑉⑉🔝☎官方售楼处电话: 400 816 3856 ✅✅「已认证」💎 ☎置业顾问经理专线 :156 5806 2381「微信同号」💎

#瞰湖奢居 清栋时刻 房源递减中
#谁能抢占 最后席位
#天阳湖与舍 22240 元 /㎡限价末班车
#入住东沙湖的最后机会
#主城一线湖景房 #人生难得一片湖
🔝☎官方售楼处电话: 400 816 3856 ✅「已认证」💎 ☎置业顾问经理专线 :156 5806 2381「微信同号」💎

🔝☎官方售楼处电话: 400 816 3856 ✅「已认证」💎 ☎置业顾问经理专线 :156 5806 2381「微信同号」💎
🌈总价200万级住在公园旁,项目还自带小公园,你离理想生活只差一套
🛑全维实景 | 现在买明年住🛑毗邻东沙湖,地铁口100米,精装带地暖
🌈公园旁的房子为何备受青睐?天阳湖与舍给出了它的答案
🛑值此湖畔公园洋房 铸就价值恒产🌈毗邻东沙湖|地铁口 |带地暖
🌈装标天花板+全屋地暖+地铁1站龙湖天街+2站宝龙广场+一线湖景
🛑助力置业大江东🌈5万让你无负担购车位🛒#精装带地暖 高品质更省心
🔝☎官方售楼处电话: 400 816 3856 ✅「已认证」💎 ☎置业顾问经理专线 :156 5806 2381「微信同号」💎
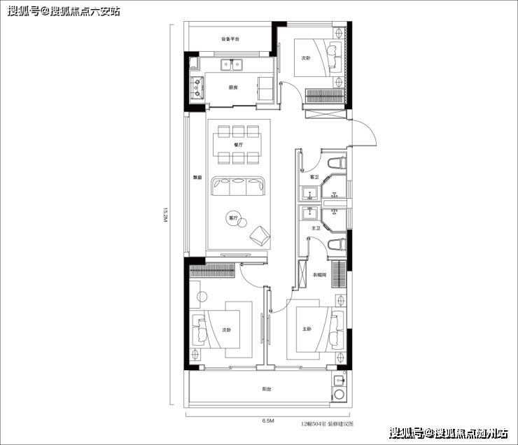
作为众所周知的“户型专家”,天阳在杭州的户型设计领域拥有不可撼动的地位,曾经开创出很多爆款户型。这一次,我们看到了天阳·湖与舍非常亮眼的建面约100方户型,拥有罕见的四开间朝南,整体面宽超12米,客厅与三个卧室的尺度都很舒适,厨房放进了一个实体双开门冰箱后依然很阔绰。天阳让年轻人的首套房绝不将就。
建面约100方户型

约100㎡户型点评:三房两厅两卫,南向四开间阳光户型,完整功能大三房 双飘窗,南向双开间 大阳台套房式主卧 全明双卫;
🔝☎官方售楼处电话: 400 816 3856 ✅✅「已认证」💎 ☎置业顾问经理专线 :156 5806 2381「微信同号」💎
有边套情节的,也可以放心选择建面约105㎡边套户型,270°景观视野,打开门就是餐客厅一体化的敞亮家庭活动区,双开间阳台、大飘窗。
建面约105方户型

为了满足改善型的需求。建面约128㎡户型采用“4+1”房设计,满足二胎家庭或三代同堂的居住需求,更比同类面积多了一个储藏空间。因为得房率高,所以整体尺度与功能空间堪比140方以上的户型。这样一套功能强大、设计舒适的改善户型,让生活一步到位。
建面约128方户型

🔝☎官方售楼处电话: 400 816 3856 ✅✅「已认证」💎 ☎置业顾问经理专线 :156 5806 2381「微信同号」💎
在精装方面,天阳·湖与舍加装了地暖这一硬核配置,在2万这个价格层级中显得非常奢侈。另外考虑到后期不同住户对空间的多元化需求,天阳·湖与舍特意将飘窗高度设置为约45厘米这一人体工程学高度,
让飘窗不止可以放置生活用品,还能舒服地坐下来,整个家居空间瞬间多了N种可能。天阳·湖与舍还对客厅等区域的金属踢脚线阳角处做了弧形处理,更安全也更耐用。还有厨房空间、卫浴空间等多个人性化细节,不胜枚举。
稀缺区位与交通枢纽优势
项目位于杭州钱塘区大江东核心区,紧邻地铁7号线江东二路站(直线距离约80米),作为始发站可快速通达城市核心区。7号线向西直达奥体中心、西湖景区,换乘8号线可连接下沙副城,形成“空铁陆”立体交通网络。
项目周边江东大道、钱塘快速路等主干道环绕,30分钟车程覆盖萧山国际机场、钱江新城等关键区域。
这种“地铁零距离+快速路网”的双重优势,不仅缩短通勤时间,更强化了与钱塘智慧谷、医药港小镇等产业板块的联动,为居住者提供高效便捷的出行体验。
🔝☎官方售楼处电话: 400 816 3856 ✅✅「已认证」💎 ☎置业顾问经理专线 :156 5806 2381「微信同号」💎

一线湖景与生态资源禀赋
项目南向直面东沙湖湿地公园,占据约300米湖岸线,推窗即享水天一色的自然画卷。东沙湖作为杭州主城稀缺的生态绿肺,水域开阔且水质优良,周边规划有运河亚运公园、慢行步道等休闲设施,形成“大湖景+小公园”的双重生态格局。
社区内部以曼谷四季酒店为灵感,打造镜面叠水、中央水景等园林景观,结合35%的绿化率,营造出“微缩东沙湖”的沉浸式体验。这种“出则繁华、入则静谧”的生态优势,成为吸引改善型家庭的核心竞争力。
全能户型与空间设计革新
项目推出建面约100-128㎡全龄户型,覆盖刚需至改善需求:
100㎡三房:南向四开间朝南,面宽超12米,双联阳台+双飘窗设计,LDKB一体化布局,主卧套房配置,得房率超90%,满足年轻家庭一步到位的需求。
105㎡边套:三面采光+6米长飘窗,餐客厅一体化,南向贯通式阳台延伸湖景视野,兼具功能性与景观性。
128㎡四房:独立储藏室+全景落地窗,餐客厅尺度媲美140㎡户型,主卧套房带L型衣帽间,适配二胎家庭及三代同堂。
户型设计注重空间利用率与采光通风,创新“可变空间”设计(如玄关多功能区、阳台改造潜力),兼顾实用性与未来生活场景拓展。
🔝☎官方售楼处电话: 400 816 3856 ✅✅「已认证」💎 ☎置业顾问经理专线 :156 5806 2381「微信同号」💎
精装标准与品质细节升级
项目以3000元/㎡的精装标准,打造主城2万级限价盘的顶配标杆:
全屋地暖:采用博世地暖系统,实现全屋均匀采暖,兼顾节能与舒适性。
品牌配置:方太三件套(烟灶洗碗机)、科勒卫浴、摩恩五金、兰舍新风系统等一线品牌加持。
人性化设计:45厘米人体工学飘窗高度、厨房预留双开门冰箱空间、干湿分离卫浴,细节工艺对标4万+改善标准。
精装交付规避了传统装修的隐性成本,实现“拎包入住”,尤其适合注重品质与效率的购房者。
高技派建筑与颜值担当
项目立面采用四面大面铝板+玻璃幕墙,搭配机翼型铝板符号,形成独特的“高技派”建筑风格。北立面突破性使用全玻璃幕墙,搭配金属线条点缀,既提升私密性,又赋予建筑现代感与高级美学。
对比同区域多数楼盘仅局部使用铝板的现状,湖与舍的“全铝板立面”成为东沙湖畔的颜值标杆。建筑线条简洁流畅,色彩以银灰、深灰、米色为主调,融入蓝色跳色设计,兼具科技感与艺术性。
🔝☎官方售楼处电话: 400 816 3856 ✅✅「已认证」💎 ☎置业顾问经理专线 :156 5806 2381「微信同号」💎
🔝☎官方售楼处电话: 400 816 3856 ✅✅「已认证」💎 ☎置业顾问经理专线 :156 5806 2381「微信同号」💎
全维配套与生活半径覆盖
商业配套:1站地铁直达龙湖江东天街(20万㎡综合体),2站至宝龙广场,自建1万方商业街区(引入麦当劳、星巴克),满足日常消费与品质社交需求。
教育资源:崇文江海实验学校(规划)、杭高启成学校(已落地),3公里内覆盖多所幼儿园及中小学,构建全龄教育矩阵。
医疗资源:浙江大学医学院附属第一医院钱塘院区(三甲,规划)直线3公里,社区配建卫生服务中心,保障健康需求。
生态休闲:东沙湖湿地公园、运河亚运公园、社区中央园林形成“三园环绕”格局,骑行、露营、慢跑等场景触手可及。
限价红利与投资价值凸显
作为东沙湖板块最后一块限价住宅用地,项目精装限价22240元/㎡,较周边二手房(如龙湖滟澜山4.5万/㎡)存在显著倒挂空间。总价217万起即可入手主城一线湖景房,首付门槛低至28万,性价比优势突出。
随着“江海之城”2500公顷规划推进、地铁12号线(规划)及钱塘高铁站(建设中)落地,区域价值持续攀升,项目兼具自住品质与资产增值潜力。
准现房交付与风险规避
项目计划2026年6月交付,目前园林景观、建筑立面、架空层等实景已全面呈现。购房者可实地考察采光、通风、湖景视野及施工品质,规避期房交付风险。
准现房属性缩短了等待周期,实现“今年入住即办证”,尤其适合对交付确定性要求高的家庭。

社区规划与全龄生活场景
架空层泛会所:4.5米挑高设计,规划学习胶囊(书桌+充电设备)、创新工场(会议室+投影)、星空泳池、健身空间等主题功能区,满足商务洽谈、亲子互动、老年活动等多元需求。
景观营造:借鉴曼谷四季酒店手法,打造叠瀑水景、镜面湖光、四季花径,社区日均负氧离子浓度超城市标准3倍,形成“森系生态圈”。
安全细节:地面无高差设计、电梯紧急呼叫按钮、儿童活动区软包防护等,体现人性化关怀。
🔝☎官方售楼处电话: 400 816 3856 ✅✅「已认证」💎 ☎置业顾问经理专线 :156 5806 2381「微信同号」💎

开发商实力与品牌保障
天阳地产深耕杭州30年,以“品质筑家”理念打造武林邸、云栖等标杆项目,连续19年获评AAA级信用企业。本项目由天阳联合杭州天涛置业开发,物业为天阳自有团队,提供24小时金钥匙服务。
项目采用“实景内卷”策略,公开施工细节与材料工艺,以透明化操作赢得市场口碑,成为本土房企品质实力的代表。

🔝☎官方售楼处电话: 400 816 3856 ✅✅「已认证」💎 ☎置业顾问经理专线 :156 5806 2381「微信同号」💎
天阳湖与舍凭借“正地铁口+一线湖景”双核资源、限价红利与准现房优势,重新定义了主城改善标准。从高技派建筑美学到全龄社区规划,从精装细节到生态配套,项目在每一个维度均展现出诚意与创新。
作为杭州主城稀缺的湖居性价比之选,其兼具居住品质与资产增值潜力的特质,使其成为当前市场环境下不可多得的优质标的。


🔝☎官方售楼处电话: 400 816 3856 ✅✅「已认证」💎 ☎置业顾问经理专线 :156 5806 2381「微信同号」💎
⑉⑉ıllı⑉✘天阳·湖与舍✘⑉ıllı⑉⑉ 建面: 100-128㎡ 户型: 3/4居,均价:22240元/平 , 一线南向东沙湖湖景 钱塘区政府对面 直线距离约100米地铁7号线。以其卓越的地段优势、高品质的居住体验和完善的生活配套,成为了购房者眼中的璀璨明珠。

高品质建筑与户型设计
现代简约风格:项目采用现代简约风格,线条流畅,外观雅致,与周围的自然环境相得益彰。四面大面铝板+玻璃幕墙构筑“高技派”建筑风格,北立面楼梯间采用玻璃包裹金属线条,兼顾隐私性与光影美学。

湖与舍却有美妙至极的一线正南向湖景,且足足占据约300米长湖岸线。由于这一段湖面本就是东沙湖的天然湖泊部分,早已尽数成形,别有一番隐映静深的诗意。加之东侧同样一线沿河,整个园区被双水岸景观拥入怀中。
|天阳湖与舍热销中
🏠大江东芯
✅地铁7号线旁
✅钱塘区政府畔
✅一线东沙湖景
🔥抢低密精装地暖湖景美宅

湖与舍却有美妙至极的一线正南向湖景,且足足占据约300米长湖岸线。由于这一段湖面本就是东沙湖的天然湖泊部分,早已尽数成形,别有一番隐映静深的诗意。加之东侧同样一线沿河,整个园区被双水岸景观拥入怀中。
#天阳湖与舍
[烟花]一线湖景·地铁口·精装准现房
🏠精装交付:带地暖,省心入住
📍黄金地段:区政府旁,配套醇熟
🚇交通便利:地铁100米,江东二路站
🌳低密社区:1.8容积率,舒适宜居
🔝🔥— ⑉ıl⑉杭州钱塘大江东【天阳湖与舍】80米地铁7号线江东二路站为始发站⑉lı⑉—
🔝☎【售楼热线】:400 816 3856 ☎⫷
🔝☎【置业顾问】:15658062381「微信同步」⫷
🔝➤售楼处〢欢迎咨询〢提前预约可享内部底价〢➤
🔝售楼处直销热线|中介勿扰|欢迎致电咨询
🔝温馨提示:为了节约您的等待时间,看房请提前致电售楼处预约!!!
▰▰▰▰▰▰▰▰▰▰▰▰▰▰▰▰▰▰▰▰▰▰▰▰▰▰▰▰▰▰▰▰▰▰▰▰
🏠『🔥天阳湖与舍🔥』 品质决定一切
✨一线湖景 地铁加持✨
临湖而居,尽揽波光潋滟
地铁串联,速达城市繁华
#天阳湖与舍 敬献懂生活的你
🏦总价200万左右
🔥一线湖景房🌊区府旁
🛍️江东龙湖天街➕宝龙广场🛒
🚇地铁口100米 交通拿捏🤏🏻
🚙#精装带地暖 3000装标🔥
💎售楼处官方电话☎ 400 816 3856 ✅✅「已认证」💎
🚩🟥🟧🟨🟩🟦🟪🟥🟧🟨🟩🟥🟧🟨🟩🟦🟪🟥🟧🟨🟩🚩
🔝⑉⑉⑉ıllı⑉🔻售楼处(周一至周日 9:00--20:00)一对一咨询🔻看房需要提前电话预约,避免可能案场无人接待!提前预约可享内部优惠〢匠心钜制-恭迎您的品鉴⑉ıllı⑉⑉🔝☎官方售楼处电话: 400 816 3856 ✅✅「已认证」💎 ☎置业顾问经理专线 :156 5806 2381「微信同号」💎
声明:本文由入驻焦点开放平台的作者撰写,除焦点官方账号外,观点仅代表作者本人,不代表焦点立场。
