滨杭滨纷城百科·临平东湖新城热线住宅滨杭滨纷城销售中心(最新评测)滨杭滨纷城官芳网站@杭州滨杭滨纷城
扫描到手机,新闻随时看
扫一扫,用手机看文章
更加方便分享给朋友
不止,在楼盘的南面甚至还放下了一个约10万方的商业综合体。
对于一个超级大盘而言,商业是激活整个社区的活力引擎,但像滨杭滨纷城这样,直接在楼盘里面造一个大体量商业综合体的TOD,整个杭州都屈指可数。售楼热线:☎ 400 832 8823「售楼处」☎〢🔻已认证〢◆🔻
滨江这次就是要给年轻人造一座城,让年轻人在这座城里,可以一次性实现所有的生活憧憬。
这几乎是整个杭州主流城区的住宅门槛价,也是滨杭滨纷城向全杭州的年轻人,抛出的橄榄枝当然,想要实现跟年轻人的双向奔赴,只有这些还不够,所以滨江还把对于缤纷生活的讲究,嵌入了住宅园区的每一寸空间——主入口做了跟奢华酒店一般的张扬门头,石材景墙和落客区,搭配入口的水景庭院里起伏的山景、潺潺跌水和婀娜松树,它们一起交织出了回家的仪式感,哪怕跟三四万的楼盘相比,都不落下风。售楼热线:☎ 400 832 8823「售楼处」☎〢🔻已认证〢◆🔻
项目横跨地铁9号线兴元路站(在建)、康信路站(在建)两大站点,以轨道打破壁垒,一条地铁直达钱江新城、城东新城、滨江、西湖等高能区域,更高效的日常通勤外,还能享受到一脉市心的生活配套。
还有更绝的是规划了9米街区漫游层,落址约2000方邻里中心,串联盖上住宅与盖下空间,对于业主来说,下班路上顺道进商超采购食材,或shopping放松一天的疲惫,生活幸福度飙涨。
在美景之外,还要打造篮球场、羽毛球场、轮滑广场、街式滑板场、儿童综合运动场等15个运动场地,在自然共生中,引导年轻业主社交、生活和庆典,就连主打色都是充满年轻活力的柠檬黄。
年轻人的无忧未来:双幼儿园、杭二中白马湖东湖学校加持,为下一代成长做好铺垫
项目自带品质双幼儿园,一路之隔便是已经签约的杭二中白马湖教育集团东湖学校(九年一贯制),全程陪伴年轻家庭成长无忧。(期房不承诺学区,具体以教育局公示文件为准)
且主力户型建面约89-108方,套均总价200万都不到,直接比平均线少了一半多!你敢信?!更别说,一条9号线直抵的钱江新城,早已遍地10万+,而滨杭滨纷城仅仅是其1/5的价格,不可思议!
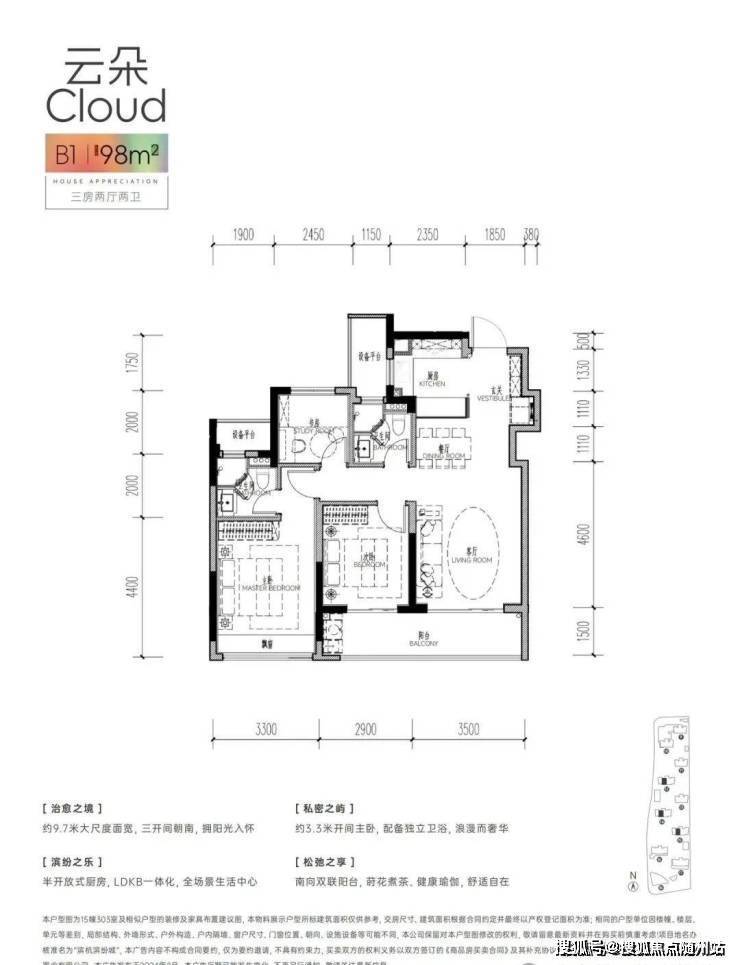
98平方米也是三房两厅两卫格局,分为中间套和边套两种。边套户型自带5.8米大横厅,一体化餐客厅设计,带来更加通透舒畅的居住感。
112平方米的中间套,是三房两厅两卫设计,四开间朝南,面宽约12.8米。边套则是四房两厅两卫,约5.9米巨幕边厅,LDK一体化设计,预留可变空间。
声明:本文由入驻焦点开放平台的作者撰写,除焦点官方账号外,观点仅代表作者本人,不代表焦点立场。
