春棠雅韵府售楼处电话_2025临平春棠雅韵府地址价格/户型_容积率_春棠雅韵府售楼处_售楼处营销中心
扫描到手机,新闻随时看
扫一扫,用手机看文章
更加方便分享给朋友
英冠春棠雅韵府
☎️VIPline:400 808 7328【已认证】☎️
☎️置业热线:130 6784 6867(同微信)☎️
☎️售楼处〢欢迎来电咨询〢提前预约可享内部优惠〢☎️
🚩🟥🟧🟨🟩🟦🟪🟥🟧🟨🟩🟥🟧🟨🟩🟦🟪🟥🟧🟨🟩🚩
📍英冠深耕杭州24载,品质、交付双保障 城东新中心,一脉钱江新城2.0发展势能📍
📍地铁9号线翁梅站,5站钱二 遥望X27、宜家、上城天街(在建)、理想银泰城等📍
🌈 约1.2容积率,主城稀缺低密住区洋房与排屋同享高端圈层🌈 幼小初高全龄教育 🌈
🌈 千年宋韵的当代表达,风雅造境约2000㎡下沉式奢雅会所,享受当代宋韵生活🌈
于春棠雅韵府,宋韵不是历史的复刻,而是一场跨越时空的美学对话。以“宋韵今形”为笔,将宋代建筑的风骨神韵融入现代建筑语言。歇山顶的恢弘气度,三重檐的层叠韵律,与“金镶玉”立面的温润光华交相辉映,于现代语境中重新勾勒出三层真排屋的隽永风骨。

春棠雅韵府以「三层真排屋」为核芯基因,于城东新中心贵脉之上,以约1.2容积率匠造藏品级著作。约950万起的准入门槛,更在重塑城市低密价值标杆。
☎️VIPline:400 808 7328【已认证】☎️☎️置业热线:130 6784 6867(同微信)☎️
春棠雅韵府以「三层真排屋」形制,打破扁平化居住想象。一层约4米朗阔层高,无论是家族聚会,还是商务洽谈,皆可从容承载。二、三层约3.4米舒适层高,以私密“静界”,独享生活每一刻。
☎️VIPline:400 808 7328【已认证】☎️☎️置业热线:130 6784 6867(同微信)☎️
▲实景图
约100-200㎡南北双花园,则是空间哲学的诗意延伸。前庭可植树、置景,构筑入院的第一重礼序;后院铺设草坪,打造亲子嬉戏、朋友烧烤的欢乐场域。当建筑以“生长于花园”的姿态舒展,排屋的奢居本质,便在空间与自然的对话中娓娓道来。
☎️VIPline:400 808 7328【已认证】☎️☎️置业热线:130 6784 6867(同微信)☎️
入户之处,鎏金门楣闪耀着尊崇礼序;屋脊之下,“金线葫芦”悬坠福禄,“春棠如意”静诉吉祥。每一处精雕细琢,皆是刻入建筑肌理的雅致暗号,传承千年文化的深邃底蕴。
☎️VIPline:400 808 7328【已认证】☎️☎️置业热线:130 6784 6867(同微信)☎️
真正的排屋气度,在于与天地的无界交融。春棠雅韵府打造三层真排屋奢境,一层约4米层高,尽显轩敞堂皇;二、三层约3.4米尺度,延续朗阔气韵。更令人心驰神往的,是那约100-200㎡的南北双花园,绿意葱茏,自然围合。
☎️VIPline:400 808 7328【已认证】☎️☎️置业热线:130 6784 6867(同微信)☎️
春棠雅韵府深谙宋式造园精髓,取意千古名画,将层峦叠嶂、曲水流觞、飞瀑激湍、临水亭榭、苍翠修竹等意象精妙提炼,并依托杭州得天独厚的自然与人文底蕴,运用现代设计语汇,擘绘出一幅立体的、可游可赏的“宋韵山水图”,将山水真意糅融于步履之间。
☎️VIPline:400 808 7328【已认证】☎️☎️置业热线:130 6784 6867(同微信)☎️
约4000㎡奢雅会所,则是生活的璀璨注脚。其中,即将开放的室内标准恒温泳池堪称点睛之笔。其背后高昂的建造与维护成本,彰显着项目对品质的极致追求。粼粼波光流转间,一池碧水仿若镶嵌在会所中的蓝宝石,23℃恒温系统赋予水体永恒的温柔触感,享受四季畅游的自在。
☎️VIPline:400 808 7328【已认证】☎️☎️置业热线:130 6784 6867(同微信)☎️
此外,健身房挥洒汗水、棋牌室运筹帷幄、儿童乐园欢声笑语、闺蜜厅私密畅谈、书吧浸润书香、业主会客厅、私宴厅盛飨宾朋……多元空间鼎配,全方位满足居者身心滋养与社交之需,于日常点滴中,尽显高阶生活质感。
☎️VIPline:400 808 7328【已认证】☎️☎️置业热线:130 6784 6867(同微信)☎️
园林营造上,取意宋式山水画卷,融合杭州人文底蕴,以现代手法擘绘立体“宋韵山水图”。漫步其间,曲径通幽处可见叠石理水、花木扶疏,一步一景皆入画,让归家之路成为穿越千年的风雅之旅。
☎️VIPline:400 808 7328【已认证】☎️☎️置业热线:130 6784 6867(同微信)☎️
春棠雅韵府落子城东新中心,深度融入杭州“东进”战略,与钱江新城2.0形成黄金发展轴线。项目直线距离约800米地铁9号线翁梅站,5站直达钱二,9站贯通江河汇;遥望X27、上城天街(在建)等商业环伺,构筑璀璨生活圈。
☎️VIPline:400 808 7328【已认证】☎️☎️置业热线:130 6784 6867(同微信)☎️
春棠雅韵府构建了超过4000㎡的超级会所,茶室、会客厅、童玩区、私宴厅和泳池、健身房、书吧,把这样奢侈的空间让渡给公区,让他的品质在整个杭州都完全领先。在垂直向下的空间里,默默为业主酝酿着向上的勇气。
☎️VIPline:400 808 7328【已认证】☎️☎️置业热线:130 6784 6867(同微信)☎️

这个容积率仅1.2的低密住区,将宋代文人雅士的山水情怀与现代居住需求巧妙融合,在城东新中心开辟出一方"大隐隐于市"的栖居秘境。
☎️VIPline:400 808 7328【已认证】☎️☎️置业热线:130 6784 6867(同微信)☎️
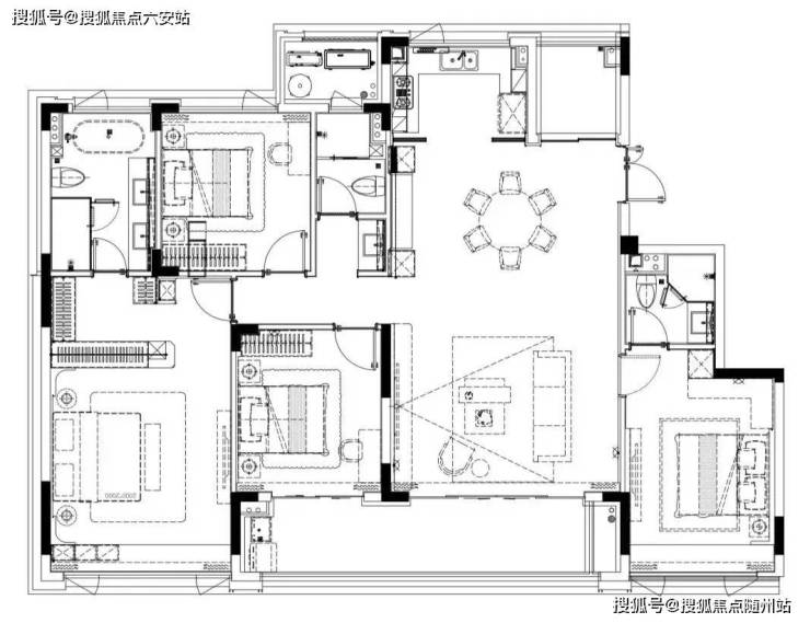
产品设计上,洋房与排屋的户型革新堪称教科书级。建面约166㎡洋房以95%得房率,实现四房三卫双套房配置,南向双联阳台达9.2米——这相当于用400万级总价,在首改预算里装进了传统大平层的空间体验。
☎️VIPline:400 808 7328【已认证】☎️☎️置业热线:130 6784 6867(同微信)☎️

这背后是英冠控股集团25年深耕实力的投票——从晴澜轩到春棠雅韵府,这家本土房企始终以“精质主义”为信仰,在宋式美学解构、土地价值研判、精工细节打磨上,堪称杭州高端改善市场的“隐形冠军”。
作为英冠1号低密作品,春棠雅韵府以宋代名画为灵感,打造了约4000方的宋韵庭院会所,亭台楼榭、流水飞瀑与黑松、羽毛枫等景观相映成趣,仿佛将山水画卷搬进现实。
☎️VIPline:400 808 7328【已认证】☎️☎️置业热线:130 6784 6867(同微信)☎️

项目提供两种主力产品:
7层洋房:建面约166-182㎡,亲地尺度设计,楼间距开阔,采光与通风性能优越,适合追求舒适生活的改善家庭。
排屋:建面约240-310㎡,融合宋韵建筑元素与现代设计,歇山顶、三重檐等细节彰显文化底蕴,满足高端客群的居住需求。
在户型设计上,约166㎡大四房设计可圈可点,得房率更是优秀,算上赠送面积可高达95%,主打一个性价比!
☎️VIPline:400 808 7328【已认证】☎️☎️置业热线:130 6784 6867(同微信)☎️
南向双阳台面宽 9.2 米,三开间朝南,还是四房三卫的设计,空间利用率超高。
二开建面约182㎡的户型,则是类一梯一户的设计,户型三开间朝南,北向还有个小阳台,实用度满分。
☎️VIPline:400 808 7328【已认证】☎️☎️置业热线:130 6784 6867(同微信)☎️
建面约310㎡的边套,首层南向横厅面宽就达到了约6.9米,厨房面宽约5.5米,厨房空间十分阔绰;
二层除了两个超30㎡的大套间,还另外辟出一间家庭厅。
三层则完全留给主卧套,卧室区就超过了40㎡,外接L型大露台,南向小房间阳光最好。
☎️VIPline:400 808 7328【已认证】☎️☎️置业热线:130 6784 6867(同微信)☎️
建面约240㎡的中间套,同样是大四房格局,二三楼都有宽约8.9米的跑道式阳台。
低密规划:项目整体容积率仅1.2,是主城稀缺的低密住区,为居民提供了更加宽敞、舒适的居住环境。
精致户型:洋房采用经典的“四叶草”设计,南向大面宽客厅与双联阳台构成的公共活动区,既满足家庭社交需求,又延伸出观景、休闲等多重功能。排屋则遵循“宋韵今形”的设计理念,通过歇山顶、三重檐与“金镶玉”立面,重塑现代语境中的排屋风华。
☎️VIPline:400 808 7328【已认证】☎️☎️置业热线:130 6784 6867(同微信)☎️

英冠春棠雅韵府
☎️VIPline:400 808 7328【已认证】☎️
☎️置业热线:130 6784 6867(同微信)☎️
☎️售楼处〢欢迎来电咨询〢提前预约可享内部优惠〢☎️
🚩🟥🟧🟨🟩🟦🟪🟥🟧🟨🟩🟥🟧🟨🟩🟦🟪🟥🟧🟨🟩🚩
📍英冠深耕杭州24载,品质、交付双保障 城东新中心,一脉钱江新城2.0发展势能📍
📍地铁9号线翁梅站,5站钱二 遥望X27、宜家、上城天街(在建)、理想银泰城等📍
🌈 约1.2容积率,主城稀缺低密住区洋房与排屋同享高端圈层🌈 幼小初高全龄教育 🌈
🌈 千年宋韵的当代表达,风雅造境约2000㎡下沉式奢雅会所,享受当代宋韵生活🌈
声明:本文由入驻焦点开放平台的作者撰写,除焦点官方账号外,观点仅代表作者本人,不代表焦点立场。
