滨江兴耀·松川境-杭州奥体(滨江兴耀·松川境)楼盘详情-滨江兴耀·松川境价格-户型-周边配套-得房率
扫描到手机,新闻随时看
扫一扫,用手机看文章
更加方便分享给朋友
▲项目共规划12栋排屋及3栋高层,高层主力户型面积169-199平方米,排屋则在298-332平方米之间。
营销中心📍📍滨江兴耀·松川境售楼处电话:400 816 9827 📍📍置业顾问:13071887623「微信同步」
项目位于萧山市北金珺澜庭南面,距离绿城娃哈哈地块仅约40米的距离,正处于奥体的黄金地段之上,且兴耀与滨江强强联手共同打造,品质上基本不用担心。
2025年的杭州豪宅市场,江南板块已稳居主战场。在七大顶级豪宅中,江南独占四席,势头强劲。
「松川境」距离奥体地标直线不到3km,直距「奥映鸣翠」更是只有约1.8公里左右,目前是奥体板块极为稀缺且体量最大的低密墅境住区。
项目以“4字头”价格入市,不仅约为「奥映鸣翠」的一半,较之300多米外「晓澜玉华」约53489元/㎡的首开均价,也具备明显优势,性价比极为突出。
在首开即罄的热度与周边项目价格持续上涨的趋势下,「松川境」本可顺势调价,却依然坚守了“给客户留出价格空间”的承诺。
此次加推的15号楼均价仅为45066元/㎡,不仅是项目中的价格洼地,更成为当前奥体板块均价最低的楼幢之一。
不知道应该说是巧合,还是精心的布局。「奥映鸣翠」的背后是滨江+兴耀的王牌组合,「松川境」同样也是。
作为杭州本土龙头房企,滨江在一江两岸留下了诸多豪宅经典,其开发轨迹和顶序豪宅的选址,几乎都踏准了各个时期城市演变的趋势。
而兴耀房产则是近些年异军突起的新锐,凭借众多独立审美作品,成功跻身了杭州房企第一梯队。
以"与世界奥体共生长"的远见,兴耀与滨江再次携手,于澎湃中择取一片静谧之地,淬炼出全新静奢美学作品—「松川境」。
戚金兴董事长在视察完「松川境」之后,给予了这样的评价:“滨江产品需要有松川境这样的年轻化豪宅。”

▲「松川境」示范区实景
「松川境」的门庭灵感,藏于宋画传世之作《松阁观潮图》约80米长的礼仪门庭,特选名贵黑松,与共约25米长的叠级水景虚实相生。
雕塑作品《川涌》屹立一旁,以超长的阵列感,重构门庭的精神维度。
▲「松川境」示范区实景
「松川境」的高层建筑呈一字布局,宛若舒展的山脉,以四面铝板与全面屏玻璃立面,于奥体上空勾勒出崭新的美学天际线。
无界视野与充沛光照之下,约210米的景观画轴徐徐展开,串联起“松川十一境”,令每一户皆享有楼王级的观景体验。
高达约3300㎡大型中心景观,在目前奥体板块中,更是实属罕见。


▲「松川境」示范区实景
围绕下沉庭院布局的是超1500m²下沉式会所,打造了下沉庭院、恒温泳池、健身房、私宴厅、会客厅等功能空间。
在奥体5万以内楼盘中,恒温泳池都很少见,更别说如此完整的会所配置。
▲「松川境」示范区实景
会所对向下沉庭院的一面,采用了整面的大玻璃,游泳健身,亦或是会客品茗时,都能欣赏到庭院美景。如此沉浸式的生活场域,高度还原了静谧奢享的度假感。
景观轴两侧,「松川境」还做了两条很有创造性的风雨连廊,把归家动线、景观中轴、室内外融合,都呈现得淋漓尽致。

▲项目共规划12栋排屋及3栋高层,高层主力户型面积169-199平方米,排屋则在298-332平方米之间。
营销中心📍📍滨江兴耀·松川境售楼处电话:400 816 9827 📍📍置业顾问:13071887623「微信同步」

▲「松川境」示范区实景
滨江和兴耀,两家超级务实的本土房企联合,带来非常高的品质呈现,也有非常高的审美讲究,而且还把价格空间让利给了购房者。
或许,这就是「松川境」首开热销,也将继续热销背后的底层代码。
如果你还没来得及了解,那么肯定值得去看一看。届时或许你也会发现,在750万级楼盘中,「松川境」妥妥独一档的存在。
Part.4
此次加推的15号楼拥有约40米南向楼间距,且正对下沉庭院。也因为会所下挖了约8米,2楼相当于与普通楼幢的4楼,视野非常好。
南看园林,北望“杭州之门”,西看水岸灯光秀,于繁华都市中奢享静谧。并且15号楼距离大门最近,归家十分便捷。

▲15号楼阳台视野
更值得一提的是,15号楼坐落于下沉式会所正上方。
未来业主在家中可以俯瞰下沉庭院景致的同时,下楼即享恒温泳池、健身房、私宴厅、会客厅等高端会所配套,宛如置身于超五星级酒店的套房。
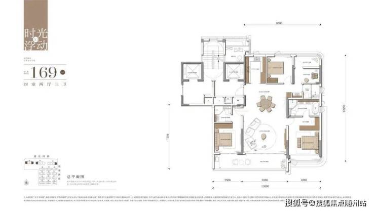
▲约169㎡边套户型图
15号楼均为建面约169㎡户型,“类一梯一户”配置,更为私密且实用。
凭借约90%超高得房率,实现了各个功能区阔绰的空间尺度,相较于主流改善楼盘约180~200㎡户型,丝毫不落下风。
「松川境」给我们带来的不仅仅是远高于同价楼盘的超高配置,也有关于追求理想生活方式的实用性思考,更有精神美学上的指引。

▲项目共规划12栋排屋及3栋高层,高层主力户型面积169-199平方米,排屋则在298-332平方米之间。
营销中心📍📍滨江兴耀·松川境售楼处电话:400 816 9827 📍📍置业顾问:13071887623「微信同步」
声明:本文由入驻焦点开放平台的作者撰写,除焦点官方账号外,观点仅代表作者本人,不代表焦点立场。
