星宜嘉映府:万人空巷!都是谁在买房啊,伟星星宜嘉映府100%得房率主城地铁口洋房还有什么优势?
扫描到手机,新闻随时看
扫一扫,用手机看文章
更加方便分享给朋友
✦伟星 ·星宜嘉映府
✦ 样板房示范区盛大开放
✦ 改造后超高得房率📈
✦ 约6000㎡室内外一体会所
✦ 全抬板洋房社区|居住舒适度
🚇地铁3号线华丰站约190米
🏬天街|山姆|吾悦广场环伺
🟥🟧🟨🟩🟦🟪🟥🟧🟨🟩
🚩🚩星宜嘉映府售楼处电话:400 886 7015 「已认证」🆚 🆚 销售顾问:13071887623「微信同号」
星宜嘉映府总共19幢楼,全是10到14层的洋房和小高层,容积率1.9,不大不小刚刚好。地块有51304㎡,规划了720户,算是个中等规模的社区,不至于太挤,也不会冷清。
户型从105㎡到172㎡都有,最狠的是得房率,基本在93%到98%之间晃悠。这事儿得感谢6月刚出的浙江省计容新规,开发商算是把这波红利吃透了。层高也舍得给,主力户型做到了3.1到3.15米,进去不会觉得压抑。

项目最骚的操作,是做了“全台地上盖花园洋房”——整个小区硬生生抬高了4.15米,首层住宅架空高度直接干到8米以上。什么意思呢?就是把那些你不想看到的设备房、配电箱、停车入口全藏到底下去了,地面上彻底人车分流。住二楼的朋友偷着乐吧,你这视野,放别的小区得是三四楼才有。
🚩🚩星宜嘉映府售楼处电话:400 886 7015 「已认证」🆚 🆚 销售顾问:13071887623「微信同号」
顺便说一句,开发商也没把围墙砌死。沿着社区一圈,主动退了点地出来,做了个长约200米、差不多3000方的街角公园。城市和社区的边界被模糊掉了,你走在外面觉得这小区没那么拒人千里,站在小区里往外看,公园成了自家的景观带。
整个小区像是浮在地面上,有那么点离开城市喧嚣的意思。私密性也上来了,外面的人看不见里面;但你在里面往外瞅,视野是真好。

Part 02
建筑设计
这项目的建筑,第一眼看过去就不太像传统的住宅,更像那种公建化的写字楼或者精品酒店。
“全抬板上盖”这个设计,是真敢干。社区首层住宅整体抬升8米以上,整个小区有种悬浮感,走在里面你会觉得脚下的地是假的,挺神奇。

外立面走得是干净利落的路线,大面积的玻璃幕墙,配上金属和石材,线条收得挺利索。窗墙比优化过,室内采光不愁,花园和城市的景色都能拉进来当背景。

🚩🚩星宜嘉映府售楼处电话:400 886 7015 「已认证」🆚 🆚 销售顾问:13071887623「微信同号」
主入口据说致敬了伦敦梅费尔瑰丽酒店,确实有点那味儿。200米宽的酒店式门仪,檐口将近7米高,16根柱廊排成一排。最吸睛的是那个“明瓦灯笼”——近10米宽、6米高,金色雨棚配透光玉石,底下是水景,白天晚上看都挺唬人。


上了抬板,步行动线也没糊弄。扶梯、步梯、垂直电梯,三种方式任选,走了一圈发现,确实没什么槽点。

🚩🚩星宜嘉映府售楼处电话:400 886 7015 「已认证」🆚 🆚 销售顾问:13071887623「微信同号」
地下车库这次算是有想法的。做了采光天井,还配了光导系统,整个车库亮堂堂的,有呼吸感,和下沉庭院连通,你从地库走到家里,心情不至于像以前那么压抑。

会所这块,开发商是真舍得。G层搞了个近2000方的超级会所,行政酒廊、恒温泳池、健身房、童玩中心全塞进去了。还有一个“无雨归家系统”——从地铁站出来,经过鎏金门厅、四季花厅,最后到单元大堂,全程不用打伞,还能顺带看看3000方的街角公园。


Part 03
景观设计
景观做得有意思的地方,是利用了抬板形成的高差。抬升4.15米,下沉3米,里外里差出7.15米,正好做了个“双层立体庭院”。


1200平米的下沉式庭院,叠水、瀑布,打破了过去那种坑洞式的压抑感。上下两层平行空间,有滨水度假区那味儿了,我第一次走进去的时候,确实多站了一会儿。
景观轴上有一条近60米长的水轴,据说是照着马尔代夫某度假村来的。蜿蜒的水系,配了戏水池,夏天应该是孩子们的主场。中央景观轴加上几个主题花园,整个社区被切分成一个个有辨识度的小空间,不至于一眼望穿,也不至于迷路。
还有那个约6000平的立体生态泛会所,说实话,有点奢侈。地下会所连着下沉庭院,自然光直接照进来;抬升一层的架空层,变成了景观平台。景观、建筑、功能空间揉在一起,游起来有点逛公园的感觉。
Part 04
户型设计
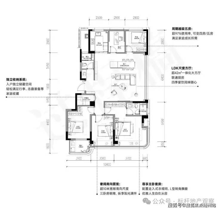
户型从105到172㎡全覆盖,主力是116、130、136、137、139这些段位。105是三房,其他全是四房起步。
116㎡四房两厅两卫+储藏室
这个户型,我愿意多写两句。目前杭州一手房里,这个面积段能做到四房两卫还加储藏室的,就它一个。
改造后使用率93%,尺寸感能对标市面上130㎡的产品。你要是买这个户型,等于省了十几平米的钱,但住出来的感觉不比别人差。
格局是经典的“四叶草”型,南北通透,动静分区。每个房间都靠角落,互相不打扰,家里有老人有孩子的,这个布局最省心。
172㎡F1户型,四房两厅三卫,含赠送得房率96%
这个尺度就打开了。南向面宽14米,主卧4.2米,餐客厅是6.4米的南向大方厅,配上3.15米层高,确实有大平层的意思。站在客厅中间,会觉得这房子是自己的。
还有一款五房两厅三卫的,配置更狠,适合人口多的家庭。

建面约116m²:
建面约116方户型,做到了四房两卫加独立储藏室,改造后使用率高达93%。
建面约105㎡南厅户型,3房2厅2卫,含赠送得房率约93%。
✦伟星 ·星宜嘉映府
✦ 样板房示范区盛大开放
✦ 改造后超高得房率📈
✦ 约6000㎡室内外一体会所
✦ 全抬板洋房社区|居住舒适度
🚇地铁3号线华丰站约190米
🏬天街|山姆|吾悦广场环伺
🟥🟧🟨🟩🟦🟪🟥🟧🟨🟩
🚩🚩星宜嘉映府售楼处电话:400 886 7015 「已认证」🆚 🆚 销售顾问:13071887623「微信同号」
声明:本文由入驻焦点开放平台的作者撰写,除焦点官方账号外,观点仅代表作者本人,不代表焦点立场。
