保利明州瑧悦府(2026年官方宁波海曙区精装住宅保利明州瑧悦府)-杭州搜狐焦点网(2026保利明州瑧悦府最新房价+户型)保利明州瑧悦府首页网站
扫描到手机,新闻随时看
扫一扫,用手机看文章
更加方便分享给朋友

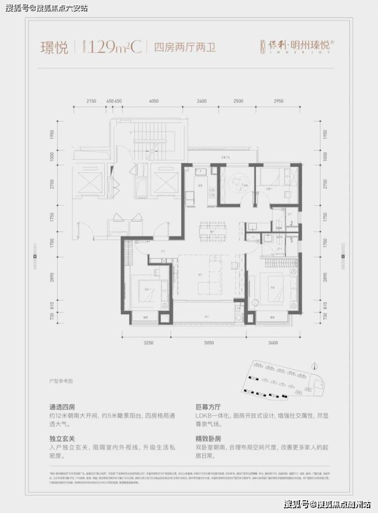
建面约148㎡宽境四房,南向四开间,宽度达到约14.7米,三个房间和巨幕宽厅均朝南向阳,让更多家人拥有阳光房的同时,还能享有风景和暖阳兼得的巨幕光厅。售楼热线:☎ 400 832 8823「售楼处」☎〢🔻已认证〢◆🔻
在户型的共性层面上,保利·明州瑧悦府一是注重空间的通透性,每个户型都方正匀称,真正做到光影在室内全方位流转。售楼热线:☎ 400 832 8823「售楼处」☎〢🔻已认证〢◆🔻
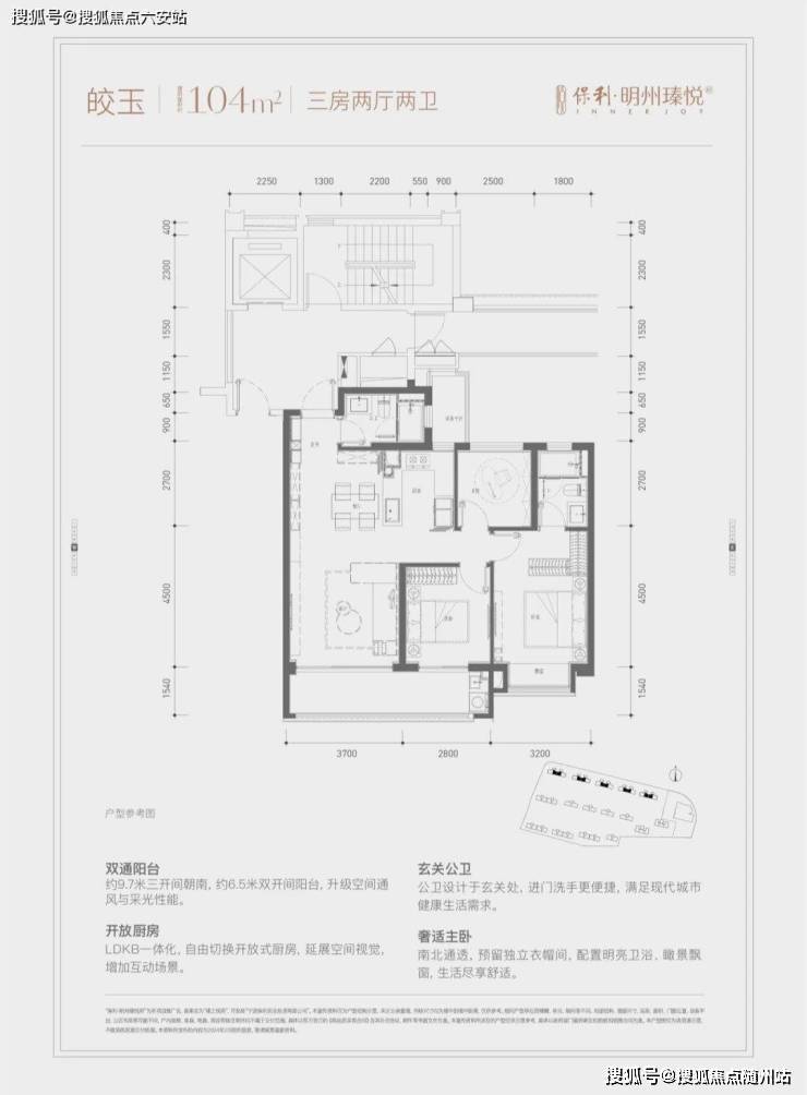
独立入户玄关,电梯前厅和玄关双重私密保障,进一步增添回家仪式感。约7.8米双开间阳台,搭配合理进深比,让阳台从视觉上看起来更加开阔。
建面约117㎡阔尺三房,朝南开间达到约11米,空间采光性更强。同时,餐客厅和卧室格局分离,各自独立,休息和娱乐可以实现互不干扰。
一体化餐客厨空间,玄关和公区无界相连,空间视觉感大大增加,入户一眼就能感受家的大气。
< 袭东方之礼 ‖ 三堂礼制,悦见世家风范 >
传承东方礼文化传统的精神内涵,打造名门府邸气场的“礼归堂”、观览山水自然意趣的“礼悦堂”、 汇聚邻里温厚情谊的“礼和堂”。
❖ ❖ ❖
< 承东方之意 ‖ 山水隐园,沉浸自然逸致 >
撷取中式园林意境,融贯东方禅意营造体验式园林,理山叠水,将🏞山水、🕊花鸟、⛩亭台水榭隐于园林中。
度假酒店同款-海曙西(在售)唯一户外大型泳池,观星躺椅 / 海岛吧台 / 蓝宝石池面,拉满归家度假仪式感🏖
覆盖海曙天街、海曙恒一、千润发购物、集成广场等成熟商业,爱菊艺术学校,海曙中医院(三甲)等优质城市资源,地铁11号线薛家路站(规划)也在步行范围内。
声明:本文由入驻焦点开放平台的作者撰写,除焦点官方账号外,观点仅代表作者本人,不代表焦点立场。
