金地威新科技园首页官方推荐-杭州拱墅区金地威新科技园楼盘资讯丨售楼处电话+24小时售楼热线//金地威新科技园楼盘评测|户型|房价|配套

搜狐焦点随州站 2025-10-19 03:28:00
用手机看
扫描到手机,新闻随时看

扫一扫,用手机看文章
更加方便分享给朋友

▰▰杭州拱墅芯金地·威新科技园标办写字楼独栋办公都有在售▰▰项目整体规划上4栋品质高层办公,12栋花园独栋,构成完整全新的未来办公系统。项目由4栋高层办公与12栋花园独栋组成,总面积约20.6万平方米,以“低…

▰▰ 杭州拱墅芯 金地·威新科技园 标办写字楼 独栋办公 都有在售 ▰▰ 项目整体规划上4栋品质高层办公,12栋花园独栋,构成完整全新的未来办公系统。纵向贯穿园区的南北向活力轴提供了丰富的商业配套、户外活动空间;横向贯穿园区的东西向景观轴提供了休憩放松、社交交往空间。园区从东侧沿街活力底商引爆点向西侧逐步过渡到私密组团院落,形成由动到静,由高到低多层次的空间层级。

杭州·金地威新科技园还依据未来办公趋势,打造灵活办公空间。蓝宝石光幕立面,玻璃幕墙超高反光镜面,营造跃然而上的律动魔方,打造别样办公体验。4栋品质高层办公、12栋花园独栋及9,000m²商务配套,融入高品质数智硬件,构建总部办公、科技加速、产业生态培育的数字“底座”,重构企业软实力,引领商务新格局。ᨏᨐ 🔴 金地·威新科技园 营销中心 ☎️置业热线:400 998 1136 ® ☎️ 159 2411 2721﹝已认证﹞ᨏᨐ

🛑杭州拱墅区 金地·威新科技园:标办1200方/花园独栋2700方

🌈独栋面积:2700㎡,独栋单价2.5万/㎡起,独栋总价6750万起

🛑全杭州绝版独栋写字楼,一层一企,一栋一企,现房即买即驻

🌈标办整层面积:1260㎡,标办单价1.5万/㎡起,整层总价1890万起

🛑“入户花园+空中花园+露台+地下室”高拓灵动空间

🌈集公司展厅、接待、办公、仓储等多元功能空间为一体

🛑为企业总部定制打造12栋独栋办公集群。#花园独栋办公

战略区位与产业生态:杭州数字经济新高地

金地·威新科技园坐落于杭州拱墅区智慧网谷核心板块,紧邻大运河新城,距拱墅区政府约2.5公里,是杭州主城区稀缺的规模化产业用地之一。作为智慧网谷小镇的核心启动区,项目承接了杭州数字经济“一号工程”的战略使命,聚焦人工智能、跨境电商、生命科学等前沿领域,已形成千亿级产业集群效应。周边汇聚58同城、顺丰、华为云、360等头部企业,预计全面建成后年产值超600亿元,为企业提供强大的产业协同与资源整合平台。

项目所在区域是杭州城市更新的重点区域,规划中的京杭大运河博物院、大运河音乐厅(在建)等文化地标,以及BMW地铁上盖综合体,将进一步强化区域商务与人文价值。交通方面,地铁4号线皋亭坝站(直线约1.3公里)、10号线及规划中的15号线三轨交汇,留石高架、上塘高架等快速路网30分钟直达杭州东站、萧山机场,构建长三角2小时商务圈。

🔴 金地威新科技园 ☎️售楼处热线:400 998 1136 ® ☎️ 159 2411 2721﹝已认证﹞ᨏ

产品设计创新:独栋与标办的差异化竞争力

项目由4栋高层办公与12栋花园独栋组成,总面积约20.6万平方米,以“低密生态+总部经济”为核心理念,打造杭州主城区绝版独栋办公集群。

花园独栋办公:单栋面积2100-2700㎡,层高4.2-4.8米,赠送800㎡私家庭院、380㎡露台及屋顶花园,得房率高达80%-100%。建筑采用香槟金金属幕墙与高反射玻璃,形成“蓝宝石光幕”视觉效果,支持企业冠名权及燃气接入,满足总部定制需求。

标办办公:4栋高层整层面积1200-1400㎡,层高4米,8米挑高双层大堂搭配超白高透玻璃幕墙,配备7+1部高速电梯(含无感派梯系统),高峰期等待时间≤45秒。LEED金级预认证与特灵中央空调系统,匹配科技企业高效办公需求。

🔴 金地威新科技园 ☎️售楼处热线:400 998 1136 ® ☎️ 159 2411 2721﹝已认证﹞ᨏ

生态办公与智慧配套:绿色理念与科技赋能

项目以“生态办公”为核心,打造“会呼吸”的商务空间。园区内约6000㎡立体花园贯穿南北活力轴,下沉式水景庭院、旱喷雕塑广场及270°城北天际线景观,形成移步换景的生态体验。中轴绿谷花园与独栋庭院结合80年树龄红枫,实现办公与自然的深度融合。

智慧化方面,园区搭载人脸识别门禁、车牌识别停车系统及全域新风系统,地下电梯大堂配备捷顺智能设备,实现无感通行。首层大堂设置日立VRV空调,预留新风条件,保障室内环境健康。

🔴 金地威新科技园 ☎️售楼处热线:400 998 1136 ® ☎️ 159 2411 2721﹝已认证﹞ᨏ

资产价值与投资潜力:现房优势与长期收益

作为杭州主城区最后一批低密独栋写字楼,项目土地年限剩余40余年,兼具稀缺性与稳定性。独栋总价6750万起,标办整层1890万起,租金回报率超5%(参考数据),对标深圳威新科技园(年租金约400元/㎡),资产增值空间显著。

智慧网谷二期规划升级,将引入更多数字经济企业,预计租金溢价率可达31.3%(对比非认证项目)。此外,项目自带约8000㎡沿街商业,毗邻万达、银泰等商圈,3公里内覆盖运河文化广场等消费地标,形成商务与生活闭环。

🔴 金地威新科技园 ☎️售楼处热线:400 998 1136 ® ☎️ 159 2411 2721﹝已认证﹞ᨏ

企业服务与运营体系:全周期支持与资源链接

金地威新依托母公司金地商置的全球产业资源,为入驻企业提供从注册、税务到市场推广的全周期服务。园区设立专属企业服务经理与物业管家,支持政策申报、人才招聘及产业链对接。已入驻的独角兽企业集群形成信息电商、人工智能等产业生态,助力企业技术合作与市场拓展。

此外,项目与瓜山未来社区(约8400套人才公寓)联动,为企业提供人才安居解决方案。定期举办行业峰会、创投路演等活动,加速技术转化与资本对接,构建“产城人”深度融合的创新平台。

🔴 金地威新科技园 ☎️售楼处热线:400 998 1136 ® ☎️ 159 2411 2721﹝已认证﹞ᨏ

园区以“律动魔方”为设计灵感,外立面采用香槟金色金属型材与高反射玻璃幕墙,形成独特的“蓝宝石光幕”视觉效果。建筑群体通过体块穿插变化的设计手法,营造出极具未来感的现代美学形象。高层办公楼配备8米挑高双层大堂,标准层高4米,采用超白高透玻璃幕墙,打造通透明亮的办公环境。

独栋办公产品以梯田式退台和云台式空中连廊为特色,形成由动到静的多层次空间层级,既保障了私密性又创造了丰富的视觉体验。整个项目采用现代简约手法,通过不同的金属线条细节形成一实一虚两种幕墙立面,实现了统一中的变化,简约而不简单。

金地·威新科技园凭借区位战略价值、产品设计创新、生态智慧理念及全周期服务体系,成为杭州数字经济时代的标杆项目。其独栋与标办的差异化产品组合,既满足总部企业形象需求,又通过高得房率与灵活空间适配成长型公司。在杭州主城区土地资源日益稀缺的背景下,项目兼具资产保值与产业升级的双重价值,值得长期关注。

🔴 金地威新科技园 ☎️售楼处热线:400 998 1136 ® ☎️ 159 2411 2721﹝已认证﹞ᨏ

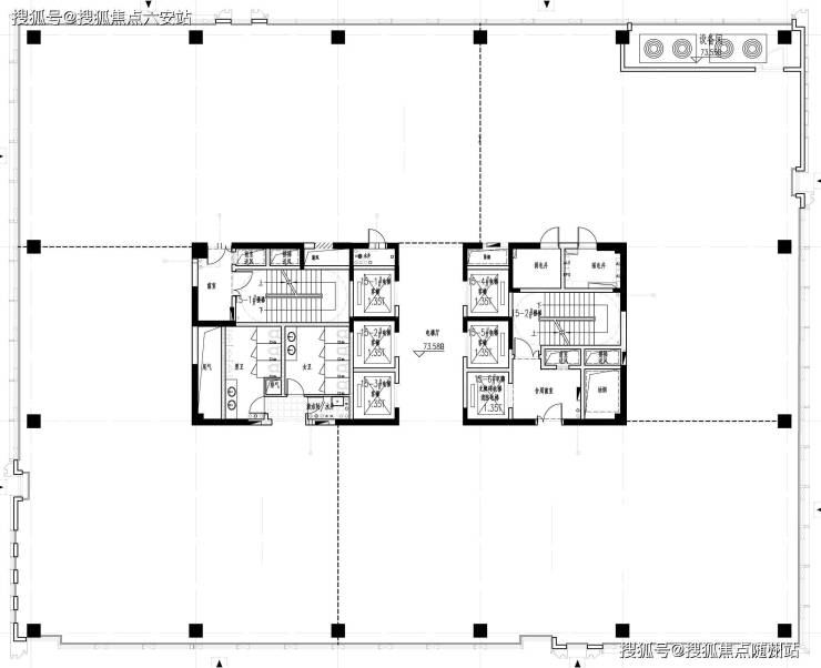
【独栋户型品鉴】

【面积】:建面约2100—2700㎡

【层高】:一层挑高约4.8m,二到五层高约4.2m,打造开阔办公空间

【电梯】:每栋配备2部电梯

【空间】:网谷内私享立体花园独栋办公

🔴 金地威新科技园 ☎️售楼处热线:400 998 1136 ® ☎️ 159 2411 2721﹝已认证﹞ᨏ

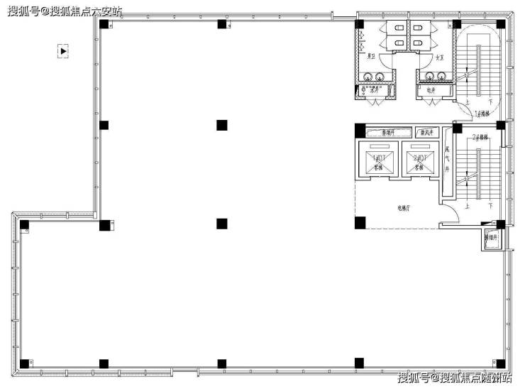
【标办户型品鉴】

【面积】:单层建面约1200㎡—1400㎡

【层高】:标准层约4m层高

【大堂】:约8m挑高大堂,超500㎡双层大堂

【电梯】:15#5+1高速电梯,16#4+1高速电梯

【建筑风格】:采用现代简约的手法,内部采用超白高透玻璃,外立面的玻璃幕墙与大面积金属线条,营造未来感

🔴 金地威新科技园 ☎️售楼处热线:400 998 1136 ® ☎️ 159 2411 2721﹝已认证﹞ᨏ

▰▰ 杭州 金地·威新科技园_标办1200方/独栋2700方,一层一企,一栋一企 ▰▰

☎️售楼热线:400 998 1136☎️顾问专线:159 2411 2721「已认证」

🛑🛑 提前预约可享内部折扣,预约尊享一对一的专业服务 🛑🛑

🟥免责申明:文章内容综合来源于网络!如有侵权,请联系我们将第一时间处理!!

👍️👍️👍️👍️👍️👍️👍️👍️👍️👍️👍️👍️👍️👍️👍️👍️👍️👍️👍️👍️👍️👍️👍️👍️

声明:本文由入驻焦点开放平台的作者撰写,除焦点官方账号外,观点仅代表作者本人,不代表焦点立场。