天阳地产湖与舍,江东核心现房,7 号线直达钱江新城,湖景美宅售楼处电话
扫描到手机,新闻随时看
扫一扫,用手机看文章
更加方便分享给朋友
天阳・湖与舍坐落于杭州钱塘区核心,以 “融杭康养” 为核心定位,依托一线湖景资源打造低密宜居社区,是主城旁高性价比康养优选。®营销中心: VIP-Line: 400 811 3125 , ☎ 137 5083 8221﹝已认证﹞

一、项目基础档案
项目名称:天阳・湖与舍
开发企业:天阳地产(杭州本土 25 载房企,户型专家)
产品类型:13 幢 12-17F 小高层 / 高层,纯住宅社区
总户数:768 户
容积率:1.8(区域低密标杆)
绿化率:35%
车位配比:1:1.17
物业费用:天阳物业,2.75 元 /㎡/ 月
产权年限:70 年住宅
交付状态:精装现房(即买即住)

二、核心优势(融杭 + 康养 + 品质)
1. 极速融杭交通(主城 30 分钟圈)
地铁:距7 号线江东二路站约 80 米(始发站),1 站直抵龙湖江东天街,7 站达奥体、钱江新城
自驾:江东大道、钱塘快速路,经艮山东路过江隧道3 分钟到下沙、30 分钟达杭州主城
枢纽:近萧山国际机场,跨城出行便捷

2. 一线湖景康养生态
南向直面 450 亩东沙湖湿地公园,约 300 米湖岸线,“钱塘小西湖” 天然氧吧
负氧离子浓度高,步行即达环湖步道、露营、骑行区,全龄康养宜居
双水岸环绕,南侧湖景 + 东侧河景,景观资源稀缺

3. 区府核心全维配套
政务:一路之隔钱塘区政府、规划展览馆
商业:1 站龙湖江东天街、近宝龙广场,日常消费一站式
教育:杭高启成学校、文海实验学校、崇德外国语(规划)
医疗:近九医院、钱塘区医疗中心

4. 现房品质无风险
四面铝板 + 大面玻璃幕墙,现代高端质感,颜值抗老化
全首层 4.5 米架空层,打造 6 大主题泛会所(童玩、健身、书吧等)
精装带全屋地暖(3000 元 /㎡装标),品牌厨卫、细节考究
实景呈现,园林、户型、采光实地可验,无延期、烂尾风险

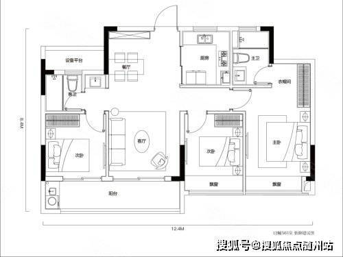
5. 神户型高实用率
100㎡(三房两卫):四开间朝南(12.4 米面宽)、双阳台、双飘窗,全明通透
105㎡(三房两卫):边套 270° 三面采光、6 米大飘窗、主卧套房
128㎡(四房两卫):独立储藏室、南向大阳台、二孩 / 三代同堂优选
核心亮点
稀缺湖景资源:南向直面约450亩东沙湖,拥有近300米湖岸线,推窗即享湖景,部分楼栋可实现三面采光与观景。
交通便利:地铁7号线江东二路站步行可达,一站直达龙湖江东天街,两站至宝龙广场,7站到萧山国际机场,周边公交、自驾出行便捷。
高品质外立面:采用四面全铝板+大面玻璃设计,搭配冰蓝色不锈钢线条和弧形机翼铝板,兼具美观性与耐久性,北立面采用玻璃设计实现南北通透。
园林景观:借鉴曼谷四季酒店设计灵感,打造“内外双公园”格局,内部有叠水景观、镜面水池、林间溪流等,植被大量取材于东沙湖,营造森系度假氛围。
全架空层泛会所:约4.5米层高的全架空层,设置健身、童玩、共享办公、图书室等多主题空间,满足全龄段生活需求。

总结:天阳·湖与舍凭借稀缺湖景资源、高品质建筑与景观设计、便捷交通与完善配套,成为杭州钱塘区东沙湖板块的标杆项目,适合追求品质生活、注重性价比的刚需及改善型购房者。建议实地考察,结合自身需求综合评估。

如需了解更多详情,拨打服务热线 ☎ 400-811-3125「营销中心」来电了解最新房价和房源,☎13750838221「VX同号」我们的专业置业顾问将竭诚为您服务,详细解答您对于楼盘的各种疑问,为您提供最专业的购房咨询和最贴心的服务。
声明:本文由入驻焦点开放平台的作者撰写,除焦点官方账号外,观点仅代表作者本人,不代表焦点立场。
