滨江兴耀鸣澜里官方首页推荐【2026杭州拱墅康桥街道住宅滨江兴耀鸣澜里最新房价+户型】滨江兴耀鸣澜里楼盘详情-滨江兴耀鸣澜里价格
扫描到手机,新闻随时看
扫一扫,用手机看文章
更加方便分享给朋友
鸣澜里的性价比毋庸置疑,不管是放在运河新城,还是整个主城区,都是如此。
鸣澜里户型建面约103-139㎡,二开均价约3.1万元/㎡,起价仅2.7万元/㎡出头,绝大部分房源的总价都在400万以内。这个价格,在整个主城区都十分稀缺。售楼热线:☎ 400 832 8823「售楼处」☎〢🔻已认证〢◆🔻

鸣澜里,也是运河新城唯一售价低于板块限价的项目。
运河新城限价时代的产品还有宸岸栖月,从产品本身而言,已经无法与不限价的鸣澜里抗衡。而不限价的产品中,熙岸晓月均价约3.8万元/㎡,是运河新城目前售价最高的项目,而且房源已经全部推出,只剩尾房在售。售楼热线:☎ 400 832 8823「售楼处」☎〢🔻已认证〢◆🔻
鸣澜里位于运河新城C位,是目前运河新城地段最好的项目之一。
鸣澜里拥有双地铁的绝佳配套:直线距离已经通车的4号线平安桥站约700米,在建的15号线康桥路站约320米,是杭州主城区少有的双地铁新房。
鸣澜里还有目前距离大运河最近的项目之一:与千年古运河直线距离仅约300米。在杭州主城区的运河带上,从江河汇到运河新城基本都是豪宅,无论是售价高达10万元/㎡左右的IFC大平层,还是安琪儿板块已经迈上5000万高阶的叠墅,以及运河新城以及超过2000万的叠墅,运河豪宅带上,鸣澜里是总价最友好的项目了。售楼热线:☎ 400 832 8823「售楼处」☎〢🔻已认证〢◆🔻
在情绪价值至上的时代,鸣澜里的景观园林也充满了疗愈感。异形的中央水景,悬浮的岛台,充满热带气息的棕榈植物,度假的场景和轻松的氛围十足。对于工作繁忙、生活需要放松的都市年轻人而言,下楼就是旅行、归家就是度假的生活场景,才是家和工作之外最好的第三空间。售楼热线:☎ 400 832 8823「售楼处」☎〢🔻已认证〢◆🔻
不限价之后,鸣澜里的会所也带来了生活的革新。加雅绿、土耳其雪花白、佩纳深蓝,三种奢石搭配的艺术感与奢华感,贯穿整个园区和会所。售楼热线:☎ 400 832 8823「售楼处」☎〢🔻已认证〢◆🔻
健身房、瑜伽房、高尔夫球室、台球室、影音室、电竞房、女王厅,豪宅的标配,也是鸣澜里的标配。
鸣澜里更人性化的考量是,年轻人,孩子是重要的家庭成员,因此规划了6个不同主题的儿童乐园,还悉心地考虑到了学习区,让孩子们的童年拥有缤纷的色彩和多彩的生活。
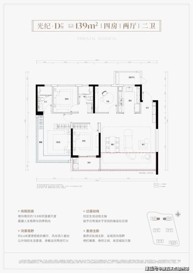
除了外部空间,鸣澜里的户型同样藏着惊喜。
作为不限价之后运河新城的首个面市项目,鸣澜里的得房率高达90-94%,远高于限价时代主流的78-82%。
得房率的提升,户型自然就有了巨大的发挥空间。比如103㎡的三房,三开间朝南,巧妙地用S墙和创新的玻璃厨房,让空间的观感大大提升。
声明:本文由入驻焦点开放平台的作者撰写,除焦点官方账号外,观点仅代表作者本人,不代表焦点立场。
