滨江兴耀鸣澜里楼盘测评+杭州房产天下-拱墅康桥街道住宅滨江兴耀鸣澜里官方网站-官网最新房价-滨江兴耀鸣澜里楼盘详情
扫描到手机,新闻随时看
扫一扫,用手机看文章
更加方便分享给朋友

距离京杭大运河仅800米,饭后散步可达。文化地标大运河博物馆距离项目仅约1.3公里,邵逸夫医院大运河院区更近,只有约1.2公里,鸣澜里到15号线地铁康桥站(在建)仅约300米,地铁4号线平安桥站TOD约800米。以上这些都是家门口步行可达的配套。
滨江兴耀·鸣澜里就是你在运河新城能买到的300万+的房子。它也是滨江在运河新城落下的第五子。公共区域滨江这次也下血本了,采用了不少高端材质装饰,如维多利亚白石材、贝母漆、皮革硬包等,电梯厅与地下车库也很注重细节处理(如拼花石材铺装),提升归家仪式感。
鸣澜里整盘规划6栋17-24层高层,容积率2.7、绿地率约35%,构筑建面约103-139方覆盖首置、改善人群,包括5大户型,其中建面约103方大三房、约120方-126方-139方为大四房,深受关注。
为什么「运河新城+滨江造」总能创造热销奇迹?我想以下几点值得关注。其一、城北之芯运河新城,产业集聚,人才扎堆,居住、置换的需求巨大。
滨江兴耀·鸣澜里-高端豪宅版📍📍面积103-139㎡ 刚改项目首开在即!300万级滨江造!运河新城首个“四面铝板”6幢纯高层住宅、四面铝板、约450米规划15号线康桥站 !
作为杭州主城留白地、拱墅「举全区之力」重点建设的城北之芯,运河新城打出“文化+地标”、“生态+生活”、“经济+产业”三大组合拳,让其含金量持续飙涨。
人文荟萃:诸如京杭大运河博物院(在建)、大运河未来艺术科技中心(规划)等7大城市级艺文地标环伺,人文艺术气息拉满。
宜居胜地:未来,千年运河旁生长出一条世界级的滨水空间带,全长18公里山水景观环链,放置14个不同主题的水岸活力公园。
科创引领:杭州首个创新型小镇智慧网谷,已经吸引了新浪、360、联想、华为等大批高新互联网企业入驻,虹吸海量高素质人才。
滨江兴耀·鸣澜里-高端豪宅版📍📍面积103-139㎡ 刚改项目首开在即!300万级滨江造!运河新城首个“四面铝板”6幢纯高层住宅、四面铝板、约450米规划15号线康桥站 !

不仅如此,杭钢数字经济小镇(规划),国资云、气象云、健康云三大省级数字基座在此扎根。
杭州又一国字号“中国算谷”即将诞生(也是“杭州科创六谷”之一)正在建设中,这里或将成为下一轮科技爆发的原点!
北部康桥健康产业、能源产业也逐步落地。如此高层次的战略部署,运河新城起飞模式已经开启。其二、运河新城C位,占位黄金生活圈,鸣澜里拥享醇熟生活优配。
除了板块潜力无限,鸣澜里本身的占位亦不容小觑。
项目位居“大城北历史年轮带”与“大运河风光文化带”这两大轴线交汇点,极强的CP加持,鸣澜里隐形价值更加刺激。
交通方面,地铁4号线平安桥站直线距离约700米,15号线康桥路站(在建)约320米,加上康桥路、丽水北路、上塘高架等,出行便捷。
周边城北万象城、拱墅万达、运河上街、乐堤港等5大商业综合体环伺,让购物和聚会变得轻松愉快。

下沉式会所:作为运河新城中片区,首个打造下沉式会所的楼盘,功能配置了健身房、棋牌室、电竞影音室、台球房、女王厅、室内高尔夫。
都是2025年滨江豪宅系列的同款功能配置,跟同板块、同价位楼盘相比,属于“产品跃级”由设计董事、安德马丁发现中国好设计年度推荐设计师“赵广兴”先生领衔打造的家庭共享与社交空间“鸣澜club”
建面约103平,三房两厅两卫。三大亮点分析:① 南向三开间,朝南次卧带阳台,客厅联通阳台后,空间阔绰;② U型厨房且半开放设计,玄关含S墙冰箱位,利用率高、采光更优;③ 新规户型得房率高达约90%以上。
建面约120方户型:这款户型设计非常不错,在这个120方的面积段里不仅做了四房设计,而且还是四开间朝南,南向采光非常好。
建面约126方户型:大边厅+南向的阳台,还有大套房,内含卫生间以及衣帽间,再加上独立的储藏室,收纳空间满分。
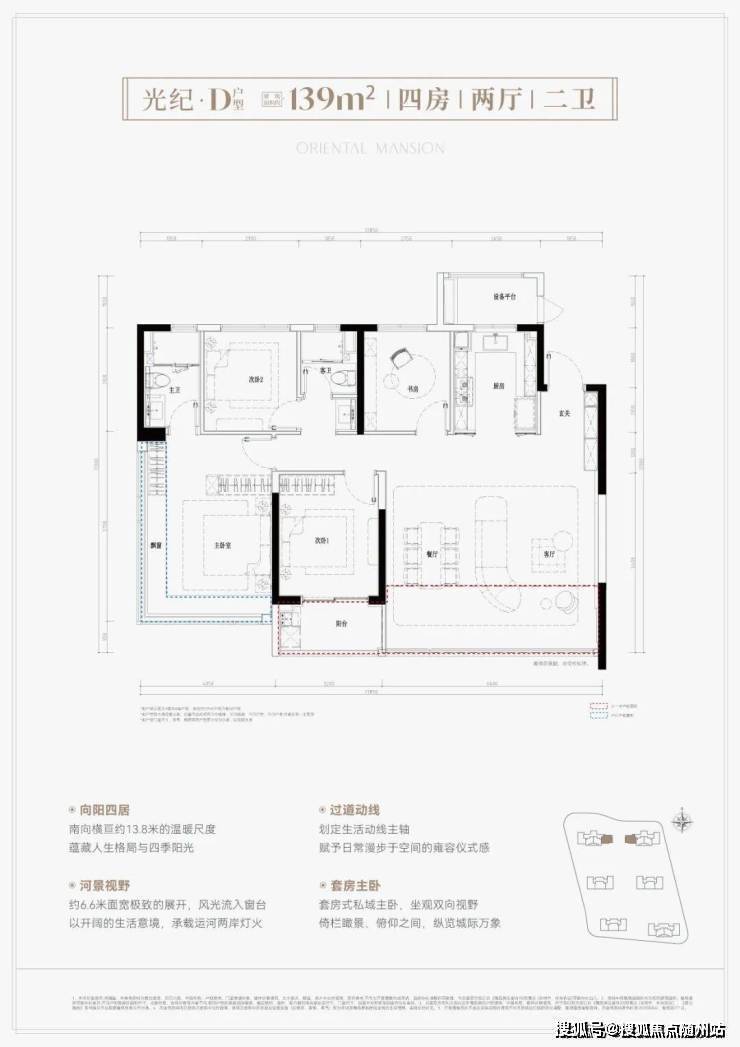
鸣澜里139平户型同样做的不错,打造四房两厅两卫,分为横竖两款,全部为边套,两梯两户设计。其中,139平竖厅户型亮点分析:① 户型得房率超高,达到约93%;② 南向3个卧室,采光优且满足二胎家庭和三代同堂居住需求;③ 客厅面积达到约37平,足够大,同时额外配置约2.6平的储物间。
在精装方面,客餐厅地面选用大理石铺贴,厨房配备四件套与蒸烤一体机。卫生间洁具采用汉斯格雅、唯宝、摩恩等一线品牌,台盆台面及地面均运用大理石材质,整体营造精致高端的居住体验。
园区中心精心打造“九境”花园,融合下沉水院、水景卡座、精致景墙等多元景观,辅以不规则透蓝戏水池。未来在家楼下,即可漫步林荫,聆听天籁,倚绿植赏景,在水景环绕中放松身心。随时开启一场触手可及的度假之旅。自然度假风情的景观水池,搭配棕榈等热带植物,辅以开放式酒廊与下沉卡座,整体营造出浓郁的度假氛围。
鸣澜里精心打造了多元化的下沉式会所与架空层泛会所空间,高配“鸣澜club”。下沉式会所内设会客厅、瑜伽室、健身房、室内高尔夫、台球室、棋牌室、电竞房、影音室等,全方位满足业主的休闲娱乐需求。架空层则作为全龄共享的泛会所空间,设有童玩区、会客厅、乒乓球健身区、四点半学堂等功能区,促进邻里间的温馨互动。
不仅外在能打,内在配套也够硬核:园林以 “九境” 为主题,造了下沉式会所 + 架空层泛会所,健身房、瑜伽室、室内高尔夫、电竞房全有,平时健身、社交不用出小区;还有风雨连廊、下沉庭院,下雨天散步也不怕淋,居住体验堪比 500 万级豪宅。


在情绪价值至上的时代,鸣澜里的景观园林也充满了疗愈感。异形的中央水景,悬浮的岛台,充满热带气息的棕榈植物,度假的场景和轻松的氛围十足。对于工作繁忙、生活需要放松的都市年轻人而言,下楼就是旅行、归家就是度假的生活场景,才是家和工作之外最好的第三空间。售楼热线:☎ 400 832 8823「售楼处」☎〢🔻已认证〢◆🔻
不限价之后,鸣澜里的会所也带来了生活的革新。加雅绿、土耳其雪花白、佩纳深蓝,三种奢石搭配的艺术感与奢华感,贯穿整个园区和会所。售楼热线:☎ 400 832 8823「售楼处」☎〢🔻已认证〢◆🔻
健身房、瑜伽房、高尔夫球室、台球室、影音室、电竞房、女王厅,豪宅的标配,也是鸣澜里的标配。
鸣澜里更人性化的考量是,年轻人,孩子是重要的家庭成员,因此规划了6个不同主题的儿童乐园,还悉心地考虑到了学习区,让孩子们的童年拥有缤纷的色彩和多彩的生活。
除了外部空间,鸣澜里的户型同样藏着惊喜。
作为不限价之后运河新城的首个面市项目,鸣澜里的得房率高达90-94%,远高于限价时代主流的78-82%。
得房率的提升,户型自然就有了巨大的发挥空间。比如103㎡的三房,三开间朝南,巧妙地用S墙和创新的玻璃厨房,让空间的观感大大提升。
声明:本文由入驻焦点开放平台的作者撰写,除焦点官方账号外,观点仅代表作者本人,不代表焦点立场。
