滨江天目山晓城(2025坐标杭州杭州临安旅游度假区CBD 核心区精装中式合院)滨江天目山晓城网站-滨江天目山晓城楼盘详情-价格户型-杭州房天下
扫描到手机,新闻随时看
扫一扫,用手机看文章
更加方便分享给朋友
杭州临安【滨江天目山晓城】合院,90㎡-160㎡;总价180万起⑉lı⑉—【售楼热线】:☎𝟒𝟎𝟎 𝟖𝟖𝟔 𝟕𝟎𝟏𝟓 ☎⫷➤售楼处〢欢迎咨询〢提前预约可享内部底价〢➤售楼处直销热线|中介勿扰|欢迎致电咨询温馨提示:为了节约您的等待时间,看房请提前致电售楼处预约!!!

作为滨江集团打造的首个亲旅小镇,天目山晓城聚焦多产业模块,赋能天目山文旅迭新。900亩巨制,规划英迪格酒店、天目in66商业街、自然探索乐园、耕心农场、自在果园、唐风合院、暖驿社区等复合功能配套,并携手老罗家特产品牌、鹿可卢可农庄机构,打造生活、度假、亲子、娱乐、运动、康养六大生活场景,勾勒丰盛的“晓城里”生活蓝图,开启度假新旅程。

🌈滨江•天目山晓城| 杭州临安现房唐风合院
🏙️滨江重磅打造限时特惠房源,总价180万起
🌈有花园!有院子!还送40平左右菜地
🏙️花更少的钱,过向往的生活
🌈建面约90-160㎡唐风合院(现房)
🏙️0.6超低容积率,稀缺城市小合院
天目山实景图
每年盛夏,很多杭州人都会选择前往天目山。万木葱茏、悬泉飞瀑的山中,暑气随海拔递增而逐渐褪去;内心则与天光、树影、流水、虫鸣一起,走向绵长与丰富。
杭州出发约一小时车程,一段恰到好处的旅途,从都市快节奏中出离,当青山云影映入车窗,城市喧嚣与燥热被远远隔绝于身后。在这片被时间珍藏的避世净土上,天目山晓城就轻落在这里。属于晓城的天目山夏日生活,在动与静,诗与乐中,生动而丰盈地一一呈现,让人很难不一眼心动。
时夏方长——爱上天目山的100个理由
为什么会爱上夏天的天目山?或许,100个人心中,有100个不同的理由。
作为国内十大避暑名山,这里大树蔽日,枝繁叶茂,空气澄净,在最炎热的夏季,山上的温度也保持着20+℃的凉爽,这样的温度下,即使沿着蜿蜒的山路走上一程,也不觉酷热难耐;
天目山实景图
这里生活着7000多种动物,2600余种植物,可以让你和孩子在这里探索一整天;这里清泉遍地,峡谷丛生,是夏季玩水的好地方。水边搭上帐篷,在清冽的山泉水中泡上西瓜、饮料,漂流、摸鱼、打水枪,解锁正确的夏日午后时光。
玩累了,在周边找一家农家菜馆,天目山笋、竹林鸡、土鸡蛋、小香薯......每一道都烟火气十足,踏实且落胃。饭后再泡上一杯青顶茶,消暑又解腻。
天目山的夏天,拥有着无边的自在想象,属于每个热爱自然、享受自然的人们。
🌼 杭州上春山攻略🌲
在杭州登山踏春,可能第一时间想到的是西湖群山。但在距杭州西不到一小时车程的地方,还有一座“一山未尽一山登”的天目山也值得去打卡。
📍【位置】临安区天目山镇
🚘【交通】市中心自驾出发,通过天目山路隧道抵达杭州西收费站,进入杭徽高速即可直达
NO.1️⃣登山路线推荐
→西天目山风景区
天目山分东、西天目,西天目山是一片原始森林,世界最大古树群落、大树王、世界银杏之祖都在这里,建议直接去西天目山,前往大树王景区。
可在山脚坐旅游大巴,直接到山顶,著名景点都在那里。
打卡路线:半月池一九龙壁一开山老殿一大树王一新大树王一五世同堂(世界银杏之祖)一四面峰,全程步行约两小时。
🌲【九龙壁】这里是可以近距离接触千年古树的地方,适合拍个森系照片
开山老殿:天目山有很多寺庙,开山老殿就是其中之一,红墙黑瓦非常出片
🌲【大树王】两千三百岁树龄,乾隆赐名“大树王”。目前已经枯了,远处拍个照就好了
🌳【新大树王】继老树王后发现的一个新树王,适合拍照
🌳【五世同堂】:开山老殿下方有一棵野生银杏。周围生出幼树20多棵,就像祖孙五代同处一世,这里拍照也很出片
🌳【四面峰】沿山路上去,就是四面峰,是大树王景区最佳观赏点之一,是天目山第一奇绝处也,适合俯瞰群山、远眺赏景
→天目山晓城
爬完山后,建议去天目山晓城逛逛。这里适合带上老人孩子一起来玩,可体验自然研学、亲子户外、网红打卡、山野农耕、院落生活等。
🏠【唐风合院】这里就像一片古代私家园林,高墙青瓦、假山草木,适合唐风打卡、赏景观鱼、围炉煮茶;
🦌【鹿可卢可农场】比较网红的亲子户外游乐场地,可体验彩虹小火车、露营飞盘、烧烤茶歇等;
🪲【自然探索乐园】由专业展陈团队倾情打造运营,适合和孩子一起研学、制作标本、探索森林等;
🌽【四季牧歌】这里会根据季节种植不同农作物,春季可在这里体验作物播种、耕作等;
NO.2️⃣住宿推荐
【天目山英迪格酒店】
住宿可选择位于天目山晓城内的洲际旗下的英迪格酒店。奢华的酒店客房体验,森邻餐厅的当地特色美食,更有酒店泳池、健身区、酒吧及更多酒店定制服务。
心归晓城 天目山居 如你所院
建面约90-160㎡现房合院,更有桃李春风后断供多年的90㎡平层合院重出江湖,同时首创100多㎡四开间二层合院。得益于低容积率,每个户型面宽都“极致扁平化”,彰显小户型、大宅感之韵。
90㎡样板间实景图
其中主力户型建面约114m² 风华满园,可设计三室两厅四卫,厅堂疏朗,超高得房率。
114㎡样板间实景图
建面约140㎡ 风韵悠然,可设计四室两厅四卫,朗阔空间,奢配套房主卧。
栖居于此,青山、森海、鸟鸣、流瀑、田园、小院交相辉映,在天目山麓的时光里,与向往的生活不期而遇。
合院实景图
天目山晓城现有90-160㎡的现房合院在售,产权为40年,总价约300万起。这样的价格对于追求品质生活的购房者来说无疑是一个极具吸引力的选择。
在这里,你可以用相对亲民的价格享受到别墅级的居住体验,让生活回归本真,让心灵得以自由飞翔。
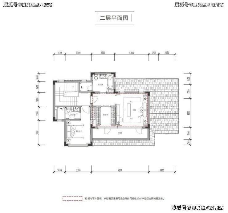
以约142㎡户型为例,可设计为4房4卫,一楼奢适的餐客一体大方厅,可作为一家人的度假生活中心,二楼还拥有两个套房,带孩子和父母周末小住、更带有约110㎡花园,足够你种上一圈花草修竹,摆一个茶几两把躺椅,夏天果树成荫,冬天红梅傲立,生活的烟火气立马就出来了。
天目山晓城建面约142㎡户型图
142㎡户型为例,面宽约15.2米,标准4房4卫。一楼是约7.2米长的双面采光大横厅,除了老人套房,还有个向院子伸出的“X空间”。它既能用作茶室、棋牌房,也能成为私密的客卧。拥有两个套房,主卧还是带南向独立衣帽间+带浴缸卫生间+露台“满配套房”!无论采光还是实用性,都碾压普通合院。
花园之上,当然还有滨江傲人的建筑品质。屋顶是和湘湖里一脉相承的J型和瓦,木作是更耐久的“铝代木”,落地窗是双层中空玻璃。
要知道一般同面积段合院,通常3开间南,面宽10米出头。一楼带老人房,二楼挤着3个房间,主卧没有独立衣帽间。相比之下,天目山晓城的“极致扁平化”合院,住起来爽太多了。

140㎡样板间实景图
【户型图集】
综上所述,临安天目山晓城以其独特的地理位置、建筑设计、超低容积率以及全方位的生活乐园构想成为了众多购房者心中的理想之地。在这里,你不仅可以享受到自然与文化的双重滋养,更能找到属于自己的那片心灵净土。如果你也向往这样的生活,不妨来天目山晓城一探究竟吧!
临安 滨江•天目山晓城 唐风合院 现房交付即买即住 总价180万起
当然,除了五星级的英迪格酒店外,天目山晓城还有各类农场、乐园、菜地、果园、唐风合院等配套,住在这里,不论是老人还是孩子,都可以充实而又愉悦地度过这个暑期。晓城内的鹿可卢可农场,占地规模约130亩,可以开展农耕、研学、烧烤、露营、团建、年会等活动...
自然探索乐园占地3000㎡,四个展厅足够小朋友疯玩一整天,在这里,可以肆意感受到天目山的各类动物植物...孩子喜欢在树荫下看蚂蚁搬家,也喜欢和邻家的孩子一起玩过家家;母亲和太太偏爱莳花弄草,就连爱宠也有了撒欢的天地;

心归晓城 天目山居 如你所院
不来一套“天目避暑小院”,都不好意思自称滨粉。建面约90-160㎡现房合院,更有桃李春风后断供多年的90㎡平层合院重出江湖,同时首创100多㎡四开间二层合院。建筑形制包含1-2层,其中一层的层高为3.6米,二层为3.2米。
天目山晓城现房实景图

滨江·天目山晓城售楼处电话:400 886 7015 ✅✅【营销中心】
如有问题欢迎来电咨询,专业一对一热情服务,让您用专业眼光去买房。
置业顾问TEL:130 7088 7623【微信同步】尊享一对一专业置业热情服务〢
声明:本文由入驻焦点开放平台的作者撰写,除焦点官方账号外,观点仅代表作者本人,不代表焦点立场。
