天目山晓城丨临安唐风现房合院(天目山晓城)最新房价丨2025楼盘评测|滨江天目山晓城最新价格|户型配套
扫描到手机,新闻随时看
扫一扫,用手机看文章
更加方便分享给朋友
杭州临安◆唐风合院◆滨江天目山晓城🔻售楼热线:☎ 400 832 8823「售楼处」☎〢网上售楼中心〢🔻
➖➖➖➖➖➖➖➖➖➖➖➖➖➖➖➖➖➖➖➖➖➖➖➖➖➖➖➖➖
🔻◆置业顾问:☎ 156 0653 2539「微信同步」☎〢🔻专业一对一热情服务〢◆看房需要提前电话预约,避免可能案场无人接待!◆提前预约可享内部优惠〢匠心钜制-恭迎您的品鉴〢
提供全天候直通售楼处服务,以及置业顾问1对1服务,方便客户预约看房。
⑉⑉⑉ıllı⑉🔻滨江天目山晓城售楼处(周一至周日 9:00--18:00)一对一咨询🔻看房需要提前电话预约,避免可能案场无人接待!提前预约可享内部优惠〢匠心钜制-恭迎您的品鉴⑉ıllı⑉⑉
天目山晓城位于天目山麓的滨江·天目山晓城,汇集了山林的灵气,这里不止提供一处自然深处的栖居地,重要的是将引导都市人活出向往的生活。如今,随着晓城实景呈现,这座900余亩的亲旅小镇,成了人们爱上天目山的又一个重要理由。
杭州出发约一小时车程,一段恰到好处的旅途,从都市快节奏中出离,当青山云影映入车窗,城市喧嚣与燥热被远远隔绝于身后。在这片被时间珍藏的避世净土上,天目山晓城就轻落在这里。属于晓城的天目山夏日生活,在动与静,诗与乐中,生动而丰盈地一一呈现,让人很难不一眼心动。
一横,天目山路;一纵,莫干山路。
它们既划定了杭州老城区的中轴,也意味着,夏天从市中心驱车直达天目山、莫干山避暑消闲,是政商名流们一直以来的“刚需”。
滨江·天目山晓城,才发现:滨江从未停止“造梦”,而是花了整整7年,砸下15亿,直接把梦想变成现实。
在这里,滨江打造了366席唐风合院,约0.3超低容积率,每户都享有超大的花园庭院,和可以耕云种月的四季牧歌良田。
滨江天目山晓城位于杭州市临安区,是一个集居住、度假、亲子、娱乐、运动、康养于一体的综合性社区。项目以中式别墅为主打产品,面积从90平到160平不等,总价从180多万元起售,适合自主养老和家庭度假。
西天目山景区:距项目约9.5km,为国家级森林和野生动物类型自然保护区,素以飞泉、奇石、云峰、大树、庵宇、茶笋“六绝”著称,自古以来就是宗教名山和旅游胜地。其中乾隆御封的大树王,曾齐名灵隐寺的浙江名刹——禅源寺等均为西天目必打卡景点,流连于此,领略大树华盖、钟灵毓秀的天目盛景。
东天目山景区:距项目约12km,景区主要分布休闲胜地——桃树湾度假区,山水画廊——东瀑大峡谷,朝佛之途——西瀑大森林,佛教圣地——昭明大禅院,成佛之路——天目大仙峰五个区块,揽胜奇丽山水,开启心灵虔旅。
火山大石谷景区(天目大峡谷):距项目约13km,以森林、奇石、碧潭、飞瀑、火山口、冰川遗迹构成一条壮观的山野长廊;
太湖源景区:距项目约16.5km,太湖的主源头坐落于此,故名太湖源。景区内绝壁夹峙,清溪长歌,悬瀑飞泻,野猴成群,生态与九寨沟相似,故被誉为“小九寨沟”。
待到傍晚时分,前往不远处的四季牧歌,在自家菜园子里收获足够全家人食用的蔬果,小院华灯初上、烟火氤氲......
铺满阳光的院子,是全家人安放闲趣的主场。茶香氤氲的院落,偶有几只鸟划过,先生陪父亲练习太极,既锻炼了身体,也舒缓了心情。
无界开放的视野,在宴遇宾客、一日三餐的重要时刻,款待家人,更款待心境;二楼的露台,趁着秋日午后,温一壶清茶小坐,拂醉远处的山色,也不失为一种乐趣。
杭州天目山的英迪格酒店,拥有精品客房和独立别墅,183个房间。其邻里文化受启发自天目山-大树王国这座古老森林。
除了配备健身房、室内恒温泳池、儿童中心等设施,酒店还有带独立包厢的森邻餐厅,提供主厨定制菜单,还原原生态邻间美食。
占地约130亩的鹿可卢可农场,包含萌宠乐园、农旅研学、烧烤茶歇以及轻奢露营等业态。朋友圈里很多家长慕名打卡后,还想带着孩子二刷甚至三刷......
在这里,孩子们最初的童真被唤醒、成年人的生活压力能够得到释放,全身心地沉浸在自然、萌宠和田园的野趣中。
对了,小镇里还有一条天目in66商业街,包圆了业主们的餐饮、休闲等众多生活配套。
户外逛累了,室内的“自然探索乐园”同样精彩。
这座乐园由德寿宫原班人马打造,包含探索自然、探秘天目山、自然艺术乐园以及森林游乐园等展厅,就像一座“博物馆+游乐园”的结合体。
这些,还只是天目山晓城的一小部分......
在天目山晓城,多样的配套使得无论是度假还是长住,每天的生活都能过得不重样。

光是丰富的设施,就足以让无数人心驰神往。而天目山晓城最让人着迷的,还是那已经现房呈现的,366套中式合院。
天目山晓城的合院地块,容积率竟然只有约0.3!
什么概念?这样的容积率,甚至比杭州九溪玫瑰园、江南里这样的顶豪还要低!
在这超低容积率之上,久负盛名的GAD蒋愈和贝尔高林联手挥毫,最终才有这建筑形制1-2层,呈现出迷人唐风的独特合院。
还记得多年前的桃李春风,首次让人们感受到了八九十方合院的魅力。一夜之间火遍大江南北,一房难求。
如今在天目山晓城,建面约90㎡的合院竟然再度出现了!比起曾经的90㎡合院,天目山晓城可设计成更加实用的三房两卫。得益于超低的容积率,合院的花园比接近1:1。一套90㎡的小户型,花园就有近100㎡!
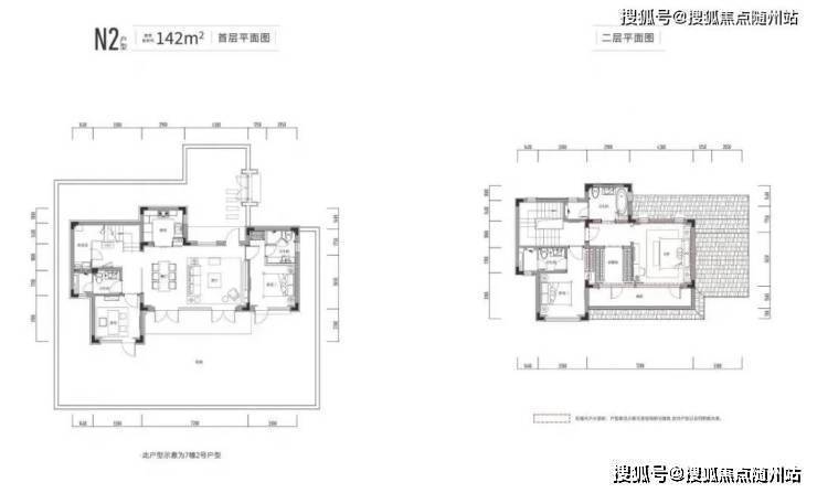
更加主流的是建面114㎡和140㎡的户型。
其中建面约140㎡毛坯户型,精装修时可设计成四房两厅四卫的格局,四开间朝南,南向面宽将近15.2米!天目山晓城 🔶 售楼中心(本文摘要:最新什么房价价格面积房源优惠折扣,楼盘信息资料项目介绍,售楼处电话售楼处位置在哪里,小区周边配套,新房样板间户型图照片及交付时间交房时间开发商是哪个团购,是精装修还是毛坯的怎么样)#天目山晓城#滨江天目山晓城#天目山别墅
一层的客厅长约7.2米,庭院内的景致尽收眼底。
此外,还可设计一个老人套房;南向的另一个房间,可根据需求用作客卧、茶室或是棋牌室。
二层则可以设计成两个套房,主卧自带走入式衣帽间+浴缸+7.2米的露台,配置和舒适度直接拉满!
凭栏远眺,视线掠过湘湖里同款的J型和瓦,轻轻地落在苍翠的山林间;夏夜观星,举杯对饮,入口皆是生活中的小确幸。
更加梦幻的是,天目山晓城的每一户家庭,都可以分到一份田地!
在天目山晓城的“四季牧歌”里,辣椒、番茄、土豆、西瓜......但凡你想吃的,通通都能安排上,在农耕中感受最质朴的快乐。





杭州临安◆唐风合院◆滨江天目山晓城🔻售楼热线:☎ 400 832 8823「售楼处」☎〢网上售楼中心〢🔻
➖➖➖➖➖➖➖➖➖➖➖➖➖➖➖➖➖➖➖➖➖➖➖➖➖➖➖➖➖
🔻◆置业顾问:☎ 156 0653 2539「微信同步」☎〢🔻专业一对一热情服务〢◆看房需要提前电话预约,避免可能案场无人接待!◆提前预约可享内部优惠〢匠心钜制-恭迎您的品鉴〢
提供全天候直通售楼处服务,以及置业顾问1对1服务,方便客户预约看房。
⑉⑉⑉ıllı⑉🔻滨江天目山晓城售楼处(周一至周日 9:00--18:00)一对一咨询🔻看房需要提前电话预约,避免可能案场无人接待!提前预约可享内部优惠〢匠心钜制-恭迎您的品鉴⑉ıllı⑉⑉
声明:本文由入驻焦点开放平台的作者撰写,除焦点官方账号外,观点仅代表作者本人,不代表焦点立场。
