2026松川境售樓处〈松川境〉官方網站↓萧山松川境欢迎您↓〈杭州松川境〉 楼盘百科→松川境→杭州房产天下
扫描到手机,新闻随时看
扫一扫,用手机看文章
更加方便分享给朋友
▰▰ 杭州萧山区 滨江·兴耀 松川境 火热销售中 ▰▰ 在杭州“拥江发展”的战略蓝图上,奥体板块作为城市级核心,始终占据着价值顶峰。而位于奥体南·市北西板块核心的滨江兴耀·松川境,以静奢美学理念重新定义杭州顶序人居标准。
这一由滨江集团与兴耀房产联袂打造的作品,以1.8的超低容积率规划232户纯粹住区,融合滨江豪宅基因与兴耀独立美学,成为奥体板块难得的低密墅境住区。
项目坐落于建设四路与金鸡路交汇处东侧,距奥体中心约2.5公里,享受双地铁7号线(已运营)和15号线(规划中)的便捷交通,2站即达奥体中心,3站直达市民中心,区位价值无可替代。
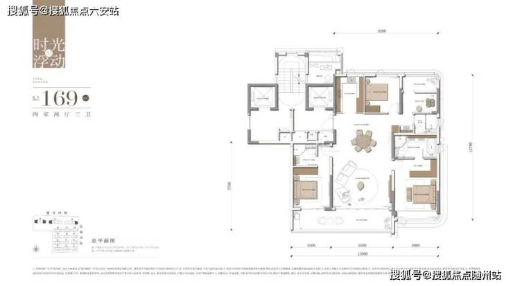
松川境首开即创下28%的中签率并当日售罄,市场热度印证了其过硬的产品力与超高的质价比。项目目前主推建面约169-199㎡墅境大平层,均价约46166元/㎡,堪称奥体核心区的价值洼地。
与周边二手房存在价差,叠加板块内土地资源日益稀缺,项目以其卓越的产品力和品牌溢价能力,成为杭州改善客群争相珍藏的“价值高地”。ᨐ🔴 滨江兴耀松川境 ☎️售楼处热线:400 998 1136 ® ☎️ 159 2411 2721﹝已认证﹞ᨏ
✦ 滨江集团豪宅基因X兴耀房产独立美学 ✦
✦ 奥体静奢美学作品 杭州顶序新答案 ✦
✦奥体芯 天街旁 改善热盘💎均价46166元/㎡
✦面积约169-199㎡高配住宅大平层
✦近地铁|2站奥体|3站SKP |天街旁
✦超1500m²泛会所,下沉庭院、恒温泳池
✦ 诚意惊喜价𝟒𝟓𝟎𝟔𝟔元/㎡ 极致质价比❤️
✦ 静奢美学 墅境住区 续写奥体独立行情

不限价后,杭州的豪宅项目纷纷卷设计、卷公区、卷用料,由杭州两大本土品牌房企滨江和兴耀联合打造的松川境也不例外。
约80米宽的小区入口;约6.5米高的熔铜大门;全小区用了10余种名贵石材;园区内约1500㎡的下沉式会所在同价位项目中更是独树一帜,恒温泳池、健身房、私宴厅、瑜伽室等功能,几乎涵盖了改善家庭绝大多数的生活需求。
ᨐ🔴 滨江兴耀松川境 ☎️售楼处热线:400 998 1136 ® ☎️ 159 2411 2721﹝已认证﹞ᨏ


建筑立面上,超70%的大面积全面屏玻璃与铝板的组合,既保证了建筑的现代感,又通过材质的变化丰富视觉体验。
当然,松川境之所以能在众多改善盘中脱颖而出,靠的不仅仅是豪华公区,项目营造豪宅质感的同时,没有忽视改善家庭对居住空间的舒适度要求。
首先,松川境容积率仅1.8,是目前奥体板块在售项目中容积率最低的,这样的低容积率,使得项目整体呈现的状态更为宽阔舒朗。其次,松川境的高层房源100%南向厅堂,且栋栋皆楼王,朝南视野就是园区中央景观。
ᨐ🔴 滨江兴耀松川境 ☎️售楼处热线:400 998 1136 ® ☎️ 159 2411 2721﹝已认证﹞ᨏ

松川境的室内户型精装,更是奥体级品质的“满配表达”。
在大面宽、浅进深的单线制高层下,仅有169㎡和199㎡两个南厅户型,最小面宽达13米。搭配全面屏玻璃,采光通透如IMAX巨幕。
17层的小高层,更为松川境带来超90%的得房率。在你感叹空间魔法的时刻,或许已经不经意踏入它的拓展空间了。
ᨐ🔴 滨江兴耀松川境 ☎️售楼处热线:400 998 1136 ® ☎️ 159 2411 2721﹝已认证﹞ᨏ
松川境169㎡户型示意图
类一梯一户的设计,让归家有了独属的仪式感,把私密等级也提高到了最大限度。
推开门即见近50㎡的餐客厅,无论是传统家庭钟爱的6人位圆桌,还是年轻人追求的极简长桌,都能妥善放置。
放下一组异形沙发,孩子仍有足够跑跳的空间。
南向双套房分立客厅两侧,让老人房或儿童房与主卧互不干扰,每一个家庭成员的私人空间也都有了保障。
ᨐ🔴 滨江兴耀松川境 ☎️售楼处热线:400 998 1136 ® ☎️ 159 2411 2721﹝已认证﹞ᨏ
松川境169㎡样板房软装实景图
而在主卧,你也能享受到作为这套房子主人,最尊崇的归属感。不仅有带转角的飘窗,浴缸、双台盆、大衣帽间一应俱全,还贴心的配置了美妆冰箱。
9米长2米宽的跑道式阳台,是家中的“X空间”。莳花弄草只是基础操作,露营帐篷和烧烤架也能随时安排上,甚至还能为女主人放下一台普拉提核心床。
北向拓展区可以是茶室或游戏房,也可以是一处私人藏馆。在这扇窗外,便是“奥体第一海拔”——杭州之门。
ᨐ🔴 滨江兴耀松川境 ☎️售楼处热线:400 998 1136 ® ☎️ 159 2411 2721﹝已认证﹞ᨏ
松川境169㎡定制装甲门实景图
整套房子,从定制装甲门、全屋WiFi、餐客厅主卧的电动窗帘电机,到雪山银狐客厅背景墙,还有地板和大理石的多样拼花,均是交标。
厨房配有空调,油烟机还是方太万元侧吸系列,这对厨房主理人来说,全是贴心的关爱。博世五件套中,还全嵌入两台8系顶配全进口冰箱,这在杭州5万内项目中,只此松川境一家。
可以说,松川境让奥体豪宅的精装又进入一个新境界。
ᨐ🔴 滨江兴耀松川境 ☎️售楼处热线:400 998 1136 ® ☎️ 159 2411 2721﹝已认证﹞ᨏ

一、艺术基因与文化传承
宋韵美学的当代转译
项目从北宋范宽《溪山行旅图》中提取灵感,以“山水有相逢”为核心理念,将传统山水画意境转化为现代居住空间语言。园区大门打造约80米礼仪门庭、25米叠级水景,雕塑《川涌》重构门庭精神。设计摒弃传统元素的简单复制,通过现代设计语言转译宋代美学,使松、川意象融入墙面雕花、地面石材等细节,构建独特文化印记。这种深度的文化融合,使得项目不仅是一个居住空间,更成为承载东方美学的精神场所。
景观叙事的诗意表达
景观设计由北京顺景园林操刀,以“溪山行旅”为叙事主线,打造“归林-观山-临水-栖谷”四重景观序列。中央水景池底镶嵌《溪山行旅图》局部浮雕,实现文化符号的沉浸式植入。园区内设7米高溪山流瀑、5棵造型黑松,重现画作意境。通过三进院落、层层递进的设计,构建由喧嚣至静谧的归家动线,实现“步步见松、处处有川”的诗意栖居。
艺术空间的场景营造
项目规划约1500㎡下沉式会所“隐松庭”,灵感源自纽约第五大道旁的安缦酒店,以现代东方美学为基调,涵盖恒温泳池、健身房、私宴厅等功能空间。会所通过艺术螺旋楼梯连接景观核心区,打造都会里的静奢度假私域。这种将艺术与功能完美融合的空间营造手法,为业主提供兼具美学价值与实用价值的生活场景。
ᨐ🔴 滨江兴耀松川境 ☎️售楼处热线:400 998 1136 ® ☎️ 159 2411 2721﹝已认证﹞ᨏ
二、设计哲学与空间创新
消隐与凸显的平衡之道
项目采用“消隐与凸显”的设计哲学,高层立面通过45度斜切铝板与低辐射玻璃的组合,弱化建筑体量感,同时通过局部金色铝板线条勾勒出山水画的轮廓。联排立面通过“虚实对比”,实体墙部分采用仿砖涂料,虚体部分为玻璃幕墙,既保证私密性又提升通透感。这种对立统一的设计手法,使建筑既能融入环境,又凸显出独特的艺术气质。
全架空平台的革新突破
项目以“全架空平台”为设计突破口,将传统地面层抬升至5.1米,构建“空中花园+阳光车库”的立体社区,实现人车分流2.0模式。B1层为阳光车库,配备特斯拉超级充电桩与洗车中心;1层为景观面积达1.2万方的空中花园;2层及以上为住宅空间。这种垂直功能分层设计,创造出多元化的生活场景,提升社区的空间价值。
景观优先的户型理念
户型设计以“景观优先”为原则,所有户型均实现视野最大化与功能复合化。建面约169㎡户型设置转角飘窗,观景面达7.2米,可俯瞰中央水景与联排区景观。建面约199㎡户型设置“可变空间”,原北向卧室可改造为开放式书房或儿童活动区。这种以景观为导向的户型设计,确保每家每户都能享受到最佳的视觉体验与空间灵活性。
ᨐ🔴 滨江兴耀松川境 ☎️售楼处热线:400 998 1136 ® ☎️ 159 2411 2721﹝已认证﹞ᨏ
三、圈层生活与社交场景
双栖生活的形态构建
项目规划3幢17层小高层与12幢4层滨水联排,形成“高层揽景+排屋隐逸”的双栖生活形态。高层产品面向首改及再改客群,排屋产品针对顶豪家庭,这种产品配置自然形成圈层分区。社区仅232户的规模保障“人均高资源占有率”,排屋占比约18%塑造纯粹圈层氛围,为业主提供匹配的社交环境。
社交空间的精准营造
通过会所、景观连廊、私宴厅等空间,围合高端社交场景。下沉式会所“隐松庭”涵盖恒温泳池、健身房、私宴厅、会客厅及书吧等功能,成为社区邻里交流与家庭休闲的重要场所。社区还规划中央戏水池、林下茶座等12处功能空间,满足不同年龄段业主的社交需求,营造具有圈层文化的生活社区。
定制服务的专属体验
项目采用宝格丽酒店式金钥匙服务,为业主提供定制化服务体验。社区活动与定制服务契合塔尖人群对私密、尊享生活的需求。这种针对高端客群量身打造的服务体系,不仅提升居住品质,更强化社区凝聚力,构建和谐邻里关系。
ᨐ🔴 滨江兴耀松川境 ☎️售楼处热线:400 998 1136 ® ☎️ 159 2411 2721﹝已认证﹞ᨏ
四、技术应用与创新突破
绿色科技的全面融入
项目采用三玻两腔Low-E玻璃幕墙实现40%节能率,毛细管网辐射系统维持室内恒温恒湿,三重降噪设计确保45分贝静音标准。这些绿色技术的应用,不仅提升居住舒适度,也体现项目可持续发展的理念。地下车库采用“阳光车库”设计,通过自然采光减少能源消耗,实现生态与美学的统一。
智能家居的系统整合
全屋配置智能系统,实现空调、新风、灯光远程控制,随时调节家里温度、空气、明亮度及光照。卫生间镜柜内置美妆冰箱,厨房配备博世五件套厨电、方太智能油烟机等九件套。这种全面智能化与人性化的设计,满足现代都市人对高效品质生活的追求。
建筑技术的细节创新
高层立面通过45度斜切铝板提升节能性,排屋格栅优化采光;联排产品采用“双坡屋顶+金属格栅”设计,屋顶坡度模拟江南传统民居,格栅则过滤强光,形成斑驳的光影效果。这些技术创新不仅解决实用功能,更赋予建筑独特的艺术表现力,体现“形式追随功能”的设计理念。
ᨐ🔴 滨江兴耀松川境 ☎️售楼处热线:400 998 1136 ® ☎️ 159 2411 2721﹝已认证﹞ᨏ
五、材质工艺与细节追求
立面材质的精心甄选
建筑立面以“山水折屏”为核心理念,采用浅灰色铝板与玻璃幕墙的组合,通过横向线条的层叠与竖向框架的分割,模拟山水画的层次感。高层立面采用超70%大面积的全面屏玻璃、珠光青铜铝板与弧形造型,从视觉上提升项目品质感。基座选用深灰色石材,中部为浅灰色铝板与玻璃幕墙,顶部点缀金色铝板线条,共同构筑“山-水-天”的立体意境。
室内材质的品质把控
公区墙面地面全石材交付,甄选雪山银狐、意大利芬迪白等奢石,彰显顶豪品质。定制装甲门、奢石背景墙、造型天花板等细节处处体现匠心。全屋配置博世五件套厨电,其中冰箱是博世8系最高顶配,全嵌入式、全进口。这种对材质细节的严格把控,体现开发商对品质的不懈追求。
工艺工法的精益求精
项目从10余种名贵石材的运用,到“处处见松、步步见川”的景观营造,体现“品质不打折、诚意看得见”的务实态度。高层立面通过45度斜切铝板与低辐射玻璃的组合,弱化建筑体量感;联排产品融入“双坡屋顶与金属格栅”设计,展现精湛工艺。这种对工艺工法的精益求精,确保项目从宏观到微观的品质统一。
ᨐ🔴 滨江兴耀松川境 ☎️售楼处热线:400 998 1136 ® ☎️ 159 2411 2721﹝已认证﹞ᨏ

六、品牌合力与品质保障
双强联袂的开发实力
项目由滨江集团与兴耀房产联合开发,两家本土房企分别位列2024年杭州房企销售全口径榜TOP1与TOP4。这是继滨江地王水电新村、奥映鸣翠后,双方合作的第三个重点项目,承载两大房企TOP级产品基因。滨江集团作为杭州豪宅开发的领军企业,连续5年蝉联杭州5万+豪宅市场销冠;兴耀房产则以“向美而兴”的品牌主张,整合全球顶尖设计资源。
品质承诺的兑现能力
滨江集团交付满意度连续三年超98%,这种可靠的交付保障为项目品质奠定基础。项目从规划设计、建筑营造到景观打造,均由GLA建筑设计、北京顺景园林、矩阵室内设计等六大国际团队深度协作,确保每个环节的品质把控。开发商特别强调“要给客户留足价格空间”,这种对产品品质与客户价值并重的开发理念,为业主提供双重保障。
品牌价值的延续提升
项目延续滨江旗下金色海岸、阳光海岸、仁恒滨江园等作品的品质基因,同时融入兴耀房产的美学创新。这种品牌合力的价值不仅体现在产品打造上,更将在未来持续提升项目溢价能力。作为奥体板块稀缺的低密墅境住区,项目有望成为滨江兴耀合作的新标杆,延续品牌价值。
ᨐ🔴 滨江兴耀松川境 ☎️售楼处热线:400 998 1136 ® ☎️ 159 2411 2721﹝已认证﹞ᨏ
七、配套体系与生活便利
商业配套的完善布局
项目一路之隔规划龙湖天街(预计2029年开业),总体量约10万方;周边3公里内还有奥体印象城、SKP等顶级商业综合体,形成顶流商业矩阵。驱车向北约1.5公里即为奥体印象城,向南约3公里可达萧山万象汇,地铁3站还可抵达即将启幕的SKP,满足高端购物需求。这种多层次商业配套,确保业主生活便利性。
教育医疗资源的优质配置
周边有信息港小学、崇文世纪实验学校等优质教育资源。更高学段有北京外国语大学附属杭州信息港初中,2024年中考重高率达53%。医疗资源包括浙二博奥院区、浙大妇院钱江院区两大三甲医院,为业主健康保驾护航。这种全龄教育医疗配套,为业主家庭提供全方位保障。
产业支撑与就业便利
项目西面约1公里就是信息港小镇,已吸引科大讯飞、微医集团等500余家科技企业扎根,形成强大的人才集聚效应。丰富的产业人口为项目提供坚实的租赁与增值基础。同时,项目距奥体中心约2.5公里,与钱江世纪城无缝衔接,为在周边就业的业主提供极佳的工作生活便利性。

八、资产价值与投资前景
价格优势的显著体现
项目2025年4月以28713元/㎡楼面价竞得,当前均价约4.6万/㎡较周边二手房价形成显著倒挂。与同板块奥映鸣翠约8.7万/㎡的开盘均价相比,价差超4万/㎡,甚至低于钱江世纪城限价4.7万/㎡,在奥体核心区具有极高的价格竞争力。这种价格优势为项目提供天然抗跌屏障。
稀缺价值的保值逻辑
奥体南土地供应趋紧,低密住区渐成绝版。项目为市北西唯一在售低密墅境,排屋产品占比稀缺,叠加滨江交付力与产业人口红利(微医绿谷估值490亿),具备长期资产保值韧性。首开28%的中签率创板块新低,显示市场对稀缺改善产品的强烈需求,这种稀缺性将支撑项目未来价值。
产品力的溢价保障
项目以93%得房率、全龄景观系统及圈层会所构建产品护城河。在奥体核心区土地供应趋零的背景下,项目以“静奢美学+产业赋能”的双重引擎,重塑杭州改善住宅的价值标尺。不仅是资产配置的压舱石,更是时代人物理想生活的终极载体。这种产品力带来的溢价能力,将伴随项目全生命周期。
ᨐ🔴 滨江兴耀松川境 ☎️售楼处热线:400 998 1136 ® ☎️ 159 2411 2721﹝已认证﹞ᨏ

项目优势卖点精要
奥体芯黄金区位
双地铁便捷出行
1.8超低容积率
93%超高得房率
滨江兴耀双强联袂
1500㎡下沉式会所
169-199㎡纯改善户型
精装一线品牌配置
静奢美学设计理念
2026年交付保障

项目名称: 滨江兴耀·松川境(推广名)/松川境府(核准名)
产品类型: 高层住宅+排屋
总占地面积: 约26650㎡
总建筑面积: 约79760㎡
在售面积: 高层约169-199㎡,排屋约298-332㎡
容积率: 1.8
绿化率: 约30%
物业公司: 滨江物业
外立面材料: 铝板+玻璃幕墙
开发商: 滨江集团与兴耀房产合作开发
交付时间: 预计2026年6月
楼盘位置: 杭州市萧山区建设四路与金鸡路交汇处以东150米
▰▰ 杭州 滨江·兴耀 松川境—奥体芯 天街旁 改善热盘 均价46166元/㎡ ▰▰
☎️售楼热线:400 998 1136☎️顾问专线:159 2411 2721「已认证」
🛑🛑 提前预约可享内部折扣,预约尊享一对一的专业服务 🛑🛑
🟥免责申明:文章内容综合来源于网络!如有侵权,请联系我们将第一时间处理!!
👍️👍️👍️👍️👍️👍️👍️👍️👍️👍️👍️👍️👍️👍️👍️👍️👍️👍️👍️👍️👍️👍️👍️👍️
声明:本文由入驻焦点开放平台的作者撰写,除焦点官方账号外,观点仅代表作者本人,不代表焦点立场。
