天目山晓城‖2025最新房价·楼盘详情点评‖(临安天目山晓城)首页头条-杭州房产天下丨天目山晓城-2025楼盘评测-最新价格-户型配套

搜狐焦点随州站 2025-09-02 00:55:00
用手机看
扫描到手机,新闻随时看

扫一扫,用手机看文章
更加方便分享给朋友

这样的机会,注定属于少数懂得把握的人#滨江天目山晓城,用一座合院,装下你对生活的所有想象🎉🎉🎉ᨏᨐ🔴天目山晓城营销中心☎️置业热线:4009981136®☎️15924112721﹝已认证﹞ᨏᨐ 滨江…

▰▰ 滨江•天目山晓城 | 临安现房 唐风合院 ▰▰🏕️#滨江晓城唐风合院,圆你杭州一个枕山而居的梦;当都市的喧嚣让人愈发渴望一方静谧天地,滨江天目山晓城的唐风合院,#正以220万级的惊喜总价,成为杭城楼市的现象级爆款,让向往的生活不必久候。[庆祝][爆竹][爆竹]

洲际英迪格酒店近在社区;鹿可卢可农场与自然探索乐园,是孩子们的天然游乐场,在这里认识农作物、追逐萤火虫,让成长与自然紧密相连;更难得的是专属菜地与果园,春种秋收间,体验农耕乐趣,收获新鲜果蔬🥬让都市人重拾田园生活的本真🌽

220万级在杭州或许只能勉强拿下一套刚需小户型,却能在滨江天目山晓城,拥有一座有天有地的唐风合院,坐拥山水资源与完善配套。当别人还在为期房忐忑,你已在庭院里煮茶观山;当孩子被困在钢筋水泥,你的家人正在农场里亲近土地。

这样的机会,注定属于少数懂得把握的人#滨江天目山晓城,用一座合院,装下你对生活的所有想象🎉🎉🎉ᨏᨐ 🔴 天目山晓城 营销中心 ☎️置业热线:400 998 1136 ® ☎️ 159 2411 2721﹝已认证﹞ᨏᨐ

❥┋🍀滨江•天目山晓城❤唐风合院

❥┋🍀现房唐风类独栋合院😊

❥┋🌸90-114-142-163㎡

└📸 #总价220万起🉐景区别墅🏡

▰▰ 滨江•天目山晓城 | 临安现房 唐风合院 ▰▰

🌈杭州天目山精品小镇合院 小别墅大院子[胜利]

🛑仅0.3的容积率越臻稀越追捧[太阳]

🌈惟此一座900余亩全维实景精品晓城!

🛑唐风现房合院❗️仅需220万级起

🌈最好的广告是客户的口碑✅

🛑最佳的证明是客户的复购✅

🌈好品质,让一切自然发生✅

🛑天目山晓城的含金量还再提升👍️👍️👍️👍️👍️

☎️顾问专线:159 2411 2721「售楼处已认证」

滨江天目山晓城:于天目山畔,启幕唐风合院里的理想生活

在都市化进程飞速发展的今天,寻觅一处既能安放身心、又可承载家庭梦想的居所,已成为众多都市人的心之所向。滨江天目山晓城,正以其独特的唐风合院产品、难以复制的生态资源与成熟完备的社区配套,在杭州楼市中脱颖而出,成为一个令人瞩目的现象级选择。它不仅提供了一个居所,更提供了一种回归自然、传承文脉、享受当下的生活方式。

滨江天目山晓城以其区位、产品、现房、价格、生态、配套、品牌和生活方式这八大核心价值,共同构筑了一个强大且立体的价值体系。它不仅仅是一个房产项目,更是一个为懂得生活、追求品质的城市精英们所准备的理想生活解决方案。

ᨏᨐ☎️ 天目山晓城 置业热线:400 998 1136 ® ☎️ 159 2411 2721﹝已认证﹞ᨏᨐ

得天独厚的区位优势与战略价值

滨江天目山晓城落子于杭州临安区,这是一片兼具发展潜力与生态底蕴的价值高地。临安作为杭州的重要新区,正积极融入杭州都市圈,享受着一线城市的经济辐射与政策红利,其发展前景备受瞩目。项目坐拥天目山脉的磅礴气象,远离都市核心区的喧嚣与拥挤,但却并非远离尘嚣,而是以一种“出则繁华,入则宁静”的姿态,重新定义了理想生活的距离。

相较于杭州市区内高昂的房价和密集的城市景观,这里以更为从容的尺度,为居者提供了广阔的自然空间和呼吸感。这种区位选择,精准地把握了当代高端改善人群渴望逃离喧嚣、却又不想脱离现代文明便利的核心诉求,使其成为杭城居住版图中一块难得的璞玉,价值潜力随着时间推移和区域发展有望持续释放。

ᨏᨐ☎️ 天目山晓城 置业热线:400 998 1136 ® ☎️ 159 2411 2721﹝已认证﹞ᨏᨐ

弥足珍贵的唐风建筑美学与文脉传承

项目最大的产品亮点,在于其匠心独运的“唐风合院”设计。唐代建筑以其气势恢宏、庄重大方、典雅浪漫的风格著称于世。天目山晓城汲取盛唐建筑精髓,通过深远的挑檐、雄大的斗拱、简洁的立面以及素雅的色彩,营造出既饱含文化底蕴又符合现代审美的人居形态。每一座合院都不仅仅是一处住宅,更是一件融于自然山水中的建筑艺术品。

这种风格的选择,超越了单纯的居住功能,上升至精神与文化层面的追求。它呼应了国人心中的文化自信与盛世情怀,让传统的居住智慧与现代生活理念得以完美融合。在千篇一律的现代建筑风格中,如此纯粹的中式合院产品显得尤为稀缺和珍贵,使得业主的居所具有极高的辨识度和审美价值,彰显出独特不凡的品位。

ᨏᨐ☎️ 天目山晓城 置业热线:400 998 1136 ® ☎️ 159 2411 2721﹝已认证﹞ᨏᨐ

即买即住的现房属性与安心保障

在期房交付存在诸多不确定性的市场背景下,天目山晓城的“现房”属性构成了其无可比拟的硬核优势。购房者无需经历漫长的等待期和担忧期房可能存在的品质风险,可以实现真正的“即买即住、即享即得”。

所见即所得,让购房决策变得更为清晰和安心。业主能够亲身实地考察,真切地感受到合院的每一处空间尺度、园林的一草一木、以及建筑工艺的细节品质,彻底杜绝了预期与实物不符的顾虑。

这种确定性,在当前的市场环境中为用户提供了巨大的心理安全感和价值保障。它意味着节省了宝贵的时间成本,无需承担等待期间的租金支出,能够即刻开启向往已久的山居生活,这种即时性的满足感是期房难以提供的核心价值。

ᨏᨐ☎️ 天目山晓城 置业热线:400 998 1136 ® ☎️ 159 2411 2721﹝已认证﹞ᨏᨐ

难以企及的价格优势与价值高地

总价220万级起,这个价格维度在杭州当前的房产市场中具有颠覆性的竞争力。在杭州主城区,同等预算或许仅能购置一套远离核心地段的小户型公寓,而在天目山晓城,却能拥有一座有天有地、有院有景的唐风合院。

这种强烈的对比,形成了极具冲击力的价值认知。它极大地降低了享受低密度、高品质院居生活的门槛,让原本看似遥不可及的别墅梦想,变得触手可及。这一定价策略,并非以牺牲品质为代价,而是基于对区域发展和项目规模的综合考量,为市场提供了一个极高的性价比选择。

对于寻求资产优化配置、追求生活品质跃升的购房者而言,这是一次将资金投入于更具成长性和享受型资产的重要机会,实现了资金效率与生活品质的最大化平衡。

ᨏᨐ☎️ 天目山晓城 置业热线:400 998 1136 ® ☎️ 159 2411 2721﹝已认证﹞ᨏᨐ

极致低密与生态资源的独占性

项目仅0.3的容积率,这是一个在杭州市场近乎绝版的指标。超低容积率直接意味着更少的建筑密度、更宽松的楼间距、更充裕的公共空间以及更为极致的居住舒适度。

它保证了社区的整体宁静与私密,确保了每一户都能享有充足的采光、通风和视野。900余亩的全维实景大盘规划,意味着社区内部就是一个自成一体的生态王国。业主推窗见景,出门即园,天目山的苍翠山脉成为日常生活的永恒背景板。这种与自然零距离的亲密接触,是城市高层住宅永远无法赋予的体验。

稀缺的生态资源与极致的规划指标相结合,共同构筑了一个难以被复制和超越的居住环境,为业主提供了独占性的自然资源享受。

ᨏᨐ☎️ 天目山晓城 置业热线:400 998 1136 ® ☎️ 159 2411 2721﹝已认证﹞ᨏᨐ

全维配套与沉浸式生活体验

天目山晓城致力于打造一个功能完备的“精品小镇”,而非单一的住宅区。引入洲际英迪格酒店,不仅提升了社区的高端商务与度假氛围,其配套的餐饮、会议等服务也为业主提供了极大的便利与尊贵体验。

更值得一提的是社区精心打造的鹿可卢可农场与自然探索乐园,它为家庭,特别是儿童,提供了一个绝佳的自然教育课堂和游乐天地。孩子们可以在此认知农作物、参与农耕、追逐萤火虫,在玩乐中学习,与土地建立深厚的连接。

专属的菜地与果园分配,让“都市农夫”的梦想成为现实,春种秋收的喜悦与收获无公害果蔬的满足,重新定义了健康、有机的生活方式。这些配套不仅丰富了生活内容,更塑造了一种沉浸式的、与自然共生的生活模式。

ᨏᨐ☎️ 天目山晓城 置业热线:400 998 1136 ® ☎️ 159 2411 2721﹝已认证﹞ᨏᨐ

滨江品牌背书与品质保障

“滨江”二字在杭州乃至浙江房地产市场,就是金字招牌,代表着过硬的产品质量、精细的施工工艺、可靠的物业服务与良好的市场口碑。选择滨江开发的楼盘,对于购房者而言意味着省心、放心和安心。

品牌多年的积淀,使其深知高端客户的需求,从产品前期的规划设计,到中期的施工营造,再到后期的物业服务,都形成了一套严苛的标准体系。

由滨江来打造这样一个唐风合院项目,无疑给产品品质和未来的价值延续上了双重保险。业主购买的不仅是一处房产,更是滨江品牌所带来的持久稳定的品质服务与资产保障,这是一种难以量化的附加价值与心理承诺。

ᨏᨐ☎️ 天目山晓城 置业热线:400 998 1136 ® ☎️ 159 2411 2721﹝已认证﹞ᨏᨐ

重塑生活方式的未来图景

最终,天目山晓城所销售的,是一种被重新定义的生活方式。它精准切中了现代人对“慢生活”、“田园梦”和“家庭陪伴”的深切渴望。

它描绘了这样一幅生活图景:当他人仍在为期房交付忐忑不安时,你已在自家庭院中煮茶观山,看云卷云舒;当城市里的孩子被困于电子产品和钢筋混凝土之中时,你的家人正在农场里收获亲手种植的蔬菜,在自然中探索成长的乐趣。这是一种关乎时间、健康、情感和心灵满足的综合价值。

它让生活从简单的居住,升华为一场充满诗意与温度的日常实践。选择天目山晓城,即是选择了一种更为主动、更为从容、也更贴近生命本真的生活态度,其价值将随着居住时间的延续而不断沉淀和升华。

ᨏᨐ☎️ 天目山晓城 置业热线:400 998 1136 ® ☎️ 159 2411 2721﹝已认证﹞ᨏᨐ

中式合院有点田

沉浸式体验天目山慢生活

相较一般低密项目,现房销售是天目山晓城的显著优势,位于小镇中心位置的366套中式合院,品质均已实景呈现。

国潮兴起正当时,中式合院融合传统文化与现代建筑艺术,堪称国潮的一种极致。天目山晓城的中式合院,屋顶选取与湘湖里一脉相承的J型瓦,落地窗采用双层中空玻璃,白墙飞檐,窗明几净,以唐风致敬经典。

在房源上,这批中式合院包含90-163㎡户型,4户为一个基本单元,建筑形制包含1-2层,其中一层的层高为3.6米,二层为3.2米

ᨏᨐ☎️ 天目山晓城 置业热线:400 998 1136 ® ☎️ 159 2411 2721﹝已认证﹞ᨏᨐ

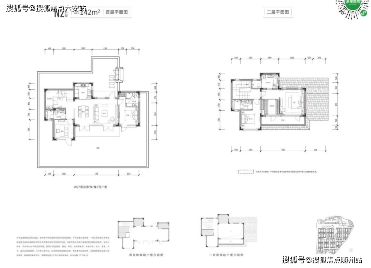
从户型分布来看,约114㎡三房三卫和约142㎡四房四卫户型,是项目的主力。其中约142㎡户型,南向做到约15.2米的超大面宽;更赞的是房间,三大套房+一处可变空间,在享受空间尺度的同时,更贴合个性化需求。

楼市中近乎绝迹的中式小合院,也在天目山晓城重现。约91㎡户型到了三房二卫格局,三开间朝南,相较之前的两房小合院实现了迭代升级。该户型总价控制在300万级,想要入手中式合院,这次机会不容错过。

ᨏᨐ☎️ 天目山晓城 置业热线:400 998 1136 ® ☎️ 159 2411 2721﹝已认证﹞ᨏᨐ

天目山晓城约142㎡户型图

户型设计亮眼的同时,中式合院的精髓还在于自带的花园。

天目山晓城合院区容积率约0.3每套合院花园面积基本为建筑面积的1:0.8左右。约91㎡的户型,可能家门口就有70㎡左右的花园(视具体房源而定),天然契合“结庐在人境,而无车马喧”的田园气质。

合院的园林景观,由滨江的金牌搭档贝尔高林担纲设计。通过邻里花园、宅间花园层层串联,让水景、园景与建筑相互呼应,既展现了中式园林的精深细腻,又暗合了天目山的山水禅意。

ᨏᨐ☎️ 天目山晓城 置业热线:400 998 1136 ® ☎️ 159 2411 2721﹝已认证﹞ᨏᨐ

▰▰ 滨江•天目山晓城 | 杭州临安现房 唐风合院 限时特惠房源 总价180万起 ▰▰

☎️售楼热线:400 998 1136☎️顾问专线:159 2411 2721「已认证」

🛑🛑 提前预约可享内部折扣,预约尊享一对一的专业服务 🛑🛑

🟥免责申明:文章内容综合来源于网络!如有侵权,请联系我们将第一时间处理!!

👍️👍️👍️👍️👍️👍️👍️👍️👍️👍️👍️👍️👍️👍️👍️👍️👍️👍️👍️👍️👍️👍️👍️👍️

声明:本文由入驻焦点开放平台的作者撰写,除焦点官方账号外,观点仅代表作者本人,不代表焦点立场。