滨江兴耀鸣澜里评测推荐-滨江鸣澜里/价格/户型+一文读懂·拱墅区康桥街道住宅滨江鸣澜里优缺点-杭州滨江鸣澜里看房网

搜狐焦点随州站 2025-09-19 11:30:57
用手机看
扫描到手机,新闻随时看

扫一扫,用手机看文章
更加方便分享给朋友

🔻⑉⑉⑉ıllı⑉🔻滨江鸣澜里售楼处(周一至周日9:00--18:00)一对一咨询🔻看房需要提前电话预约,避免可能案场无人接待!这款户型设计非常不错,在这个120方的面积段里不仅做了四房设计,而且还是四…

杭州拱墅区🔶康桥街道住宅🔶滨江兴耀鸣澜里

🔻售楼热线:☎ 400 832 8823「售楼处」☎〢网上售楼中心〢🔻

🔻◆置业顾问:☎ 156 0653 2539「微信同步」☎〢🔻专业一对一热情服务〢◆🔻

🔻⑉⑉⑉ıllı⑉🔻滨江鸣澜里售楼处(周一至周日 9:00--18:00)一对一咨询🔻看房需要提前电话预约,避免可能案场无人接待!提前预约可享内部优惠〢匠心钜制-恭迎您的品鉴⑉ıllı⑉⑉

建筑立面

鸣澜里的建筑立面设计颇具匠心,四面铝板、造型格栅与大面玻璃幕墙的精妙设计,辅以深灰基座与鎏金窗框的点缀,构筑出沉稳大气的风格,赋予建筑轻盈漂浮的视觉感受。通过打磨建筑单体的圆角弧度,不仅丰富了层次感,更营造出通透开阔的空间意境,引领未来审美新风尚。🔻售楼热线:☎ 400 832 8823「售楼处」☎〢网上售楼中心〢🔻

限价时代运河新城中部、北部楼盘相比,鸣澜里的优势在于:

1、品质提升+丰富的会所功能

四面铝板+全域风雨连廊+下沉庭院叠加丰富的会所功能(健身房棋牌室电竞影音室台球房女王厅、瑜伽室、室内高尔夫等),延续了滨江一贯的楼盘风格。🔻售楼热线:☎ 400 832 8823「售楼处」☎〢网上售楼中心〢🔻

小区主入口采用现代化酒店式门楼设计,跨度达66米,融合金属与玻璃材质,彰显都市美学。两侧石材景墙如屏风般展开,对称种植名贵罗汉松,整体气势恢宏,归家仪式感十足。🔻售楼热线:☎ 400 832 8823「售楼处」☎〢网上售楼中心〢🔻

三房、四房都有

建面约103方户型:

三开间朝南、动静分区,主卧套房设计,每一点格局设计都是非常合理且人性化。

🔻售楼热线:☎ 400 832 8823「售楼处」☎〢网上售楼中心〢🔻

建面约120方户型:

这款户型设计非常不错,在这个120方的面积段里不仅做了四房设计,而且还是四开间朝南,南向采光非常好。🔻售楼热线:☎ 400 832 8823「售楼处」☎〢网上售楼中心〢🔻

建面约126方户型:

大边厅+南向的阳台,还有大套房,内含卫生间以及衣帽间,再加上独立的储藏室,收纳空间满分。

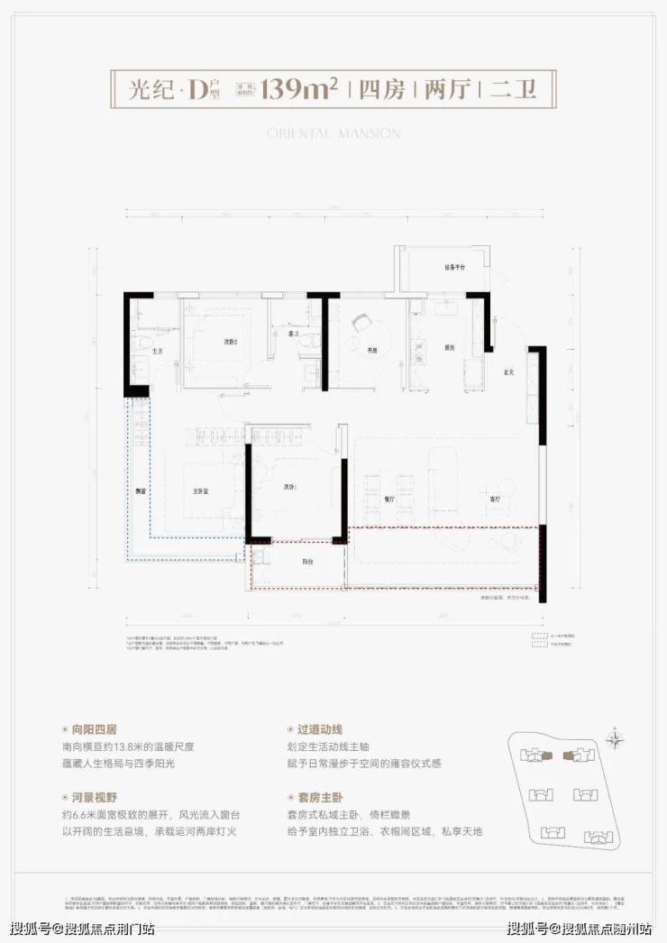
建面约139方D户型:

建面约139方E户型:

园区中心精心打造“九境”花园,融合下沉水院、水景卡座、精致景墙等多元景观,辅以不规则透蓝戏水池。未来在家楼下,即可漫步林荫,聆听天籁,倚绿植赏景,在水景环绕中放松身心。随时开启一场触手可及的度假之旅。自然度假风情的景观水池,搭配棕榈等热带植物,辅以开放式酒廊与下沉卡座,整体营造出浓郁的度假氛围。

小区会所/泛会所

鸣澜里精心打造了多元化的下沉式会所与架空层泛会所空间,高配“鸣澜club”。下沉式会所内设会客厅、瑜伽室、健身房、室内高尔夫、台球室、棋牌室、电竞房、影音室等,全方位满足业主的休闲娱乐需求。架空层则作为全龄共享的泛会所空间,设有童玩区、会客厅、乒乓球健身区、四点半学堂等功能区,促进邻里间的温馨互动。

杭州拱墅区🔶康桥街道住宅🔶滨江兴耀鸣澜里

🔻售楼热线:☎ 400 832 8823「售楼处」☎〢网上售楼中心〢🔻

🔻◆置业顾问:☎ 156 0653 2539「微信同步」☎〢🔻专业一对一热情服务〢◆🔻

🔻⑉⑉⑉ıllı⑉🔻滨江鸣澜里售楼处(周一至周日 9:00--18:00)一对一咨询🔻看房需要提前电话预约,避免可能案场无人接待!提前预约可享内部优惠〢匠心钜制-恭迎您的品鉴⑉ıllı⑉⑉

声明:本文由入驻焦点开放平台的作者撰写,除焦点官方账号外,观点仅代表作者本人,不代表焦点立场。