滨纷城-杭州临平摇号红盘(滨杭滨纷城)2025楼盘详情-最新房价-户型-交通-滨纷城-杭州临平(滨纷城)楼盘详情-房价-户型-容积率-滨纷城交房时间

搜狐焦点随州站 2025-10-16 04:12:00
用手机看
扫描到手机,新闻随时看

扫一扫,用手机看文章
更加方便分享给朋友

滨杭滨纷城由滨江集团联手杭州地铁共同打造,是滨江旗下的第一个TOD综合体。滨杭滨纷城由地面都市活力层、9米街区漫游层、15米云境生活层三大立体空间组成,每个空间都有住宅、商业、公园等配置。坐拥临平万达广场、临…

滨杭滨纷城✅杭州 滨纷城

售楼热线:☎ 400 832 8823「售楼处」☎〢🔻已认证〢◆🔻

临平高性价比低总价住宅滨杭滨纷城

置业顾问:☎ 156 0653 2539「微信同步」☎〢🔻一对一热情服务〢◆🔻

滨杭滨纷城的地块,是2022年6月30日由杭州地铁集团拿下的,至今整整两年多才终于亮相,这大概也是滨江集团目前为止前期蕴酿最久的楼盘。

毕竟这是一个超级大盘,整个楼盘体量有约63万方,关键还是一座地铁车辆段上盖TOD,南北向纵跨了9号线兴元路站和康信路站两个地铁站。

在整个杭州,能同时坐拥两个地铁站的楼盘,目前也只有一个滨杭滨纷城。售楼热线:☎ 400 832 8823「售楼处」☎〢🔻已认证〢◆🔻

【立体感】三大标高空间,一层一境的“立体城市”

◎地面都市活力层:规划落位邻里中心商业、约10万方商业及一期住宅组团,以复合场景直链活力城市;

◎9米街区漫游层:落址约2000㎡邻里中心,串联盖上住宅与盖下空间,归家路上的缤纷休闲、消费场;

◎15米云境生活层:滨纷城核心生活场域,以约7万㎡一体化公园为核,分享美好生活。售楼热线:☎ 400 832 8823「售楼处」☎〢🔻已认证〢◆🔻

滨杭滨纷城由滨江集团联手杭州地铁共同打造,是滨江旗下的第一个TOD综合体。整个项目体量宏大,总建筑面积达到63万平方米,融合了居住、公园、商业、办公、学校5大业态,规划打造公园、商业、邻里中心、双幼儿园、九年一贯制学校等复合内容。售楼热线:☎ 400 832 8823「售楼处」☎〢🔻已认证〢◆🔻

滨杭滨纷城由地面都市活力层、9米街区漫游层、15米云境生活层三大立体空间组成,每个空间都有住宅、商业、公园等配置。目前亮相的是项目1期的地面都市活力层,位于最东面,距离地铁站最近,由15幢高层住宅、约10万平方米商业、邻里中心组成。其中,住宅分为南北两个组团,一共1300余套可售房源。“整个项目共有5000多套房源,不过后续住宅产品规划还没有确定。

东湖新城中芯区,无缝临平北站综合体(规划)

同步“杭州城东新中心”城市发展战略,坐标临平东湖新城核芯区,西侧及南侧紧邻规划临平北站综合体,未来将与北站协同,作为东湖新城重要配套空间,引领东湖新城核芯区的崛起。售楼热线:☎ 400 832 8823「售楼处」☎〢🔻已认证〢◆🔻

临平北站规划图(图片来源临平发布)

地铁9号线车辆段上盖,高速串联钱江新城

横跨地铁9号线兴元路站(在建)、康信路站(在建)两大站点,毗邻临平主轴荷禹路、宁桥大道,快速接驳钱江新城、城东新城、滨江,奢享融入城市核芯生活圈。

全维繁华商圈,移步缤纷的都会奢享

坐拥临平万达广场、临平银泰等,项目自带约10万㎡商业配套,奢享都会缤纷。

临平银泰inPARK实景图

一站式教育资源,一脉人文的城市书香

配置双幼儿园,签约杭州二中白马湖教育集团临平东湖学校(九年一贯制),呵护未来,成长无忧(学校为政府部门规划及负责引进,我司不承诺学区,具体办学性质、开学时间、规模及学区以政府公布为准)。

杭二中白马湖教育集团效果图(图片来自临平发布)

都会公园谧境,栖息身心的城市留白

打造约7万㎡公园,区域荟萃临平山、玉架山考古遗址公园,龙安湖公园、龙安湖体育公园等自然资源,隐逸悠闲。

不止,在楼盘的南面甚至还放下了一个约10万方的商业综合体。

对于一个超级大盘而言,商业是激活整个社区的活力引擎,但像滨杭滨纷城这样,直接在楼盘里面造一个大体量商业综合体的TOD,整个杭州都屈指可数。

滨江这次就是要给年轻人造一座城,让年轻人在这座城里,可以一次性实现所有的生活憧憬。它的住宅精装限价是19800元/方。这几乎是整个杭州主流城区的住宅门槛价,也是滨杭滨纷城向全杭州的年轻人,抛出的橄榄枝当然,想要实现跟年轻人的双向奔赴,只有这些还不够,所以滨江还把对于缤纷生活的讲究,嵌入了住宅园区的每一寸空间——主入口做了跟奢华酒店一般的张扬门头,石材景墙和落客区,搭配入口的水景庭院里起伏的山景、潺潺跌水和婀娜松树,它们一起交织出了回家的仪式感,哪怕跟三四万的楼盘相比,都不落下风。

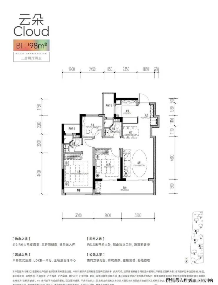
【户型赏析】

主题架空层 |对话全龄的丰盛场域

◎友好空间:架空层链接户外空间,在内外交融中创造美好的“楼下目的地”;

◎滨纷客厅:架空层融合草坪空间,定制社区客厅,预留阅读、共享厨房功能;

◎伙伴乐园:架空层衔接儿童乐园,设计多样立体的游玩系统;

◎运动岛屿:与品牌运动合作,打破传统健身场域的枯燥与单一,引导运动中的社交。

滨杭滨纷城✅杭州 滨纷城

售楼热线:☎ 400 832 8823「售楼处」☎〢🔻已认证〢◆🔻

临平高性价比低总价住宅滨杭滨纷城

置业顾问:☎ 156 0653 2539「微信同步」☎〢🔻一对一热情服务〢◆🔻

声明:本文由入驻焦点开放平台的作者撰写,除焦点官方账号外,观点仅代表作者本人,不代表焦点立场。