晓风望月府-(杭州临平·圣奥晓风望月府)首页网站丨望月府欢迎您-楼盘详情/价格

搜狐焦点随州站 2024-03-30 10:10:39
用手机看
扫描到手机,新闻随时看

扫一扫,用手机看文章
更加方便分享给朋友

今天给大家推荐一个项目——圣奥·晓风望月府,300万级,也能买到洋房改善产品,许多细节甚至可以和市面上4W+、5W+的产品掰掰手腕。再看项目周边的小界面:北面一路之隔就是前村农贸市场(在建),西侧是行政服务中…

圣奥晓风望月府

☎【售楼热线】:4008763532 ☎

☎【置业顾问】:18506853633「微信同步」☎

◆温馨提示:提前预约可享内部优惠〢匠心钜制-恭迎您的品鉴〢

免责申明:文章内容综合来源于网络、只作分享,版权归原作者所有!如有侵权,请联系我们,我们将第一时间处理!!

买房要“赢在未来”,就要顺势而为。即便是刚需,也要有改善思维:第一要买稀缺品,第二优先改善产品。因为这样的产品,不仅自住更舒适,将来在二手房市场也会更受欢迎。

也许有人会说,道理我都懂,大势我也看得到,但手里就300多万预算,只能去买刚需产品啊。

其实不然。今天给大家推荐一个项目——圣奥·晓风望月府,300万级,也能买到洋房改善产品,许多细节甚至可以和市面上4W+、5W+的产品掰掰手腕。

更难得的是,地段、产品以及开发商都具备稀缺性。

拱墅区运河新城板块,目前新房高层最低限价2.95万/平,最高限价4万/平。就以最低限价为例,按照洋房换算,限价也至少要在3.5万/平左右。

晓风望月府位置就在凹进拱墅区的位置,属于北建的重要一环,限价仅2.772万/平,价差约8K/平,总价能省下大几十万。

地铁15号线一路串联起运河新城、武林文晖、钱江新城、江河汇、亚运村、钱江世纪城等高能板块,含金量不言而喻。

再看项目周边的小界面:北面一路之隔就是前村农贸市场(在建),西侧是行政服务中心(在建),南面是滨河公园+崇贤第一小学,东面步行距离约700米则是石塘公园。

所谓:地铁一响黄金万两!地铁四期规划重磅落地,崇贤也终于迎来了翘首以盼的地铁。

地铁15号线(规划)串联的是杭州澎湃的城市力量,自北向南,一路串起运河新城、新天地、武林广场、江河汇以及奥体,这条线路直接拉近了崇贤与主城核心区的距离,仿佛将各大城市地标拽到家门口一般。

项目与15号线站点的距离仅需步行300米,便利程度无需赘言。

此外,项目直线距离秋石高架约1.5公里,直线距离运溪高架约2公里,还有上塘高架路也在不远处,纵横交错的立体路网,也使得项目轻松触达繁华核心。

项目距离运河新城仅一路之隔,自然享受其醇熟的配套,中大银泰城、新天地购物中心,邵逸夫大运河分院(三甲)等高能级资源。除此之外,还有直线距离约7.2公里的城北万象城(在建)。

项目周边也同样汇聚了众多商业体,项目紧邻前村农贸市场(在建),直线距离约2公里范围内还有崇贤上亿广场,最让人期待的莫过于此前提到的花海地块,该地块将打造一个不小于10万方的集中式商业,相信之后商业落地也不会让人失望。

教育方面,项目周边全龄段学府林立。与项目直线距离约230米处,有一所规划中的幼儿园,项目一河之隔就是崇贤第一小学(陆家桥校区)。而且,直线距离约2公里范围内有近11所幼儿园、4所小学、2所中学

未来还会不会有如此低密的城市住区出现,真的很难说。

因此我们认为:晓风望月府是杭州住宅中,凤毛麟角般的存在。也由于是纯正洋房,这样的建筑形态所带来的得房率远比高层更高。

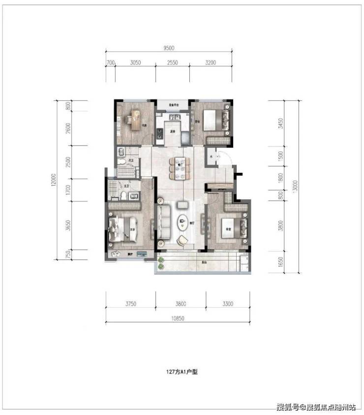
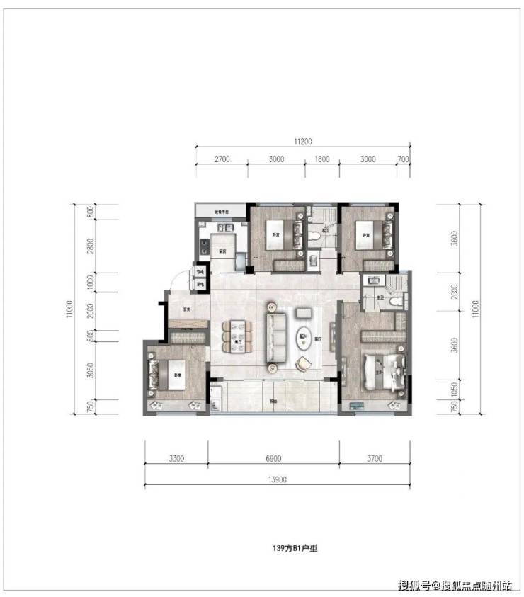
这点从户型上就能清晰看出来:项目有户型建面约127、139方2款户型设计,堪称神户型!

建面约127方:

经典的四叶草格局。这种户型的优势是“消灭过道”,把面积极致利用。另外,因为4个功能间居于四角,且南北通透,对私密性的维护也和当下社会注重隐私的需求不谋而合。

主卧套房设计,飘窗、就寝区、卫浴间层层递进。

其余功能间舒适性,也很足,就连最小的书房,也有近8个平方,完全可以作为卧室来使用。可以说,这个户型的得房率,比市面上大多数高层项目的建面约140方户型得房率还高。

建面约139方:

全屋墙布,客厅做了岩板背景墙,主卧还做了硬包背景墙,而且南侧飘窗玻璃为大面积固定扇采用双层夹胶中空玻璃材质(由三片玻璃组成),安全性更强,静音效果也更好。在主卧做了硬包背景墙;在南向卧室,飘窗玻璃大面积固定扇采用双层夹胶中空玻璃(由三片玻璃组成),更加隔音;

厨房三件套一样不落,方太的油烟机、燃气灶还配了洗碗机,解放双手,更享惬意生活。

卫生间里“格局超大”,国际知名品牌杜拉维特,汉斯格雅纷纷出现,在厨房配置了定制款欧派橱柜,油烟机、燃气灶选用国际知名品牌方太,还有科勒的台盆加抽拉式龙头,甚至方太的洗碗机,也是在交付标准内;

在卫生间,马桶及台盆选用世界级高端品牌杜拉维特,龙头及淋浴花洒选用汉斯格雅,并且采用了科勒的成品淋浴间;(很多千万级新房项目主卫可能也是汉斯格雅、杜拉维特,但是公卫就会用普通的配置,但是晓风望月府主卫、公卫同品牌,甚至主卫还是杜拉维特马桶升级款—超薄款面板,看起来更加高端;且淋浴间还是手持花洒+顶洒的配置,功能更加齐全)

同时一些人性化的关怀,则藏在不经意的细微之间,入户玄关柜,以分门别类的大收纳空间,妥贴安置钥匙、包包、雨伞等;厨房上拉玻璃移门,方便地面清洁;淋浴间长条地漏,随时保持地面干爽;还有南向飘窗采用双层夹胶中空玻璃(由三片玻璃组成)、防积水斜面阳台扶手,背后都是对生活的体贴入微。

☎【售楼热线】:4008763532 ☎

☎【置业顾问】:18506853633「微信同步」☎

◆温馨提示:提前预约可享内部优惠〢匠心钜制-恭迎您的品鉴〢

免责申明:文章内容综合来源于网络、只作分享,版权归原作者所有!如有侵权,请联系我们,我们将第一时间处理!!

声明:本文由入驻焦点开放平台的作者撰写,除焦点官方账号外,观点仅代表作者本人,不代表焦点立场。