春棠雅韵府(2025英冠春棠雅韵府)楼盘百科-官方网站-杭州春棠雅韵府房价→户型图→最新价格→交房时间→小区环境→楼盘详情
扫描到手机,新闻随时看
扫一扫,用手机看文章
更加方便分享给朋友
⑉lı⑉ 英冠·春棠雅韵府 ⑉lı⑉
英冠董事长X建筑设计师
共探排屋的空间哲学
#钱二低密圈 #三层真排屋
🔝🔥— ⑉ıl⑉杭州临平翁梅【英冠·春棠雅韵府】地铁9号线翁梅站约800米⑉lı⑉—
🔝☎【售楼热线】:400 816 3856 ☎⫷
🔝☎【置业顾问】:15658062381「微信同步」⫷
🔝➤售楼处〢欢迎咨询〢提前预约可享内部底价〢➤
🔝售楼处直销热线|中介勿扰|欢迎致电咨询
🔝温馨提示:为了节约您的等待时间,看房请提前致电售楼处预约!!!
▰▰▰▰▰▰▰▰▰▰▰▰▰▰▰▰▰▰▰▰▰▰▰▰▰▰▰▰▰▰▰▰▰▰▰▰▰
🔥英冠·春棠雅韵府🔥
🔥⬇️翁梅改善洋房+排屋新盘
🔴【英冠春棠雅韵府】
面积166-182两种洋房
精装总价420-510万
排屋面积245-315方总价950万起
💎售楼处官方电话☎ 400 816 3856 ✅✅「已认证」💎
🚩🟥🟧🟨🟩🟦🟪🟥🟧🟨🟩🟥🟧🟨🟩🟦🟪🟥🟧🟨🟩🚩
🔝⑉⑉⑉ıllı⑉🔻售楼处(周一至周日 9:00--20:00)一对一咨询🔻看房需要提前电话预约,避免可能案场无人接待!提前预约可享内部优惠〢匠心钜制-恭迎您的品鉴⑉ıllı⑉⑉🔝☎售楼处电话: 400 816 3856 ✅✅「已认证」💎 ☎置业顾问经理专线 :156 5806 2381「微信同号」💎
历经24载沉淀,绽放灼灼光芒。2024英冠1号低密著作——春棠雅韵府,掷地开篇。
项目简介:
1,距离9号线乔司、翁梅地铁口直线约800米
2,稀缺排屋➕7层真洋房
3,配2000方会所(恒温标准泳池、健身房、瑜伽室、茶室、会客厅等)
4,排屋:245方/315方
洋房:166方/180方
5,3月中旬左右首开49套洋房,166方(总价430万—490万之间)
🔝☎售楼处电话: 400 816 3856 ✅「已认证」💎 ☎置业顾问经理专线 :156 5806 2381「微信同号」💎
深耕一座城,读懂一座城。
拥江发展战略下,钱江新城2.0澎湃势起,正迎来无数前瞻的厚望。立足城市“未来总部湾 滨水新潮岸 ”的发展定位,打造“国际化的高端商务区、总部集聚区和高层次人才汇集地”及世界一流的现代化国际大都市滨水潮岸,成为人心向往新地标。(信息来源:杭州城投发布)
一江两岸实拍图
🔝☎售楼处电话: 400 816 3856 ✅✅「已认证」💎 ☎置业顾问经理专线 :156 5806 2381「微信同号」💎
春棠雅韵府紧跟城市发展脚步,一脉钱江新城2.0发展势能,于城东新中心凝萃核芯资源,启幕杭州主城之上的墅居人生。与地铁口直线距离约800米,5站即达钱二;聚合遥望X27、宜家、上城天街(在建)、理想银泰城等商业,繁华比邻;拥享幼小初高15年全龄教育,一路之隔杭高临平校区。(项目不承诺学区,实际学区划分以教育部门及相关学校公告为准)
遥望X27实拍图
一半丰盛,一半风景。春棠雅韵府毗邻约350亩超大型城市公园——前湾中央公园(规划);近享滨水公园(在建)、丰收湖公园、东湖公园,成为城市里的诗意栖居地。
前湾中央公园效果图
融入一座城,成就一城人。
对于杭州高净值群体而言,身份和地位让他们聚首塔尖。事业有所成时,对生活的标准不断提升,对自然谧境的向往也日益强烈。
翻开杭州的低密人居版图,尽管这两年陆续有低密地块亮相,但叠加优渥城市与自然资源的“主城低密”产品可谓凤毛麟角。迄今为止,主城低密二手市场依旧不动如山,稳坐价格钓鱼台。例如九溪玫瑰园、桃花源、江南里等,一再突破主城低密产品的总价天花板。
而春棠雅韵府作为目前市场上离钱二最近的低密项目,以约1.2容积率,划定杭州低密人居新高度。
项目效果图过程稿 存在调改可能

江南一枕钱塘水,宋韵千年入梦来。
杭州作为南宋时期的都城,宋韵,无疑是最具代表性的城市特质和文化基因。春棠雅韵府深研宋式造园手法,取意山水画卷,结合杭州的人文底蕴,运用现代手法营造“画里寻居,诗中筑园”的优雅意境。
项目效果图过程稿 存在调改可能
🔝☎售楼处电话: 400 816 3856 ✅✅「已认证」💎 ☎置业顾问经理专线 :156 5806 2381「微信同号」💎
宋韵不仅承载着东方文化的精髓,更构建起一种专属的生活哲学。春棠雅韵府打破空间桎梏,大手笔打造约2000㎡下沉式奢雅会所,整个示范区若再加上地面公区,则足足约4000㎡,放眼整个杭州都算罕见。像城东叠墅大盘星润府,自带约1500㎡专属会所已经颇受认可;滨江年度1号作品潮语鸣翠,跻身钱二第一阵营的优势之一也是拥有超1500㎡下沉式会所。
项目效果图过程稿 存在调改可能
春棠雅韵府的会所除了在规模上超越目前市场上的其他项目,更在营造上实现了创新与突破。会所内部精心规划泳池、健身房、棋牌室、儿童游乐区、闺蜜厅、私宴厅等多功能空间,让奢华与自然碰撞,宋韵与生活融合,获得恒久意趣。
项目效果图过程稿 存在调改可能
🔝☎售楼处电话: 400 816 3856 ✅✅「已认证」💎 ☎置业顾问经理专线 :156 5806 2381「微信同号」💎
宋式美学是中国历史长河中难以逾越的审美高峰。春棠雅韵府建面约240/310㎡藏品排屋、建面约166/182㎡奢定洋房,同步大师级审美,遵循“宋韵今形”的设计理念,将宋式建筑经典制式进行提炼,为宋风雅韵写下当代注解。
项目效果图过程稿 存在调改可能
春棠雅韵府是英冠深耕杭州、读懂杭州、融入杭州的开篇之作,它以钱二的发展为纸,宋式的建筑为笔,东方的山水为墨,挥洒出一座“主城的低密院墅”,为墅居写下崭新的仰望。
项目效果图过程稿 存在调改可能
建筑以“宋式山水画卷”为灵感,白墙黛瓦与香槟金线条勾勒东方意境,约2000㎡下沉式奢雅会所融合宋代园林风骨,打造“画里寻居,诗中筑园”的立体美学空间。示范区地面公区叠加地下会所,总规模达约4000㎡,规划恒温泳池、私宴厅、闺蜜厅、儿童游乐区等多维场景,以“宋韵生活哲学”重塑塔尖圈层的社交主场。
🔝☎售楼处电话: 400 816 3856 ✅✅「已认证」💎 ☎置业顾问经理专线 :156 5806 2381「微信同号」💎

🔝☎售楼处电话: 400 816 3856 ✅✅「已认证」💎 ☎置业顾问经理专线 :156 5806 2381「微信同号」💎
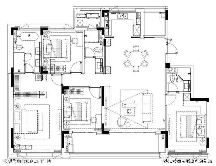
两款主力户型都是大四房,建面约166㎡的户型南向阳台面宽约9.2米,进深约1.8米,面积约16.6㎡!最小房间面宽也有约3.3米,放得下双人床和深度60公分衣柜。
春棠雅韵府建面约182㎡户型装修示意图
二开亮相的建面约182㎡户型,则是类一梯一户设计,出了电梯,就可以独享一片私密空间,入户后,北向还有一个小阳台,实用度满分。
全边套配置,再加上约16.6米的南向面宽,几乎每个空间都被自然光无限宠溺。
客厅+三卧朝南的结构最适合多人口家庭,男女主人、父母长辈、孩子都可以住朝南的房间,彻底实现“阳光平权”。
春棠雅韵府样板房实景
⑉lı⑉ 英冠·春棠雅韵府 ⑉lı⑉
英冠董事长X建筑设计师
共探排屋的空间哲学
#钱二低密圈 #三层真排屋
🔝🔥— ⑉ıl⑉杭州临平翁梅【英冠·春棠雅韵府】地铁9号线翁梅站约800米⑉lı⑉—
🔝☎【售楼热线】:400 816 3856 ☎⫷
🔝☎【置业顾问】:15658062381「微信同步」⫷
🔝➤售楼处〢欢迎咨询〢提前预约可享内部底价〢➤
🔝售楼处直销热线|中介勿扰|欢迎致电咨询
🔝温馨提示:为了节约您的等待时间,看房请提前致电售楼处预约!!!
▰▰▰▰▰▰▰▰▰▰▰▰▰▰▰▰▰▰▰▰▰▰▰▰▰▰▰▰▰▰▰▰▰▰▰▰▰
🔥英冠·春棠雅韵府🔥
🔥⬇️翁梅改善洋房+排屋新盘
🔴【英冠春棠雅韵府】
面积166-182两种洋房
精装总价420-510万
排屋面积245-315方总价950万起
💎售楼处官方电话☎ 400 816 3856 ✅✅「已认证」💎
🚩🟥🟧🟨🟩🟦🟪🟥🟧🟨🟩🟥🟧🟨🟩🟦🟪🟥🟧🟨🟩🚩
🔝⑉⑉⑉ıllı⑉🔻售楼处(周一至周日 9:00--20:00)一对一咨询🔻看房需要提前电话预约,避免可能案场无人接待!提前预约可享内部优惠〢匠心钜制-恭迎您的品鉴⑉ıllı⑉⑉🔝☎售楼处电话: 400 816 3856 ✅✅「已认证」💎 ☎置业顾问经理专线 :156 5806 2381「微信同号」💎
声明:本文由入驻焦点开放平台的作者撰写,除焦点官方账号外,观点仅代表作者本人,不代表焦点立场。
