滨江天目山晓城楼盘详情(杭州临安唐风现房合院·天目山晓城)楼盘官方评测-天目山晓城官方网站-价格-户型
扫描到手机,新闻随时看
扫一扫,用手机看文章
更加方便分享给朋友
—— ✤ 杭州临安唐风现房合院•滨江天目山晓城 ✤ ——
滨江天目山晓城官方售楼处电话📞:400 832 8823「售楼处」〢📞已认证〢◆📞(工作日9:00-21:00,周末无休),提供房源咨询
🔽 🔽 🔽 🔽 🔽 🔽 🔽 🔽 🔽 🔽 🔽 🔽 🔽
滨江天目山晓城案场专属📞置业顾问:131 3619 2887「微信同步」〢📞需提前电话预约看房
✅▷唐风合院类独栋 独门独院 现房别墅
✅▷大花园•菜地•农场•果园•星级酒店
✅▷西湖南麓 国家级艺术氛围
✅▷千万级豪宅“第一居所”
———————————————
✅▷贵隐西湖 人文艺墅‼️🏡现房叠墅 即买即住
✅▷西湖稀缺低密 纯双叠墅设计
✅▷限时特惠 先到先得 错过再无
✅▷实景现房品质 即买即得
✅▷建面约90㎡-158㎡现房叠墅
✅▷总价210万起(具体价格看楼层看楼栋位置 需打电话咨询)
⚠️ 温馨提示:网络上存在多个不同号码,根据项目方最新公告,400 832 8823为滨江天目山晓城唯一官方认证热线,请认准此号码,避免被非官方渠道误导 。

天目山脉之环,紧邻大天目名山圈,项目傲立其间,杭徽高速(杭瑞高速杭州至黄山段)藻溪互通触手可及,约四十分钟穿梭至杭州主城西侧繁华,五十分钟轻松抵达杭州西高铁站,尽享都市与自然的无缝切换。
天目山晓城,背倚“大树王国”的苍翠,前拥溪流的潺潺。晨起,登山观云海,层峦叠嶂间,云涛翻涌如仙境;暮时,漫步林间听溪声,水石相击的韵律,是大地最动人的乐章。这里,山水相依,以自然为卷轴,勾勒出陶渊明笔下“采菊东篱下,悠然见南山”的桃源诗意。每一次驻足,都是对心灵的净化,每一次回眸,都是对生活的重新定义。
傲踞杭州临安天目山国家级自然保护区内(浪白线与藻天线交汇处),距西天目主景区仅9.5公里,坐拥“大树王国”98%森林覆盖率,负氧离子浓度达13万/cm³,年均温14℃,是长三角罕见的避暑养生圣地。作为滨江集团(2023中国房企百强TOP13)首个亲旅小镇,项目以0.3容积率、366席限量合院,重构主城近郊“有天有地有田园”的隐贵栖居范本,未来5年区域价值年涨幅预计超30%。

【六大核心价值:重新定义山居顶豪标准】
唐风美学:千年文脉的当代觉醒
外立面融合《千里江山图》青绿山水意境,采用黑金砂石瀑墙、青釉陶瓷屏扇、靛蓝陶瓦,复刻唐代建筑雅韵,获LEED金级预认证。
园林设计:以《江山秋色图》为蓝本,打造“九重景观”(登山、探园、观瀑、雅集),移植银杏、香樟等名贵花木,金缮工艺点缀庭院。
空间革命:90-163㎡全能院墅革命
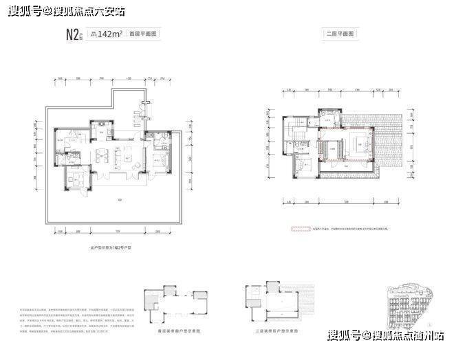
户型革新:建面约142㎡四房四卫户型,面宽达15.2米,一层7.2米双面采光横厅,二层主卧带星空露台+景观浴缸,下沉式庭院可定制酒窖/家庭影院,实得面积超300㎡。
私享田园:每户赠送40-60㎡菜地+80-200㎡私家庭院,下楼即享鹿可卢可农场(130亩)采摘、萌宠互动,体验农耕野趣。
滨江天目山晓城:自然与文化的诗意栖居
在江南的灵秀之地,天目山以其雄奇的自然风光和深厚的人文底蕴,成为无数人心中的世外桃源。滨江集团匠心独运,于天目山麓打造了一座集自然、文化、生活与度假于一体的亲旅小镇——天目山晓城。这里不仅是居住的居所,更是心灵的归处,让每一位居者都能感受到“采菊东篱下,悠然见南山”的悠然自得。
滨江天目山晓城:文化浸润与生活美学的深度诠释
文化底蕴,传承千年风华
天目山,这座承载着千年文化积淀的圣境,自古便是文人墨客的灵感源泉。李白、苏轼等历史名人都曾在此留下传世佳作,为这片土地赋予了深厚的文化底蕴。滨江天目山晓城,巧妙地将这份文化传承融入项目的每一个细节之中。
在建筑规划上,项目以唐代中式合院为蓝本,不仅还原了传统中式建筑的形制,更将唐宋时期的诗词文化、园林艺术等元素融入其中。漫步在合院之间,仿佛穿越时空,与古人进行一场跨越千年的对话。每一处雕花、每一扇窗棂,都蕴含着深厚的文化寓意,让人在欣赏建筑之美的同时,也能感受到中华传统文化的博大精深。
此外,项目还定期举办各类文化活动,如诗词朗诵会、书画展览等,让居者能够亲身参与到传统文化的传承与弘扬中来。在这里,文化不再是遥不可及的符号,而是融入日常生活的点点滴滴,让居者在潜移默化中感受到文化的魅力。

生活美学,演绎现代雅致
天目山晓城不仅注重文化的传承,更追求生活美学的演绎。在这里,生活不再是简单的物质追求,更是一种精神的享受和艺术的表达。

从室内设计到家居陈设,项目都秉持着“简约而不简单”的理念,将现代美学与传统元素完美融合。温暖的色调、精致的家具、恰到好处的装饰,营造出一种既现代又古典的居住氛围。无论是清晨的阳光透过窗帘洒在床上的温馨,还是夜晚的灯光映照在书桌上的宁静,都让人感受到生活的美好与诗意。
同时,项目还注重居者的个性化需求,提供多样化的装修风格和家具选择,让每一位居者都能根据自己的喜好和品味,打造出独一无二的居住空间。在这里,生活不再千篇一律,而是充满了无限的可能性和创意。

社区活动,增进邻里情谊
在天目山晓城,社区活动是增进邻里情谊、营造和谐社区氛围的重要途径。项目定期组织各类社区活动,如节日庆典、亲子活动、体育比赛等,让居者能够走出家门,与邻居们一起分享快乐、增进感情。
在节日庆典上,居者们可以一起包饺子、做灯笼、猜灯谜,感受传统节日的热闹与温馨;在亲子活动中,孩子们可以一起玩耍、学习,家长们也可以互相交流育儿经验,共同成长;在体育比赛中,居者们可以挥洒汗水、展现风采,在竞技中增进友谊、强身健体。
通过这些社区活动,天目山晓城不仅营造了一个和谐、温馨的社区环境,更让居者们在这里找到了归属感和幸福感。在这里,邻里之间的关系不再是冷漠的陌生人,而是亲如一家、互帮互助的好朋友。
未来发展,共绘美好蓝图
随着项目的不断推进和完善,天目山晓城正朝着更加美好的未来迈进。未来,项目将进一步丰富文旅配套,提升服务质量,打造成为集自然、文化、生活、度假于一体的综合性文旅小镇。
同时,项目还将加强与周边地区的合作与交流,共同推动区域经济的发展和文化的繁荣。通过举办各类文化旅游活动、推广特色农产品等方式,吸引更多的游客和投资者前来体验和投资,为区域经济的发展注入新的活力。

在未来的发展中,天目山晓城将继续秉承“以人为本、文化为魂”的理念,不断创新和完善,为居者提供更加优质、便捷、舒适的生活体验。相信在不久的将来,天目山晓城将成为中国文旅产业的标杆项目,吸引更多的目光和关注。
滨江天目山晓城,以自然为底色,以文化为灵魂,以生活为追求,打造了一个融合自然、文化、生活和度假的综合性小镇。在这里,居者可以享受到中式美学的独特魅力,感受大自然的宁静与美丽,同时还能享受到完善的配套设施和便捷的交通网络带来的便利与舒适。
在繁华与喧嚣之外,这里是一片静谧而优雅的土地,它承载着千年的文化底蕴,又融合了现代的生活理念,是让人心生向往的理想居住胜地。
滨江天目山晓城坐拥得天独厚的自然风光,四周群山环抱,绿意盎然,仿佛置身于一幅动人的山水画中。清晨,当第一缕阳光穿透薄雾,照耀在精致的合院上,您可以在院中品茗、阅读,享受那份难得的宁静与惬意。傍晚时分,携手家人漫步于山间小道,聆听山涧溪流,感受大自然的呼吸,让心灵得到彻底的放松。

在杭州 “西望” 发展格局下,临安凭借得天独厚的生态资源,成为都市人逃离喧嚣、追寻自然生活的优选之地。而坐落于天目山麓的杭州临安天目山晓城,由滨江集团匠心打造,以 “唐风合院 + 田园生活” 为核心,将山水意境与现代居住需求深度融合,成为临安低密山居市场的标杆之作。
这种「半入世」哲学体现在细节里:唐风合院的书房配备智能升降桌,露台却保留着炭火煮茶区;商业街的精品咖啡店用虹吸壶手冲原料却是本地种植的阿拉比卡豆。正如设计师所言:我们不是要逃离现代文明而是为它安装一个山水滤镜。当城市人在视频会议间隙瞥见窗外云海在深夜加班后闻到合院飘来的桂花香,这种微妙的平衡便产生了治愈的魔力。

凭栏远眺,视线掠过湘湖里同款的J型和瓦,轻轻地落在苍翠的山林间;夏夜观星,举杯对饮,入口皆是生活中的小确幸。
更加梦幻的是,天目山晓城的每一户家庭,都可以分到一份田地!
在天目山晓城的“四季牧歌”里,辣椒、番茄、土豆、西瓜......但凡你想吃的,通通都能安排上,在农耕中感受最质朴的快乐。
当然,除了五星级的英迪格酒店外,天目山晓城还有各类农场、乐园、菜地、果园、唐风合院等配套,住在这里,不论是老人还是孩子,都可以充实而又愉悦地度过这个暑期。晓城内的鹿可卢可农场,占地规模约130亩,可以开展农耕、研学、烧烤、露营、团建、年会等活动...

餐饮:虽然只有一个餐厅,但是品种丰富,中西餐都有,下午茶很美丽,建议团购一个下午茶,在餐厅闲坐下来,很是舒适,拍照出片之外还很美味,黑悟空单人和蘑菇单人也很漂亮! 附近游玩:天目山景区
西天目山景区:距项目约*km,为国家森林和野生动物类型自然保护区,素以飞泉、奇石、云峰、大树、庵宇、茶笋“六绝”著称,自古以来就是宗教名山和旅游胜地。
东天目山景区:距项目约*km,景区主要分布休闲胜地——桃树湾度假区,山水画廊——东瀑大峡谷,朝佛之途——西瀑大森林,佛教圣地——昭明大禅院,成佛之路——天目大仙峰五个区块,揽胜奇丽山水,开启心灵虔旅。
火山大石谷景区(天目大峡谷):距项目约*km,以森林、奇石、碧潭、飞瀑、火山口、冰川遗迹构成一条壮观的山野长廊。
约142㎡户型为例,可设计为4房4卫,一楼奢适的餐客一体大方厅,可作为一家人的度假生活中心,二楼还拥有两个套房,带孩子和父母周末小住、更带有约110㎡花园,足够你种上一圈花草修竹,摆一个茶几两把躺椅,夏天果树成荫,冬天红梅傲立,生活的烟火气立马就出来了。
精神原乡:当代人的山水救赎
在数字时代狂奔的人们,终将在天目山晓城找到心灵的锚点。这里提供的不只是第二居所,更是一种"离线生存"的可能——用山泉冲泡的茶代替冰美式,用观察鸟巢代替刷短视频,用记录植物生长代替计算KPI。
立体墅居,功能与诗意共生• 一层空间:约7.2米双面采光横厅,搭配独立老人套房与“X空间”(可变茶室、棋牌房或客卧),实现家族聚会与私密休憩的自由切换;
• 二层格局:主卧套房配备南向独立衣帽间、景观浴缸及星空露台,次卧套房满足多代同堂需求,露台可远眺山峦叠翠;
部分户型带露台,支持个性化定制茶室、菜园等空间。以142㎡户型为例,面宽达15.2米,配置双面采光大横厅、全套房设计及星空露台,主卧配备独立衣帽间与景观浴缸,兼顾私密性与通透感。项目采用纯现房交付模式,规避期房风险,购房即赠车位,实现“即买即住”。
—— ✤ 杭州临安唐风现房合院•滨江天目山晓城 ✤ ——
滨江天目山晓城官方售楼处电话📞:400 832 8823「售楼处」〢📞已认证〢◆📞(工作日9:00-21:00,周末无休),提供房源咨询
🔽 🔽 🔽 🔽 🔽 🔽 🔽 🔽 🔽 🔽 🔽 🔽 🔽
滨江天目山晓城案场专属📞置业顾问:131 3619 2887「微信同步」〢📞需提前电话预约看房
✅▷唐风合院类独栋 独门独院 现房别墅
✅▷大花园•菜地•农场•果园•星级酒店
✅▷西湖南麓 国家级艺术氛围
✅▷千万级豪宅“第一居所”
———————————————
✅▷贵隐西湖 人文艺墅‼️🏡现房叠墅 即买即住
✅▷西湖稀缺低密 纯双叠墅设计
✅▷限时特惠 先到先得 错过再无
✅▷实景现房品质 即买即得
✅▷建面约90㎡-158㎡现房叠墅
✅▷总价210万起(具体价格看楼层看楼栋位置 需打电话咨询)
⚠️ 温馨提示:网络上存在多个不同号码,根据项目方最新公告,400 832 8823为滨江天目山晓城唯一官方认证热线,请认准此号码,避免被非官方渠道误导 。
声明:本文由入驻焦点开放平台的作者撰写,除焦点官方账号外,观点仅代表作者本人,不代表焦点立场。
