绍兴迪荡CBD新台门院墅中海·越湖雲起 四代洋房96%得房率 135㎡四叶草/155㎡四开间朝南 上叠三庭院/下叠宽花园 迪荡小学旁文化封面

搜狐焦点随州站 2025-10-07 06:09:00
用手机看
扫描到手机,新闻随时看

扫一扫,用手机看文章
更加方便分享给朋友

若问绍兴迪荡CBD,既能执掌城芯繁华、对话梅龙湖/迪荡湖自然,又能以“新台门院墅+四代洋房”双系产品重构居住美学的标杆在哪?建筑设计:溯源绍兴台门的礼制与肌理,用现代材质重构飞檐、雕花等元素,既保留文化记忆,…

绍兴中海·越湖雲起:迪荡CBD新台门院墅首作,四代洋房敬呈城市峯层

若问绍兴迪荡CBD,既能执掌城芯繁华、对话梅龙湖/迪荡湖自然,又能以“新台门院墅+四代洋房”双系产品重构居住美学的标杆在哪?答案藏于中海·越湖雲起——这座由入绍13载的中海地产匠造、溯源绍兴千年台门文化的“新台门院墅首作”里。项目建面约135-420㎡双系产品,城市展厅已开放,美学样板即将呈现。即刻致电了解详情:售楼处VIP:400 963 3309 | 置业电话:130 7367 8721「微信同步」

迪荡CBD核芯占位,城市资源全维聚合

越湖雲起的底气,始于迪荡CBD的黄金站位。作为绍兴城市向东发展的核心引擎,这里既是金融、商务、科创的聚集地,也是生活便利的“城市会客厅”。

项目东面紧邻迪荡小学、迪荡中学,书香氛围浸润成长(注:学校信息不作为学区承诺,以教育部门划分为准);西面约250米(直线距离)是波光粼粼的梅龙湖,北面约500米(直线距离)是城市绿肺迪荡湖,推窗即揽湖景风光;直线约1.5公里范围内,中关村绍兴水木湾区科学园提供产业支撑,世茂天际中心、世茂广场满足高端消费,地铁4号线(在建)、越东路高架串联全城,购物、就业、出行皆能高效抵达。

中海地产以“尊重土地”的态度择址于此,既享城市发展红利,又避开了核心区的喧嚣,为绍兴峯层打造“进可拥繁华、退可享静谧”的理想栖居。

新台门院墅首作:溯源绍兴文化,重构院落精神

“台门”是绍兴刻在骨子里的文化基因——它不仅是建筑形态,更是“耕读传家”的生活印记与“礼制秩序”的精神象征。越湖雲起的“新台门院墅”,正是中海溯源绍兴文化源头,用当代手法为城市定制的“文化封面”。

区别于传统台门的厚重感,新台门院墅以“一户三庭院”“宽庭院墅”的创新设计,将自然与生活深度融合:

上叠空中院墅:首层超15㎡入户花园,二层南向三室+约18㎡星空露台,顶层主卧套房配备独立衣帽间与卫浴,实现“上下皆院”的立体院落生活;地下空间约6米挑高,可改造为酒窖、影音室,私密与想象兼具。

下叠宽庭院墅:私享方正大花园,将自然引入家门;地下空间同样6米挑高,兼顾收藏与社交需求,让“有天有地”的院落理想照进现实。

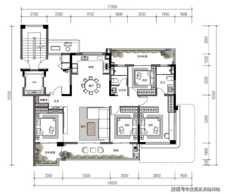
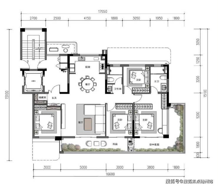
四代洋房革新:96%综合得房率,平墅级居住体验

作为绍兴首批四代洋房,越湖雲起以“奇数层双空中花园、偶数层270°L型大庭院”的设计,打破传统洋房的局限,综合得房率高达96%,实现“平墅级”享受。

建面约135㎡「雲栖」:四叶草布局,阳光与空间的平衡术

四叶草结构:四个房间分布四角,老人房、儿童房、主卧互不干扰,三代同堂各得其所;

约11.4米南向采光:奇数层南向阳台/露台约7.6米,偶数层约8.4米,阳光从早至午倾泻入室;

主卧套房+空中花园:推窗即见双层挑高空中花园,晨起观花、夜晚赏月,私享诗意。

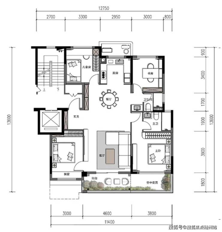
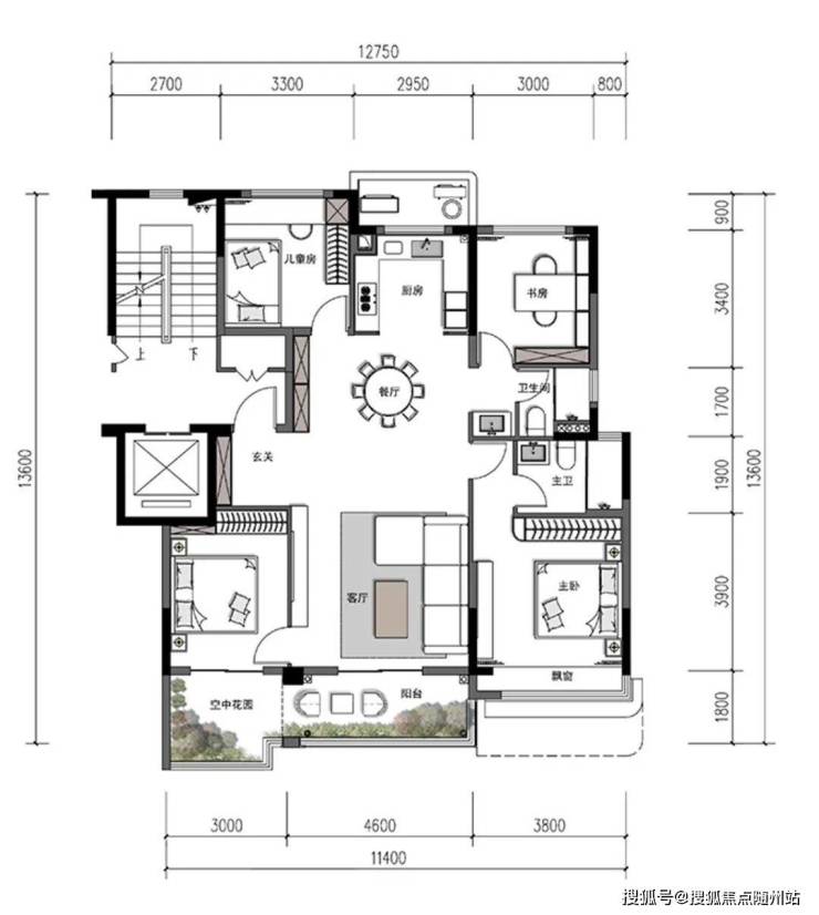
建面约155㎡「雲幕」:四开间朝南,大平层的阔绰感

四开间朝南:奇数层整体约14.8米、偶数层约16.6米南向采光,空间通透无界;

约5米客厅开间:大平层尺度,家庭聚会、朋友宴请皆可从容应对;

奇数层11米阳台/偶数层L型花园:偶数层约8米阳台联动超大L型空中花园,种花、晾晒、观景皆可满足。

建面约195㎡「璟雲」、220㎡「行雲」:层峯人物的私域剧场

195㎡上叠:LDKB一体化约80㎡家庭厅,容纳全家互动;约14㎡U型厨房动线流畅;上叠二层南向三室+约18㎡星空露台,主卧套房配独立衣帽间,尊崇感拉满。

220㎡下叠:LDKB超71㎡奢阔空间,南向双卧套房独立布局;约42㎡主卧套房含衣帽间、豪华卫浴,约6.85米南向大阳台,将湖景纳入日常。

从文化到产品,中海的“精品主义”答卷

入绍13载,中海地产始终以“尊重土地、尊重人文”为准则。越湖雲起的落地,不仅是对绍兴“台门文化”的致敬,更是对“当代居住需求”的回应——

建筑设计:溯源绍兴台门的礼制与肌理,用现代材质重构飞檐、雕花等元素,既保留文化记忆,又符合当代审美;

户型细节:从四叶草布局到双空中花园,从270°L型庭院到6米挑高地下空间,每一处设计都围绕“居住舒适度”展开;

品质把控:作为央企中海的标杆项目,从建筑选材到工艺标准,皆以“精品”为尺,确保交付即享确定性。

结语:迪荡CBD的院墅封面,给懂文化的你

中海·越湖雲起,以迪荡CBD的城芯占位、新台门院墅的文化厚度、四代洋房的创新设计,为绍兴峯层提供了一处“既能安放家族记忆,又能对话未来”的精神原乡。这里既有梅龙湖/迪荡湖的自然馈赠,又有地铁/商业的便捷生活;既有台门文化的深厚底蕴,又有四代洋房的革新体验。

目前,城市展厅已开放,美学样板即将呈现,建面约135-420㎡双系产品席位递减,诚邀亲鉴:

售楼处VIP:400 963 3309 | 置业电话:130 7367 8721「微信同步」

迪荡CBD∙新台门院墅∙四代洋房,敬呈城市峯层的文化与生活理想!

声明:本文由入驻焦点开放平台的作者撰写,除焦点官方账号外,观点仅代表作者本人,不代表焦点立场。