钱湾加速中心售楼处(2025年最新·萧山钱湾加速中心)首页网站-杭州钱湾加速中心楼盘详情_售楼处地址_户型配套_价格优惠_小区环境_百科详情
扫描到手机,新闻随时看
扫一扫,用手机看文章
更加方便分享给朋友
▰▰ 杭州萧山区 钱湾加速中心 写字楼 ▰▰
🌈钱塘江边|超甲级写字楼|地铁口
🛑江南科技城,唯一超甲级写字楼!
🌈稀缺商业:商铺、独栋、整层写字楼都有
🛑买、租,都可以
🌈项目位置:(地铁口知行路站附近)
☎️顾问专线:159 2411 2721「已认证」

一、超级区位与交通网络
战略位置
项目位于萧山科技城核心区,钱塘江南岸,毗邻亚运村、奥体中心及萧山国际机场,兼具拥江发展与大湾区战略叠加优势。
地铁通达:地铁19号线(知行路站)1站直达机场,2站到亚运村,3站至杭州东站。
快速路网:15分钟车程至奥体中心、机场,20分钟至杭州东站,通勤效率极高。
长三角辐射力
地处杭州“拥江创新走廊”核心,2小时交通圈覆盖长三角主要城市,链接全球创新资源。
☎️看房热线:400 998 1136(内部折扣) |☎️ 顾问专线:159 2411 2721(微信同号)

二、产业生态与功能定位
全生命周期服务
作为传化“钱湾”系产品之一,与钱湾智谷(总部园区)、钱湾生物港(专业生物技术平台)形成“黄金三角”,覆盖企业从孵化、加速到总部全阶段的空间需求。
聚焦技术领先型企业
定位全球技术领先型企业的研发办公中心,适配生物医药、智能制造、高端服务业等产业,提供产商融合的办公空间及中高端商务酒店、会议配套。
☎️看房热线:400 998 1136(内部折扣) |☎️ 顾问专线:159 2411 2721(微信同号)
三、产品设计亮点
稀缺产品形态
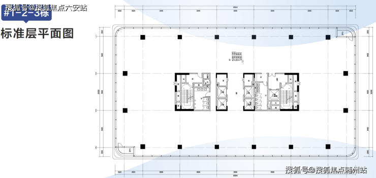
超甲级标准:江南科技城唯一超甲级写字楼,层高4.95米(首层)、4.1米(其他楼层),楼板承重最高500KG/m²,适配高端设备需求。
灵活空间组合:1号楼提供100-300㎡商铺及200-300㎡分割办公室,8-12层整层1580㎡总部空间;2号楼整栋16000㎡可售,单价1.5万/㎡。
☎️看房热线:400 998 1136(内部折扣) |☎️ 顾问专线:159 2411 2721(微信同号)

特色独栋商业:4号楼4200㎡花园独栋(空中花园每层)、5号楼250㎡玻璃盒子,适合医美、艺术展览、高端餐饮等业态。
技术参数适配性
电量配置分层细化(商业130W/㎡、餐饮200W/㎡);燃气管道预留,满足多样化经营需求。
地下642个车位,解决企业停车痛点。
☎️看房热线:400 998 1136(内部折扣) |☎️ 顾问专线:159 2411 2721(微信同号)
四、配套资源与运营服务
国际化生活配套
商业综合体:香港置地光环梦中心(20万㎡,2025年开业)、仁恒置地前湾友时光(2.8万㎡社区商业)。
教育资源:惠灵顿杭州校区(顶级国际学校)、竞潮小学、尚德幼儿园等。
医疗资源:邵逸夫医院(2025年开业)。
产业服务平台
整合政府、高校、科研机构及投融资资源,提供政策申报、人才对接、技术转化等一站式服务。
☎️看房热线:400 998 1136(内部折扣) |☎️ 顾问专线:159 2411 2721(微信同号)
五、开发商背书与区域潜力
传化科技城实力
传化集团为全国500强企业,科技城已入驻400+企业,形成生物技术、合成生物学等产业集群,产业生态成熟。
政策红利
入驻企业可享萧山科技城税收奖励、人才补贴及总部落户专项支持。
☎️看房热线:400 998 1136(内部折扣) |☎️ 顾问专线:159 2411 2721(微信同号)
六、交付与租赁信息
交付时间:2025年7月(毛坯/简装)。
租金范围:1.6-2.3元/㎡/天(视楼层与面积),性价比高于周边同类甲级写字楼。
☎️看房热线:400 998 1136(内部折扣) |☎️ 顾问专线:159 2411 2721(微信同号)
杭州萧山钱湾加速中心写字楼作为传化科技城的重点产业项目,凭借其独特定位、区位优势及多维服务体系,成为科创企业加速发展的优选载体。
钱湾加速中心以稀缺产品形态+超级区位+全产业链生态为核心竞争力,尤其适合技术驱动型企业、总部型机构及高端服务业态,是杭州江南科技城打造“产城人文融合”标杆的重要载体。
☎️看房热线:400 998 1136(内部折扣) |☎️ 顾问专线:159 2411 2721(微信同号)
【4号楼】花园独栋
4200平,每一层都有空中花园!
适合做:高端医美、月子中心、牙科医院、眼科医院等
【5号楼】独栋,250平,稀缺
250平,玻璃盒子,适合做咖啡、酒吧、画展、画廊、展厅,非常有逼格!!!
位置绝佳!!!!!!!!!!
☎️看房热线:400 998 1136(内部折扣) |☎️ 顾问专线:159 2411 2721(微信同号)



【周边配套】

▰▰ 杭州萧山区 钱湾加速中心 地铁口 江南科技城,唯一超甲级写字楼! ▰▰
☎️售楼热线:400 998 1136☎️顾问专线:159 2411 2721「已认证」
🛑🛑 提前预约可享内部折扣,预约尊享一对一的专业服务 🛑🛑
🟥免责申明:文章内容综合来源于网络!如有侵权,请联系我们将第一时间处理!!
👍️👍️👍️👍️👍️👍️👍️👍️👍️👍️👍️👍️👍️👍️👍️👍️👍️👍️👍️👍️👍️👍️👍️👍️

声明:本文由入驻焦点开放平台的作者撰写,除焦点官方账号外,观点仅代表作者本人,不代表焦点立场。
