交通:华元路(项目南侧华元路,相城区东西向主干道,开车10分钟可快速到达相城区域内所有商业,教育,医疗,文体配套)私立学校:苏州国际外国语学校(20分钟车程),苏州外国语学校相城校区小学部(10分钟车程)苏州…
九龙仓逅湾雅苑:4009983631
相城区活力岛九龙仓天灏:13160136853
均价:23000

九龙仓天灏交房时间:现房
容积率:1.6
绿化率:37%
物业公司:苏州九龙仓物业管理有限公司
物 业 费 :住宅2.95 别墅3.38
产权年限:70年精装修现房
楼高:总高11F
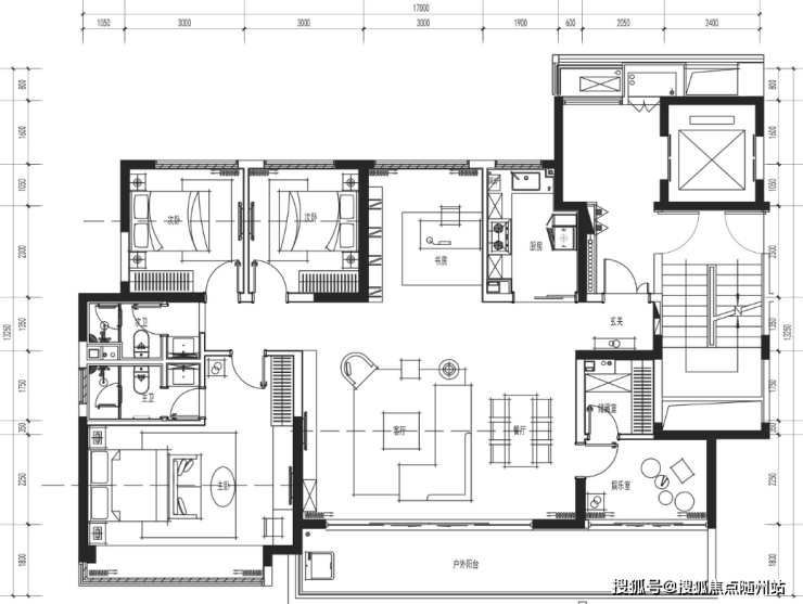
面积段:143㎡,168㎡,顶复195㎡、顶复220㎡

九龙仓天灏楼盘资料:
交通配套:
交通:华元路(项目南侧华元路,相城区东西向主干道,开车10分钟可快速到达相城区域内所有商业,教育,医疗,文体配套)
高架快速路:
西环快速路(项目西侧200米可上西环快速路,30分钟内到达新区,园区,市区核心商圈位置)
春申湖快速路(项目北侧200米,最快预计2020年底通车,通车后15分钟到达园区星湖街核心位置)


3.地铁:
已通车地铁4号线:距离4号线活力岛站约3公里左右
未来规划地铁8号线:距离8号线虎丘湿地公园站约2公里左右

商业配套:
相城区区域内配套:
繁花中心,天虹,欧尚,万达广场(均在10-15分钟车程),
区域外配套:
新区永旺,宜家(10分钟车程),龙湖时代天街(20分钟车程),苏州中心(30分钟车程)

教育配套:
公立学校:江苏省黄桥实验小学,黄桥中学(相城区域内第一梯队公立学校)
私立学校:苏州国际外国语学校(20分钟车程),苏州外国语学校相城校区小学部(10分钟车程)
幼儿园:小区门口自带幼儿园,暂定伊顿国际幼儿园
医疗配套:
苏州市相城人民医院:15分钟车程
苏州大学附属第一医院总院:12分钟车程

虎丘湿地公园位于苏州市中心城区西北部,地跨姑苏、相城两区,西临金阊新城,东靠相城中心区,南至虎丘风景名胜区,是苏州市“两带三环五楔”绿地系统结构中的重要绿楔以及苏州西北地区重要的“生态绿肺”,持续为周边区域提供强劲新活氧气输出。

三大件齐全,格力(或同档次品牌)的新风系统和中央空调、菲斯曼地暖(或同档次品牌)、圣象地板、圣凡尔赛的地砖、墙砖(或同档次品牌),科勒卫浴、摩恩水龙头、方太厨具,西顿照明、施耐德开关插座(或同档次品牌)等等。


九龙仓逅湾雅苑:4009983631【售楼中心】
九龙仓逅湾天灏:13160136853(同微信)