首页@杭州天阳湖与舍(官芳网站)-钱塘大江东天阳湖与舍最新资讯-东沙湖天阳湖与舍优缺点-湖与舍指定置业
扫描到手机,新闻随时看
扫一扫,用手机看文章
更加方便分享给朋友
在精装方面,天阳·湖与舍加装了地暖这一硬核配置,在2万这个价格层级中显得非常奢侈。另外考虑到后期不同住户对空间的多元化需求,天阳·湖与舍特意将飘窗高度设置为约45厘米这一人体工程学高度,
让飘窗不止可以放置生活用品,还能舒服地坐下来,整个家居空间瞬间多了N种可能。天阳·湖与舍还对客厅等区域的金属踢脚线阳角处做了弧形处理,更安全也更耐用。还有厨房空间、卫浴空间等多个人性化细节,不胜枚举。售楼热线:☎ 400 832 8823「售楼处」☎〢🔻已认证〢◆🔻

天阳·湖与舍坐落于钱塘区江东新城核心区域,具体位于江东一路与青六北路的交汇处,西侧紧邻钱塘区人民政府,处于“江海之城”规划的核心范围。这一区位赋予了项目独特的政芯资源与发展规划红利,使其不仅能近距离享受区政府周边的成熟配套,更能优先承接钱塘区未来发展的政策倾斜与资源投入。售楼热线:☎ 400 832 8823「售楼处」☎〢🔻已认证〢◆🔻
项目南向直面450亩东沙湖湿地公园,占据约300米湖岸线,且为杭州罕见的正南向观湖住宅。东侧一线沿河,使整个社区被双水岸景观环抱,形成了“前湖后河”的独特生态格局。这种兼具政务核心区位与稀缺自然资源的双重优势,让天阳·湖与舍在钱塘区乃至杭州的住宅市场中具备了独特的竞争力与升值潜力。售楼热线:☎ 400 832 8823「售楼处」☎〢🔻已认证〢◆🔻

始发站地铁与快速路网的完美结合
项目距离地铁7号线江东二路站仅约80米,是真正的“零距离地铁房”。作为地铁始发站,住户每天清晨无需担心拥挤与抢座,可享受从容的通勤体验。乘坐地铁,1站即可到达龙湖江东天街,2站至宝龙广场,7站便可串联萧山机场、奥体中心等城市重要节点。
除轨道交通外,项目周边江东大道、钱塘快速路环绕,形成立体交通路网。经由艮山东路过江隧道,可快速直达下沙,覆盖杭州主城核心区。这种“地铁+快速路”的双重交通优势,让业主既能享受便捷的都市通勤,又能快速连接城市各核心功能区,出行无忧。售楼热线:☎ 400 832 8823「售楼处」☎〢🔻已认证〢◆🔻
天阳·湖与舍的容积率仅为1.8,绿化率高达35%,规划有13栋12-17层的小高层住宅,总计768套房源,是钱塘区难得的低密住区。低密度规划确保了宽绰的楼间距(最大达35米),为每户提供了充足的采光与隐私空间,营造出更为舒适宜居的社区环境。
建筑外立面采用“高技派”风格,四面使用大面积铝板搭配玻璃幕墙。甚至连北立面的楼梯间外墙,都突破性地选用大面玻璃包裹,增设金属线条,体现出建筑美学上的极致追求。这种设计不仅提升了建筑的整体质感,也确保了住户室内采光与视野的最大化,实现了美观与实用的统一。售楼热线:☎ 400 832 8823「售楼处」☎〢🔻已认证〢◆🔻
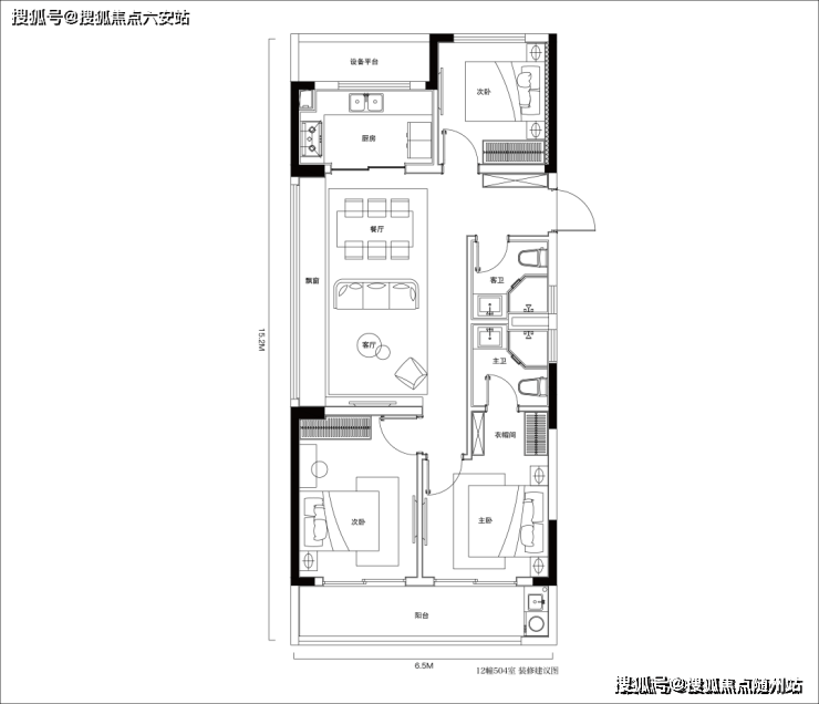
天阳地产素有“户型专家”美誉,在天阳·湖与舍的户型设计上展现得淋漓尽致。建面约100㎡的中间套户型,实现了南向四开间、12.4米面宽的设计,三卧室加客厅全部朝南,得房率超过90%。这一设计打破了市场常规,将以往只在140-150㎡户型中出现的配置应用于100㎡空间,展现出天阳在户型创新上的领先实力。
建面约105㎡的边套户型拥有三面采光、270°环幕采光,约6米长飘窗延伸了室内空间感。而128㎡的四居室则采用“4+1”灵动空间设计,独立储藏室与全景落地窗满足二胎家庭或三代同堂的需求。每种户型均注重功能分区与空间流动性,充分考虑了当代家庭的全生命周期需求。售楼热线:☎ 400 832 8823「售楼处」☎〢🔻已认证〢◆🔻
项目精装标准达到3000元/㎡,全屋配备地暖,在2万级价格带的楼盘中是稀缺配置。装修细节处处体现匠心,如金属踢脚线弧形处理、45cm人体工学飘窗设计,厨房预留双开门冰箱空间等,均从实际居住体验出发,兼顾美观与实用性。
精装材质选用国际一线品牌,包括方太厨电、科勒卫浴等,确保品质可靠。特别值得一提的是,项目采用三玻两腔玻璃,不仅具有优异的保温隔热性能,还能有效隔绝外部噪音,为业主创造安静舒适的居住环境。这种对标豪宅的精装配置,让业主在2万级的价格点上享受到了超越价格带的品质生活。

天阳·湖与舍的景观设计以曼谷四季酒店为蓝本,打造“两轴两环四间六园”的森系园林体系。设计师在人行入口、园区内部、中轴景观等节点,运用叠瀑、镜面、借景等手法打造了多处水景,使整个社区如同一座“微缩的东沙湖”,将外部湖景元素巧妙引入园区内部。
社区中央水景、镜面叠水与35%绿化率共筑出丰富的生态体验。景观动线设计注重私密性与开放性的平衡,中央水景串联归家动线,让每次回家都成为一场心灵旅行。这种将自然湖泊与人工景观无缝衔接的设计理念,使业主在社区内便能享受公园级的生态环境,实现了“园中有湖,湖园相映”的独特居住体验。

项目创新性地打造了4.5米挑高架空层泛会所系统,植入创新工场、健身空间、学习胶囊等主题功能区,重构了社区社交场景。每个楼栋下方的架空层都被赋予不同主题,形成可攀谈、可休憩、可运动、可社交、可独处的多元空间,极大丰富了业主的社区生活。
架空层内精心设置了大学同款自习室、小型会议室和温馨书吧。自习室为热爱学习与自我提升的业主提供安静专注的空间;小型会议室满足商务洽谈、团队协作需求;书吧让阅读爱好者沉浸知识海洋。部分空间还配置空调,确保无论外界气候如何变幻,内部始终舒适宜人,体现出对功能性与舒适性的双重考量。
项目自建1万方商业街区,已吸引麦当劳、星巴克等知名品牌签约入驻。这意味着业主日常的基本消费需求在社区内即可得到满足,无需远行便能享受高品质的咖啡、简餐等服务。自建商业与住宅同步交付使用,确保业主入住后即刻享受便捷的商业服务。
除自建商业外,地铁1站即可到达龙湖江东天街,2站抵达宝龙广场。龙湖天街作为大型商业综合体,集购物、餐饮、娱乐、休闲于一体,能够满足业主全方位的消费需求。这种“社区商业+大型商圈”的双重配套,让业主在享受社区便利的同时,也能轻松触达城市级商业服务。
项目周边教育资源丰富,规划有崇文江海实验学校、杭高启成学校等优质教育机构。杭州高级中学启成学校已经落地,文海实验中学也在周边,形成了从小学到高中的全龄教育覆盖。虽然学区划分需以交付后政策为准,但丰富的教育资源为业主子女的教育提供了多种可能。
值得一提的是,项目周边教育资源的品质较高,如杭高启成学校作为杭州高级中学的分校,享有优质的教育资源与教学理念。社区内部也注重教育氛围的营造,架空层设置的学习空间为业主及子女提供了良好的学习环境,从内外两方面构建了完善的教育生态系统。
作为众所周知的“户型专家”,天阳在杭州的户型设计领域拥有不可撼动的地位,曾经开创出很多爆款户型。这一次,我们看到了天阳·湖与舍非常亮眼的建面约100方户型,拥有罕见的四开间朝南,整体面宽超12米,客厅与三个卧室的尺度都很舒适,厨房放进了一个实体双开门冰箱后依然很阔绰。天阳让年轻人的首套房绝不将就。

约100㎡户型点评:三房两厅两卫,南向四开间阳光户型,完整功能大三房 双飘窗,南向双开间 大阳台套房式主卧 全明双卫;
有边套情节的,也可以放心选择建面约105㎡边套户型,270°景观视野,打开门就是餐客厅一体化的敞亮家庭活动区,双开间阳台、大飘窗。

为了满足改善型的需求。建面约128㎡户型采用“4+1”房设计,满足二胎家庭或三代同堂的居住需求,更比同类面积多了一个储藏空间。因为得房率高,所以整体尺度与功能空间堪比140方以上的户型。这样一套功能强大、设计舒适的改善户型,让生活一步到位。

在精装方面,天阳·湖与舍加装了地暖这一硬核配置,在2万这个价格层级中显得非常奢侈。另外考虑到后期不同住户对空间的多元化需求,天阳·湖与舍特意将飘窗高度设置为约45厘米这一人体工程学高度,
让飘窗不止可以放置生活用品,还能舒服地坐下来,整个家居空间瞬间多了N种可能。天阳·湖与舍还对客厅等区域的金属踢脚线阳角处做了弧形处理,更安全也更耐用。还有厨房空间、卫浴空间等多个人性化细节,不胜枚举。
声明:本文由入驻焦点开放平台的作者撰写,除焦点官方账号外,观点仅代表作者本人,不代表焦点立场。
