18幢190米云端公寓,总高48层。不限购不限贷,40年产权,有开阔的城市景观,奥体、钱塘江及钱江新城CBD尽收眼底,享受城市核心资源配套,高端的生活品质和服务,是身份与地位的象征。杭州壹号院是全球TOD4.…
杭州滨江区【臻奥院(壹号院)三期】
【售楼中心】:4008706271 【贵宾热线】
【置业顾问】:15557135877「微信同步」
开发商:央企信达/融创/滨江房产
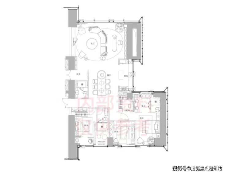
二期18#云端公寓
29楼以下8梯6户、29楼以上8梯4户。
18幢190米云端公寓,总高48层。
139方1000万以内,180方1500万左右,280方2700万左右,460方5200万左右
【臻奥院】

18#私寓特色:
不限购不限贷,40年产权,有开阔的城市景观,奥体、钱塘江及钱江新城CBD尽收眼底,享受城市核心资源配套,高端的生活品质和服务,是身份与地位的象征。
1、与住宅享受项目7万方商场及6/7号线地铁(已通车),TOD4.0规划一流生活配套
2、视野开阔,超高层190米坐拥一线奥体钱塘江及钱江新城景观视野
3、大户型高端定位,金字塔尖人群聚集
4、不限购不限价,因此精装配置高,享受高品质奢华生活



二期总平图/公寓户型图






项目价值图解
世界焦点所向 时代中心所在
中国的主场 杭州的壹号院
杭州,一江两翼、拥江发展,奥体博览城位于钱塘江主中心的核心位置,承接国际化、全国性的大型体育赛事及会展盛世,打造城市的时代中心。

TOD4.0
杭州壹号院是全球TOD4.0模式的开山之作。由我们和全球领先的TOD规划设计公司日建设计携手,共同提出的。TOD4.0,从之前的“站城一体化”升维到“站城人一体化”。对“人”的关注,构成了TOD4.0的核心代际区别和精髓所在。









【售楼中心】:4008706271 【贵宾热线】
【置业顾问】:15557135877「微信同步」