「保利天奕(保利天奕售楼处) 2026保利天奕樓盤簡介」杭州余杭区·保利天奕户型图-户型-配套-营销中心
扫描到手机,新闻随时看
扫一扫,用手机看文章
更加方便分享给朋友
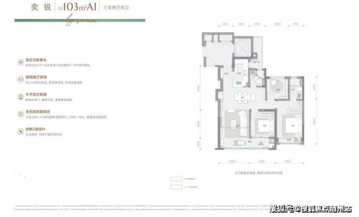
#保利天奕-户型建面约103-118-123-138-175方,均价28000-35000/平!
保利天奕位于杭州余杭区高教路与绿汀路交汇处,占地82657㎡,总建筑面积283529㎡
容积率2.4,绿化率35%,规划16-23层高层住宅。项目配备4.3米挑高架空层,标准层高3-3.1米
➖➖➖➖➖➖➖➖➖➖➖
🏅🏅#保利天奕售楼处电话 400 8169 827 🔔🔔 置业顾问:13071887623「微信同号」
(本文摘要: #保利天奕最新房价价格面积房源折扣多少,售楼处电话位置,开发商楼盘信息资料项目介绍优缺点分析,小区周边配套地址,新房样板间户型图照片商品及交付时间)

项目整体抬高约5.4米,由此形成的周长约1100米沿街面,保利没有做成围墙,几乎全规划为邻里商业、社区食堂和口袋公园等。
整体园林根植于杭州独特的自然与人文肌理,以约6万㎡的规模,匠心打造“一环三景六园”的立体景观体系。这不仅是视觉的盛宴,更是重构邻里关系的生态交往场域。
📍📍保利天奕售楼处电话:400 816 9827 🔊🔊置业顾问:13071887623「微信同步」
庭院景观以西湖荷花为核心设计元素之一,水桥的形态则借鉴并转译西溪湿地的自然肌理,使整体空间在文化意象与自然特征之间建立关联。

热销的背后,是项目对“生活主场”的全维塑造。小区内规划多达23个主题架空层,构筑起覆盖全龄段的泛会所空间,让休闲、社交与娱乐在家楼下随时发生。
与项目仅一路之隔的天元公学,加之直接距离12号线水乡南路站仅50米的天赋优势,以及约2公里内环抱的万象城与银泰中心构成的“百亿商圈”,保利·天奕呈现的,是一种无需等待的当下繁华与可期的未来。
我们以风雨连廊串联楼栋,打造一条365日皆宜的观景长廊。细雨时缓步聆听雨声韵律,清风中凭栏闲话邻里家常。每一次归家,皆成为穿梭于景观、天空与建筑之间的身心仪式。
首层架空,引绿意与阳光漫入社区,生活由此向上延伸——树下瑜伽、空中花园、云端茶席,每一步皆成风景。架空层作为多功能主题空间,涵盖童趣天地、学习盒子、轻办公区与休闲社交场,与景观无缝交融。孩子奔跑、长者静思、青年律动,一切均在自然环绕中展开。这里不仅是功能的延伸,更是邻里的交融场、生活的诗意背景。
📍📍保利天奕售楼处电话:400 816 9827 🔊🔊置业顾问:13071887623「微信同步」
建筑立面选材兼顾未来感与品质感,采用Low-E中空玻璃保障通透视野,搭配贝金米黄铝板,以现代工艺勾勒简洁利落的线条;局部嵌入深灰色金属格栅与科技感灯带,既强化层次,又呼应未来科技城的科创基因,实现“未来形态,质感表达”。
面对高密度开发与高净值人群的居住需求,项目以“舒适优先、灵活适配”为原则,采用纯高层错落布局,通过科学控制楼栋间距与朝向,最大化保障每户的通风、采光与景观视野。
📍📍保利天奕售楼处电话:400 816 9827 🔊🔊置业顾问:13071887623「微信同步」
精铸建面约100-175㎡奢适户型矩阵。每一户秉承“空间即艺术”的理念,以超越同侪的细节考量,成就难以复制的品质生活。
所有户型均遵循“南向最大化+灵活空间”原则,南向面宽最大达15米,部分户型配备270°环幕观景阳台,将和睦湿地绿意或未来科技城繁华尽收眼底。
• 类独梯入户:专属电梯厅营造归家仪式感,打造私密尊崇的过渡空间,让每次归家都优雅从容
• 类方厅阔境:客厅餐厅厨房一体化设计,营造开阔通透的空间感,提升居住舒适度
• 豪华套房主卧:配备独立卫浴与衣帽间系统,双向瞰景布局,主卫飘窗+双台盆设计,彰显高阶生活品质
• 全景视野系统:超大南向面宽,搭配270°转角飘窗,最大化引景入室,让每个房间都成为观景包厢
深度融合保利“5G+智慧社区”系统,从居家安防、环境调控到远程服务,构建安全、便捷、健康的未来生活场景。我们为高强度的科创人群打造恒温、恒湿、恒氧的舒居环境,实现工作与生活的无界切换。
#保利天奕-户型建面约103-118-123-138-175方,均价29000-35000/平!
保利天奕位于杭州余杭区高教路与绿汀路交汇处,占地82657㎡,总建筑面积283529㎡
容积率2.4,绿化率35%,规划16-23层高层住宅。项目配备4.3米挑高架空层,标准层高3-3.1米
➖➖➖➖➖➖➖➖➖➖➖
🏅🏅售楼处电话 400 8169 827 🔔🔔 置业顾问:13071887623「微信同号」
(本文摘要: 最新房价价格面积房源折扣多少,售楼处电话位置,开发商楼盘信息资料项目介绍优缺点分析,小区周边配套地址,新房样板间户型图照片商品及交付时间)

搜索关键词:杭州余杭区附近新开发的小高层洋房和别墅楼盘小区房子,大面积改善型新房,地铁口新房楼盘小面积学区房,商业住宅大平层现房精装修交付,三房四房五房六房楼盘小区,性价比最高的销量最好火的楼盘。
声明:本文由入驻焦点开放平台的作者撰写,除焦点官方账号外,观点仅代表作者本人,不代表焦点立场。
