天目山晓城售楼置业发布(杭州临安唐风现房独栋合院)滨江天目山晓城最新资讯-天目山晓城优缺点分析小区环境-楼盘详情
扫描到手机,新闻随时看
扫一扫,用手机看文章
更加方便分享给朋友
"142㎡独栋合院藏身天目山秘境,7.2米双面采光大横厅+110㎡私家庭院,四季花果为伴。英迪格酒店与耕心农场环抱,负氧离子13万/cm3的天然氧吧,让度假生活成为日常。"售楼热线:☎ 400 832 8823「售楼处」☎〢🔻已认证〢◆🔻
售楼热线:☎ 400 832 8823「售楼处」☎〢🔻已认证〢◆🔻
30多年来,滨江在发展本业的同时,始终坚守着回馈社会的初心。尤其是在家乡浙江,滨江在助力乡村振兴、推动共同富裕的过程中完成了一次次重要实践。
天目山晓城的唐风合院,0.6超低容积率、1-2层稀缺中式,有天有地,贵隐天目山麓,小户型、大宅感,必然将成为继杭州桃李春风之后,杭州乃至长三角富人阶层争相收藏的臻贵资产。售楼热线:☎ 400 832 8823「售楼处」☎〢🔻已认证〢◆🔻

区位价值与自然资源:天目山麓的生态栖居地
滨江天目山晓城位于杭州临安区天目山国家级自然保护区腹地,距西天目景区约9.5公里,东天目景区约12公里,天目大峡谷约13公里。项目坐拥“大树王国”之称的天目山生态资源,森林覆盖率超98%,负氧离子浓度高达13万/cm³,夏季均温约20℃,是长三角罕见的避暑养生胜地。作为杭州“一廊三圈十八景”规划的重要组成部分,项目依托“大天目名山圈”战略,融合自然景观与人文底蕴,形成“离尘不离城”的独特区位优势。

依托天目山文旅升级与城西科创走廊规划,项目兼具生态资产与产业红利。2024年数据显示,项目二手房挂牌价较周边同类型产品溢价约30%,租金回报率稳定在4%-5%,成为长三角高净值人群资产配置的热门选择。
【山水秘境,疗愈身心】
项目踞天目山自然保护区腹地,坐拥“大树王国”生态秘境:
天然氧吧:负氧离子高达13万/cm³,年均温14℃,四季清凉。
文旅共生:毗邻西天目景区、天目大峡谷,配套英迪格酒店、自然探索乐园、耕心农场等,实现“住进风景里”的旅居体验。
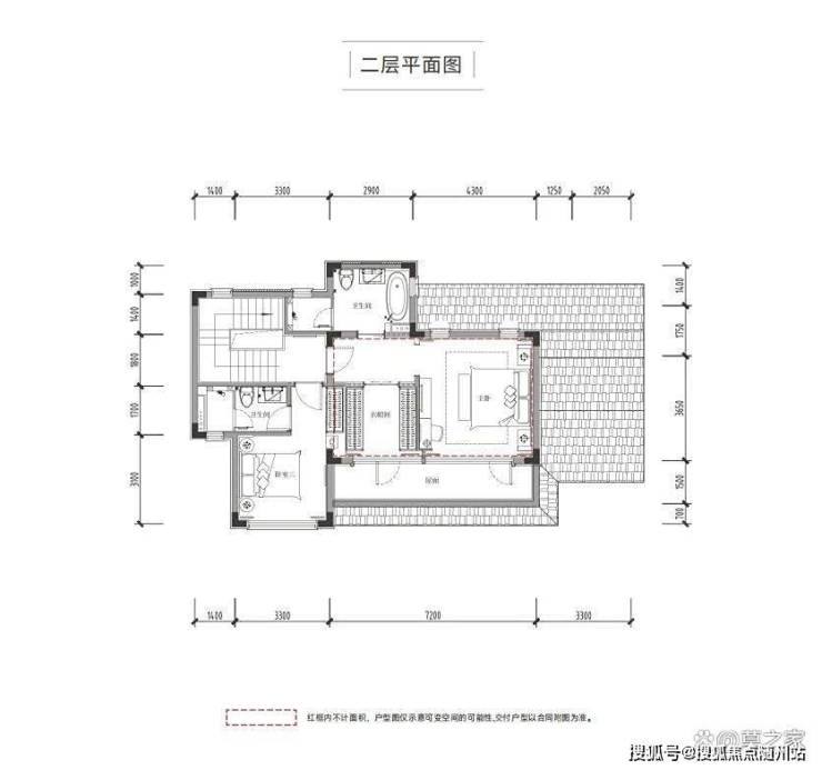
约142㎡户型为例,可设计为4房4卫,一楼奢适的餐客一体大方厅,可作为一家人的度假生活中心,二楼还拥有两个套房,带孩子和父母周末小住、更带有约110㎡花园,足够你种上一圈花草修竹,摆一个茶几两把躺椅,夏天果树成荫,冬天红梅傲立,生活的烟火气立马就出来了。
142㎡户型为例,面宽约15.2米,标准4房4卫。一楼是约7.2米长的双面采光大横厅,除了老人套房,还有个向院子伸出的“X空间”。它既能用作茶室、棋牌房,也能成为私密的客卧。拥有两个套房,主卧还是带南向独立衣帽间+带浴缸卫生间+露台“满配套房”!无论采光还是实用性,都碾压普通合院。
声明:本文由入驻焦点开放平台的作者撰写,除焦点官方账号外,观点仅代表作者本人,不代表焦点立场。
