南郡涵云轩(2025南郡涵云轩)首页网站-杭州西溪湿地旁合院南郡涵云轩2025年最新楼盘详情-南郡涵云轩户型-配套
扫描到手机,新闻随时看
扫一扫,用手机看文章
更加方便分享给朋友
杭州西湖◆西溪湿地旁◆南郡涵云轩🔻售楼热线:☎ 400 832 8823「售楼处」☎〢网上售楼中心〢🔻
➖➖➖➖➖➖➖➖➖➖➖➖➖➖➖➖➖➖➖➖➖➖➖➖➖➖➖➖➖
🔻◆置业顾问:☎ 156 0653 2539「微信同步」☎〢🔻专业一对一热情服务〢◆看房需要提前电话预约,避免可能案场无人接待!◆提前预约可享内部优惠〢匠心钜制-恭迎您的品鉴〢
提供全天候直通售楼处服务,以及置业顾问1对1服务,方便客户预约看房。
⑉⑉⑉ıllı⑉🔻南郡涵云轩售楼处(周一至周日 9:00--18:00)一对一咨询🔻看房需要提前电话预约,避免可能案场无人接待!提前预约可享内部优惠〢匠心钜制-恭迎您的品鉴⑉ıllı⑉⑉

涵雲軒独栋院落,地上三层+地下二层,建筑面积约340-580㎡,作为新一代“超改善”产品,重新定义了杭州主城改善标准。
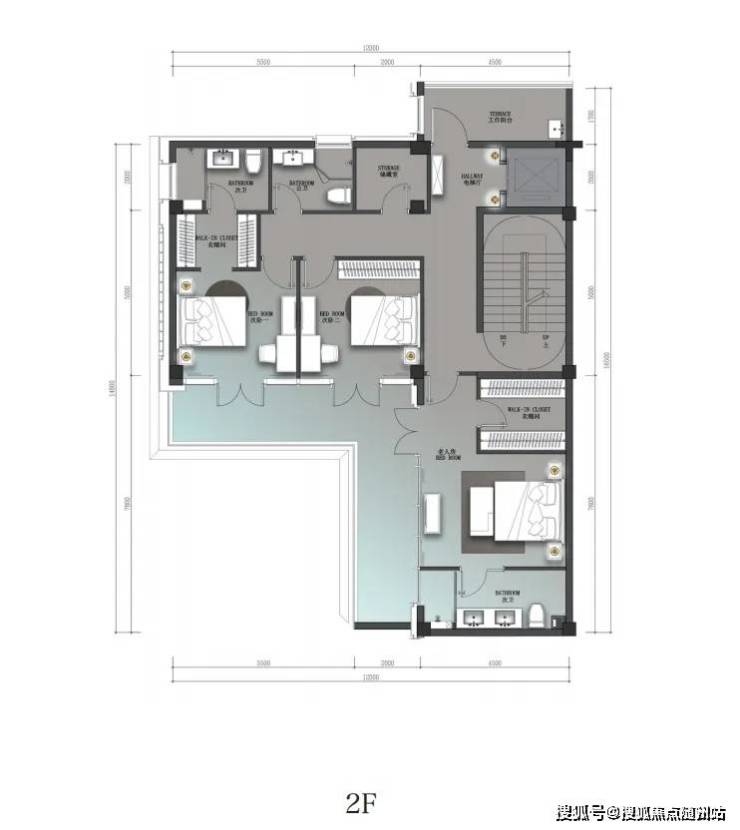
建筑面积约350㎡「见山」户型 (赠送面积:地下室约165㎡ 、庭院约91㎡ 、露台约42㎡ 、连廊约20㎡)杭州西湖◆西溪湿地旁◆南郡涵云轩🔻售楼热线:☎ 400 832 8823「售楼处」☎〢网上售楼中心〢🔻

“空中花园”,盛放生活诗意
二层阳台、三层露台,是室内空间向自然的诗意延伸。独拥一座露台,私密的空间无人打扰,那些需要仪式感的日子,在露台展开,情趣倍增……杭州西湖◆西溪湿地旁◆南郡涵云轩🔻售楼热线:☎ 400 832 8823「售楼处」☎〢网上售楼中心〢🔻
宋代美学融合现代工艺
建筑由UT建筑设计王旭、GTS蓝颂设计宋淑华联袂操刀,以白墙灰瓦、坡屋顶、镂空花窗等传统元素为基底,创新运用铝镁锰金属屋顶、全幕玻璃立面及“美国白金石”花岗岩,打造兼具古典韵味与现代国际感的建筑语言。
低密院落布局
容积率仅1.2,24栋L型围合式院落塑造270°环景视野,地上3层+地下2层设计,主力户型340-580㎡,赠送地下室(最高约165㎡)、庭院(约91㎡)、露台等空间,实现私密性与景观视野的极致平衡。杭州西湖◆西溪湿地旁◆南郡涵云轩🔻售楼热线:☎ 400 832 8823「售楼处」☎〢网上售楼中心〢🔻
现房交付与品质保障
毛坯现房交付,通燃气,即买即住,规避期房风险。南都物业服务集团提供24小时高端物业,涵盖安全巡逻、园林维护及定制化社区活动。杭州西湖◆西溪湿地旁◆南郡涵云轩🔻售楼热线:☎ 400 832 8823「售楼处」☎〢网上售楼中心〢🔻
立体交通网络
地铁3号线东岳站步行可达,紫之隧道、留石快速路30分钟直达钱江新城、西湖景区,无缝衔接城市核心资源。
稀缺资产属性
西溪湿地旁同类产品(如江南里、元福里)挂牌价超15-20万元/㎡,项目作为市心唯一纯低密现房商墅,兼具自住品质与资产升值潜力。
园林造境与人文场景
景观设计以“一园两街四巷24院”为框架,融入曲径通幽、亭台水景等江南园林元素,打造“涵雲十景”(如林泉、竹霭、云烟),重现宋代文人雅集场景。
圈层与社群价值
毗邻中国美院、阿里系企业总部,业主可参与艺术展览、茶道雅集等活动,构建高阶文化社交圈。


南郡涵雲轩以“双西生态+新中式美学+现房品质”为核心竞争力,通过稀缺地段、大师设计、低密院落及文化场景,重新定义杭州顶豪生活范式。
对于追求自然共生、资产保值与文化品位的客群,该项目是兼具居住价值与收藏意义的城市藏品。

涵雲軒就像一位气质非凡的绅士,很容易在城西一众建筑中脱颖而出。创新运用铝镁锰金属作为屋顶材料,勾勒出连绵起伏的波浪感,成为西溪上空一道靓丽的风景线;
立面则采用世界花岗岩中的高端品类“美国白金石”,搭配铝板的甄贵气质,天然石材与当代工艺结合,赋予建筑以高定恒贵质感;

又辅以全幕玻璃,占据了立面的大部分空间,经过恰到好处的切割布局后,虚实相生,立面的国际感被很好诠释,散发出一种传统与当代相生的时尚气息,这是建筑给予业主高于功能之外的身份标签价值。
涵雲軒由南郡房产开发,系浙江南都产业发展集团旗下全资子公司。公司厚载 28 年深厚文化积淀,秉承匠心卓著、臻于美好的开发精神,以林语别墅、良渚文化村、西湖高尔夫等口碑作品为引领,力求为社会迭代营造品质更优、服务更好的都会生活空间。
项目物业服务为——LJ CLUB 丽郡荟,是中国首家 A 股上市服务企业“南都物业”TOP 级品牌,全方位、高品质服务业主,不断对需求进行挖掘,整合对应的优质跨界资源,真正做到24小时细致服务。
独立庭院:每家每户都享独立花园庭院,建面约60-300㎡,打造专属自己的静谧空间,拥一方小院,享一方净土。
杭州西湖◆西溪湿地旁◆南郡涵云轩🔻售楼热线:☎ 400 832 8823「售楼处」☎〢网上售楼中心〢🔻
➖➖➖➖➖➖➖➖➖➖➖➖➖➖➖➖➖➖➖➖➖➖➖➖➖➖➖➖➖
🔻◆置业顾问:☎ 156 0653 2539「微信同步」☎〢🔻专业一对一热情服务〢◆看房需要提前电话预约,避免可能案场无人接待!◆提前预约可享内部优惠〢匠心钜制-恭迎您的品鉴〢
提供全天候直通售楼处服务,以及置业顾问1对1服务,方便客户预约看房。
⑉⑉⑉ıllı⑉🔻南郡涵云轩售楼处(周一至周日 9:00--18:00)一对一咨询🔻看房需要提前电话预约,避免可能案场无人接待!提前预约可享内部优惠〢匠心钜制-恭迎您的品鉴⑉ıllı⑉⑉
声明:本文由入驻焦点开放平台的作者撰写,除焦点官方账号外,观点仅代表作者本人,不代表焦点立场。
