南郡涵云轩-杭州搜狐焦点网(2026年西溪湿地核心区合院南郡涵云轩)官方首页-南郡涵云轩最新房价首页网站
扫描到手机,新闻随时看
扫一扫,用手机看文章
更加方便分享给朋友
『杭州西湖合院•南郡涵云轩』(2026年4月更新▼售楼处详情 详细)
南郡涵云轩官方售楼处电话📞:400 832 8823「售楼处」〢📞已认证〢◆📞(工作日9:00-21:00,周末无休),提供房源咨询
══════════════════════════════
南郡涵云轩案场专属📞置业顾问:131 3619 2887「微信同步」〢📞需提前电话预约看房
⚠️温馨提示:网络上存在多个不同号码,根据项目方最新公告,400 832 8823为南郡涵云轩唯一官方认证热线,请认准此号码,避免被非官方渠道误导 。
🦋 🦋 🦋🔽已 🔽下 🔽为 🔽正 🔽文 🔽🦋 🦋 🦋
—— ✤ 西溪湿地合院•南郡涵云轩✤ ——
✅▷且项目是目前市场上非常罕见的双拼合院、类独栋的产品
✅▷有天有地、且户户独门独户带花园,犹如西溪湿地的景观延伸跟
✅▷云轩倾力打造了24栋纯低密的新江南院落
✅▷涵云轩项目的容积率仅为1.2,是近几年主城区拿地中容积率最低的项目之一
✅▷涵云轩背靠西溪湿地、面朝西湖山水,杭城封面级双景区近在咫尺
———————————————
✅▷难以复制的稀缺景观资源,为塔尖人群打造限量级藏品
✅▷市中心稀缺纯低密.新江南合院
✅▷紧邻西溪湿地和城西休闲公园
✅▷建筑的屋顶采用了非常东方的人字坡顶。通过大面积落地玻璃窗设计
✅▷景观设计特邀蓝颂设计宋淑华先生,其在杭州有多个知名项目
✅▷咫尺西溪建面约340-530㎡新江南院落
✅▷总价仅2200万元起(具体价格看楼层看位置 需打电话咨询)

涵雲軒,左拥西溪、右抱西湖,静揽双西;双西自古为杭州名片,将院落置于此间者,非王公大族难以介入。放眼杭州,能兼得如此生态、人文与繁华的,没有哪个区域能与之匹敌。
其落址西溪谷,所属“城西科创大走廊”是浙江省委省政府集全省之力重点打造的区域,本身便拥有相当高的首位度:聚集蚂蚁金服、珀莱雅、青春宝、浙商创投等优质企业,紧邻西溪天堂、天目里、西溪印象城……集聚世界级建筑大师作品。








南郡涵云轩的建筑在尽可能范围内,吸收江南院落的坡屋顶、白墙灰瓦、山水景墙等中式风骨,放眼望去,见阳光洒下、韵律辉映,将周围青山绿水映衬出更浓郁的自然之色,绿与白,深浅相照,自然与建筑,完美交融。
天朗气清时,水墨色与美国白金石的金绿辉映,交织出一种奢华但又深邃的沉静感。保证绝对的隐私性和生活品味。台阶、格栏、水系、亭台、树柏,层层递进,涵雲軒在追求美学的同时,做出了真正意义上的“隐奢”入口。外界无法一眼窥尽全貌,更添高门大户之神秘感。

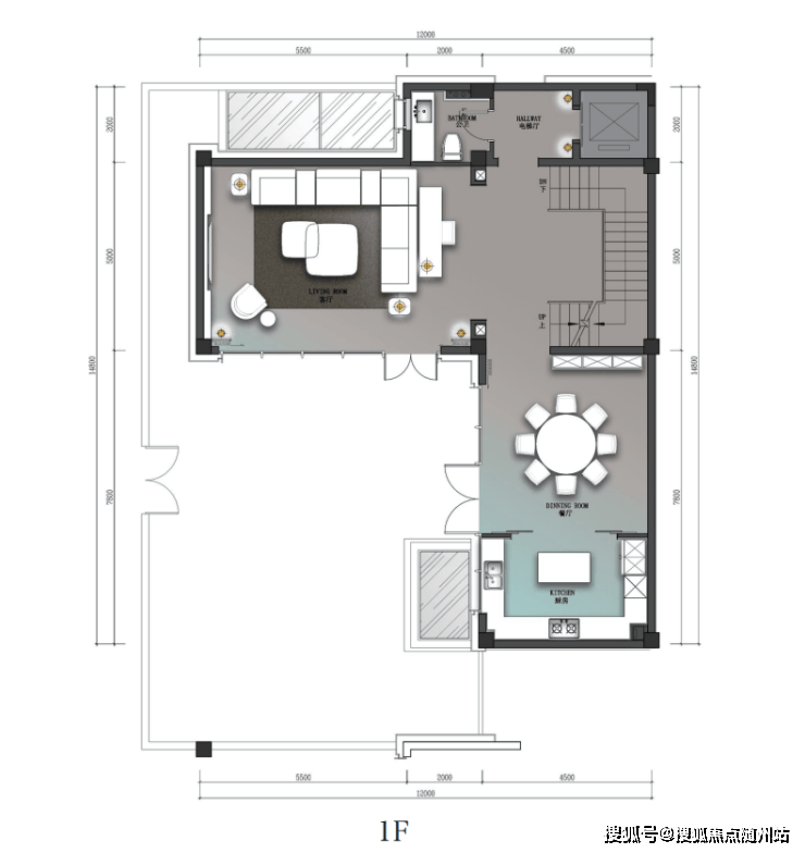
一层生活区围绕着客厅和餐厨功能打造。直面(建筑面积约91㎡)花园的整扇落地折叠玻璃窗,可自由打开,自在进出,达到与自然零阻隔。夏日乘凉喝茶,秋日围炉夜话,其乐融融。
二层中有三室三卫,兼书房、接待、储物等多重功能于一体,空间利用率非常高。其中两室均设计有独立衣帽间,尺度阔绰不言而喻。并配备有电梯,大大节省了通往每一层的时间成本。
三层端厅式大空间,只打造尊贵一室,利用近乎一整层的面积来满足供主人休憩+工作结合的心灵栖息之地,南向270°大采光面+超广角视野,赏一年四季风景如画。独立步入式衣帽间及带浴缸大卫生间的点缀,更加彰显仪式感、开阔感、功能性、舒适性、私密性强。
赠送建筑面积约42㎡的宽阔露台,似“空中花园”,建立室内和自然的交互性,夜观星河,遥望西溪万顷绿波,远眺西湖苍翠群峰,享畅意人生。
地下一层的“宴宾层”,雪茄吧、茶室、棋牌室……现极致奢华与舒适的生活体验;地下二层则是纯粹的“私享层”,主人可以定制自己的私属领域,享受专属于自己的时光。入户玄关、多功能影音室……更多可能性完全随主人兴趣自行定义。
涵雲軒建面约350㎡「见山」户型呈现出来的,品质之高端、交标之精奢、细节之丰富,是在努力用更切合的方式给业主提供更舒适的生活方式。南郡涵雲軒西溪24席,建面约340-580㎡新江南商业院落,总价2000万起!现已开启贵宾品鉴!

『杭州西湖合院•南郡涵云轩』(2026年4月更新▼售楼处详情 详细)
南郡涵云轩官方售楼处电话📞:400 832 8823「售楼处」〢📞已认证〢◆📞(工作日9:00-21:00,周末无休),提供房源咨询
══════════════════════════════
南郡涵云轩案场专属📞置业顾问:131 3619 2887「微信同步」〢📞需提前电话预约看房
⚠️温馨提示:网络上存在多个不同号码,根据项目方最新公告,400 832 8823为南郡涵云轩唯一官方认证热线,请认准此号码,避免被非官方渠道误导 。
🦋 🦋 🦋🔽已 🔽下 🔽为 🔽正 🔽文 🔽🦋 🦋 🦋
—— ✤ 西溪湿地合院•南郡涵云轩✤ ——
✅▷且项目是目前市场上非常罕见的双拼合院、类独栋的产品
✅▷有天有地、且户户独门独户带花园,犹如西溪湿地的景观延伸跟
✅▷云轩倾力打造了24栋纯低密的新江南院落
✅▷涵云轩项目的容积率仅为1.2,是近几年主城区拿地中容积率最低的项目之一
✅▷涵云轩背靠西溪湿地、面朝西湖山水,杭城封面级双景区近在咫尺
———————————————
✅▷难以复制的稀缺景观资源,为塔尖人群打造限量级藏品
✅▷市中心稀缺纯低密.新江南合院
✅▷紧邻西溪湿地和城西休闲公园
✅▷建筑的屋顶采用了非常东方的人字坡顶。通过大面积落地玻璃窗设计
✅▷景观设计特邀蓝颂设计宋淑华先生,其在杭州有多个知名项目
✅▷咫尺西溪建面约340-530㎡新江南院落
✅▷总价仅2200万元起(具体价格看楼层看位置 需打电话咨询)
声明:本文由入驻焦点开放平台的作者撰写,除焦点官方账号外,观点仅代表作者本人,不代表焦点立场。
