杭州越秀云悦湾售楼电话丨越秀云悦湾项目地址丨杭州越秀云悦湾楼盘新动态!!
扫描到手机,新闻随时看
扫一扫,用手机看文章
更加方便分享给朋友
一. 项目简介
【开发商】越秀(上市国企)招商(百年央企)
【区域板块】钱江新城·中央生活区
【项目地址】杭州市江干区三官塘路与新塘路交叉口(1号线七堡站D口南侧)
【项目层数】14层
【梯户比】4梯30户
【公寓套数】1470套;目前部分SOHO公寓在售
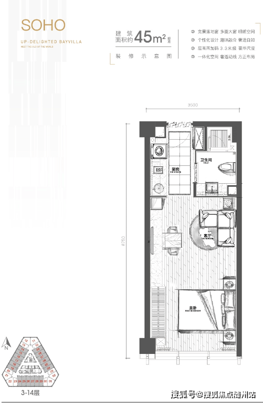
【户型产品】45㎡新潮爆款公寓
【产权性质】酒店式公寓,40年
【外立面】铝板,玻璃幕墙
【产品层高】3.3M
【物业公司】越秀物业
【交付时间】现房
二.项目区位
【板块利好】钱江新城 中央生活区
杭州发展:超上海、南京,杭州跃居为长三角市区陆域面积最大城市!
时代跃进:杭州钱江新城市民中心、来福士、万象城、洲际酒店等市政及地标性建筑引入,杭州从“西湖时代”迈向“钱塘江时代”;其独有的区位优势和功能定位,使钱江新城成为杭州实施“城市东扩、旅游西进、沿江开发、跨江发展”大都市发展战略的桥头堡;杭州拥江发展大势已成,板块将与杭州共享下一个澎湃发展的黄金十年。
板块利好:钱江新城定位为长三角南翼区域中心城市的中央商务区,并驾齐驱的是钱江新城的滨水活力区及项目所在钱江新城的中央生活区,项目距离钱塘江岸线仅约1.8KM、距离江河汇仅约4KM!距离万象城及市政中心仅约7KM、价值可见一斑!
【交通便利】1号线地铁口 2站杭州东·6站双市芯
1号线七堡站地铁口,1站换乘4号线,2站杭州东站,6站万象城/武林广场,7站钱江新城核心区域,一路直达萧山国际机场;
一脉新塘路一路畅达城东新城/江河汇/钱江新城;
临近双快速路:德胜快速路和钱塘快速路,双高速通道路口:德胜高速口和彭埠高速口
1号线七堡地铁口
立体交通网络图
【配套醇熟】步行缤纷生活圈 优质配套环伺
三大商业环伺——约50M约7万㎡招商·越秀花园城综合体,约50M约4万㎡杨柳郡好街,项目自带约8000㎡满租社区商业;
健身打卡——杭州首个李宁体育公园以及项目自带约2000㎡运动会所;
教育丰盛——约700M杭州采实教育集团澎诚中学(已招生);全学龄段教育链,规划3所初中,4所小学,9所幼儿园名师名校环抱;
医疗资源——市一医院(艮北院区,直线距离700M,规划中),浙一二院(直线距离700M,已开院)

【星级产品】星级酒店服务,高端品质会所
真正约7.8M酒店式挑高大堂及休闲区
24H酒店式尊享服务:越秀物业贴心服务,从生活,安全,预约,租赁以及休闲五大方向给您以最舒心的品质体验
约45㎡新潮爆款公寓,约3.3M朗阔层高;
“限酒令”出台后杭州最小产权分割单元不小于800㎡,小面积公寓将成为杭州市场的绝版户型
自带约2000㎡运动会所(恒温泳池、篮球场、健身中心、瑜伽室等)
1号楼外立面实景图
约2000方运动会所
室内恒温泳池
挑高约9m篮球场
健身中心
【价值齐驱】价值腾飞地 城芯轻资产
板块内SOHO公寓租金约3600-4200元/月
项目周边一手房:与本案距离约4KM的江河汇(住宅限价6.98万元/㎡) ,距离约800M连堡丰城(核心区域住宅限价6.6-6.75万元/㎡),艮北(住宅限价4.24-4.44万元/㎡)
项目周边二手房:成交价约6万-6.5万元/㎡,约4KM外江河汇二手房单价已超10万。
钱江新城地铁口 国企现房公寓 总价约110万起
声明:本文由入驻焦点开放平台的作者撰写,除焦点官方账号外,观点仅代表作者本人,不代表焦点立场。
