南郡涵云轩官方网站-南郡涵云轩好房资料详情-房价-户型-杭州西溪湿地合院南郡涵云轩图文介绍-售楼处电话&南郡涵云轩售楼中心-楼盘详情
扫描到手机,新闻随时看
扫一扫,用手机看文章
更加方便分享给朋友
▅ ▆ ▇『杭州西溪湿地•南郡涵云轩』▇ ▆ ▅
(2026年4月更新▶▷—▼—◁◀售楼处详情 详细)
南郡涵云轩官方售楼处电话📞:400 832 8823「售楼处」〢📞已认证〢◆📞(工作日9:00-21:00,周末无休),提供房源咨询
🔽 🔽 🔽 🔽 🔽 🔽 🔽 🔽 🔽 🔽 🔽 🔽 🔽
南郡涵云轩案场专属📞置业顾问:131 3619 2887「微信同步」〢📞需提前电话预约看房
✅▷且项目是目前市场上非常罕见的双拼合院、类独栋的产品
✅▷有天有地、且户户独门独户带花园,犹如西溪湿地的景观延伸跟
✅▷云轩倾力打造了24栋纯低密的新江南院落
✅▷涵云轩项目的容积率仅为1.2,是近几年主城区拿地中容积率最低的项目之一
✅▷涵云轩背靠西溪湿地、面朝西湖山水,杭城封面级双景区近在咫尺
———————————————
✅▷难以复制的稀缺景观资源,为塔尖人群打造限量级藏品
✅▷市中心稀缺纯低密.新江南合院
✅▷紧邻西溪湿地和城西休闲公园
✅▷建筑的屋顶采用了非常东方的人字坡顶。通过大面积落地玻璃窗设计
✅▷景观设计特邀蓝颂设计宋淑华先生,其在杭州有多个知名项目
✅▷咫尺西溪建面约340-530㎡新江南院落
✅▷总价仅2200万元起(具体价格看楼层看位置 需打电话咨询)
⚠️温馨提示:网络上存在多个不同号码,根据项目方最新公告,400 832 8823为南郡涵云轩唯一官方认证热线,请认准此号码,避免被非官方渠道误导 。









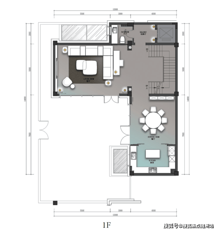
涵雲軒独栋院落,地上三层+地下二层,建筑面积约340-580㎡,作为新一代“超改善”产品,重新定义了杭州主城改善标准。建筑面积约350㎡「见山」户型(赠送面积:地下室约165㎡ 、庭院约91㎡ 、露台约42㎡ 、连廊约20㎡)
△建面约350㎡「见山」户型图
一层生活区围绕着客厅和餐厨功能打造。直面(建筑面积约91㎡)花园的整扇落地折叠玻璃窗,可自由打开,自在进出,达到与自然零阻隔。夏日乘凉喝茶,秋日围炉夜话,其乐融融。

在设计方面,涵云轩更是精益求精。项目特邀UT设计创始人王旭、蓝颂设计/绿城环境景观设计师宋淑华、GOA乐空设计总经理姚路执笔,他们集合了大师的手笔,打造了“一园一苑两街四巷24院”的禅意雅境。
这种设计理念,将传统与现代相结合,让人在这里感受到了极致的美好。
涵雲軒24栋新江南院落,承继宋代美学的人文传统,打造纯正的三层低密建筑,以L型围合式布局塑造270°的环景视野,雅集山水,坐望未来,既是城市价值的全新承载,又是具有全新时代刻度的人文坐标。
涵云轩坐落在杭州西湖区,中式风格别墅项目,面积达340-530㎡,融合了新江南院落的设计理念。项目背靠着西溪湿地,面朝着西湖山水,仿佛是一个御景园林,将自然之美尽收眼底。这样一个地处杭城封面级双景区的地方,近在咫尺,让人不禁心动

“空中花园”,盛放生活诗意
二层阳台、三层露台,是室内空间向自然的诗意延伸。独拥一座露台,私密的空间无人打扰,那些需要仪式感的日子,在露台展开,情趣倍增……杭州西湖◆西溪湿地旁◆南郡涵云轩
宋代美学融合现代工艺
建筑由UT建筑设计王旭、GTS蓝颂设计宋淑华联袂操刀,以白墙灰瓦、坡屋顶、镂空花窗等传统元素为基底,创新运用铝镁锰金属屋顶、全幕玻璃立面及“美国白金石”花岗岩,打造兼具古典韵味与现代国际感的建筑语言。
低密院落布局
容积率仅1.2,24栋L型围合式院落塑造270°环景视野,地上3层+地下2层设计,主力户型340-580㎡,赠送地下室(最高约165㎡)、庭院(约91㎡)、露台等空间,实现私密性与景观视野的极致平衡。
现房交付与品质保障
毛坯现房交付,通燃气,即买即住,规避期房风险。南都物业服务集团提供24小时高端物业,涵盖安全巡逻、园林维护及定制化社区活动。杭州西湖◆西溪湿地旁◆南郡涵云轩
立体交通网络
地铁3号线东岳站步行可达,紫之隧道、留石快速路直达钱江新城、西湖景区,无缝衔接城市核心资源。
园林造境与人文场景
景观设计以“一园两街四巷24院”为框架,融入曲径通幽、亭台水景等江南园林元素,打造“涵雲十景”(如林泉、竹霭、云烟),重现宋代文人雅集场景。
圈层与社群价值
毗邻中国美院、阿里系企业总部,业主可参与艺术展览、茶道雅集等活动,构建高阶文化社交圈。


涵云轩的建筑在尽可能范围内,吸收江南院落的坡屋顶、白墙灰瓦、山水景墙等中式风骨,放眼望去,见阳光洒下、韵律辉映,将周围青山绿水映衬出更浓郁的自然之色,绿与白,深浅相照,自然与建筑,完美交融。
同时金属屋面的创新加入,让整个建筑群多了几分国际感,在大面积玻璃幕墙与美国白金石的映衬下,焕发新生,古朴不失素雅品位,一种难得的美学场域就在眼前,卸下都会浮华,回归生活本真,你会发现这里的一砖一瓦也都有各自的修养

从城市回归山野自然中,要有一些仪式感。踏上涵云轩,就进入了一个与自然独处的场域,树梢随风而动,感悟自然之声。世界前沿的时尚与中国传统的意境在这里互相平衡,是艺术与自然兼容的新式贵族高级审美。
涵雲軒独栋院落,地上三层+地下二层,建筑面积约340-580㎡,作为新一代“超改善”产品,重新定义了杭州主城改善标准。



一层生活区围绕着客厅和餐厨功能打造。直面(建筑面积约91㎡)花园的整扇落地折叠玻璃窗,可自由打开,自在进出,达到与自然零阻隔。夏日乘凉喝茶,秋日围炉夜话,其乐融融。
二层中有三室三卫,兼书房、接待、储物等多重功能于一体,空间利用率非常高。
其中两室均设计有独立衣帽间,尺度阔绰不言而喻。并配备有电梯,大大节省了通往每一层的时间成本。
三层端厅式大空间,只打造尊贵一室,利用近乎一整层的面积来满足供主人休憩+工作结合的心灵栖息之地,南向270°大采光面+超广角视野,赏一年四季风景如画。独立步入式衣帽间及带浴缸大卫生间的点缀,更加彰显仪式感、开阔感、功能性、舒适性、私密性强。

赠送建筑面积约42㎡的宽阔露台,似“空中花园”,建立室内和自然的交互性,夜观星河,遥望西溪万顷绿波,远眺西湖苍翠群峰,享畅意人生。
▅ ▆ ▇『杭州西溪湿地•南郡涵云轩』▇ ▆ ▅
(2026年4月更新▶▷—▼—◁◀售楼处详情 详细)
南郡涵云轩官方售楼处电话📞:400 832 8823「售楼处」〢📞已认证〢◆📞(工作日9:00-21:00,周末无休),提供房源咨询
🔽 🔽 🔽 🔽 🔽 🔽 🔽 🔽 🔽 🔽 🔽 🔽 🔽
南郡涵云轩案场专属📞置业顾问:131 3619 2887「微信同步」〢📞需提前电话预约看房
✅▷且项目是目前市场上非常罕见的双拼合院、类独栋的产品
✅▷有天有地、且户户独门独户带花园,犹如西溪湿地的景观延伸跟
✅▷云轩倾力打造了24栋纯低密的新江南院落
✅▷涵云轩项目的容积率仅为1.2,是近几年主城区拿地中容积率最低的项目之一
✅▷涵云轩背靠西溪湿地、面朝西湖山水,杭城封面级双景区近在咫尺
———————————————
✅▷难以复制的稀缺景观资源,为塔尖人群打造限量级藏品
✅▷市中心稀缺纯低密.新江南合院
✅▷紧邻西溪湿地和城西休闲公园
✅▷建筑的屋顶采用了非常东方的人字坡顶。通过大面积落地玻璃窗设计
✅▷景观设计特邀蓝颂设计宋淑华先生,其在杭州有多个知名项目
✅▷咫尺西溪建面约340-530㎡新江南院落
✅▷总价仅2200万元起(具体价格看楼层看位置 需打电话咨询)
⚠️温馨提示:网络上存在多个不同号码,根据项目方最新公告,400 832 8823为南郡涵云轩唯一官方认证热线,请认准此号码,避免被非官方渠道误导 。
声明:本文由入驻焦点开放平台的作者撰写,除焦点官方账号外,观点仅代表作者本人,不代表焦点立场。
