滨杭滨纷城官方网站-杭州滨杭滨纷城|滨杭滨纷城2025最新价格-楼盘测评-户型
扫描到手机,新闻随时看
扫一扫,用手机看文章
更加方便分享给朋友
首付13.9万起 抢占买房抽汽车最后名额🔥
十四期已取证 登记第3️⃣天
——𝑰𝒏𝒇𝒖𝒏 𝒄𝒊𝒕𝒚 #滨杭滨纷城
68-139㎡滨纷新品 火爆登场
🔥— ⑉ıl⑉杭州临平东湖新城【🔴滨杭滨纷城】单价12000起,总价107万起,送车位、送家装包
杭二白马湖名校+9号线地铁口⑉lı⑉—
🔝☎【售楼热线】:400 816 3856 ☎⫷
🔝☎【置业顾问】:15658062381「微信同步」⫷
🔝➤售楼处〢欢迎咨询〢提前预约可享内部底价〢➤
🔝售楼处直销热线|中介勿扰|欢迎致电咨询
🔝温馨提示:为了节约您的等待时间,看房请提前致电售楼处预约!!!
▰▰▰▰▰▰▰▰▰▰▰▰▰▰▰▰▰▰▰▰▰▰▰▰▰▰▰▰▰▰▰▰▰▰▰▰▰
【滨纷城】滨纷城邀您品鉴📣📣📣
🔥全新【68㎡】样板首次开放🔥
🔥奢阔【139㎡】样板重磅回归🔥
百万级总价!送车位或工具间 [烟花]
9号线双地铁口&名校旁[庆祝][庆祝]
🏆荣膺2025年1-9月全国销售三冠王🏆
14期加推楼幢亮点介绍:
加推楼栋: 62#66#74# 共204套🔥🔥🔥
62#:超宽楼间距,本期地铁口最近🚇
✅仅33席中间套68㎡,边套98㎡
66#:本期“性价比之王”💴
✅中间套89㎡,边套98㎡
74#:本期“配套之王+楼王”🏠
✅中间套89㎡,边套98㎡,边套139㎡
💎售楼处官方电话☎ 400 816 3856 ✅✅「已认证」💎
🚩🟥🟧🟨🟩🟦🟪🟥🟧🟨🟩🟥🟧🟨🟩🟦🟪🟥🟧🟨🟩🚩
🔝⑉⑉⑉ıllı⑉🔻售楼处(周一至周日 9:00--20:00)一对一咨询🔻看房需要提前电话预约,避免可能案场无人接待!提前预约可享内部优惠〢匠心钜制-恭迎您的品鉴⑉ıllı⑉⑉🔝☎官方售楼处电话: 400 816 3856 ✅✅「已认证」💎 ☎置业顾问经理专线 :156 5806 2381「微信同号」💎

🔝☎售楼处电话: 400 816 3856 ✅「已认证」💎 ☎置业顾问经理专线 :156 5806 2381「微信同号」💎
假如你现在开车路过荷禹路,或许远远就能一眼捕捉到滨杭滨纷城,因为它金色线条和白色铝板镶嵌的外立面,仿佛自带放大镜一般醒目。
等到它建成之后,这款「白金」外立面一定会成为东湖新城的封面级地标,还会成为整个板块的超级活力枢纽。
既然是“TOD新物种”,滨杭滨纷城和其他TOD项目有什么区别?
首先,最大的区别在于滨纷城是一个“双地铁口”上盖项目,横跨了地铁9号线兴元路站(在建)、康信路站(在建)两大站点,这在之前开发的TOD项目中从未有过。
滨纷城总建面约63万㎡,融合了居住、公园、商业、办公、学校等五大业态,规划有公园、商业、邻里中心、双幼儿园、九年一贯制学校等复合内容。通过联动周边城市资源,项目旨在构建一个面向青年的缤纷生活场,为居民提供一站式的生活体验。
地铁9号线车辆段上盖,高速串联钱江新城
横跨地铁9号线兴元路站(在建)、康信路站(在建)两大站点,毗邻临平主轴荷禹路、宁桥大道,快速接驳钱江新城、城东新城、滨江,奢享融入城市核芯的生活圈。
全维繁华商圈,移步缤纷的都会奢享
坐拥临平万达广场、临平银泰等,项目自带约10万㎡商业配套,奢享都会缤纷。
临平银泰inPARK实景图
🔝☎售楼处电话: 400 816 3856 ✅「已认证」💎 ☎置业顾问经理专线 :156 5806 2381「微信同号」💎
都会公园谧境,栖息身心的城市留白
打造约7万㎡公园,区域荟萃临平山、玉架山考古遗址公园,龙安湖公园、龙安湖体育公园等自然资源,隐逸悠闲。
园林景观 |造艺滨纷的度假谧境
◎一心——滨江核心IP蓝宝石的新一代表达,以湛蓝水池为核的社交休闲剧场;
◎三岛——社交功能的混龄共悦岛、运动功能的热力运动岛、休闲功能的自然探知岛,赋能品质生活;
◎五进:一进水翼门仪、二进流水之庭、三进花径漫游、四进浅隐归院、五进金石门扉,层层迭进的归家秩序。
主题架空层 |对话全龄的丰盛场域
◎友好空间:架空层链接户外空间,在内外交融中创造美好的“楼下目的地”;
◎滨纷客厅:架空层融合草坪空间,定制社区客厅,预留阅读、共享厨房功能;
◎伙伴乐园:架空层衔接儿童乐园,设计多样立体的游玩系统;
◎运动岛屿:与品牌运动合作,打破传统健身场域的枯燥与单一,引导运动中的社交。
滨杭滨纷城园林实景图
主题架空层 |对话全龄的丰盛场域
◎友好空间:架空层链接户外空间,在内外交融中创造美好的“楼下目的地”;
◎滨纷客厅:架空层融合草坪空间,定制社区客厅,预留阅读、共享厨房功能;
◎伙伴乐园:架空层衔接儿童乐园,设计多样立体的游玩系统;
◎运动岛屿:与品牌运动合作,打破传统健身场域的枯燥与单一,引导运动中的社交。
🔝☎售楼处电话: 400 816 3856 ✅✅「已认证」💎 ☎置业顾问经理专线 :156 5806 2381「微信同号」💎
滨杭滨纷城架空层实景图
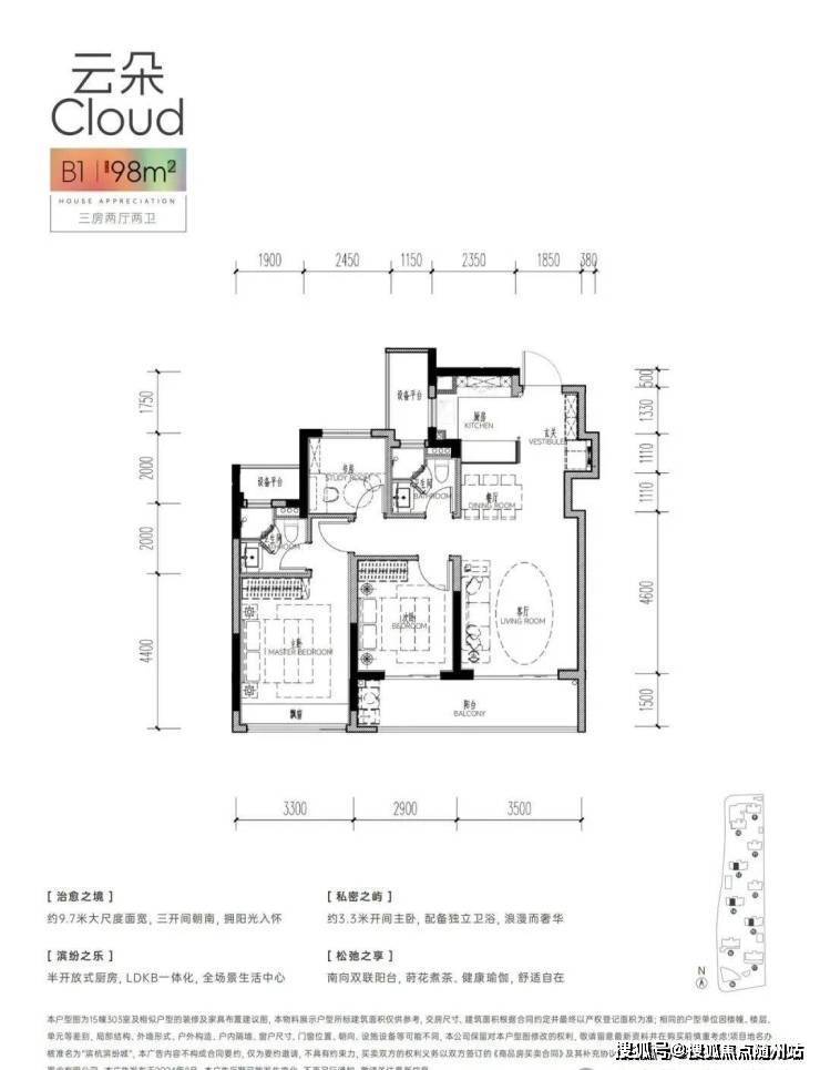
【户型赏析】
若三代同堂或二胎家庭,112㎡四房边套会是一个更经济实惠的选择。整体布局是在98㎡基础上增加了一个北向次卧,在保证各自有独立居住空间的同时还能保留书房这个“现代刚需”。由内到外都给出了绝对的诚意。
然后是非常难得的98㎡边套户型,同样是三房设计,空间却更加舒适,约5.8米的边厅加飘窗,小户型的餐厅客憋屈感一下子消解了,还增加了不少拓展空间。
Chapter 09 TOD3.0
❍ 滨江集团&杭铁集团合作的首个地铁综合体上盖的TOD项目。
TOD是以公共交通(地铁、公交、轻轨)为核心,将居住、购物、娱乐等功能集中一体的城市综合性开发,能促进可持续、宜居的城市发展。
△滨杭滨纷城剖面图—非交付标准
Chapter 10建筑
❍ gad天团 蒋愈大师设计 三种美学建筑,部分弧形阳台&部分铝板外立面
△滨杭滨纷城外立面实景图
12-18F小高层:最高约82%超高得房率居住尺度更大,舒适度更高。
Chapter 11景观
❍ 一芯一环滨纷十境 :开敞式中心花园
一芯:链接全区的滨纷时尚艺术花街
一环:覆盖全龄健康活动的24节气环形约2.4公里跑道
滨纷十境:艺术花街、双景观水池、约2.4公里24节气环形跑道、六感高尔夫花园、摩登剧场、林下多彩花园、五大滨纷儿童乐园、活力运动场(网球场,羽毛球场,五人制足球场,完整篮球场,半篮球场,乒乓球场地)、健身活力场地、帐篷营地
首付13.9万起 抢占买房抽汽车最后名额🔥
十四期已取证 登记第3️⃣天
——𝑰𝒏𝒇𝒖𝒏 𝒄𝒊𝒕𝒚 #滨杭滨纷城
68-139㎡滨纷新品 火爆登场
🔥— ⑉ıl⑉杭州临平东湖新城【🔴滨杭滨纷城】单价12000起,总价107万起,送车位、送家装包
杭二白马湖名校+9号线地铁口⑉lı⑉—
🔝☎【售楼热线】:400 816 3856 ☎⫷
🔝☎【置业顾问】:15658062381「微信同步」⫷
🔝➤售楼处〢欢迎咨询〢提前预约可享内部底价〢➤
🔝售楼处直销热线|中介勿扰|欢迎致电咨询
🔝温馨提示:为了节约您的等待时间,看房请提前致电售楼处预约!!!
▰▰▰▰▰▰▰▰▰▰▰▰▰▰▰▰▰▰▰▰▰▰▰▰▰▰▰▰▰▰▰▰▰▰▰▰▰
【滨纷城】滨纷城邀您品鉴📣📣📣
🔥全新【68㎡】样板首次开放🔥
🔥奢阔【139㎡】样板重磅回归🔥
百万级总价!送车位或工具间 [烟花]
9号线双地铁口&名校旁[庆祝][庆祝]
🏆荣膺2025年1-9月全国销售三冠王🏆
14期加推楼幢亮点介绍:
加推楼栋: 62#66#74# 共204套🔥🔥🔥
62#:超宽楼间距,本期地铁口最近🚇
✅仅33席中间套68㎡,边套98㎡
66#:本期“性价比之王”💴
✅中间套89㎡,边套98㎡
74#:本期“配套之王+楼王”🏠
✅中间套89㎡,边套98㎡,边套139㎡
💎售楼处官方电话☎ 400 816 3856 ✅✅「已认证」💎
🚩🟥🟧🟨🟩🟦🟪🟥🟧🟨🟩🟥🟧🟨🟩🟦🟪🟥🟧🟨🟩🚩
🔝⑉⑉⑉ıllı⑉🔻售楼处(周一至周日 9:00--20:00)一对一咨询🔻看房需要提前电话预约,避免可能案场无人接待!提前预约可享内部优惠〢匠心钜制-恭迎您的品鉴⑉ıllı⑉⑉🔝☎官方售楼处电话: 400 816 3856 ✅✅「已认证」💎 ☎置业顾问经理专线 :156 5806 2381「微信同号」💎
声明:本文由入驻焦点开放平台的作者撰写,除焦点官方账号外,观点仅代表作者本人,不代表焦点立场。
