英冠春棠雅韵府优缺点全解析,值不值得买/杭州英冠春棠雅韵府怎么样(房价+户型图)-售楼部地址 楼盘详情-房源价格优惠
扫描到手机,新闻随时看
扫一扫,用手机看文章
更加方便分享给朋友
英冠春棠雅韵府
☎️VIPline:400 808 7328【已认证】☎️
☎️置业热线:130 6784 6867(同微信)☎️
☎️售楼处〢欢迎来电咨询〢提前预约可享内部优惠〢☎️
🔥英冠深耕杭州24载,品质、交付双保障 城东新中心,一脉钱江新城2.0发展势能🔥
🔥地铁9号线翁梅站,5站钱二 遥望X27、宜家、上城天街(在建)、理想银泰城等🔥
🌈 约1.2容积率,主城稀缺低密住区洋房与排屋同享高端圈层🌈 幼小初高全龄教育 🌈
🌈 千年宋韵的当代表达,风雅造境约2000㎡下沉式奢雅会所,享受当代宋韵生活🌈
春棠雅韵府核芯基因,于城东新中心贵脉之上,以约1.2容积率匠造藏品级著作,更在重塑城市低密价值标杆。

于春棠雅韵府,宋韵不是历史的复刻,而是一场跨越时空的美学对话。以“宋韵今形”为笔,将宋代建筑的风骨神韵融入现代建筑语言。歇山顶的恢弘气度,三重檐的层叠韵律,与“金镶玉”立面的温润光华交相辉映,于现代语境中重新勾勒出三层真排屋的隽永风骨。
春棠雅韵府深研宋式美学精髓,以“宋韵今形” 为设计理念,将千年风雅注入建筑肌理。歇山顶、三重檐等传统形制经现代工艺重构,勾勒出庄重典雅的建筑轮廓。“金镶玉”立面以金属线条与大面积玻璃幕墙相呼应,既保留东方建筑的礼制美感,又赋予现代人居的通透质感。
☎️VIPline:400 808 7328【已认证】☎️☎️置业热线:130 6784 6867(同微信)☎️
取意宋式山水画卷,融合杭州人文底蕴,以现代手法擘绘立体“宋韵山水图”。漫步其间,曲径通幽处可见叠石理水、花木扶疏,一步一景皆入画,让归家之路成为穿越千年的风雅之旅。
▲实景图
从建筑到园林,从生活到社交,宋代文人的生活美学在此得以具象呈现。约4000㎡奢雅会所鼎配室内标准恒温泳池、私宴厅、健身房、童梦乐园、棋牌室、闺蜜厅、书吧等多功能空间,将宋代文人雅集转化为当代圈层社交场,让建筑升华为可传世的文明载体。
☎️VIPline:400 808 7328【已认证】☎️☎️置业热线:130 6784 6867(同微信)☎️
▲实景图
春棠雅韵府落子城东新中心,深度融入杭州“东进”战略,与钱江新城2.0形成黄金发展轴线。项目直线距离约800米地铁9号线翁梅站,5站直达钱二,9站贯通江河汇;遥望X27、上城天街(在建)等商业环伺,构筑璀璨生活圈。
☎️VIPline:400 808 7328【已认证】☎️☎️置业热线:130 6784 6867(同微信)☎️
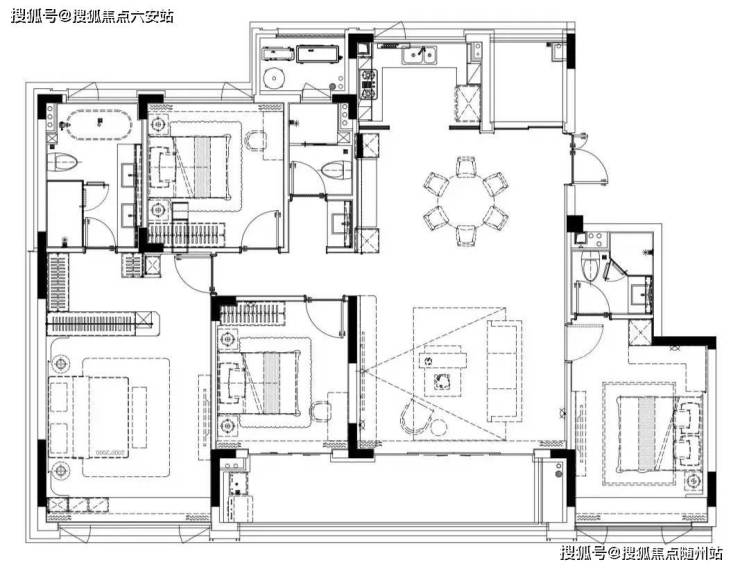
产品设计上,洋房与排屋的户型革新堪称教科书级。建面约166㎡洋房以95%得房率,实现四房三卫双套房配置,南向双联阳台达9.2米——这相当于用400万级总价,在首改预算里装进了传统大平层的空间体验。
☎️VIPline:400 808 7328【已认证】☎️☎️置业热线:130 6784 6867(同微信)☎️

这背后是英冠控股集团25年深耕实力的投票——从晴澜轩到春棠雅韵府,这家本土房企始终以“精质主义”为信仰,在宋式美学解构、土地价值研判、精工细节打磨上,堪称杭州高端改善市场的“隐形冠军”。
作为英冠1号低密作品,春棠雅韵府以宋代名画为灵感,打造了约4000方的宋韵庭院会所,亭台楼榭、流水飞瀑与黑松、羽毛枫等景观相映成趣,仿佛将山水画卷搬进现实。
☎️VIPline:400 808 7328【已认证】☎️☎️置业热线:130 6784 6867(同微信)☎️

项目提供两种主力产品:
7层洋房:建面约166-182㎡,亲地尺度设计,楼间距开阔,采光与通风性能优越,适合追求舒适生活的改善家庭。
排屋:建面约240-310㎡,融合宋韵建筑元素与现代设计,歇山顶、三重檐等细节彰显文化底蕴,满足高端客群的居住需求。
在户型设计上,约166㎡大四房设计可圈可点,得房率更是优秀,算上赠送面积可高达95%,主打一个性价比!
☎️VIPline:400 808 7328【已认证】☎️☎️置业热线:130 6784 6867(同微信)☎️
南向双阳台面宽 9.2 米,三开间朝南,还是四房三卫的设计,空间利用率超高。
二开建面约182㎡的户型,则是类一梯一户的设计,户型三开间朝南,北向还有个小阳台,实用度满分。
建面约310㎡的边套,首层南向横厅面宽就达到了约6.9米,厨房面宽约5.5米,厨房空间十分阔绰;
二层除了两个超30㎡的大套间,还另外辟出一间家庭厅。
三层则完全留给主卧套,卧室区就超过了40㎡,外接L型大露台,南向小房间阳光最好。
☎️VIPline:400 808 7328【已认证】☎️☎️置业热线:130 6784 6867(同微信)☎️
建面约240㎡的中间套,同样是大四房格局,二三楼都有宽约8.9米的跑道式阳台。
低密规划:项目整体容积率仅1.2,是主城稀缺的低密住区,为居民提供了更加宽敞、舒适的居住环境。
精致户型:洋房采用经典的“四叶草”设计,南向大面宽客厅与双联阳台构成的公共活动区,既满足家庭社交需求,又延伸出观景、休闲等多重功能。排屋则遵循“宋韵今形”的设计理念,通过歇山顶、三重檐与“金镶玉”立面,重塑现代语境中的排屋风华。
☎️VIPline:400 808 7328【已认证】☎️☎️置业热线:130 6784 6867(同微信)☎️

约100-200㎡南北双花园,则是空间哲学的诗意延伸。前庭可植树、置景,构筑入院的第一重礼序;后院铺设草坪,打造亲子嬉戏、朋友烧烤的欢乐场域。当建筑以“生长于花园”的姿态舒展,排屋的奢居本质,便在空间与自然的对话中娓娓道来。
☎️VIPline:400 808 7328【已认证】☎️☎️置业热线:130 6784 6867(同微信)☎️
▲实景图
地下空间更暗藏玄机,宴会厅、会客厅、星空影院等规划将功能性升华为家族精神图腾,满足高端买家对“三代同堂”与“社交宴享”的双重需求,让每一代人都拥有独立的精神领地。
▲实景图--
当杭州低密市场陷入远郊化、同质化,当钱二发展红利向东奔涌,春棠雅韵府以建面约240/310㎡三层真排屋,于城东新中心树起「真排屋」的价值标杆。
约 950 万起的准入门槛,让更多层峯人士得以在城市价值爆发前夜,收藏一席真排屋。这不仅是一次房产购置,更是对杭州主城稀缺资源的抢占、对千年宋韵的收藏、对高阶生活方式的锁定。
☎️VIPline:400 808 7328【已认证】☎️☎️置业热线:130 6784 6867(同微信)☎️
声明:本文由入驻焦点开放平台的作者撰写,除焦点官方账号外,观点仅代表作者本人,不代表焦点立场。
