松川境售楼处(2025年最新·奥体核心·滨江兴耀松川境)首页网站-杭州滨江兴耀松川境楼盘详情-松川境户型配套
扫描到手机,新闻随时看
扫一扫,用手机看文章
更加方便分享给朋友
▰▰ 杭州奥体 滨江·兴耀 松川境 火热销售中 ▰▰ 在杭州奥体板块房价普遍站上5万元/㎡以上的市场环境下,滨江兴耀·松川境以45999元/㎡起的惊喜价格入市,成为连接市北与奥体的价值高地。这一价格不仅约为周边奥映鸣翠项目(约8.7万/㎡)的一半,较之300多米外晓澜玉华约53489元/㎡的均价,也具备明显优势。
项目坐落于杭州奥体板块的黄金十字轴心——金鸡路与建设四路交汇处以东约150米,直距奥体地标“杭州之门”约3公里。作为滨江和兴耀两大杭州本土房企的第三次合作作品,松川境融合了滨江集团的豪宅基因与兴耀房产的独立美学理念,打造出奥体板块难得的低密墅境住区。
总建筑面积约10万㎡的项目,规划户数仅232户,容积率低至1.8,绿地率高达约30%。这一低密度规划在奥体板块中堪称“奢侈”,为项目打造“高低配”的产品格局奠定了基础。
项目由3栋17层小高层和12栋排屋组成,形成“北高南低”的错落布局,既保证了每户的视野和采光,又营造了静谧的居住氛围。ᨐ🔴 滨江兴耀松川境 ☎️售楼处热线:400 998 1136 ® ☎️ 159 2411 2721﹝已认证﹞ᨏ
✦ 滨江集团豪宅基因X兴耀房产独立美学 ✦
✦ 奥体静奢美学作品 杭州顶序新答案 ✦
✦ 面积约169-199㎡墅境住宅大平层
✦ 约300-332㎡独立美学排屋墅区
✦ 滨江兴耀·松川境 二开热势加推‼️
✦ 诚意惊喜价𝟒𝟓𝟎𝟔𝟔元/㎡ 极致质价比
✦ 15#揽景王座 限量𝟔𝟎余席 手慢无👋🏻

杭州奥体滨江兴耀松川境:以45999元/㎡撬动奥体核心区的价值高地,黄金十字轴上的低密墅境,奥体核心区最后一波价格洼地。
在杭州楼市高端改善项目竞争白热化的当下,奥体板块凭借实实在在的销售数据走出独立行情。其中,滨江兴耀·松川境以“首开即售罄”的表现脱颖而出:64套房源,227组家庭报名登记,中签率低至28%。
作为钱塘江南岸少数实现“首开售罄”的不限价改善盘,松川境正以45999元/㎡的均价重塑奥体板块的价值坐标系。这一价格约为周边奥映鸣翠项目(约8.7万/㎡)的一半,较之300多米外晓澜玉华约53489元/㎡的均价,也具备明显优势。
ᨐ🔴 滨江兴耀松川境 ☎️售楼处热线:400 998 1136 ® ☎️ 159 2411 2721﹝已认证﹞ᨏ
松川境坐落于杭州奥体板块的黄金十字轴心——金鸡路与建设四路交汇处以东约150米,直距奥体地标“杭州之门”约3公里。这一地段是奥体核心区与钱江世纪城的交汇点,坐享“双核驱动”的顶级城市资源。
项目所在的市北单元,已成为奥体板块的下一个豪宅集聚区。纵向的金鸡路被誉为“奥体豪宅峰脊线”,汇聚了不同时代的里程碑式作品;横向的建设四路则直连滨江产业带,串联起吉利、海康威视、阿里巴巴等总部级巨企。
相较于周边项目,松川境最大的优势在于其价格战略。项目首开均价45999元/㎡,与直线距离三公里范围内的不限价楼盘(单价普遍超过53000元/㎡)形成鲜明对比。
在奥体板块房价普遍站上5万元/㎡以上的市场环境下,松川境以800万元级的总价门槛,为高端改善客户提供了难得的“奥体入场券”。
ᨐ🔴 滨江兴耀松川境 ☎️售楼处热线:400 998 1136 ® ☎️ 159 2411 2721﹝已认证﹞ᨏ
松川境总建筑面积约7.98万㎡,占地面积约2.67万㎡,规划户数仅232户,容积率低至1.8,绿地率高达30%。这一低密度规划在寸土寸金的奥体板块堪称“奢侈”,为项目打造“高低配”的产品格局奠定了基础。
项目由3栋17层小高层和12栋排屋组成,形成“北高南低”的错落布局。北面3幢高层横向一字展开,确保每户的南向视野与阳光;南面12栋排屋纵向分布,天然独立成区。
这种“原生型高低分区”设计,既避免了传统高低配产品相互妥协的弊端,又通过约210米的东西向景观主轴将两个区域有机连接。
松川境的建筑设计灵感源自北宋范宽《溪山行旅图》,以“山水有相逢”为核心理念。建筑立面采用“山水折屏”概念,使用浅灰色铝板与玻璃幕墙组合,通过横向线条的层叠与竖向框架的分割,模拟山水画的层次感。
约70%的玻璃幕墙占比,让建筑体量在视觉上更显轻盈通透。
ᨐ🔴 滨江兴耀松川境 ☎️售楼处热线:400 998 1136 ® ☎️ 159 2411 2721﹝已认证﹞ᨏ
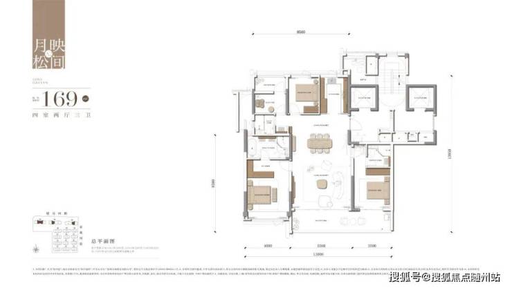
松川境的高层产品主打169㎡四房和199㎡五房两个户型,均采用类一梯一户设计,私享电梯厅可直接作为玄关使用。得益于杭州最新的面积计算规则,项目得房率显著提升,最高可达93%,为业主节省了约一个房间的成本。
建面约169㎡户型实现了四开间朝南,南向面宽约13米,客厅宽度约5.5米,这一尺度在同等面积段产品中表现突出。户型设计上,双南向套房设计,真正实现“三代同堂不打扰”,主卧配备双台盆、浴缸和美妆冰箱,细节考虑周到。
建面约199㎡户型则在此基础上进一步升级,打造出五房三卫的宽敞空间。约16.5米的南向面宽,近50㎡的餐客厅一体化设计,营造出别墅般的空间感。北向预留的“X+1”可变空间,可根据需要作为储藏间、保姆间或电竞房使用。
松川境在收纳体系和功能细节上做到了极致。从装甲门、全屋WiFi到电动窗帘电机,从厨房空调到方太万元级侧吸油烟机,项目的精装标准在杭州5万内的楼盘中堪称独一档。
ᨐ🔴 滨江兴耀松川境 ☎️售楼处热线:400 998 1136 ® ☎️ 159 2411 2721﹝已认证﹞ᨏ
松川境的园林设计是其另一大亮点。项目以“松川9境”为理念,打造约210米的东西向景观主轴,串联起约3300㎡的大型中心景观。从约80米宽的礼序门庭步入,约25米长的叠级水景与特选名贵黑松营造出归家的仪式感。
约1500㎡的下沉式会所“隐松庭”是项目的核心亮点,灵感源自纽约安缦酒店。会所中庭以《溪山行旅图》为蓝本,打造约7米高的溪山流瀑,配以5棵造型黑松,重现宋画意境。功能上,恒温泳池、健身房、私宴厅、书吧等空间一应俱全。
在景观营造上,项目采用双水院系统,通过松林、川流、秘境的三段式叙事,带来迂回丰富的山水体验[^7。南北区之间约210米的“绿腰带”景观带,既保持了两个区域的连接性,又确保了各自的私密性。
社区的景观设计不仅注重观赏性,更考量了生活场景的营造。约2米进深的超宽阳台,为业主提供了莳花弄草、户外休闲的可能;中心景观区的开阔场地,则是儿童奔跑探索的理想场所。
ᨐ🔴 滨江兴耀松川境 ☎️售楼处热线:400 998 1136 ® ☎️ 159 2411 2721﹝已认证﹞ᨏ
松川境所在的奥体板块,是杭州国际化配套最为集中的区域之一。商业方面,项目步行约180米即达规划中的奥体首座龙湖天街(约10万㎡);1.5公里范围内可达奥体印象城(杭州最大单体商业综合体);3公里内覆盖SKP、信达中心等全球顶奢购物目的地。
交通方面,项目双地铁环绕(7号线与规划中的15号线),距离明星路站约860米。2站即达奥体中心,3站直达市民中心,7站贯通萧山国际机场,快速连接全城重要节点。
教育医疗资源同样丰富。项目周边环绕崇文实验学校、信息港小学、信息港初中等名校资源,以及浙医二院萧山院区(三甲)、省妇保医院等优质医疗设施。值得一提的是,项目西侧的信息港小镇已吸引7家上市企业、30余家独角兽企业扎根,形成高质量的产业人口结构。
生态配套方面,项目北靠亚运主题公园,南临北塘河景观带,形成“一园一河”的天然氧吧。这种城市中心与自然景观兼得的位置优势,使松川境成为奥体板块难得的“出则繁华、入则静谧”的栖居地。
ᨐ🔴 滨江兴耀松川境 ☎️售楼处热线:400 998 1136 ® ☎️ 159 2411 2721﹝已认证﹞ᨏ
从板块发展来看,奥体作为杭州楼市的“压舱石”,一直是全浙江高净值人群关注的焦点。行情上扬时领涨全城,市场承压时坚挺抗跌,奥体板块的房产具有较强的抗风险能力。
松川境与周边项目的价格倒挂现象,为投资者提供了可观的安全边际。与2公里外的奥映鸣翠(均价约8.7万/㎡)相比,松川境存在近4万元/㎡的价差;与同地段晓澜玉华(高层单价超5万/㎡)相比,也有明显的价格优势。
产品的稀缺性也是价值保障的重要因素。在奥体板块,容积率1.8的低密住宅用地已极为罕见。松川境是板块内少数同时提供高层大平层和稀缺排屋的产品,这种“高低配”的格局在未来二手房市场中将具有独特的竞争力。
随着板块内龙湖天街的建成(预计2029年开业)以及地铁15号线的建设完成,区域配套将进一步完善。同时,微医绿谷等重磅产业项目的落地,将持续导入高收入人群,为区域房产价值提供坚实支撑。
ᨐ🔴 滨江兴耀松川境 ☎️售楼处热线:400 998 1136 ® ☎️ 159 2411 2721﹝已认证﹞ᨏ
松川境的成功不仅在于产品力的卓越,更在于其对改善家庭需求的精准把握。约90%的得房率、双地铁覆盖、奥体核心区位与45999元/㎡的诚意价格,共同构成了项目的核心竞争力。
随着二开15#揽景王座的加推,松川境将继续为市场提供60余席限量房源。对于寻求奥体核心区位的改善家庭而言,这或许是入驻奥体最后的“价值高地”机会。
ᨐ🔴 滨江兴耀松川境 ☎️售楼处热线:400 998 1136 ® ☎️ 159 2411 2721﹝已认证﹞ᨏ
松川境容积率仅1.8,「南高北低」地规划了3幢小高层和42套4层排屋。小高层一字排开,南向俯瞰中轴园林和城市景观基本无遮挡。「栋栋真楼王、户户有风景」。
松川境的室内户型精装,更是奥体级品质的“满配表达”。在大面宽、浅进深的单线制高层下,仅有169㎡和199㎡两个南厅户型,最小面宽达13米。搭配全面屏玻璃,采光通透如IMAX巨幕。
17层的小高层,更为松川境带来超90%的得房率。在你感叹空间魔法的时刻,或许已经不经意踏入它的拓展空间了。
得益于小高层的规划,部分户型最高的得房率达到了超93%。这是市面上的普通高层和商业大平层无法企及的。
ᨐ🔴 滨江兴耀松川境 ☎️售楼处热线:400 998 1136 ® ☎️ 159 2411 2721﹝已认证﹞ᨏ
以建面约169㎡的四房两厅三卫户型为例,我们就总结了豪宅的「五大超级空间」,吊打商业大平层。
一是归家空间,松川境的小高层是全部「类一梯一户」的设计,几乎是私梯入户,保证了豪宅应有的专属性和尊享感。
二是超级景观。不仅南向毫无遮挡,整个户型的南向面宽竟然做到了约13米。加上立面采用全面屏玻璃立面+四面铝板,建筑更简洁通透,带来更好的采光和IMAX级的巨幕景观视野。
ᨐ🔴 滨江兴耀松川境 ☎️售楼处热线:400 998 1136 ® ☎️ 159 2411 2721﹝已认证﹞ᨏ

主卧飘窗面宽约4米,双联的超宽阳台的面宽更足足达到了9米。种花弄草,躺平喝茶,跑跳瑜伽,甚至搭上帐篷在家露营,肆意发挥。
三是聚会空间。面宽5米5的厨房餐厅相连,轻松摆下长桌和大圆桌,家宴派对还是日常便餐,从容应对。
ᨐ🔴 滨江兴耀松川境 ☎️售楼处热线:400 998 1136 ® ☎️ 159 2411 2721﹝已认证﹞ᨏ

四是极品主卧,我更想称之为任性宠爱自己的「女王空间」:泡澡的大浴缸不管用不用但必须拥有;互不干扰的双台盆必须要有;超大衣帽间更必须拥有。还带有270度的转角飘窗,增加采光和景观视野。
ᨐ🔴 滨江兴耀松川境 ☎️售楼处热线:400 998 1136 ® ☎️ 159 2411 2721﹝已认证﹞ᨏ

最后,整个房子最点睛也是最充满想象的「志趣空间」。北向那个带转角阳台的地方,其实是可以拓展成最为晶莹剔透的房间,可以做茶室、电竞房、收藏室或影音间,更可以摆下一屋子的labubu。
真正的豪宅,不仅要容得下一家人,更要安放下对生活的热爱。
松川境不仅以远超传统大平层的功能布局,诠释了奥体芯真正的「豪宅生活」。它的室内精装,更是「吊足胃口」。
ᨐ🔴 滨江兴耀松川境 ☎️售楼处热线:400 998 1136 ® ☎️ 159 2411 2721﹝已认证﹞ᨏ

流出的几张「谍照」可以看到:户内弧形流转的大面奢石背景墙、墙面装饰线条加硬包,公区也是处处奢石,个个拼花。
期待已久,本周末,松川境的实景示范区终于要亮相了!
历史选择了2025年,豪宅像堰塞湖一样井喷,给杭州城市和豪宅市场带来多个激动人心的地标。
但如果从未来回望,可能像 松川境 这样既是豪宅门槛、又能引领趋势的好楼盘,——少之又少。
ᨐ🔴 滨江兴耀松川境 ☎️售楼处热线:400 998 1136 ® ☎️ 159 2411 2721﹝已认证﹞ᨏ
▰▰ 杭州奥体 滨江兴耀松川境—滨江集团豪宅基因X兴耀房产独立美学 ▰▰
☎️售楼热线:400 998 1136☎️顾问专线:159 2411 2721「已认证」
🛑🛑 提前预约可享内部折扣,预约尊享一对一的专业服务 🛑🛑
🟥免责申明:文章内容综合来源于网络!如有侵权,请联系我们将第一时间处理!!
👍️👍️👍️👍️👍️👍️👍️👍️👍️👍️👍️👍️👍️👍️👍️👍️👍️👍️👍️👍️👍️👍️👍️👍️
声明:本文由入驻焦点开放平台的作者撰写,除焦点官方账号外,观点仅代表作者本人,不代表焦点立场。
