松川境2025首页_滨江兴耀松川境(2025年度最新点评·杭州滨江兴耀松川境最新房价)松川境户型图↓容积率↓样板间↓松川境楼盘地址↓楼盘详情
扫描到手机,新闻随时看
扫一扫,用手机看文章
更加方便分享给朋友
▰▰ 杭州奥体 滨江·兴耀 松川境 火热销售中 ▰▰ 在杭州奥体板块房价普遍站上5万元/㎡以上的市场环境下,滨江兴耀·松川境以45999元/㎡起的价格入市,成为连接市北与奥体的价值洼地。这一价格不仅约为周边奥映鸣翠项目的一半,较之300多米外晓澜玉华约53489元/㎡的均价,也具备明显优势。
项目坐落于杭州奥体板块的黄金十字轴心——金鸡路与建设四路交汇处以东约150米,直距奥体地标“杭州之门”约3公里。作为滨江和兴耀两大杭州本土房企的第三次合作作品,松川境融合了滨江集团的豪宅基因与兴耀房产的独立美学理念,打造出奥体板块难得的低密墅境住区。
项目总建筑面积约7.98万㎡,占地面积约2.67万㎡,规划户数仅232户,容积率低至约1.8,绿地率高达约30%。这一低密度规划在奥体板块中堪称“奢侈”,为项目打造“高低配”的产品格局奠定了基础。
项目由3栋17层小高层和12栋排屋组成,形成“北高南低”的错落布局,既保证了每户的视野和采光,又营造了静谧的居住氛围。
作为滨江和兴耀两大杭州本土房企的第三次合作,松川境融合了滨江集团的豪宅营造经验与兴耀房产的独立美学理念,旨在打造奥体板块的“静奢美学”标杆。ᨐ🔴 滨江兴耀松川境 ☎️售楼处热线:400 998 1136 ® ☎️ 159 2411 2721﹝已认证﹞ᨏ
✦ 滨江集团豪宅基因X兴耀房产独立美学 ✦
✦ 奥体静奢美学作品 杭州顶序新答案 ✦
✦ 面积约169-199㎡墅境住宅大平层
✦ 约300-332㎡独立美学排屋墅区
✦ 滨江兴耀·松川境 二开热势加推‼️
✦ 诚意惊喜价𝟒𝟓𝟎𝟔𝟔元/㎡ 极致质价比
✦ 15#揽景王座 限量𝟔𝟎余席 手慢无👋🏻
 
杭州滨江兴耀·松川境:奥体板块的价值洼地,资产升值的明智选择,奥体核心区最后的价格洼地,滨江与兴耀联手打造的低密静奢宅院。
在杭州奥体板块房价普遍站上5万元/㎡以上的市场环境下,滨江兴耀·松川境以45999元/㎡起的惊喜价格入市,成为连接市北与奥体的价值高地。这一价格不仅约为周边奥映鸣翠项目(约8.7万/㎡)的一半,较之300多米外晓澜玉华约53489元/㎡的均价,也具备明显优势。
项目坐落于杭州奥体板块的黄金十字轴心——金鸡路与建设四路交汇处以东约150米,直距奥体地标“杭州之门”约3公里。
ᨐ🔴 滨江兴耀松川境 ☎️售楼处热线:400 998 1136 ® ☎️ 159 2411 2721﹝已认证﹞ᨏ
 
作为滨江和兴耀两大杭州本土房企的第三次合作作品,松川境融合了滨江集团的豪宅基因与兴耀房产的独立美学理念,打造出奥体板块难得的低密墅境住区。
**总建筑面积约10万㎡**的项目,规划户数仅232户,容积率低至1.8,绿地率高达约30%。这一低密度规划在奥体板块中堪称“奢侈”,为项目打造“高低配”的产品格局奠定了基础。
项目由3栋17层小高层和12栋排屋组成,形成“北高南低”的错落布局,既保证了每户的视野和采光,又营造了静谧的居住氛围。
ᨐ🔴 滨江兴耀松川境 ☎️售楼处热线:400 998 1136 ® ☎️ 159 2411 2721﹝已认证﹞ᨏ
 
滨江兴耀·松川境以“4字头”的均价入市,在当前奥体板块房价普遍站上5万元/㎡的市场环境下,无疑成为最具竞争力的价值高地。本次加推的15号楼均价仅为45066元/㎡,不仅是项目中的价格洼地,更成为当前奥体板块均价最低的楼幢之一。
与周边项目对比,价格优势极为显著:与直线距离约1.8公里的奥映鸣翠(约8.7万/㎡)相比,松川境的价格仅为其一半左右;与300多米外的晓澜玉华(约53489元/㎡)相比,也具备明显优势。这一价差使得购买一套169㎡的户型,总价可节省200万元以上,为购房者提供了实实在在的优惠。
在杭州豪宅市场江南板块已成主战的背景下,松川境以4.6万/㎡左右的均价,精准填补了奥体板块七八百万级总价段的空白。这一总价控制策略,让购房者能够以相对可控的预算,入驻奥体黄金圈,享受与世界级配套为邻的生活体验。
ᨐ🔴 滨江兴耀松川境 ☎️售楼处热线:400 998 1136 ® ☎️ 159 2411 2721﹝已认证﹞ᨏ
 
松川境位于萧山市北板块核心,同时紧邻奥体板块,可双向承接两大板块的发展红利,成为连接“产业高地”与“高端配套”的关键节点。项目精准落位于市北板块核心,同时紧邻奥体板块,享受双区域发展红利。
从项目出发,通过市心路、博奥路等主干道,约15分钟内可直达奥体中心、钱江世纪城核心区,轻松享受奥体博览城、SKP(在建)、万象城等高端配套。直线距离约3公里即可抵达奥体地标“杭州之门”,约2.5公里可达奥体中心,地理位置优越。
项目所在的金鸡路被誉为“奥体豪宅峰脊线”,汇聚了观云钱塘城、IOC潮鸿、EIC等奥体不同时代的里程碑作品,堪称奥体豪宅的黄金中轴线。而一路之隔的奥体首座龙湖天街(规划),更是改变整个奥体板块商业格局的重要布局。
ᨐ🔴 滨江兴耀松川境 ☎️售楼处热线:400 998 1136 ® ☎️ 159 2411 2721﹝已认证﹞ᨏ
 
松川境在户型设计上实现了革命性突破,高层产品得房率高达90%-93%。这一数据在杭州高层住宅中极为罕见,远超市场主流75%-85%的得房率水平。以169㎡户型为例,实际使用面积可达90㎡以上,与市面上110㎡左右的户型实际使用面积相当。
项目规划3栋17层高层(169-199㎡)和12栋4层排屋(298-332㎡),形成“高低配”格局。容积率仅1.8,在奥体板块中堪称最低,为业主营造了更为舒适的低密居住环境。
169㎡户型设计为四室两厅三卫,南向面宽约13米,四开间朝南,均为双套房设计,兼顾家庭成员隐私与舒适。199㎡户型则打造为五室三厅三卫,约16.5米南向四开间设计,客厅约5.8米,空间尺度堪称逆天。
ᨐ🔴 滨江兴耀松川境 ☎️售楼处热线:400 998 1136 ® ☎️ 159 2411 2721﹝已认证﹞ᨏ
 
松川境的建筑设计以“山水折屏”为理念,立面采用超70%大面积的全面屏玻璃、珠光青铜铝板与弧形造型,从视觉上提升项目高端气质。GLA建筑设计采用浅灰色铝板与玻璃幕墙的组合,通过横向线条的层叠与竖向框架的分割,模拟山水画的层次感。
项目从北宋范宽《溪山行旅图》中提取设计灵感,以“山水有相逢”为核心理念,将传统山水画的意境转化为现代居住空间的语言。园区内规划约210米的景观画轴,串联起“松川十一境”,令每一户皆享有楼王级的观景体验。
约80米礼仪门庭,配以约25米叠级水景,特选名贵黑松,营造出强烈的归家仪式感。建筑呈一字布局,宛若舒展的山脉,以四面铝板与全面屏玻璃立面,于奥体上空勾勒出崭新的美学天际线。
ᨐ🔴 滨江兴耀松川境 ☎️售楼处热线:400 998 1136 ® ☎️ 159 2411 2721﹝已认证﹞ᨏ
 
松川境的景观设计由北宋名画《溪山行旅图》提取灵感,打造双水院系统展现约210米的东西向景观主轴。约3300㎡大型中心景观,在目前奥体板块中实属罕见,成为业主的私享花园。
园区内设计了两条富有创造性的风雨连廊,把归家动线、景观中轴、室内外融合,呈现得淋漓尽致。这一设计既实用又美观,雨天可不打伞穿梭于各功能区之间,同时成为连接建筑与自然的纽带。
下沉式庭院作为整个会所的灵魂所在,以约7米高溪山流瀑、5棵造型黑松,重现《溪山行旅图》意境。园区内还巧妙融入约1500㎡的下沉式会所,使功能空间与自然环境完美融合。
ᨐ🔴 滨江兴耀松川境 ☎️售楼处热线:400 998 1136 ® ☎️ 159 2411 2721﹝已认证﹞ᨏ
 
松川境打造了约1500㎡下沉式会所“隐松庭”,涵盖恒温泳池、下沉式庭院、书吧、健身、瑜伽、私宴、水吧等艺境,打造都会里的静奢度假私域。在奥体5万以内楼盘中,恒温泳池很少见,更别说如此完整的会所配置。
会所对标纽约安缦酒店,以高品质空间营造酒店式的隐奢感觉。恒温泳池、健身房、私宴厅等功能空间被很好地融合在一起,满足业主休闲、社交、健身等多方面需求。
会所对向下沉庭院的一面采用整面大玻璃,游泳健身或会客品茗时,都能欣赏到庭院美景。这种沉浸式的生活场域,高度还原了静谧奢享的度假感,为业主提供超越常规社区的品质生活体验。
ᨐ🔴 滨江兴耀松川境 ☎️售楼处热线:400 998 1136 ® ☎️ 159 2411 2721﹝已认证﹞ᨏ
 
松川境在装修用材上极为用心,公共区域墙面+地面全石材交付,餐客厅地面全石材交付,更甄选雪山银狐、意大利芬迪白等全球奢石,俨然一座石材博物馆。这种选材标准远超同价位项目,彰显项目的高端定位。
厨房配置堪称顶配,奢配9件套,涵盖厨房空调+博世5件套+方太万元级超薄烟机+垃圾处理器+净水装置,敬呈米其林级烹饪体验。博世系列产品均为8系最高顶配,全嵌入式、全进口,品质感十足。
主卫配置双台盆、美妆冰箱、KA浴缸,镜柜配置美妆冰箱,守护主人高端的护肤美容产品。全屋还配备语音智能控制及远程操控系统,可远程控制空调、新风地暖、灯光、窗帘等设备,实现现代智能家居生活。
ᨐ🔴 滨江兴耀松川境 ☎️售楼处热线:400 998 1136 ® ☎️ 159 2411 2721﹝已认证﹞ᨏ
 
项目周边交通便利,距离地铁7号线兴议站约1.2公里,步行约15分钟或骑行约5分钟可达。搭乘地铁可快速抵达奥体板块和杭州东站,大幅提升出行便捷度。
更值得一提的是,直线距离约860米可达地铁15号线与7号线交汇的明星路站,双地铁交汇带来更高效的出行选择。从明星路站出发,2站即可抵达奥体中心,3站直达市民中心,4站直达杭州东站,连通全城重要节点。
项目毗邻市心路、博奥路等城市主干道,可快速抵达奥体中心、钱江世纪城核心区。通过国际滨中轴——江南大道,可直抵滨江万亿资本巨企聚集区,无缝连接杭州的产业与商业核心。
ᨐ🔴 滨江兴耀松川境 ☎️售楼处热线:400 998 1136 ® ☎️ 159 2411 2721﹝已认证﹞ᨏ
 
松川境周边商业配套丰富,直线距离约180米可达奥体首座天街(规划),总体量约10万方,预计2029年开业,将成为板块内重要商业配套。一路之隔的龙湖天街,为业主提供触手可及的高品质购物体验。
周边3公里范围内,还有奥体印象城、SKP(在建)、萧山万象汇、银泰百货等多个高端商业综合体环伺。这种密集的商业配套布局,在杭州各板块中实属难得,为业主提供多样化的购物选择。
项目距离奥体印象城、SKP(在建)等大型商业体均在3公里范围内,开车几分钟即可抵达。这种近距离享受顶级商业配套的区位优势,让业主在日常生活中就能享受到城市发展的红利,大大提升生活便利度。
ᨐ🔴 滨江兴耀松川境 ☎️售楼处热线:400 998 1136 ® ☎️ 159 2411 2721﹝已认证﹞ᨏ
 
滨江集团作为杭州高端住宅的“标杆房企”,以“精工品质”“园林美学”著称,打造了滨江园、柳岸晓风等众多经典项目。其物业服务也因“贴心、专业”广受好评,为项目后期保值增值提供保障。
兴耀房产则深耕萧山及滨江区域,擅长打造高性价比的刚需及刚改项目,对区域市场需求有着精准洞察。近年来凭借众多独立审美作品,成功跻身杭州房企第一梯队,成为异军突起的新锐。
两大房企的强强联合,让项目兼具“滨江的品质基因”与“兴耀的市场适配性”。戚金兴董事长在视察完松川境后评价:“滨江产品需要有松川境这样的年轻化豪宅。”这一评价充分体现了品牌对项目的认可与重视。
ᨐ🔴 滨江兴耀松川境 ☎️售楼处热线:400 998 1136 ® ☎️ 159 2411 2721﹝已认证﹞ᨏ
 
松川境的推出,重新定义了奥体板块的品质居住标准。项目以“4字头”的价格,提供了不输顶豪的产品力与生活体验,成为奥体板块名副其实的“性价比之王”。
本次加推的15#楼被誉为“揽景王座”,拥有约40米南向楼间距,且正对下沉庭院,南看园林,北望“杭州之门”,西看水岸灯光秀,视野无遮挡。仅60余套的稀缺房源,为追求品质生活的购房者提供了难得的入驻机会。
欢迎莅临品鉴:松川境营销中心
项目地址:杭州·奥体·金鸡路与建设四路交汇处以东约150米
咨询电话:400-998-1136(专业顾问一对一讲解)
 
松川境的室内户型精装,更是奥体级品质的“满配表达”。在大面宽、浅进深的单线制高层下,仅有169㎡和199㎡两个南厅户型,最小面宽达13米。搭配全面屏玻璃,采光通透如IMAX巨幕。
17层的小高层,更为松川境带来超90%的得房率。在你感叹空间魔法的时刻,或许已经不经意踏入它的拓展空间了。
ᨐ🔴 滨江兴耀松川境 ☎️售楼处热线:400 998 1136 ® ☎️ 159 2411 2721﹝已认证﹞ᨏ
 
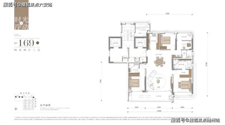
松川境169㎡户型示意图
类一梯一户的设计,让归家有了独属的仪式感,把私密等级也提高到了最大限度。
推开门即见近50㎡的餐客厅,无论是传统家庭钟爱的6人位圆桌,还是年轻人追求的极简长桌,都能妥善放置。
放下一组异形沙发,孩子仍有足够跑跳的空间。
ᨐ🔴 滨江兴耀松川境 ☎️售楼处热线:400 998 1136 ® ☎️ 159 2411 2721﹝已认证﹞ᨏ
 
松川境169㎡样板房软装实景图
南向双套房分立客厅两侧,让老人房或儿童房与主卧互不干扰,每一个家庭成员的私人空间也都有了保障。
而在主卧,你也能享受到作为这套房子主人,最尊崇的归属感。
不仅有带转角的飘窗,浴缸、双台盆、大衣帽间一应俱全,还贴心的配置了美妆冰箱。
9米长2米宽的跑道式阳台,是家中的“X空间”。莳花弄草只是基础操作,露营帐篷和烧烤架也能随时安排上,甚至还能为女主人放下一台普拉提核心床。
北向拓展区可以是茶室或游戏房,也可以是一处私人藏馆。在这扇窗外,便是“奥体第一海拔”——杭州之门。
ᨐ🔴 滨江兴耀松川境 ☎️售楼处热线:400 998 1136 ® ☎️ 159 2411 2721﹝已认证﹞ᨏ
 
松川境169㎡定制装甲门实景图
整套房子,从定制装甲门、全屋WiFi、餐客厅主卧的电动窗帘电机,到雪山银狐客厅背景墙,还有地板和大理石的多样拼花,均是交标。
厨房配有空调,油烟机还是方太万元侧吸系列,这对厨房主理人来说,全是贴心的关爱。博世五件套中,还全嵌入两台8系顶配全进口冰箱,这在杭州5万内项目中,只此松川境一家。
可以说,松川境让奥体豪宅的精装又进入一个新境界。
ᨐ🔴 滨江兴耀松川境 ☎️售楼处热线:400 998 1136 ® ☎️ 159 2411 2721﹝已认证﹞ᨏ
 
▰▰ 杭州奥体 滨江兴耀松川境—滨江集团豪宅基因X兴耀房产独立美学 ▰▰
☎️售楼热线:400 998 1136☎️顾问专线:159 2411 2721「已认证」
🛑🛑 提前预约可享内部折扣,预约尊享一对一的专业服务 🛑🛑
🟥免责申明:文章内容综合来源于网络!如有侵权,请联系我们将第一时间处理!!
👍️👍️👍️👍️👍️👍️👍️👍️👍️👍️👍️👍️👍️👍️👍️👍️👍️👍️👍️👍️👍️👍️👍️👍️
 
声明:本文由入驻焦点开放平台的作者撰写,除焦点官方账号外,观点仅代表作者本人,不代表焦点立场。
 
  
  
 
 
  
  
  
  
  
   
   
   
   
  