保利天奕(售楼处)官網 - 杭州保利天奕官方售楼处电话 → 环境 → 户型 → 价格 → 地址 → 余杭•保利天奕楼盘详情 → 交房时间 → 官方电话
扫描到手机,新闻随时看
扫一扫,用手机看文章
更加方便分享给朋友
▰▰ 杭州余杭 保利·天奕|最“奕”是杭州 总价399万起 入住未科核心区4房 ▰▰
🔰🔰⑉ılı⑉㊣保利·天奕㊣⑉ılı⑉售楼处🔰🔰⑉ılı⑉㊣保利·天奕㊣⑉ılı⑉售楼处🔰🔰
🔰🔰⑉ılı⑉㊣保利·天奕㊣⑉ılı⑉售楼处🔰🔰⑉ılı⑉㊣保利·天奕㊣⑉ılı⑉售楼处🔰🔰
☎️官方售楼处电话☎️:400 998 1136 ® ☎️ 159 2411 2721﹝官网已认证﹞
🟥🟧🟨🟩🏆以下为正文🏆🟥🟧🟨🟩
⬇️⬇️⬇️⬇️⬇️⬇️⬇️⬇️⬇️⬇️⬇️⬇️⬇️⬇️
✅🌈💜杭州余杭【 保利·天奕|最“奕”是杭州 】
✅🛑💖保利天奕|120方边套补货啦
✅🌈💖120方四房_硬核改善基础款
✅🛑💜边套3面采光_3开间朝南
✅🌈💜2个储物空间_综合使用率92%
✅🛑💖总价399万起 入住未科核心区4房
✅🌈💜澎湃中轴|西溪湿地|约30万方新奢松弛住区
✅🌈🔵杭州♥️保利天奕|余杭销冠王🥇
✅🛑💓103-175方满足不同居住需求
✅🌈🍀未科中轴 核心配套 标杆品质
✅🛑🍀2号线地铁口150米
✅🌈💓地铁口50米➕天元公学
✅🛑🍀出门即公园+豪华会所🍀
✅🌈💰建面约:104-135㎡ 高层住宅
✅🛑🌕地铁口/天元公学🎒高品质/值得拥有
✅☎️售楼处热线:400 998 1136 ﹝已认证﹞
一、 核心区位:占位杭州第三中心澎湃中轴
1. 城市战略高地
项目坐落于国家认定的杭州未来30年发展主场——第三中心核心区。这里是杭州从省会迈向世界级科创之都的关键引擎,汇聚城市发展势能。
2. 未科中轴芯地段
地处未来科技城澎湃中轴线之上,与梦溪水乡湿地、西溪湿地形成“黄金三角”占位,是板块内稀有的核心居住地块。
3. 产业巨头环伺
周边集聚阿里巴巴、vivo、字节跳动、杭州六小龙等头部科技企业,高净值人才与创新资源持续导入,奠定坚实价值基底。
4. 湿地生态资源
毗邻西溪湿地、五常湿地及云湖公园,共同构建约10公里城市湿地生态带,出则繁华,入则静谧。
5. 高能配套环绕
周边规划及在建约6万人足球场、余杭文化艺术中心、约60万方银泰中心、市民中心等千亿级城市配套,生活维度丰富。
6. 显著价差红利
相较于未科核心区新盘近5万元/平方米的单价,项目维持3万余元的价格体系,形成明显的价值洼地。
ᨐ🔴 保利天奕 ☎️售楼处热线:400 998 1136 ® ☎️ 159 2411 2721﹝已认证﹞ᨏ
二、 立体交通:双地铁环绕与高效路网
1. 零距离地铁口
项目距在建的杭州地铁12号线水乡南路站仅约50米,真正实现出家门即入站厅,预计2027年底通车。
2. 双地铁交汇优势
除12号线外,距离已运营的3号线全丰站约1公里,双线交汇极大拓展了出行半径与通勤效率。
3. 快速路网通达
通过天目山快速路可便捷链接杭州两大中心,形成高效的城市交通骨架,驾车出行十分便利。
4. 杭州西站枢纽
项目直线距离杭州西站约5公里,轻松接轨高铁网络,实现长三角一小时生活圈乃至更广范围的快速连接。
5. 全抬高设计分流
项目采用约5.4米全地库抬高设计,实现彻底的人车分流,地面为纯粹的步行景观系统,安全且静谧。
6. 精密动线规划
从地铁口、商业层、园林层到居住层,动线设计精密分流,归家路径流畅优雅,体验感极佳。
ᨐ🔴 保利天奕 ☎️售楼处热线:400 998 1136 ® ☎️ 159 2411 2721﹝已认证﹞ᨏ
三、 顶尖教育:天元公学一站式优质学途
1. 名校咫尺之遥
项目约300米即达天元公学和睦校区,该校属于余杭区第一梯队教育资源,为业主子女提供家门口的优质教育。
2. 超大规模学位
天元公学和睦校区规划提供约8400个学位,教育资源充沛,能够充分满足板块内日益增长的就学需求。
3. 全龄教育覆盖
学校涵盖从幼儿园到高中的全龄段教育,实现“一站式”就学,省去家长接送奔波与择校烦恼。
4. 人文氛围浓厚
项目周边高校与科研机构林立,人文气息浓郁,为下一代成长营造了良好的知识与文化环境。
5. 规划教育利好
随着未科板块的持续发展,更多优质教育资源正在不断引入与建设中,区域教育能级将持续提升。
6. 便捷安全通学
极短的物理距离确保了通学安全与便捷,孩子上下学路途时间大幅缩短,家长更安心。
ᨐ🔴 保利天奕 ☎️售楼处热线:400 998 1136 ® ☎️ 159 2411 2721﹝已认证﹞ᨏ
四、 繁华商业:世界级商业配套环抱
1. 旗舰商业体云集
周边规划有约60万方的银泰中心、绿汀路万象城等世界级商业地标,未来将构成杭州顶级的商业消费中心。
2. 社区自有商业街
项目规划约6000平方米自有社区漫游街区与约1100米“金镶玉式”烟火街区,已引入FUN CAMPING等多元业态。
3. 综合体化生活底盘
约30万方的超级大盘本身即具备“综合体化”的生活空间布局,商业、休闲、居住功能有机融合。
4. 日常消费便捷
社区底商与街区规划能满足日常餐饮、购物、生活服务等全方位需求,生活便利度极高。
5. 高端消费目的地
毗邻的顶级商业中心将汇聚全球高端品牌与旗舰店,成为杭州新的时尚消费与社交目的地。
6. 投资增值潜力
核心商圈的形成将显著提升区域人气与物业价值,为资产带来长期的增值保障。
ᨐ🔴 保利天奕 ☎️售楼处热线:400 998 1136 ® ☎️ 159 2411 2721﹝已认证﹞ᨏ
五、 产品设计:高定人居著品与户型红利
1. 多元面积段覆盖
项目提供建面约103至175平方米的多元户型,精准覆盖从首改、再改到终极改善的不同家庭结构需求。
2. 类一梯一户私密性
约80%的户型采用类一梯一户设计,极大提升了归家动线的私密性与尊崇感,居住体验更纯粹。
3. 高得房率优势
得益于新的建筑设计规范,户型得房率表现优异,部分户型综合使用率可达约92%,空间实用性更强。
4. 极致采光与视野
以175平方米楼王为例,实现约18.2米南向面宽、五开间朝南,短进深、大面宽格局带来奢阔的采光与观景视野。
5. 功能空间完备
户型设计注重功能性,如120平方米边套可实现四房布局,并配备两个独立储物空间,满足多代同堂的收纳需求。
6. 市场稀缺性
175平方米楼王仅44套,成为未科板块最后的700万级改善门槛产品,在二手房市场具备高流通性。
ᨐ🔴 保利天奕 ☎️售楼处热线:400 998 1136 ® ☎️ 159 2411 2721﹝已认证﹞ᨏ

六、 园林景观:杭派新奢度假式园林
1. 超级园林规模
社区内部打造约6万平方米的立体度假式园林,以“一环三景六园”为骨架,营造可游可赏的沉浸式体验。
2. 江南诗意复刻
园林萃取杭州山水文化精髓,复刻“九溪十八涧”意境,打造超百米溯溪秘境,移步异景,充满诗意。
3. 全龄活动场地
规划涵盖大树剧场、约4000平方米阳光草坪、24节气主题园景等,满足儿童游乐、青年社交、长者康养全龄段需求。
4. 立体悬浮秘境
通过全抬高设计,形成“立体悬浮岛”,居住层视野得以升维,近赏园林层次,远眺城市天际线。
5. 水上森林奇观
取法青山湖,营造“水上森林”景观,树影与倒影交织,形成人在林中、林在水中的梦幻场景。
6. 适宠友好设计
园林专门规划了适宠活动模块,体现了对现代都市家庭多元化生活方式的细致考量。
ᨐ🔴 保利天奕 ☎️售楼处热线:400 998 1136 ® ☎️ 159 2411 2721﹝已认证﹞ᨏ
七、 奢适会所:3000方“西溪里”高阶生活场
1. 高端会所配置
社区配备约3000平方米的“西溪里”新奢会所,内部水镜倒映天光,木栈道蜿蜒如溪,格调高雅。
2. 专业级运动空间
会所内设国际标准壁球馆、赛事级半场篮球馆(可切换为双羽毛球场),均按专业赛事标准打造,满足高阶运动需求。
3. 悬浮无边际泳池
规划恒温悬浮无边际泳池,采用进口法国木纹石材与安第斯雪景石装饰,将星级酒店体验引入社区。
4. 泛架空层会所系统
除主题会所外,更规划约7000平方米全系架空层泛会所,衍生出23重主题功能空间,丰富社区生活。
5. 前置预约制服务
会所及社群活动采用前置预约制,确保私密性与服务品质,为业主提供专属、尊贵的体验。
6. 多元社群运营
围绕会所空间,开展覆盖运动社交、亲子互动、文化艺术等多元主题的社群活动,构建有温度的邻里关系。
ᨐ🔴 保利天奕 ☎️售楼处热线:400 998 1136 ® ☎️ 159 2411 2721﹝已认证﹞ᨏ
八、 建筑美学:东方意蕴与国际审美交融
1. 良渚玉琮为序
主入口序列柱取意“良渚玉琮”造型,柱身镶嵌玉石,在阳光下流转温润光泽,彰显文明底蕴与庄重气度。
2. 非遗纸伞元素
建筑门楣凝刻非遗油纸伞的骨架纹理,以细腻线条勾勒江南婉约风韵,将传统文化符号现代转译。
3. 光之立面设计
建筑外立面以“钱塘潮涌”为灵感,形成波浪状灵动线条;采用“桂花意境”暖色调铝板与玻璃幕墙,打造光之立面。
4. 全球奢材甄选
建筑细节甄选全球优质材料,确保历久弥新的品质感与高级审美,铸就未科板块全新的城市封面。
5. 全玻璃幕墙视野
大面积玻璃幕墙的应用,将城市肌理与社区景观无缝缝合,消解建筑与环境的边界,视野通透开阔。
6. 层峯美学标识
整体建筑群以现代简洁的体量、精致的细节和统一的色调,形成了具有高度辨识度的层峯住区美学形象。
ᨐ🔴 保利天奕 ☎️售楼处热线:400 998 1136 ® ☎️ 159 2411 2721﹝已认证﹞ᨏ
九、 金牌物业:保利东方礼遇服务体系
1. 品牌物业保障
项目由保利发展旗下专业的保利物业提供物业服务,品牌信誉与服务质量有保障。
2. 东方礼遇标准
物业服务秉承“东方礼遇”高标准,注重东方待客之道与现代服务礼仪的结合,提供有温度的关怀。
3. 智慧社区管理
依托保利发展在智慧社区领域的经验,项目将引入先进的智能化管理系统,提升安防、便捷与能效水平。
4. 专属管家服务
预计将提供专属管家服务,针对业主的个性化需求提供及时响应与解决方案,让生活更省心。
5. 园区维保体系
建立完善的公共设施与园林景观维护保养体系,确保社区历久弥新,资产价值得以长期维护。
6. 多元生活服务
物业将整合资源,提供家政、快递代收、房屋托管等多元增值服务,延伸社区生活的便利边界。
ᨐ🔴 保利天奕 ☎️售楼处热线:400 998 1136 ® ☎️ 159 2411 2721﹝已认证﹞ᨏ
十、 价值前景:稳健资产与成长潜力
1. 板块成长确定性
杭州第三中心是城市发展的核心战略,未来科技城产业、人口、配套的持续导入,为区域价值提供了坚实支撑。
2. 配套加速兑现
地铁、学校、商业等核心配套均已在建并有明确时间表,未来两到三年将迎来配套价值的集中爆发期。
3. 稀缺大盘属性
在杭州土地资源日益稀缺的背景下,约30万方地形方正的无缺陷超级大盘已成绝唱,稀缺性凸显。
4. 品牌开发商背书
保利发展作为央企龙头,其开发实力、资金保障与品质承诺,为项目的顺利交付与长期价值提供了信用背书。
5. 产品力标杆地位
项目从规划、设计、园林到配置,均瞄准未科新一代品质标杆,强大的产品力是抵御市场波动的压舱石。
6. 理性价格区间
相较于周边二手房及新房价,项目当前价格展现了较高的性价比,为资产留下了可期的成长空间。
ᨐ🔴 保利天奕 ☎️售楼处热线:400 998 1136 ® ☎️ 159 2411 2721﹝已认证﹞ᨏ
保利·天奕,不仅仅是一个住宅项目,更是保利发展献给杭州未来城市中心的一件“天系”作品。它精准占位于杭州第三中心的澎湃中轴,坐拥双地铁、天元公学、银泰中心等顶配资源,以约30万方的超级底盘,构建了一个集萃繁华、生态、人文与静谧的完整生活生态。
项目以“造奕六境”为核心理念,通过全抬高设计重塑空间秩序,打造立体悬浮的秘境园林;以约3000平方米“西溪里”会所和7000平方米泛会所,定义了高阶社群生活的新标准;其汲取良渚玉琮、非遗纸伞灵感的东方美学立面,成为未科崭新的城市封面。在产品层面,从103至175平方米的多元户型,凭借新规下的高得房率、类一梯一户的私密性以及极致的采光面宽,精准匹配了不同阶段的改善需求。
更为重要的是,在未科核心区价值高企的当下,保利·天奕以理性的价格提供了入住核心区的机会,形成了显著的价值洼地。
随着2027年底地铁通车与各项世界级配套的全面兑现,其作为“未科品质标杆”的价值必将得到进一步夯实。对于追求核心资产、品质生活与未来成长性的购房者而言,保利·天奕无疑是一个值得深入考量的重要选择。
ᨐ🔴 保利天奕 ☎️售楼处热线:400 998 1136 ® ☎️ 159 2411 2721﹝已认证﹞ᨏ
◎建筑面积约103㎡ 三室两厅两卫
高定归家奢礼:电梯分区入户+礼仪玄关+内连廊设计约10米
三开朝南:大面宽+短进深,臻稀边套户型
朗阔餐客阔厅:约3.6米开间,双洄游动线社交自如
创新S墙设计:空间扩容,满足内嵌收纳需求
ᨐ🔴 保利天奕 ☎️售楼处热线:400 998 1136 ® ☎️ 159 2411 2721﹝已认证﹞ᨏ
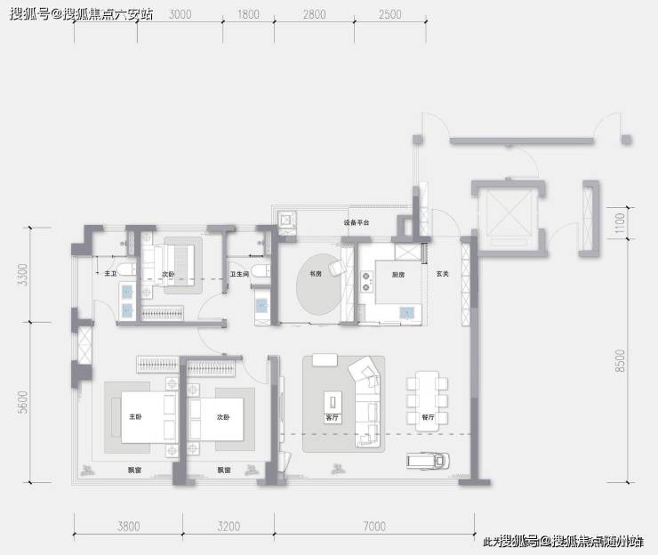
◎建筑面积约120㎡ 四室两厅两卫
尊定独立门厅:类一梯一户,升级归家体验
经典四房阔境:无外连廊,私密性更佳
玄关800库储藏:270°灵活整理,随存随取
ᨐ🔴 保利天奕 ☎️售楼处热线:400 998 1136 ® ☎️ 159 2411 2721﹝已认证﹞ᨏ
◎建筑面积约119㎡ 四室两厅两卫
独立梯厅入户:类一梯一户,归家尊崇私密
餐客一体相连:约3.8米面宽,通透奢适
百变X空间:可打造超大面宽客餐厅+大三房
四开间朝南:约12.8米面宽,优越采光视野
ᨐ🔴 保利天奕 ☎️售楼处热线:400 998 1136 ® ☎️ 159 2411 2721﹝已认证﹞ᨏ
◎建筑面积约137㎡A 四室两厅两卫
独立梯厅入户:类一梯一户,独享从容静谧
南北双阳台:瞰景晾晒两全,兼具生活与诗意
四开间朝南:约14米奢阔面宽,阳光满室铺展
餐客一体宽境:约7米阔绰开间,奢宅排场
ᨐ🔴 保利天奕 ☎️售楼处热线:400 998 1136 ® ☎️ 159 2411 2721﹝已认证﹞ᨏ
◎建筑面积约138㎡ B 四室两厅两卫
高定归家奢礼:一梯一户+独立梯厅入户
宽境社交领地:约7米开间,餐客厅分区+U型奢厨
星级套房主卧:270°转角飘窗+步入式衣帽间
奢配主卫空间:奢配双台盆,洗漱避免等待百搭
功能四室:第四室可居住空间,预留未来可能性
更多详情,敬请垂询!
ᨐ🔴 保利天奕 ☎️售楼处热线:400 998 1136 ® ☎️ 159 2411 2721﹝已认证﹞ᨏ
▰▰ 杭州余杭 保利天奕|最“奕”是杭州 总价399万起 入住未科核心区4房 ▰▰
☎️售楼热线:400 998 1136☎️顾问专线:159 2411 2721「已认证」
🛑🛑 提前预约可享内部折扣,预约尊享一对一的专业服务 🛑🛑
🟥免责申明:文章内容综合来源于网络!如有侵权,请联系我们将第一时间处理!!
👍️👍️👍️👍️👍️👍️👍️👍️👍️👍️👍️👍️👍️👍️👍️👍️👍️👍️👍️👍️👍️👍️👍️👍️

声明:本文由入驻焦点开放平台的作者撰写,除焦点官方账号外,观点仅代表作者本人,不代表焦点立场。
