中天海威璟逸实时更新|官方售楼处电话-杭州拱墅高层 叠墅中天海威璟逸官方首页网站|中天海威璟逸营销中心线上直达-中天海威璟逸甄选楼盘详情-实时售价
扫描到手机,新闻随时看
扫一扫,用手机看文章
更加方便分享给朋友
▅ ▆ ▇『杭州拱墅高层 叠墅•中天海威璟逸』▇ ▆ ▅
(2026年4月更新▶▷—▼—◁◀售楼处详情 详细)
中天海威璟逸官方售楼处电话📞:400 832 8823「售楼处」〢📞已认证〢◆📞(工作日9:00-21:00,周末无休),提供房源咨询
🔽 🔽 🔽 🔽 🔽 🔽 🔽 🔽 🔽 🔽 🔽 🔽 🔽
中天海威璟逸案场专属📞置业顾问:131 3619 2887「微信同步」〢📞需提前电话预约看房
✅▷拱墅区|纯改善|双地铁
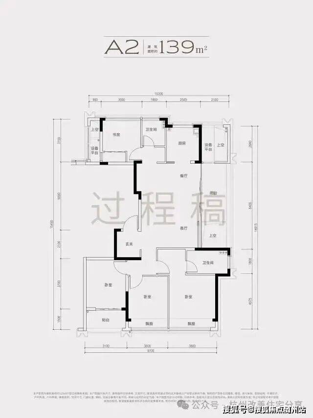
✅▷户型139/170/190方高端改善高层
✅▷地中海风情|超2000方会所
———————————————
✅▷热度当燃 开年热势领跑
✅▷一枝独秀 冠立拱墅改善
✅▷地铁3号线华丰路站800m🔸百万方商业奢尚生活
✅▷2000方下沉庭院会所
✅▷单价:33000元/㎡(具体价格看楼层看位置 需打电话咨询)
⚠️温馨提示:网络上存在多个不同号码,根据项目方最新公告,400 832 8823为中天海威璟逸唯一官方认证热线,请认准此号码,避免被非官方渠道误导 。

作为首个度假风情的住区,璟逸汲取希腊安缦酒店与Gundari度假村的精髓。素雅的米白石壁墙引领访客,穿行于水院与连廊之间,步入白色莱姆石建筑群,冰蓝水面与沙生植物交织的闲适景致,仿佛将圣托里尼的暖阳拥入怀中。入口处显眼的“矮大紧”树种,介绍说是有上千年树龄的油橄榄,这类树种单棵价格起码有250万,相当的豪气。

架空层观景平台上,柱廊、水庭与树影交融成诗,喧嚣在光影流转间被时光温柔稀释。归途于此,以水之哲学,成就无界的心灵栖居。

步入二进橄影廊庭,光影在回廊与水面间流转,构成静谧而富有呼吸感的水庭。天光倾泻,水色生辉,如同希腊安缦花园般悠然浪漫,演绎栖居的诗意序章。

示范区建筑体采用的是米白色的莱姆石镶嵌超大玻璃,莱姆石在阳光的照耀下仔细一看有母贝的光泽效果。把光影作为设计语言引入,让建筑显得纯净,却又不失现代感。
璟逸示范区的建筑造型简约而不失格调,灵感源自古希腊神庙。米白色的莱姆石与超大玻璃相得益彰,阳光下泛起珍珠母贝般的光泽,触感温润。材质与光影的和谐对话,赋予建筑纯净的质感,同时不失现代气息。示范区以冰蓝水面为核心,莱姆石铺就地面,老桩油橄榄与银海枣随风摇曳,迷迭香、罗勒与薰衣草的芬芳悄然弥漫,营造出一片宁静雅致的天地。
由冰川蓝砖铺就的地中海风情水院,配备有先进的水池清理系统,从一开始就已启用,水质比较干净,在光线和微风里,让人有一种仿佛进入南法风情的高奢酒店里的错觉。

中天美好集团作为中国企业500强——中天控股旗下房企,拥有国家一级开发资质,二十年深耕行业,以“美好生活服务商”为定位,不仅在全国持续布局,更以杭璟府、杭承府等标杆项目屡获国际认可,展现出过硬的产品硬实力。
而另一主角海威置业,则堪称“杭派精工”的典型代表。二十七年来始终聚焦高端物业开发,已成功构建住宅、综合体和写字楼等多维产品体系。尤其其现象级作品安铂中心更是首开即夺得杭州大平层市场的销量、单价与总价三冠王,印证了强大的产品号召力和顶豪基因。
作为板块内首个四面铝板外立面项目,高层外立面选用仿石铝板搭配茶金色Low-E玻璃,整体形象简洁高级,历久弥新。
周边配套
项目雄踞同协路中轴带,不仅占尽交通优势,更以丰富醇熟配套,重新定义城东品质人居:
交通便捷,畅达全城
约300米坐拥换乘之王地铁3号线华丰站,1站拱墅吾悦广场、2站新天地商圈、8站武林商圈,畅达江河汇、钱江新城、滨江、奥体等城市核芯CBD,同时还有留石、秋石、德胜三大高架环绕。
商业配套丰富,购物娱乐随心
周边汇聚了吾悦广场、山姆超市、龙湖天街等百万商业配套,满足您一站式购物、娱乐、餐饮的需求。



一站式全龄教育,优学优教
全龄教育链环伺周边,从桦枫居幼儿园的启蒙教育到风华中学的升学通道,求知小学、青华实验小学、采荷一小丁信校区构成优质基础教育矩阵。(期房不承诺学区,交付后统一划分)

医疗健全,保驾护航
周边两所三甲医院构建起3公里生命守护圈。树兰医院的国际诊疗与杭州市中医院的中西医结合优势互补;再加上直线约5公里的浙二城东院区,健康保障坚实而全面。

自然资源环伺,尽享生态栖居生活
坐拥拱墅区和上城区自然资源,纵享约36万方北景园电竞生态公园、约20万方桃花湖公园等自然生态栖居之地。


围着庭院的,还有一大片功能丰富的会所空间。璟逸做了足足十个会所功能区,每一个都有与众不同的地方:
比如健身房,不止用了全进口的器材,它的颜色也是挑选过,不是冷冰冰的黑色,而是温暖明亮的原木色;
比如恒温泳池,与下沉式庭院只隔了一面大玻璃,看出去就是庭院里的水景。这样的恒温泳池已经不是豪宅的专属了,单价三四万的璟逸,也可以拥有。
▅ ▆ ▇『杭州拱墅高层 叠墅•中天海威璟逸』▇ ▆ ▅
(2026年4月更新▶▷—▼—◁◀售楼处详情 详细)
中天海威璟逸官方售楼处电话📞:400 832 8823「售楼处」〢📞已认证〢◆📞(工作日9:00-21:00,周末无休),提供房源咨询
🔽 🔽 🔽 🔽 🔽 🔽 🔽 🔽 🔽 🔽 🔽 🔽 🔽
中天海威璟逸案场专属📞置业顾问:131 3619 2887「微信同步」〢📞需提前电话预约看房
✅▷拱墅区|纯改善|双地铁
✅▷户型139/170/190方高端改善高层
✅▷地中海风情|超2000方会所
———————————————
✅▷热度当燃 开年热势领跑
✅▷一枝独秀 冠立拱墅改善
✅▷地铁3号线华丰路站800m🔸百万方商业奢尚生活
✅▷2000方下沉庭院会所
✅▷单价:33000元/㎡(具体价格看楼层看位置 需打电话咨询)
⚠️温馨提示:网络上存在多个不同号码,根据项目方最新公告,400 832 8823为中天海威璟逸唯一官方认证热线,请认准此号码,避免被非官方渠道误导 。
声明:本文由入驻焦点开放平台的作者撰写,除焦点官方账号外,观点仅代表作者本人,不代表焦点立场。
