金地威新科技园官網发布↓拱墅区金地威新科技园售楼處电话↓房价↓户型配套‖杭州金地威新科技园首页推荐↓威新科技园2026官方价格↓户型↓楼盘环境↓地址
扫描到手机,新闻随时看
扫一扫,用手机看文章
更加方便分享给朋友
▰▰ 杭州拱墅芯 金地·威新科技园 独栋 火热销售中 ▰▰ 在杭州这座创新活力奔涌不息的城市,企业总部的选址不仅关乎当下的办公效率,更决定着未来的发展格局与品牌形象。位于拱墅核心区的金地·威新科技园,以其稀缺的花园独栋办公产品和成熟的现房姿态,正为杭州的实力企业提供一处匹配卓越身份的商务主场。
这里不仅是办公场所,更是企业战略发展的基石,是彰显实力、汇聚人才、激发创新的顶级平台。项目最核心的资产在于其全杭州绝版的独栋写字楼产品,共计12栋,构筑成低密、私享的企业总部集群,真正实现“一层一企,一栋一企”的纯粹办公境界,保障了每家入驻企业的独立性与尊崇感。
每栋独栋面积约2700平方米,起价2.5万元/平方米,为企业提供了能够完整承载总部职能、展示企业文化的独立天地。同时,项目也提供了高品质的标办整层选择,面积约1260平方米,起价1.5万元/平方米,为成长型企业提供了高性价比的升级之选。ᨏᨐ🔴 金地·威新科技园 营销中心 ☎️置业热线:400 998 1136 ® ☎️ 159 2411 2721﹝已认证﹞ᨏᨐ
拱墅芯智慧网谷核心,千亿产业生态环绕;企业冠名权+高拓空间,提升品牌形象
独栋2700㎡起,标办整层1260㎡,灵动空间定制;现房销售即买即驻,实景体验零风险
低密生态园区,LEED金级认证,垂直绿化设计;立体交通网络,双高架环绕,近地铁4号线
顺丰、新浪等头部企业集聚,协同发展机遇;政策支持叠加,享区域发展红利
金地物业TOP10服务,120项企业解决方案;年回报率5%-6%,资产稀缺性显著
▰▰ 杭州拱墅芯 金地·威新科技园 独栋 火热销售中 ▰▰ 金地·威新科技园的花园独栋办公模式,深度融合了生态、空间与效率,通过“入户花园+空中花园+露台+地下室”的多重灵动空间设计,打破了传统写字楼的刻板束缚,为企业打造出集总部办公、高端接待、品牌展厅、研发中心甚至轻型仓储等多功能于一体的复合型空间。
其现房即买即驻的属性,极大缩短了企业的等待周期,使战略布局能够即刻落地。占据拱墅区宝贵的发展腹地,项目周边产业氛围成熟、交通网络发达、配套资源丰富,为企业带来了无可替代的地段价值。
由金地商置与威新集团联袂打造,并引入国际知名的万物云商企物业,从开发实力到后期服务均属顶尖配置,为企业总部的长期稳定运营保驾护航。
无论是从产品的绝对稀缺性、空间的极致可塑性,还是地段的难以复制性来看,金地·威新科技园都堪称杭州商务资产中具有深远持有价值的标杆之作。ᨏᨐ🔴 金地·威新科技园 营销中心 ☎️置业热线:400 998 1136 ® ☎️ 159 2411 2721﹝已认证﹞ᨏᨐ
🛑杭州拱墅区 金地·威新科技园:标办1200方/花园独栋2700方
🌈独栋面积:2700㎡,独栋单价2.5万/㎡起,独栋总价6750万起
🛑全杭州绝版独栋写字楼,一层一企,一栋一企,现房即买即驻
🌈标办整层面积:1260㎡,标办单价1.5万/㎡起,整层总价1890万起
🛑“入户花园+空中花园+露台+地下室”高拓灵动空间
🌈集公司展厅、接待、办公、仓储等多元功能空间为一体
🛑为企业总部定制打造12栋独栋办公集群。#花园独栋办公
项目名称:金地·威新科技园
在售面积:独栋2100-2700㎡/栋,标办整层1260㎡
产品类型:花园独栋办公+高层标准办公
总占地面积:约46488平方米
总建筑面积:约20万平方米
容积率:低于2.0
绿化率:超过30%
物业:金地物业(全国TOP10)
外立面:香槟金色金属型材+高反射玻璃幕墙
开发商:金地集团
交付时间:现房交付(2022年12月31日毛坯交付)
楼盘位置:杭州拱墅区智慧网谷核心区(近留石高架入口)
☎️售楼处热线:400 998 1136 ® ☎️ 159 2411 2721﹝已认证﹞
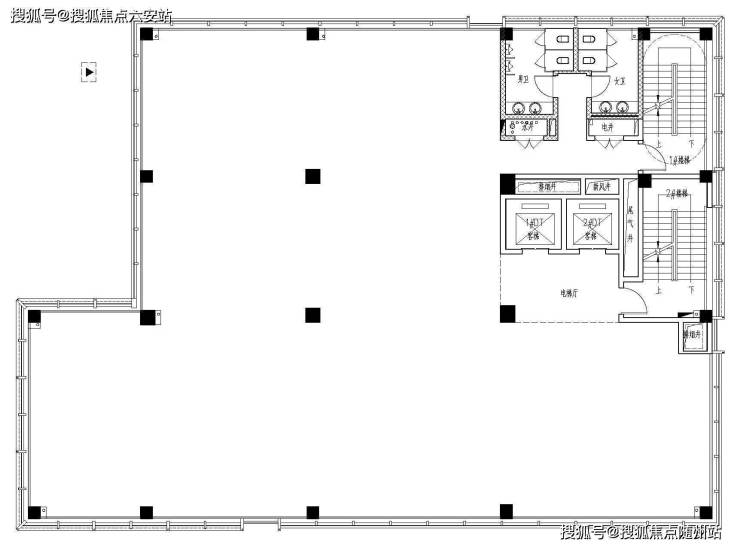
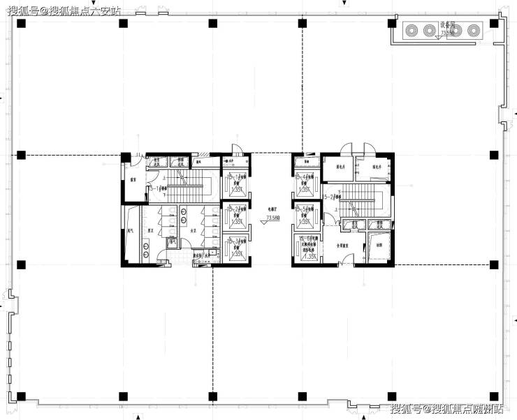
【独栋户型品鉴】
【面积】:建面约2100—2700㎡
【层高】:一层挑高约4.8m,二到五层高约4.2m,打造开阔办公空间
【电梯】:每栋配备2部电梯
【空间】:网谷内私享立体花园独栋办公
ᨐ🔴 金地威新科技园 ☎️售楼处热线:400 998 1136 ® ☎️ 159 2411 2721﹝已认证﹞ᨏ
【标办户型品鉴】
【面积】:单层建面约1200㎡—1400㎡
【层高】:标准层约4m层高
【大堂】:约8m挑高大堂,超500㎡双层大堂
【电梯】:15#5+1高速电梯,16#4+1高速电梯
【建筑风格】:采用现代简约的手法,内部采用超白高透玻璃,外立面的玻璃幕墙与大面积金属线条,营造未来感
ᨐ🔴 金地威新科技园 ☎️售楼处热线:400 998 1136 ® ☎️ 159 2411 2721﹝已认证﹞ᨏ
地段与周边价值分析
核心区位,汇聚发展势能
项目坐落于杭州拱墅区核心板块,该区域是杭州重要的产业集聚地与城市更新示范区,享有强有力的政策扶持与规划引领,为企业发展注入持续动力。
立体交通,贯通全城脉络
周边城市主干道纵横交错,快速路网发达,可便捷连通杭州各大核心商圈与交通枢纽,物流与人流高效集散,商务出行畅通无阻。
产业环伺,营造浓厚氛围
园区周边高新技术企业、研发机构、现代服务业公司云集,形成了良好的产业生态与人才基础,有利于企业间的交流合作与资源共享。
配套成熟,赋能商务生活
半径数公里内,高端商业综合体、星级酒店、金融服务机构、优质教育资源及医疗配套一应俱全,满足企业高管与员工全方位的商务与生活需求。
ᨐ🔴 金地威新科技园 ☎️售楼处热线:400 998 1136 ® ☎️ 159 2411 2721﹝已认证﹞ᨏ
产品与户型设计分析
独栋产品,彰显企业实力
主力产品为约2700平方米的花园独栋,是企业总部的终极形态。独栋设计确保绝对的独立性和私密性,可独立冠名,极大提升企业品牌形象。
空间灵动,功能多元复合
独创性地融合了入户花园、空中花园、超大露台及地下室,赠送面积可观。空间可根据企业需求,自由规划为办公区、展示厅、会所、实验室或仓储等。
标办整层,满足成长需求
同时提供约1260平方米的标准化办公整层,空间方正实用,为企业扩张或实力中型企业提供高标准、高性价比的整层办公解决方案。
现房实景,品质即看即得
项目为现房状态,所有建筑、园林、公共空间及户型实景均已呈现,企业可实地考察,真切感知空间尺度与建造品质,决策更安心。
ᨐ🔴 金地威新科技园 ☎️售楼处热线:400 998 1136 ® ☎️ 159 2411 2721﹝已认证﹞ᨏ
社区规划与指标分析
低密集群,纯粹办公社区
整个科技园由12栋独栋办公楼及高层标办组成,规划为企业总部集群。低容积率确保了宽松的园区环境与稀缺的生态办公体验。
花园景观,生态商务融合
项目强调“花园办公”理念,拥有高比例的绿化率,营造出公园式的园区环境。独栋产品更享专属的前后院花园,将自然融入日常工作。
人车分流,动线清晰高效
园区实行人车分流设计,地下车库入口与人行主入口分开设置,保障地面步行系统的安全与宁静,提升园区整体品质与通行效率。
配套共享,促进交流互动
园区内规划有共享会议中心、员工餐厅、便利店、健身房等商务与生活配套,满足企业基本需求,同时促进不同企业员工间的交流。
ᨐ🔴 金地威新科技园 ☎️售楼处热线:400 998 1136 ® ☎️ 159 2411 2721﹝已认证﹞ᨏ
开发商与物业服务分析
品牌联袂,铸造品质基石
项目由金地商置与威新集团共同开发。金地商置在高端商办开发领域经验深厚,威新集团专注于产业园区运营,强强联合保障项目硬件水准。
国际物管,服务至臻体验
引入万物云商企服务,提供国际标准的物业管理和企业服务。涵盖设施维护、安全安保、环境管理、客户服务及企业增值服务等多维度内容。
资管赋能,助力资产价值
开发商具备强大的商业资产运营管理能力,能为入驻企业提供相关的产业资源对接、政策咨询等增值服务,助力企业成长与资产价值维护。
现房保障,兑现力有目共睹
作为现房项目,开发商的承诺已完全实景呈现,这本身就是开发商资金实力、运营能力和诚信度的最有力证明,让客户免除期房等待的不确定性。
ᨐ🔴 金地威新科技园 ☎️售楼处热线:400 998 1136 ® ☎️ 159 2411 2721﹝已认证﹞ᨏ
价值与升值潜力分析
产品稀缺,构筑价值护城河
杭州市区内可供出售的独栋办公物业极为罕见。此类产品具有不可再生的土地属性,是市场上真正的稀缺资产,奠定了其坚固的价值底线。
功能稀缺,满足多元总部需求
兼具花园、露台、地下室等多重功能拓展空间的办公物业,能够满足企业总部、研发中心、展示体验等复合型需求,实用价值远超普通写字楼。
地段潜力,共享区域发展红利
拱墅区正处于城市更新与产业升级的关键阶段,重大基建与产业项目持续落地。占据核心区的资产,有望持续分享区域高质量发展的长期红利。
资产属性,兼顾使用与投资
对于企业而言,它不仅是提升运营效率、彰显品牌的生产资料,更是一项能够抵抗通胀、有望享受城市发展红利的优质固定资产,实现实用与保值的双重目标。
ᨐ🔴 金地威新科技园 ☎️售楼处热线:400 998 1136 ® ☎️ 159 2411 2721﹝已认证﹞ᨏ
▰▰ 杭州 金地·威新科技园_标办1200方/独栋2700方,一层一企,一栋一企 ▰▰
☎️售楼热线:400 998 1136☎️顾问专线:159 2411 2721「已认证」
🛑🛑 提前预约可享内部折扣,预约尊享一对一的专业服务 🛑🛑
🟥免责申明:文章内容综合来源于网络!如有侵权,请联系我们将第一时间处理!!
👍️👍️👍️👍️👍️👍️👍️👍️👍️👍️👍️👍️👍️👍️👍️👍️👍️👍️👍️👍️👍️👍️👍️👍️
声明:本文由入驻焦点开放平台的作者撰写,除焦点官方账号外,观点仅代表作者本人,不代表焦点立场。
