滨江兴耀·松川境楼盘介绍-滨江兴耀·松川境最新房价-户型配套!
扫描到手机,新闻随时看
扫一扫,用手机看文章
更加方便分享给朋友

回顾松川境的楼市之旅,一路都是高光之下的头条新闻。首开便以28%的中签率傲骄全城,选房当天线上告罄。只有网签数据不会说谎,松川境的热闹选房最后都成为了实打实的网签数据。
刚过去的10月份,凭借「奥体3公里」「北眺杭州之门」的地段优势,以及「奥体至高规模墅境住区」的价值标签,松川境是笑傲杭州10月改善新房网签榜单的「三冠王」。(数据来源:透明售房网10月新房成交榜),成为全省改善客竞逐的优质资产标的。

除了奥体的强大光环加持,更重要的是,松川境是奥体的滨江造。开盘入市之后,松川境就成了「滨粉」们的全新聚集地。「奥体+滨江造」是最稳健可靠的双重保障,是最身心踏实的放心托付。
开盘短短一个月时间,松川境首开、二开两幢高层房源已近售罄。如今,松川境最后一幢高层压轴加推,13#全景舱王座,抢藏价46166元/㎡,奥体最后的诚意入场券。
在寸土寸金的奥体,寸景、寸光皆是金。
松川境13#全景舱王座,东临金一河,俯赏一线河景,于四季风光流转的静谧水岸,沉淀思绪、治愈心灵。
同时,作为奥体至高规模墅境住区,松川境以约1.8超低密规划,搭配全南厅设计,呈现高层无遮挡视野,整个排屋墅区尽呈眼前。
🚩🚩⑉lı⑉★滨江兴耀·松川境★⑉lı⑉售楼处电话:400 886 7015 📍📍置业顾问:13071887623「微信同步」
南瞰直面约3300㎡中庭景观,约210米巨幅景观画轴,人生诗篇,于此俯仰成境。在奥体这等寸土寸金的核心地段,能够拥享如此奢侈的绿意,是一种身份的无声宣告,更是松川境献给每一位居者的人生厚礼。
户户无遮挡均好采光,搭配超大开间、超70%玻璃立面,阴冷的杭州秋日也可享8小时温暖日照。以自然光的疗愈能量,为全龄段家庭成员,尤其是老人与小孩,构建起一个真正关怀身心健康的友好型住所。
滨江松川境:奥体豪宅「超级单品」静奢美学安放在奥体|169-199㎡“低密+顶序”纵揽奥体顶豪!
10月7日,松川境14#央景楼王首开即罄,燃领世界奥体。
松川境的热销实属意料之中,毕竟,自拿地开始,项目关注度就居高不下。从双城市展厅启幕,到现代东方静奢美学馆开放,每一次新动向,都能引发行业约市场的强烈关注与热议。示范区开放双周客户来访超8000人次……

屹立世界奥体这般矜贵之地,松川境以「奥体3公里」宣誓自己超然于世的土地禀赋。
在奥体首座天街(规划)、奥体印象城、SKP(在建)等地标级资源簇拥之下,松川境以约1.8低容积,以「奥体至高规模墅境住区」为名,拔萃于奥体。
门头气势恢宏。做了约80米宽,6.5 米高。大门材质用的是熔铜,入口处还设置 25 米长叠级水景承托整个入口,沉香米黄、蓝翡翠潘多拉等多种名贵石材搭配,每平米光石材成本就是近万元。
立面和奥映鸣翠同等级别。整体采用超 70%大面积的全面屏玻璃、珠光青铜铝板与弧形造型,从视觉上就把项目直接拉到2000万级产品行列,这是越级提升!
🚩🚩⑉lı⑉★滨江兴耀·松川境★⑉lı⑉售楼处电话:400 886 7015 📍📍置业顾问:13071887623「微信同步」
每一个出圈的作品,都需要充足的时间来打磨。每一处产品细节的研磨,每一道技艺所蕴含的智慧,都呼唤着拳拳匠心。
特别是公区的审美、工艺、用材是后期再花多少钱都无法改变的。那对于豪宅专家滨江和拥有独立美学的兴耀,它俩的“稳定输出”早已经有目共睹。仅25年下半年,江南岸“滨江X兴耀”,就有4子待售。
这是奥体,奥体三公里的顶流之地。当前市况之下,当天线上选房就能告罄的楼盘,极少。其中,有三个都在奥体,奥映鸣翠、松川境和晓澜玉华。更重要的是,这是奥体的滨江造。越是这个时候,越能凸显了头部房企的号召力。
在项目高层组团和叠墅组团之间,我们看见了一个板块内体量最大,约3300方的中心景观,相比于传统紧凑排布的纯叠墅项目,松川境业主有更多大块的景观空间,且整个场景在感受上并没有被建筑隔断,下沉式庭院和双水院景观错落排布,很自然的就连接成为一个整体的大空间。
步入松川境实景示范区后瞬间的安定感,穿廊而过清幽禅意的优雅感,享受顺着旋转扶梯而下后,眼前飞瀑叠水、一步一景的丰盈感。
该有的下沉庭院、会所空间、恒温泳池、健身房、私宴厅等场景,松川境都有了。别人没有的「身处繁华,心如月满松枝」的山水意境,松川境也有。
无论从公区的规模、内容,还是审美以及到细节上的用料,项目的调性和品位无疑是TOP级的,美学、私密、社交在此完美融合,业主尊贵感、面子拉满。这也是松川境拥有的独家竞争力。
🚩🚩⑉lı⑉★滨江兴耀·松川境★⑉lı⑉售楼处电话:400 886 7015 📍📍置业顾问:13071887623「微信同步」
在寸土寸金的奥体,寸景、寸光皆是金。松川境东临金一河,俯赏一线河景,于四季风光流转的静谧水岸,沉淀思绪、治愈心灵。同时,作为奥体至高规模墅境住区,松川境以约1.8超低密规划,搭配全南厅设计,呈现高层无遮挡视野,整个排屋墅区尽呈眼前。
首先从户型设计来说:项目最显著亮点在于其超高的空间利用率。
计容新规结合大面积赠送空间,赋予了户型设计极大的灵活性,使得高层产品使用率最高可达惊人的93%。
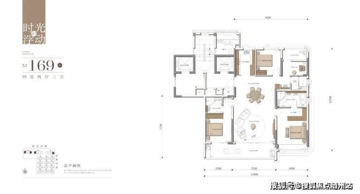
具体而言,松川境建面约169方的户型:北阳台内包,飘窗不计面积,空间利用率远超同类产品。对购房者而言,则意味着显著的性价比优势,相当于节省了约一个房间的成本。
169㎡户型图
类一梯一户设计,带来每一套房子门口都有一个独立电梯厅。而且这块区域的面积不小,最少也有约6个平方左右,出入更具尊贵感、私密感。从门口进来满眼皆是奢石,大面积的奢石背景墙凸显空间高级感;双卧室硬包背景+造型天花吊顶,让每个功能空间都兼具设计感与氛围感;
建面约169方展示样板间实景图
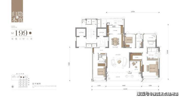
在每一平方米都弥足珍贵的奥体,松川境以超高得房率,完成了一次对生活尺度的慷慨兑现。尤其是199㎡奥体绝版大5房,约16.5米巨幕开间,实现了约93%惊人得房率,全奥体罕见;
199㎡户型图
博世五件套、其中冰箱是博世8系最高顶配,全嵌入式、全进口的。还有方太万元侧吸油烟机,爆炒辣椒也不用担心跑烟。空调、厨余处理器、净水器等,也都包在交付标准内;卫生间:镜柜配置美妆冰箱,守护主人高端的护肤美容产品;
🚩🚩⑉lı⑉★松川境★⑉lı⑉售楼处电话:400 886 7015 📍📍置业顾问:13071887623「微信同步」
轻轻的一句「我住奥体」,已经让人羡慕;如果再来一句「我在奥体住排屋」,那就有点太霸气外露了。
在摩天大楼林立、不得不向天空要居住权的奥体,有天有地有院子的生活是奢侈的。在奥体拥有一套有天有地,没有值不值得的问题,只有实力允许不允许的问题。
所以,无论是松川境刚推出的最后一批高层,还是待字闺中的这批奥体排屋,它们都有一个共同点是:超级浓烈的获得感。

联排立面通过“虚实对比”,实体墙部分采用仿砖涂料,虚体部分为玻璃幕墙,既保证私密性又提升通透感。联排产品采用“双坡屋顶+金属格栅”设计,屋顶坡度模拟江南传统民居,格栅则过滤强光,形成斑驳的光影效果。
开 发 商滨江,奥体南,总 户 数高层190套、排屋42套,容 积 率1.8,高层17F、排屋4F,面积高层169-199方,惊爆均价4.6万/平。排屋300-340方,均价9万,下沉会所恒温泳池、健身房、私宴厅、瑜伽室等等,滨江物业,高层4.8元(含能耗)得房率约90%-93%!VIP火热登记,恭迎莅临品鉴
△ 松川境建面约199㎡户型图

△ 松川境建面约199㎡样板房实景图
类一梯一户格局,配合独立门厅设计,划定尊崇归家动线。电梯门开启的瞬间,便是一场从世界到家的无缝过渡,让业主从空间价值、情绪价值都得到极大满足;

△ 松川境建面约169㎡样板房实景图
在室内品质上,松川境同样投入巨资。从归家的厚重入户装甲门,到厨房家电9件套,再到无所不在的全屋智能系统,以看得见的超配装标,回应客户对空间精细度、舒适感的追求。

△ 松川境建面约169㎡样板房实景图
从高得房率,到归家仪式,再到超配装标,共同构成了松川境13#全景舱王座敢于称「王」的底气。
产品力只是基本面,兼顾资产问鼎性、和市场流通性的「奥体核心优质资产」属性,才是被高阶市场认可的价值原点。
奥体最后的珍贵入场券,全景舱王座13#压轴加推,抢藏价46166元/㎡,低门槛入主奥体核心区的最后机会,邀塔尖共藏。
是板块里唯一一个 5 万内楼盘带专属会所的,同时也是体量最大的。
恒温泳池、健身房、私宴厅、会客厅及书吧等功能空间,被很好的融合在一起,营造出酒店式的隐奢感觉。
(示范区地下会所实景图)
可以说,无论从公区的规模、内容,还是审美以及到细节上的用料,项目的调性和品位无疑是TOP级的,美学、私密、社交在此完美融合,业主尊贵感、面子拉满。这也是松川境拥有的独家竞争力。
尽管行情不算高昂,但是在奥体遇上好楼盘,还是得拼手速的。
刚刚,松川境领出了预售证,一不小心这已经是松川境的最后一张高层预售证了。这也意味着,这个撑起杭州楼市行情大旗的当红楼盘,不需要太久就会告别新房市场。
好盘总是留不住。不出意外的话,当初接棒奥映鸣翠出场的松川境,会是奥映鸣翠之后,第二个年内清盘的奥体新盘,也会是后限价时代杭州清盘速度最快的楼盘之一。
🚩🚩⑉lı⑉★松川境★⑉lı⑉售楼处电话:400 886 7015 📍📍置业顾问:13071887623「微信同步」
「奥体+滨江造」很能打
松川境能在杭州楼市行情整体下滑之际格外受宠,并不算太意外的事情。
首先这是奥体,奥体三公里的顶流之地。当前市况之下,当天线上选房就能告罄的楼盘,极少。其中,有三个都在奥体,奥映鸣翠、松川境和晓澜玉华。
行情下滑时,奥体是最强堡垒;行情重启时,奥体就是最强发动机。
更重要的是,这是奥体的滨江造。越是这个时候,越能凸显了头部房企的号召力。
▲下沉式庭院实景图
开盘入市之后,松川境就成了「滨粉」们的全新聚集地。有来自钱江新城金色家园、市北的滨涛映月等小区的业主,短短一个月内就迅速清理掉二手房,坚定置换成了松川境。他们认为,滨江的房子交付品质更好,而且即便在当下相对清冷的二手房市场,也能出手更快,溢价率更高。
这样的真实案例,在松川境频繁发生。很多人特别希望在钱塘江南岸能够拥有一套「滨江造」,对他们来说,「奥体+滨江造」是最稳健可靠的双重保障,是最身心踏实的放心托付。
F4.
「看了一圈,还是觉得松川境好」
自媒体高度发达的时代,也是信息高度发达的时代,培养出了一大批训练有素、目光如炬的购房者。很多人全城看了一圈,最终还是情定松川境。
▲下沉式会所实景图
他们喜欢步入松川境实景示范区后瞬间宁静的安定感,喜欢穿廊而过清幽禅意的优雅感,也享受顺着旋转扶梯而下后,眼前飞瀑叠水、一步一景的丰盈感。
该有的下沉庭院、会所空间、恒温泳池、健身房、私宴厅等场景,松川境都有了。别人没有的「身处繁华,心如月满松枝」的山水意境,松川境也有。
▲恒温泳池实景图
「松川境」只有三个字,它只开三次。最后一次开出的64套高层房源,一样有建面约169㎡、199㎡两大王牌户型,一样有着高达约93%的实际得房率,一样有着窗含城市灯光秀的楼王视野。
F5.
4.6万的价格很难得
当然,松川境能够在奥体一马平川,价格优势是非常明显也是非常关键的。
这个位置上的奥体,单价四万六是一条拧干了水分、没有一点泡沫的价格底线,也是最厚实的价格安全垫,可以说没有向下空间,只有向上弹跳空间。
纵观当下楼市,价格是一副明牌,很容易比较。当你看了不限价之后9万的奥体核心、7万的钱二、近6万的钱二东,特别是站上了4.6万的之江、冲5万去的云城,其实就不难判断,作为头部板块的奥体一线版图,四万六的价格是最有竞争力和质价比的。

▲建面约199㎡样板展示实景图
即便是在奥体,松川境能开出四万六的价格,也并不是每个盘都做得到的,这需要天时地利人和,至少需要先天的拿地成本优势,滨江兴耀勇于「让利」、让购房者有获得感的真诚,以及充分敬畏市场、尊重市场的决策纪律,三者缺一不可。
在奥体这个位置上,其实以后也很难再现四万六的购买机会。
F6.
「我在奥体住排屋」
松川境还有一个特殊的身份标签是墅境大宅,因为底下铺陈着目前奥体最大体量的低密排屋。
这批排屋的价值光芒,是想遮都遮不住的。
轻轻的一句「我住奥体」,已经让人羡慕;如果再来一句「我在奥体住排屋」,那就有点太霸气外露了。
在摩天大楼林立、不得不向天空要居住权的奥体,有天有地有院子的生活是奢侈的。在奥体拥有一套有天有地,没有值不值得的问题,只有实力允许不允许的问题。
所以,无论是松川境刚推出的最后一批高层,还是待字闺中的这批奥体排屋,它们都有一个共同点是:超级浓烈的获得感。
🚩🚩⑉lı⑉★滨江兴耀·松川境★⑉lı⑉售楼处电话:400 886 7015 📍📍置业顾问:13071887623「微信同步」
声明:本文由入驻焦点开放平台的作者撰写,除焦点官方账号外,观点仅代表作者本人,不代表焦点立场。
