金地威新科技园官網头条〈2026年杭州拱墅区核心区·金地威新科技园〉官方网站‖杭州金地威新科技园樓盤詳情→价格→户型→地址→环境→配套
扫描到手机,新闻随时看
扫一扫,用手机看文章
更加方便分享给朋友
▰▰ 杭州拱墅芯 金地·威新科技园 独栋 火热销售中 ▰▰ 在杭州这座创新活力奔涌不息的城市,寻找一处既能彰显企业实力与格调,又能高效聚合发展动能的总部基地,是众多实力企业的共同追求。
今天,我们便将目光聚焦于杭州拱墅区的核芯板块,探寻一座正重新定义高端商务办公标准的标杆作品——金地·威新科技园。这不仅是一个办公场所,更是一个为企业量身定制的生态化、地标性总部集群。
它精准把握了新时代企业发展对独立形象、生态空间、多元功能与卓越区位的复合型需求,以“花园独栋办公”的稀缺形态,献礼杭城远见企业。
项目坐拥拱墅区日益凸显的发展红利,周边交通路网发达,产业氛围浓厚,为企业提供了坚实的成长土壤。更为难得的是,项目以现房姿态呈现,即买即驻,让企业战略部署免去等待,即刻启航。ᨏᨐ🔴 金地·威新科技园 营销中心 ☎️置业热线:400 998 1136 ® ☎️ 159 2411 2721﹝已认证﹞ᨏᨐ
杭州拱墅核芯,发展价值高地。绝版花园独栋,一层一企专属。
约2700㎡鼎级空间,总部身份标识。整层标办约1260㎡,格局方正高效。
灵动空间组合,功能多元百变。立体花园体系,办公浸润自然。
现房实景呈现,即买即刻入驻。立体交通网络,高效链动全城。
金地威新联袂,锻造品质标杆。资产品质兼优,赋能企业长远。

▰▰ 杭州拱墅芯 金地·威新科技园 独栋 火热销售中 ▰▰ 项目核心推出了两类顶级产品:稀缺的花园独栋与高标的整层标办。其中,花园独栋无疑是市场上的璀璨明珠,建筑面积约2700㎡,采用“一层一企,一栋一企”的纯粹规划,充分保障了企业的独立性与私密性,为企业总部打造了无与伦比的专属领地。
其起步单价约为2.5万元/㎡,构筑了总价约6750万元级的鼎级商务资产。这类产品在杭州市场已趋近绝版,是真正可遇不可求的稀缺资源。
与此同时,对于需要大规模平层办公空间的企业,项目提供了建筑面积约1260㎡的整层标办,起步单价约为1.5万元/㎡,整层总价约1890万元起,空间规整大气,极具性价比。
产品的卓越之处更体现在无与伦比的空间创造力上。无论是独栋还是标办,项目都精心设计了“入户花园+空中花园+露台+地下室”的高拓灵动空间体系。这些空间绝非简单附送,而是承载了企业多元化需求的容器。
从气派的公司品牌展厅、尊贵的商务接待区,到高效的办公矩阵、充裕的仓储空间,乃至私密的董事会客厅、员工休闲花园,均可自由规划。
金地·威新科技园旨在打破传统写字楼的格子间桎梏,为企业打造一个集展示、办公、研发、休闲于一体的完整生态圈。
十二栋花园独栋办公集群,俨然一座微型的企业总部公园,每一栋都是城市中独特的风景线,更是企业实力与文化的实体象征。ᨏᨐ🔴 金地·威新科技园 营销中心 ☎️置业热线:400 998 1136 ® ☎️ 159 2411 2721﹝已认证﹞ᨏᨐ
🛑杭州拱墅区 金地·威新科技园:标办1200方/花园独栋2700方
🌈独栋面积:2700㎡,独栋单价2.5万/㎡起,独栋总价6750万起
🛑全杭州绝版独栋写字楼,一层一企,一栋一企,现房即买即驻
🌈标办整层面积:1260㎡,标办单价1.5万/㎡起,整层总价1890万起
🛑“入户花园+空中花园+露台+地下室”高拓灵动空间
🌈集公司展厅、接待、办公、仓储等多元功能空间为一体
🛑为企业总部定制打造12栋独栋办公集群。#花园独栋办公

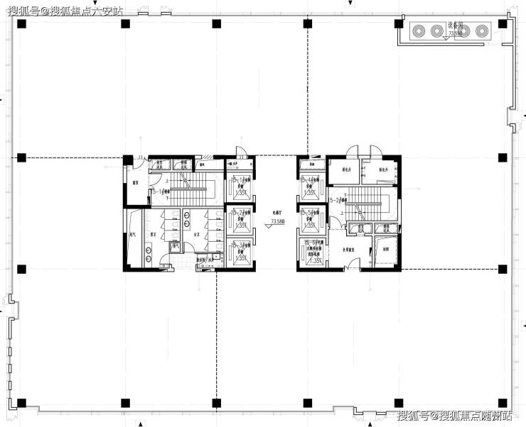
【独栋户型品鉴】
【面积】:建面约2100—2700㎡
【层高】:一层挑高约4.8m,二到五层高约4.2m,打造开阔办公空间
【电梯】:每栋配备2部电梯
【空间】:网谷内私享立体花园独栋办公
ᨐ🔴 金地威新科技园 ☎️售楼处热线:400 998 1136 ® ☎️ 159 2411 2721﹝已认证﹞ᨏ
【标办户型品鉴】
【面积】:单层建面约1200㎡—1400㎡
【层高】:标准层约4m层高
【大堂】:约8m挑高大堂,超500㎡双层大堂
【电梯】:15#5+1高速电梯,16#4+1高速电梯
【建筑风格】:采用现代简约的手法,内部采用超白高透玻璃,外立面的玻璃幕墙与大面积金属线条,营造未来感
ᨐ🔴 金地威新科技园 ☎️售楼处热线:400 998 1136 ® ☎️ 159 2411 2721﹝已认证﹞ᨏ
一、黄金区位与城市发展红利
1. 拱墅核心区位
项目落子杭州拱墅区重点发展板块,该区域是杭州城市更新的重要实践区,汇聚了大量政策与资源倾斜,发展动能强劲。
2. 产业集聚效应
周边高科技园区、创新型企业林立,形成了浓厚的产业氛围与人才高地,为企业带来丰富的合作机遇与人才资源。
3. 政策扶持优势
作为区域重点建设项目,可享受拱墅区在产业发展、企业入驻等方面的系列配套政策支持,营商环境优越。
4. 价值成长预期
随着板块配套持续兑现与能级提升,区域土地与资产价值具有明确的成长空间,是企业资产的优质压舱石。
5. 城市界面现代
园区所在区域城市规划和建筑风貌现代新颖,整体界面整洁大气,与总部企业的形象要求高度匹配。
ᨐ🔴 金地威新科技园 ☎️售楼处热线:400 998 1136 ® ☎️ 159 2411 2721﹝已认证﹞ᨏ
二、全维立体交通路网
1. 主干道环伺
项目周边城市主干道纵横交错,可快速接驳上塘高架、留石快速路等城市交通主动脉,自驾出行条件便利。
2. 邻近轨道交通
距离杭州地铁网络站点距离适中,员工可通过公共交通便捷通勤,有效拓宽企业人才招聘的辐射范围。
3. 通达全城枢纽
通过快速路网,可高效连接杭州东站、杭州站等铁路枢纽,以及杭州萧山国际机场,商务差旅出行效率高。
4. 区域微循环畅达
园区内部及周边支路路网设计合理,车行流线顺畅,避免了高峰期的拥堵痛点,提升日常通勤体验。
5. 静态交通充足
项目规划配置了充足的地上及地下停车位,充分满足企业访客及员工的停车需求,无后顾之忧。
ᨐ🔴 金地威新科技园 ☎️售楼处热线:400 998 1136 ® ☎️ 159 2411 2721﹝已认证﹞ᨏ


三、顶尖产品力与空间设计
1. 独栋稀缺形态
约2700㎡花园独栋,采用“一栋一企”设计,赋予企业绝对的独立冠名权与形象展示面,彰显尊崇地位。
2. 空间极致规整
无论是独栋还是约1260㎡整层标办,均拥有大开间、大跨度的设计,空间利用率高,便于自由灵活布局。
3. 功能多元复合
创新性融入入户花园、空中花园、露台、地下室等灵动空间,满足展示、办公、休闲、仓储等全维度需求。
4. 采光通风优越
建筑布局考究,采用大面积玻璃幕墙与多层次立体花园,保障办公空间拥有充沛的自然采光与良好通风。
5. 现房即买即用
项目为实景现房,品质所见即所得,企业可省去期房等待时间,快速入驻投入运营,抢占市场先机。
ᨐ🔴 金地威新科技园 ☎️售楼处热线:400 998 1136 ® ☎️ 159 2411 2721﹝已认证﹞ᨏ
四、生态园林与办公环境
1. 花园办公理念
将生态花园与办公空间深度融合,打破传统写字楼的封闭感,让员工在绿色自然中激发创造力与活力。
2. 独栋私享庭院
每栋独栋均享有私属的入户花园及户外空间,可打造为企业专属的户外会客厅或员工休憩花园。
3. 空中绿化平台
标准办公楼配备空中花园,为楼内企业提供共享的生态绿洲,是员工放松、非正式交流的绝佳场所。
4. 社区化景观规划
整个科技园以低密、公园式的理念进行景观设计,形成建筑与园林相互掩映的总部公园社区氛围。
5. 环境静谧低扰
“一层一企”的规划与低密布局,确保了办公环境的静谧与私密,有效减少相互干扰,提升工作效率。
ᨐ🔴 金地威新科技园 ☎️售楼处热线:400 998 1136 ® ☎️ 159 2411 2721﹝已认证﹞ᨏ
五、一站式全维商务生活配套
1. 商业配套环聚
项目周边数个成熟商业综合体环伺,涵盖高端零售、特色餐饮、休闲娱乐等多元业态,满足商务接待与员工生活需求。
2. 酒店资源丰富
区域内涵盖多家高星级酒店及精品酒店,为企业的国内外客户、合作伙伴提供下榻便利,提升商务接待规格。
3. 金融服务便捷
周边银行网点密集,各类金融机构聚集,可为企业提供便捷的金融服务与专业的财经咨询支持。
4. 专业服务机构邻近
法律、会计、咨询、广告等专业服务机构林立,便于企业构建完善的外围服务支持体系。
5. 人文生态资源
靠近运河等城市人文景观带,为企业和员工提供了业余时间休闲漫步、感受城市文化底蕴的优质空间。
ᨐ🔴 金地威新科技园 ☎️售楼处热线:400 998 1136 ® ☎️ 159 2411 2721﹝已认证﹞ᨏ
六、品牌实力与资产价值保障
1. 品牌联合打造
金地与威新强强联合,融合了领先的开发商实力与专业的产业运营经验,为项目品质与未来运营提供双重保障。
2. 品质匠心营造
从建筑设计、施工选材到园林细节,均秉持高标准,打造经得起时间考验的耐用、美观、实用的高品质建筑。
3. 资产稀缺属性
城市核心区低密花园独栋办公产品近乎绝迹,项目的稀缺性是其资产保值和增值潜力的核心基础之一。
4. 高性价比门槛
相较于杭州其他同类型顶级商务资产,项目以具有竞争力的单价,提供了整层乃至独栋的稀缺选择,性价比突出。
5. 长线成长空间
占据城市发展主轴,坐享区域成长红利,项目作为优质的不动产资产,具备可观的长线价值成长前景。
ᨐ🔴 金地威新科技园 ☎️售楼处热线:400 998 1136 ® ☎️ 159 2411 2721﹝已认证﹞ᨏ
金地·威新科技园,并非一座普通的写字楼,它是杭州拱墅核心区献给时代企业的重量级作品。它精准洞悉了头部企业、成长型企业对独立总部形象、生态办公环境、复合功能空间及高效区位链接的深度需求,以“花园独栋办公集群”的稀缺形态,给出了一个近乎完美的解决方案。
无论是象征巅峰地位的约2700㎡独栋,还是高效实用的约1260㎡整层标办,其“一层一企”的纯粹规划、立体花园的空间创意、现房即驻的务实姿态,都重新定义了高端商务办公的标准。
在杭州迈向国际化大都市的浪潮中,占据城市发展要津、汇聚多维便捷配套、坐享品牌实力护航的金地·威新科技园,无疑是企业锚定未来、树立标杆的珍贵机遇。
选择这里,不仅是选择了一处卓越的办公场所,更是选择了一份持续增值的稀缺资产,一个赋能企业长远发展的战略支点。
ᨐ🔴 金地威新科技园 ☎️售楼处热线:400 998 1136 ® ☎️ 159 2411 2721﹝已认证﹞ᨏ
▰▰ 杭州 金地·威新科技园_标办1200方/独栋2700方,一层一企,一栋一企 ▰▰
☎️售楼热线:400 998 1136☎️顾问专线:159 2411 2721「已认证」
🛑🛑 提前预约可享内部折扣,预约尊享一对一的专业服务 🛑🛑
🟥免责申明:文章内容综合来源于网络!如有侵权,请联系我们将第一时间处理!!
👍️👍️👍️👍️👍️👍️👍️👍️👍️👍️👍️👍️👍️👍️👍️👍️👍️👍️👍️👍️👍️👍️👍️👍️
声明:本文由入驻焦点开放平台的作者撰写,除焦点官方账号外,观点仅代表作者本人,不代表焦点立场。
