杭州森淼泊林漫谷花苑院墅楼盘详情-首页网站-房价户型-容积率-小区环境-余杭(森淼泊林漫谷花苑)楼盘网站-楼盘详情-森淼泊林漫谷花苑楼盘百科-房价-户型
扫描到手机,新闻随时看
扫一扫,用手机看文章
更加方便分享给朋友
杭州余杭森淼泊林漫谷花苑·北美风格别墅
这一风格体现在建筑的外观和内部设计上,为居住者提供了一个具有北美文化特色的居住环境。泊林漫谷不仅在建筑风格上有所体现,其地理位置也极为优越,位于风景秀丽的西溪小和山高教园区之邻,午潮山下,灵项溪畔,南临留和路,紧临西溪湿地源头—灵项溪,西为规划中的良睦路,距杭州市中心武林广场仅18公里左右,提供了一个兼具自然美景和便捷生活的居住体验。
▓ ㊣ VIP-Line ※ 400 963 3309 ♂ ☎ 13073678721♀﹝已认证﹞
●温馨提示:〢欢迎来电咨询〢预约可节省您的时间〢恭迎品鉴〢
一、项目概况:
【项目地址】余杭区良睦路38号
【开发商】杭州森淼房地产开发有限公司
【交付标准】毛坯
【产品类型】排屋(约248m²-312m²)地上三层没有地下室
【价格】约740-1400万
【排屋户数】64户
【交付时间】现房
【物业费】2.5元/㎡/月
【物业公司】南都物业
二、 项目区位优势:
项目地处风景秀丽的小和山高教园区西南,距离杭州市中心武林广场约18公里,南临午潮山国家森林公园,紧临西溪支流灵项溪。
总占地约100亩,总建筑面积约11万方,小区涵盖联体别墅、多层、小高层。整个园区以保持原有生态,营造优美景观为原则,依地就貌,引天然水系入园,以水造景,与建筑有机结合。

(一)交通路网覆盖 一城繁华触手可得
地铁线:3号线(石马站)
公交线:236路、384M、596路(清坞站)
(建设中)良睦路延伸段隧道直达未来科技城
(二)商业配套完善
直径5km范围内,七彩汇商业中心、西田邻里中心、铂悦城
(三) 项目1km范围内 学校环伺
幼儿园:闲林中心幼儿园南望园区
小学:闲林小学;
中学:闲林中学
(四)优美的环境资源
2公里范围内宝寿山景区、午潮山森林公园。
(五) 健全的医疗配套
杭州市西溪医院(三甲)
三、排屋介绍
以上样板房花园
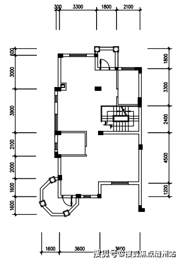
3-6户型示意(户型尺寸仅供参考,以现场实际为准)
一层

二层

三层

以上信息仅供参考,具体以售楼处现场公示信息为准
⑉ılı⑉✫森淼泊林漫谷花苑✫⑉ılı⑉售楼处电话 ☎️400-963-3309「营销中心」来电了解最新房价和房源,☎️13073678721「微信同步」我们的专业置业顾问将竭诚为您服务,详细解答您对于楼盘的各种疑问,为您提供最专业的购房咨询和最贴心的服务。
声明:本文由入驻焦点开放平台的作者撰写,除焦点官方账号外,观点仅代表作者本人,不代表焦点立场。
