滨纷城的厉害之处,就在于它拆掉了这堵大墙,最大限度地还年轻人以自由和远大前程。这还不够,就连年轻人更在乎的教育问题,滨杭滨纷城也已经给安排得明明白白——售楼热线:☎4008328823「售楼处」☎〢🔻已认证…
滨杭滨纷城✅杭州 滨纷城
售楼热线:☎ 400 832 8823「售楼处」☎〢🔻已认证〢◆🔻
临平东湖新城地铁口低总价住宅 滨杭滨纷城✅
置业顾问:☎ 156 0653 2539「微信同步」☎〢🔻一对一热情服务〢◆🔻

世界上任何一座处于快车道的城市一样,年轻人在杭州遭遇的最大挑战,就是房价和房子。
那些高高在上的房价,就像一堵大墙,横亘在他们面前。
滨纷城的厉害之处,就在于它拆掉了这堵大墙,最大限度地还年轻人以自由和远大前程。售楼热线:☎ 400 832 8823「售楼处」☎〢🔻已认证〢◆🔻

【滨杭·滨纷城】
💰百万级置业首选 ❿开即将来袭
🚇双地铁口&杭二白马湖名校
送车位或工具间

既然是“TOD新物种”,滨杭滨纷城和其他TOD项目有什么区别?
首先,最大的区别在于滨纷城是一个“双地铁口”上盖项目,横跨了地铁9号线兴元路站(在建)、康信路站(在建)两大站点,这在之前开发的TOD项目中从未有过。 售楼热线:☎ 400 832 8823「售楼处」☎〢🔻已认证〢◆🔻

对于一个超级大盘而言,商业是激活整个社区的活力引擎,但像滨杭滨纷城这样,直接在楼盘里面造一个大体量商业综合体的TOD,整个杭州都屈指可数。
这还不够,就连年轻人更在乎的教育问题,滨杭滨纷城也已经给安排得明明白白—— 售楼热线:☎ 400 832 8823「售楼处」☎〢🔻已认证〢◆🔻

当然,想要实现跟年轻人的双向奔赴,只有这些还不够,所以滨江还把对于缤纷生活的讲究,嵌入了住宅园区的每一寸空间——
主入口做了跟奢华酒店一般的张扬门头,石材景墙和落客区,搭配入口的水景庭院里起伏的山景、潺潺跌水和婀娜松树,它们一起交织出了回家的仪式感,哪怕跟三四万的楼盘相比,都不落下风。

就连架空层都不例外,不仅做了精致的装修,还放进了各种主题,有年轻人正当潮的滑板空间,也有放了定制款滑滑梯和「树屋」的大型儿童玩乐装置;

有仿佛豪宅精装修一般的共享厨房,也有随时能释放多巴胺的健身房,门口甚至还细致入微地设置了一台自动贩卖机。
滨江说,「年轻就是无拘无束,心有旷野」,所以他把滨杭滨纷城打造成了一片广阔的草原,让你在每一个转身之间,都能掀起自由驰骋的可能。

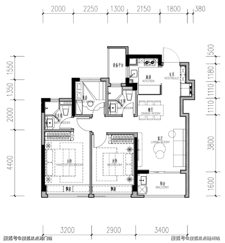
一般楼盘要近100方才能做出来的三房两卫,滨杭滨纷城把它控制在了89方, 保证功能性的同时,还压住了总价门槛,总价100多万就能够得上。厨房边上还专门做了一个S墙,可以用来放冰箱,这样一来厨房的台面就能起码延长一米,有了更充足的操作空间。

☝滨杭滨纷城建面约108方中间套户型图
建筑面积约108方的户型,中间套做了三房两卫,尺度上更阔绰,而且还能实现「阳光平权」,因为它的南向面宽拉到了约12.8米,把三个卧室跟客厅一起放在了南面,就连餐厅都专门做出了一个采光面。

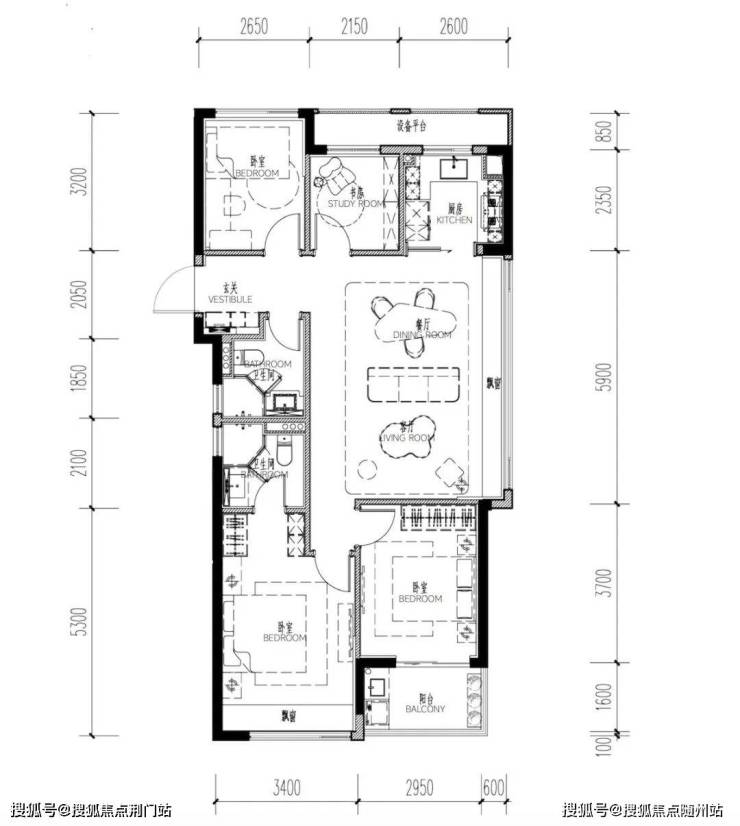
如果想要四房的户型,建面约108方也能满足,而且还是更多人喜欢的餐客厅一体大边厅设计总价一两百万,这是年轻人的主场;总价一两百万的滨杭滨纷城,更是年轻人的潮流生活场。

滨杭滨纷城✅杭州 滨纷城
售楼热线:☎ 400 832 8823「售楼处」☎〢🔻已认证〢◆🔻
临平东湖新城地铁口低总价住宅 滨杭滨纷城✅
置业顾问:☎ 156 0653 2539「微信同步」☎〢🔻一对一热情服务〢◆🔻