海晏天珺(2025宁波海晏天珺)楼盘百科-海晏天珺楼盘评测-海晏天珺最新价格-户型-周边配套
扫描到手机,新闻随时看
扫一扫,用手机看文章
更加方便分享给朋友
⑉ılı⑉#海晏天珺#⑉ılı⑉🚩🚩三面临河➕ 145-248㎡纯改善➕ 360°玻璃立面➕ 恒温泳池会所[地址]📍📍:高新区,海晏北路与杨木碶路交汇处(宁波国际会展中心旁边)
ᨏᨓ ᨓᨏ ᨏᨓ ᨓᨏᨓᨏᨏ
宁波鄞州区⑉ılı⑉#保利海晏天珺#⑉ılı⑉🚩🚩售楼处电话:400-886-7015✅✅预约登记📍📍尊享VIP专属优惠__一对一专业置业热情服务🔊🔊工作时间周一至周日9:00至21:00

项目概况
开发商:保利发展控股(央企背景),定位为“天字系”高端豪宅,系保利“天珺”产品线在浙江的首个作品,荣膺克而瑞“2024全国十大高端作品”及美国MUSE设计金奖。
区位:宁波鄞州区东部新城核心,紧邻甬新河畔,与千亿级东部新城CBD一路之隔,南向直面宁波国际会展中心,属城市黄金地段。
规模:占地约4.52万方,建面10.38万方,容积率2.2,绿化率35%,规划16栋高层及小高层,共496户,精装交付(标准约8000元/㎡)。
每一次加冕,都是对海晏天珺产品力的高度褒奖。
紧邻东部新城的地段+保利“天字系”的定位,让海晏天珺具备天生的价值优势;引领性的产品力,更是将其推向逐鹿全国豪宅的地位。
宁波鄞州区⑉ılı⑉#保利海晏天珺#⑉ılı⑉🚩🚩售楼处电话:400-886-7015✅✅预约登记📍📍尊享VIP专属优惠__一对一专业置业热情服务🔊🔊工作时间周一至周日9:00至21:00

整个项目的价值,在实景示范区开放后呈现得淋漓尽致。
高大威仪的归家大门、度假酒店式的游廊、雅致的水榭会客厅、华丽的下沉式庭院......光影幻梦,如同一场大师级的视觉盛宴。
会所、恒温泳池、室内高尔夫、健身房、旋转楼梯等时髦符号,被海晏天珺神奇地组合在一起,构成宁波高端圈层的社交场。
就连点缀其间的绚丽奢石、珍稀树种,也毫不谦虚,高调展示着贵气。每一个细节,都不禁让人驻足把玩与欣赏。
也难怪,项目实景亮相后,业界评价其为宁波的“划时代作品”,一句话点到精髓。

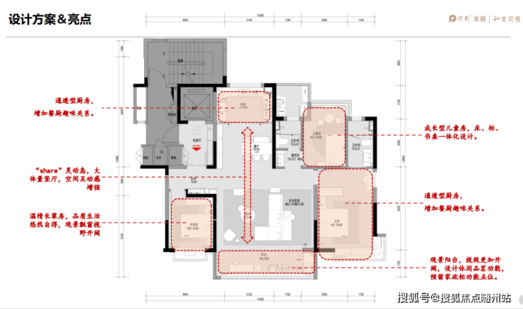
产品设计亮点
户型范围:建面约145-248㎡,主力为188-248㎡大平层,全系一梯一户,270°环幕阳台、南向面宽最大达18.4米,主卧套房面积近50㎡,配备智能家居系统(华为全屋智能、大金空调地暖)。
融合泰国安缦酒店设计精髓,采用弧形线条、全玻璃幕墙及水波纹铝板,打造“水晶宫”视觉效果。
借鉴宋代美学,顶部香槟色铝板与浅灰格栅呼应宁波在地文化,形成“珺石如玉”的质感。
LDKB一体化社交厅:餐客厅面积达68㎡(248㎡户型),可容纳20人宴会;部分户型设中西双厨、洄游动线。
多套房设计:188㎡以上户型实现四房三卫全套房,主卧含双衣帽间、景观浴缸。
宁波鄞州区⑉ılı⑉#保利海晏天珺#⑉ılı⑉🚩🚩售楼处电话:400-886-7015✅✅预约登记📍📍尊享VIP专属优惠__一对一专业置业热情服务🔊🔊工作时间周一至周日9:00至21:00
配套与交通
商业:1.2公里内覆盖阪急百货(奢侈品中心)、宏泰广场等6大商场;社区自建3000㎡滨江商业街(规划米其林餐厅)。
学校:高新区实验学校(直距300米)、3所IB国际学校(赫德/诺德安达等)。
医疗:宁波市医疗中心李惠利东部医院(三甲)绿色通道。
交通:地铁5号线会展中心站150米,1号线海晏北路站800米,15分钟车程直达三江口商圈。

生态与景观
自然资源:西临甬新河,东靠3万方生态公园,南接37万方生态长廊,形成“三面环水”的岛居环境。
园林设计:对标曼谷湄南河四季酒店,打造12个主题花园、66米迎宾水轴及下沉式庭院,融合“度假感”归家动线。
会所设施:约500㎡隐逸会所含恒温泳池、健身房、私宴会客厅,提供“东方礼遇”管家服务(24小时礼宾、四节八礼活动)。
宁波鄞州区⑉ılı⑉#保利海晏天珺#⑉ılı⑉🚩🚩售楼处电话:400-886-7015✅✅预约登记📍📍尊享VIP专属优惠__一对一专业置业热情服务🔊🔊工作时间周一至周日9:00至21:00

建面约145户型,3房2厅2卫 ,亮点包括一梯一户的单独入户、玻璃展开面约20.7米、主要空间全部为落地玻璃、6.3米大横厅南北双阳台、270°转角无柱飘窗观景主卧套房等;

建面约159户型,4房2厅3卫 ,三卧室朝南灵活大客厅布局,亮点包括:一梯一户的单独入户、玻璃展开面约25米;主要空间全部为落地玻璃、双套房设计、侧厅双阳台设计、南北动静分区明确;

宁波鄞州区⑉ılı⑉#海晏天珺#⑉ılı⑉🚩🚩售楼处电话:400-886-7015✅✅预约登记📍📍尊享VIP专属优惠__一对一专业置业热情服务🔊🔊工作时间周一至周日9:00至21:00

值得单独拎出来讲的还有TA的收纳革新,超尺度、存储大、分类全,对强迫症非常友好。更难能可贵的是,海晏天珺不止卷同行、还卷自己,在调研大量客户数据后,它又对这款建面约188㎡户型做了升级,预留大量可拓展空间。这其中,包括3个卧室衣柜+1个餐边柜都是额外赠送,够不够豪气?!

建面约248㎡(南厅),4房2厅3卫 ,层高约3.20米。亮点包括:一梯一户的单独入户、玻璃展开面超30米、主卧套房开间4.3米,面积约49.6平,套内含起居厅、男女平权双衣帽间、自然采光的梳妆台及转角大浴缸,实现主卧“大家化”;9.6米宽南阳台,6.5米开间的客厅以及约3.7米的次主卧套房。


建面约248㎡(边厅),4房2厅3卫 ,层高约3.20米,亮点包括一梯一户的单独入户;玻璃展开面约39米;所有的客厅、阳台、卧室、卫生间浴缸全部为落地玻璃,少柱少墙设计,LDKB空间只有一根圆柱;主卧套房6.9米超大面宽,套内无承重墙体分割,自由度很大。

宁波鄞州区⑉ılı⑉#海晏天珺#⑉ılı⑉🚩🚩售楼处电话:400-886-7015✅✅预约登记📍📍尊享VIP专属优惠__一对一专业置业热情服务🔊🔊工作时间周一至周日9:00至21:00

圈层定位:75%业主为沪杭高净值人群,社区定期举办东钱湖论坛、马术赛事等高端社交活动。
保利海晏天珺以“城市隐奢度假”为核心理念,通过国际化的建筑设计、稀缺的滨水生态资源及保利央企的交付保障,成为宁波塔尖人群的资产配置与品质生活首选。
保利海晏天珺售楼处电话☎☎: 400 816 9827 ✅✅「已认证」🆚🆚 置业顾问专线⋙130 7088 7623「微信同号」🔻🔻提前预约可享内部优惠〢匠心钜制🔊🔊恭迎您的品鉴!
声明:本文由入驻焦点开放平台的作者撰写,除焦点官方账号外,观点仅代表作者本人,不代表焦点立场。
