杭州滨江兴耀松川境 ( 滨江兴耀松川境 -房价/户型 滨江兴耀松川境(2025年杭州萧山核心区松川境住宅)首页网站-松川境楼盘详情-户型-价格‖松川境 最新评测
扫描到手机,新闻随时看
扫一扫,用手机看文章
更加方便分享给朋友
滨江兴耀·松川境
凝聚奥体顶尖豪宅业主圈层,于独立开阔地块,
融汇「廊、巷、亭、会所」等完整排屋形制,
呈现罕见纯正墅居生活。
项目高层全部房源已经推出,169-199方少量房源线下热销中,均价约4玩万+/平!
📍📍约169-199㎡高配住宅大平层、近地铁|天街旁
— ⑉ıl⑉杭州萧山市北西【滨江兴耀松川境】约169-199㎡墅境住宅大平层,距地铁站7号线明星路 900米⑉lı⑉—
▰▰▰▰▰▰▰▰▰▰▰
📍📍杭州萧山🏆松川境🏆售楼处热线电话: 400 886 7015 📞📞置业顾问 130 7188 7623「微信同号」
开 发 商滨江,奥体南,总 户 数高层190套、排屋42套,容 积 率1.8,高层17F、
排屋4F,面积高层169-199方,惊爆均价4.6万/平,总价750万起。排屋300-340方,均价9万,
下沉会所恒温泳池、健身房、私宴厅、瑜伽室等等,滨江物业,高层4.8元(含能耗)得房率约90%-93%!
类一梯一户的神户型+顶配装标
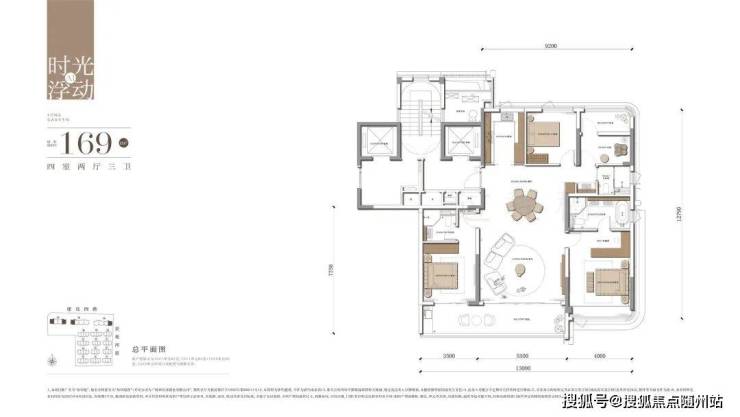
首先从户型设计来说:项目最显著亮点在于其超高的空间利用率。
计容新规结合大面积赠送空间,赋予了户型设计极大的灵活性,使得高层产品使用率最高可达惊人的93%。
具体而言,松川境建面约169方的户型:北阳台内包,飘窗不计面积,空间利用率远超同类产品。对购房者而言,则意味着显著的性价比优势,相当于节省了约一个房间的成本。
(建面约169方户型图)
还有主卧超大衣帽间、主卫双台盆+大浴缸,这种在别的项目吹上天的配置,在松川境属于基操了。它的优势早已领先在下一个维度:
各个功能间尺度的全面升级。仅169方就做到了南向面宽约13米,双联的超宽阳台进深约2米......的超级尺度。
建面约199方户型:小胖在看到这个户型时,更是可以用激动来形容。
(建面约199方户型图)
它把199方的面积,做出了至少约230方的既视感,吊打市面同等面积户型。
同时,在功能打造上,无论是公区的气派程度还是未来家庭每一位成员的居住舒适度,都被完美融合在这个户型里。
5房灵动布局(最小的房间都有近10个平方),客餐厅近50平。还是约16.5米南向四开间的设计,光客厅就有约5.8米,可谓逆天。
双南向主卧,兼容更多不同居住人群需求,无论是老人同住还是二胎家庭,每位家人都能有舒适的居住体验。
不出意外,这应该是目前市面上瞰景能级+实用率最高的五房产品了。
另外,还有一个惊喜:类一梯一户设计,带来每一套房子门口都有一个独立电梯厅。
而且这块区域的面积不小,最少也有约6个平方左右,出入更具尊贵感、私密感。
其次从装修用材来说:从门口进来满眼皆是奢石,大面积的奢石背景墙凸显空间高级感;双卧室硬包背景+造型天花吊顶,让每个功能空间都兼具设计感与氛围感;
(建面约169方展示样板间实景图)
(建面约169方展示样板间实景图)
博世五件套、其中冰箱是博世8系最高顶配,全嵌入式、全进口的。还有方太万元侧吸油烟机,爆炒辣椒也不用担心跑烟。空调、厨余处理器、净水器等,也都包在交付标准内;卫生间:镜柜配置美妆冰箱,守护主人高端的护肤美容产品;
晨起,披着薄雾走上巨幕阳台,视线越过渐次醒来的大都会,远处,奥体地标杭州之门在氤氲的晨曦中静静伫立,如同一本在天地间缓缓打开的巨著。
一句语音指令,主卧和客餐厅的窗帘应声而开,如同舞台的幕布缓缓升起,在温柔的晨光里,喝一杯手冲咖啡,在慵懒的氛围中开启一整天。

△ 松川境 样板间实景图,具体以实际交付为准
下楼到「松氧馆」健身房慢跑,透过270°全景玻璃幕,心赏「澜庭」下沉式庭院,约7米高溪山流瀑,5棵黑松高低错落,勾画出艺术馆般的静逸场域。松风水雾间,运动不再是「面壁思过」,在沉寂中厘清思绪,迸发万千灵感火花,每一次吐纳都是无尽疗愈。
△ 松川境项目实景图
林木掩映的「松涧天光」恒温泳池,约30-32℃四季恒享,纵身跃入约8米x20米的碧波,亦或于池畔躺椅小憩,看天光云影共舞,在自然诗意中躺平。
△ 松川境会所实景图
滨江兴耀·松川境
📍📍杭州萧山🏆松川境🏆售楼处热线电话: 400 886 7015 📞📞置业顾问 130 7188 7623「微信同号」
咨询高峰期请耐心等待,预约来电尊享内部优惠,专业一对一热情服务,让您用专业眼光去买房。
在「阅松下」书吧择一临窗位落座,书架上的佩索阿诗集,标记着阅读者的沉思瞬间,目光所及是潋滟水色,刹那间穿越虹夕诺雅度假圣境。
△ 松川境书吧实景图
墅境住区
轻轻的一句「我住奥体」,已经让人羡慕;如果再来一句「我在奥体住排屋」,那就有点太霸气外露了。
在摩天大楼林立、不得不向天空要居住权的奥体,有天有地有院子的生活是奢侈的。在奥体拥有一套有天有地,没有值不值得的问题,只有实力允许不允许的问题。
所以,无论是松川境刚推出的最后一批高层,还是待字闺中的这批奥体排屋,它们都有一个共同点是:超级浓烈的获得感。

联排立面通过“虚实对比”,实体墙部分采用仿砖涂料,虚体部分为玻璃幕墙,既保证私密性又提升通透感。联排产品采用“双坡屋顶+金属格栅”设计,屋顶坡度模拟江南传统民居,格栅则过滤强光,形成斑驳的光影效果。
滨江兴耀·松川境
凝聚奥体顶尖豪宅业主圈层,于独立开阔地块,
融汇「廊、巷、亭、会所」等完整排屋形制,
呈现罕见纯正墅居生活。
项目高层全部房源已经推出,169-199方少量房源线下热销中,均价约4玩万+/平!
📍📍约169-199㎡高配住宅大平层、近地铁|天街旁
— ⑉ıl⑉杭州萧山市北西【滨江兴耀松川境】约169-199㎡墅境住宅大平层,距地铁站7号线明星路 900米⑉lı⑉—
▰▰▰▰▰▰▰▰▰▰▰
📍📍杭州萧山🏆松川境🏆售楼处热线电话: 400 886 7015 📞📞置业顾问 130 7188 7623「微信同号」
声明:本文由入驻焦点开放平台的作者撰写,除焦点官方账号外,观点仅代表作者本人,不代表焦点立场。
