滨江兴耀·松川境楼盘详情-杭州奥体小高层 排屋滨江兴耀松川境【2026滨江兴耀松川境最新房价+户型】滨江兴耀松川境官芳首页推荐
扫描到手机,新闻随时看
扫一扫,用手机看文章
更加方便分享给朋友

松川境拿地时机,低地价得以与周边项目拉开价差空间。「面包价」或比项目直线约1公里外的「面粉价」还低,对比整个奥体「极有诚意」。
其次,松川境容积率仅1.8,「南高北低」地规划了3幢小高层和42套4层排屋。小高层一字排开,南向俯瞰中轴园林和城市景观基本无遮挡。「栋栋真楼王、户户有风景」。售楼热线:☎ 400 832 8823「售楼处」☎〢🔻已认证〢◆🔻
滨江兴耀·松川境坐落于杭州奥体南·市北西板块核心位置,地处建设四路与金鸡路交汇处东侧150米,占据杭州“拥江发展”战略下的黄金十字轴。项目距奥体中心约2.5公里,距离地铁7号线明星路站约860米,地铁15号线与7号线在此交汇,2站即达奥体中心,3站直达市民中心,无缝对接杭州主流核心商圈。
板块内纵向金鸡路奥体顶豪林立,横向建设四路滨江产业澎湃,形成独特的价值高地。这一占位使松川境既享奥体核心配套,又与周边竞品形成显著价差,如奥映鸣翠开盘均价约8.7万/㎡,而松川境以4.5万/㎡级的亲民价格,提供媲美甚至超越周边顶豪的产品力。售楼热线:☎ 400 832 8823「售楼处」☎〢🔻已认证〢◆🔻
规划设计邀请GLA建筑设计、北京顺景园林、矩阵室内设计等六大国际团队深度协作,从规划设计、建筑营造到景观打造,均体现出国际级水准。项目秉承“消隐与凸显”的设计哲学,高层立面通过45度斜切铝板与低辐射玻璃的组合,弱化建筑体量感,同时通过局部金色铝板线条勾勒出山水画的轮廓,使建筑融入自然背景中。
松川境的首开热罄,让世界奥体,再一次见证了产品主义的伟大胜利。
滨江豪宅豪宅基因、兴耀房产独立美学,加上两大TOP民营房企给出的诚意让利价格,也在不经意间攻破了高净值置业者的内心防线。
每一个数据,都是松川境热销的一个答案;每一次选择,都是市场对真实价值的一次认证。售罄不是终点,而是下一个价值的起点。
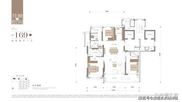
建面约169㎡的四房两厅三卫户型为例,我们就总结了豪宅的「五大超级空间」,吊打商业大平层。
一是归家空间,松川境的小高层是全部「类一梯一户」的设计,几乎是私梯入户,保证了豪宅应有的专属性和尊享感。
二是超级景观。不仅南向毫无遮挡,整个户型的南向面宽竟然做到了约13米。加上立面采用全面屏玻璃立面+四面铝板,建筑更简洁通透,带来更好的采光和IMAX级的巨幕景观视野。
主卧飘窗面宽约4米,双联的超宽阳台的面宽更足足达到了9米。种花弄草,躺平喝茶,跑跳瑜伽,甚至搭上帐篷在家露营,肆意发挥。

三是聚会空间。面宽5米5的厨房餐厅相连,轻松摆下长桌和大圆桌,家宴派对还是日常便餐,从容应对。

四是极品主卧,我更想称之为任性宠爱自己的「女王空间」:泡澡的大浴缸不管用不用但必须拥有;互不干扰的双台盆必须要有;超大衣帽间更必须拥有。还带有270度的转角飘窗,增加采光和景观视野。

最后,整个房子最点睛也是最充满想象的「志趣空间」。北向那个带转角阳台的地方,其实是可以拓展成最为晶莹剔透的房间,可以做茶室、电竞房、收藏室或影音间,更可以摆下一屋子的labubu。
真正的豪宅,不仅要容得下一家人,更要安放下对生活的热爱。
松川境不仅以远超传统大平层的功能布局,诠释了奥体芯真正的「豪宅生活」。它的室内精装,更是「吊足胃口」。

流出的几张「谍照」可以看到:户内弧形流转的大面奢石背景墙、墙面装饰线条加硬包,公区也是处处奢石,个个拼花。
历史选择了2025年,豪宅像堰塞湖一样井喷,给杭州城市和豪宅市场带来多个激动人心的地标。
但如果从未来回望,可能像 松川境 这样既是豪宅门槛、又能引领趋势的好楼盘,——少之又少。



声明:本文由入驻焦点开放平台的作者撰写,除焦点官方账号外,观点仅代表作者本人,不代表焦点立场。
