金地威新科技园售楼处|2025杭州金地威新科技园首页网站|金地威新科技园售楼处电话|户型/房价|最新动态|周边详情|楼盘详情
扫描到手机,新闻随时看
扫一扫,用手机看文章
更加方便分享给朋友
▰▰ 杭州拱墅芯 金地·威新科技园 售楼中心 ▰▰ 杭州·金地威新科技园还依据未来办公趋势,打造灵活办公空间。蓝宝石光幕立面,玻璃幕墙超高反光镜面,营造跃然而上的律动魔方,打造别样办公体验。4栋品质高层办公、12栋花园独栋及9,000m²商务配套,融入高品质数智硬件,构建总部办公、科技加速、产业生态培育的数字“底座”,重构企业软实力,引领商务新格局。
项目整体规划上4栋品质高层办公,12栋花园独栋,构成完整全新的未来办公系统。纵向贯穿园区的南北向活力轴提供了丰富的商业配套、户外活动空间;横向贯穿园区的东西向景观轴提供了休憩放松、社交交往空间。园区从东侧沿街活力底商引爆点向西侧逐步过渡到私密组团院落,形成由动到静,由高到低多层次的空间层级。ᨏᨐ 🔴 金地·威新科技园 营销中心 ☎️置业热线:400 998 1136 ® ☎️ 159 2411 2721﹝已认证﹞ᨏᨐ
🛑杭州拱墅区 金地·威新科技园:标办1200方/花园独栋2700方
🌈独栋面积:2700㎡,独栋单价2.5万/㎡起,独栋总价6750万起
🛑全杭州绝版独栋写字楼,一层一企,一栋一企,现房即买即驻
🌈标办整层面积:1260㎡,标办单价1.5万/㎡起,整层总价1890万起
🛑“入户花园+空中花园+露台+地下室”高拓灵动空间
🌈集公司展厅、接待、办公、仓储等多元功能空间为一体
🛑为企业总部定制打造12栋独栋办公集群。#花园独栋办公
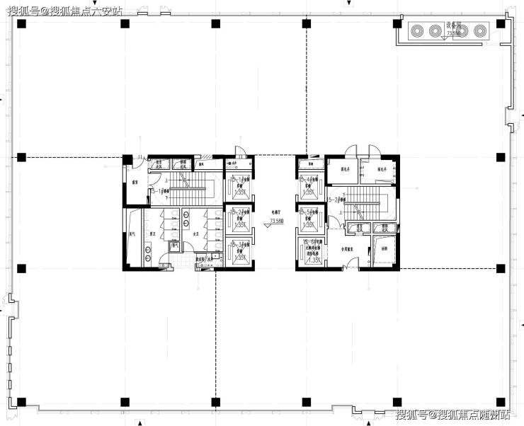
【独栋户型品鉴】
【面积】:建面约2100—2700㎡
【层高】:一层挑高约4.8m,二到五层高约4.2m,打造开阔办公空间
【电梯】:每栋配备2部电梯
【空间】:网谷内私享立体花园独栋办公
ᨐ🔴 金地威新科技园 ☎️售楼处热线:400 998 1136 ® ☎️ 159 2411 2721﹝已认证﹞ᨏ
【标办户型品鉴】
【面积】:单层建面约1200㎡—1400㎡
【层高】:标准层约4m层高
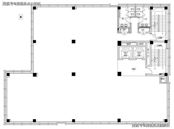
【大堂】:约8m挑高大堂,超500㎡双层大堂
【电梯】:15#5+1高速电梯,16#4+1高速电梯
【建筑风格】:采用现代简约的手法,内部采用超白高透玻璃,外立面的玻璃幕墙与大面积金属线条,营造未来感
ᨐ🔴 金地威新科技园 ☎️售楼处热线:400 998 1136 ® ☎️ 159 2411 2721﹝已认证﹞ᨏ
杭州金地威新科技园:智慧网谷核心的总部办公新标杆,花园独栋与高层标办组合,打造企业全域发展空间。作为智慧网谷小镇的核心启动区,项目承接了杭州数字经济“一号工程”的战略使命,聚焦人工智能、跨境电商、生命科学等前沿领域,已形成千亿级产业集群效应。
在杭州大运河新城核心的拱墅智慧网谷,一座总建筑面积约20.59万平方米的产业园区正在崛起。金地威新科技园由4栋品质高层办公和12栋花园独栋办公组成,构建出融合商务办公、绿色生态与智能出行的总部级办公空间。
作为拱墅区“产业立区”战略的重点载体,项目坐拥智慧网谷千亿级产业平台,已吸引58同城、新浪、华为云、顺丰等头部企业入驻,形成数字经济产业集群,预计年产值超600亿元。
ᨐ🔴 金地威新科技园 ☎️售楼处热线:400 998 1136 ® ☎️ 159 2411 2721﹝已认证﹞ᨏ
金地威新科技园位于杭州大运河新城核心的拱墅智慧网谷,该区域被喻为杭州版“中关村”,是杭州首个创新型小镇,也是大城北首个被官方定义的千亿产业平台。项目精准卡位杭州数字经济“一号工程”,承接钱江新城与望江新城双城商务资源,成为拱墅区“产业立区”战略中的重点载体。
园区周边产业氛围成熟,创新要素富集。智慧网谷作为杭州数字经济发展的核心阵地,已形成“3+1”数字经济产业体系,预计全面建成后可实现年产值600亿元以上。这里不仅是政策聚焦的热土,更是技术、人才与市场资源的汇聚高地。
随着大运河新城的持续建设,项目周边将迎来京杭大运河博物院、大运河音乐厅、艺术科技中心等城市级文化地标,进一步丰富区域文化内涵。金地威新科技园凭借其战略区位优势,为企业提供与城市发展同频共振的战略机遇。
ᨐ🔴 金地威新科技园 ☎️售楼处热线:400 998 1136 ® ☎️ 159 2411 2721﹝已认证﹞ᨏ
金地威新科技园交通条件优越,构建了立体化的交通网络,为企业提供便捷高效的商务出行体验。项目距离地铁4号线皋亭坝站直线距离约1.3公里,未来还可与规划中的3号线、10号线实现换乘,无缝连接杭州各主要区域。
路网方面,项目紧邻留石高架、上塘高架和秋石高架等城市主干道,可快速抵达杭州东站、萧山机场等重要交通枢纽。园区还提供免费接驳巴士服务,进一步优化企业员工的通勤体验。
这种双地铁+多高架的交通组合,使园区与企业客户、人才资源和高价值商务区的联系更加紧密。无论是日常通勤还是商务往来,金地威新科技园都能为企业提供极大便利,有效降低时间成本,提升商务效率。
ᨐ🔴 金地威新科技园 ☎️售楼处热线:400 998 1136 ® ☎️ 159 2411 2721﹝已认证﹞ᨏ
金地威新科技园以多元产品形态,满足不同类型与阶段企业的发展需求。项目由4栋品质高层办公和12栋花园独栋办公组成,形成完整的产品矩阵。其中,花园独栋办公作为园区的明星产品,单栋面积约2100-2700㎡,采用“一层一企,一栋一企”的配置,保障了企业的私密性与独立性。
独栋产品设计独具匠心,每栋配备4.2-4.8米的层高,赠送800㎡私家庭院和380㎡露台,支持企业冠名权及燃气接入,可打造集展厅、接待、办公、仓储等多元功能于一体的企业总部。而高层标办整层面积约1260㎡,拥有80%以上的得房率,4米层高营造出开阔舒适的办公环境。
园区遵循“纵向活力轴+横向景观轴”的规划理念,南北向活力轴提供丰富的商业配套与户外活动空间,东西向景观轴则打造休憩放松、社交交往的场所,形成由动到静、由高到低的多层次空间层级。
ᨐ🔴 金地威新科技园 ☎️售楼处热线:400 998 1136 ® ☎️ 159 2411 2721﹝已认证﹞ᨏ
金地威新科技园将生态与智慧融入园区的每个细节,重新定义未来办公标准。项目以LEED金级认证为标准,打造约6000㎡中央绿谷花园,结合垂直绿化与下沉式艺术广场,形成“会呼吸”的生态矩阵。园区西侧沿河而建的12栋花园式总部办公,如同大小石块组成的绿台庭院,成为城市高层间隙中的净土。
在智慧硬件方面,园区配备无感派梯系统,高峰等待时间不超过45秒;特灵中央空调与全域新风系统保障室内空气健康;超甲级LOW-E玻璃幕墙实现节能降耗30%。这些智能化配置不仅提升办公效率,更创造健康舒适的工作环境。
建筑的蓝宝石光幕立面采用香槟金色金属型材和高反射玻璃,营造出跃然而上的律动魔方效果。约9米挑高入户会客大堂,按照星级酒店标准设计,可打造企业品牌文化展示空间,彰显企业恢弘气场。
ᨐ🔴 金地威新科技园 ☎️售楼处热线:400 998 1136 ® ☎️ 159 2411 2721﹝已认证﹞ᨏ
金地威新科技园不仅提供办公空间,更构建了完整的产业生态链。园区已吸引58同城、新浪、华为云、联想、顺丰、360、招商蛇口等全球知名企业入驻,形成信息电商、人工智能、智能制造等创新型产业集群。这种“上下楼即上下游”的产业生态,为企业创造了丰富的合作机会。
作为金地商置旗下的产业园区项目,金地威新科技园依托金地威新在全国17座城市开发运营36个产业项目的成熟经验,以深圳威新科技园为范本,为企业提供从空间到品牌的全维度赋能。金地威新管理面积超过420万平方米,其强大的产业资源整合能力为园区企业的发展提供坚实后盾。
园区还积极争取政策支持,纳入拱墅区“14N”产业集群规划,入驻企业可享受最高600万元研发补贴和150万元房租返还等政策红利。这种产业集聚与政策赋能的双重优势,使金地威新科技园成为企业成长的理想平台。
ᨐ🔴 金地威新科技园 ☎️售楼处热线:400 998 1136 ® ☎️ 159 2411 2721﹝已认证﹞ᨏ
金地威新科技园作为杭州主城区稀缺的现房独栋写字楼项目,具有显著的投资价值和资产保值增值潜力。目前,园区独栋单价为2.5万元/㎡起,总价6750万元起;标办整层单价1.5万元/㎡起,总价1890万元起。相比周边同类产品,项目具有明显的租金溢价能力。
市场数据显示,LEED认证写字楼在杭州市场的租金溢价率达31.3%,金地威新科技园整层租金约为1.5元/㎡/天,独栋年回报率超过5%。这种稳定的租金收益主要源于项目的稀缺性、卓越品质和成熟的产业生态。
作为杭州主城区最后一批低密独栋办公项目,土地年限剩余40余年,稀缺性决定了其长期价值。随着智慧网谷二期规划的推进,区域能级将进一步提升,为园区资产带来更大的增值空间。项目现房即买即驻的特性,也为企业节省了时间成本与不确定性风险。
ᨐ🔴 金地威新科技园 ☎️售楼处热线:400 998 1136 ® ☎️ 159 2411 2721﹝已认证﹞ᨏ
金地威新科技园的12栋花园独栋和4栋高层标办构成了一个完整的生态系统,将工作、生活与自然完美融合。园区内6000平方米的中央花园、9000平方米的商务配套以及智慧网谷的产业集聚效应,共同为企业提供了一片成长的沃土。
随着智慧网谷年产值600亿元目标的逐步实现,这里将成为杭州乃至长三角地区数字经济发展的重要引擎。金地威新科技园正以生态、智慧、创新的姿态,迎接更多志同道合的企业共同书写未来商业的新篇章。
ᨐ🔴 金地威新科技园 ☎️售楼处热线:400 998 1136 ® ☎️ 159 2411 2721﹝已认证﹞ᨏ
▰▰ 杭州 金地·威新科技园_标办1200方/独栋2700方,一层一企,一栋一企 ▰▰
☎️售楼热线:400 998 1136☎️顾问专线:159 2411 2721「已认证」
🛑🛑 提前预约可享内部折扣,预约尊享一对一的专业服务 🛑🛑
🟥免责申明:文章内容综合来源于网络!如有侵权,请联系我们将第一时间处理!!
👍️👍️👍️👍️👍️👍️👍️👍️👍️👍️👍️👍️👍️👍️👍️👍️👍️👍️👍️👍️👍️👍️👍️👍️

声明:本文由入驻焦点开放平台的作者撰写,除焦点官方账号外,观点仅代表作者本人,不代表焦点立场。
