滨江兴耀松川境最新评测-奥体小高层 排屋滨江兴耀松川境最新资讯-滨江兴耀松川境楼盘详情-滨江兴耀松川境楼盘测评+杭州房产天下
扫描到手机,新闻随时看
扫一扫,用手机看文章
更加方便分享给朋友

这是奥体,奥体三公里的顶流之地。当前市况之下,当天线上选房就能告罄的楼盘,极少。其中,有三个都在奥体,奥映鸣翠、松川境和晓澜玉华。更重要的是,这是奥体的滨江造。越是这个时候,越能凸显了头部房企的号召力。售楼热线:☎ 400 832 8823「售楼处」☎〢🔻已认证〢◆🔻
在项目高层组团和叠墅组团之间,我们看见了一个板块内体量最大,约3300方的中心景观,相比于传统紧凑排布的纯叠墅项目,松川境业主有更多大块的景观空间,且整个场景在感受上并没有被建筑隔断,下沉式庭院和双水院景观错落排布,很自然的就连接成为一个整体的大空间。售楼热线:☎ 400 832 8823「售楼处」☎〢🔻已认证〢◆🔻
首先从户型设计来说:项目最显著亮点在于其超高的空间利用率。
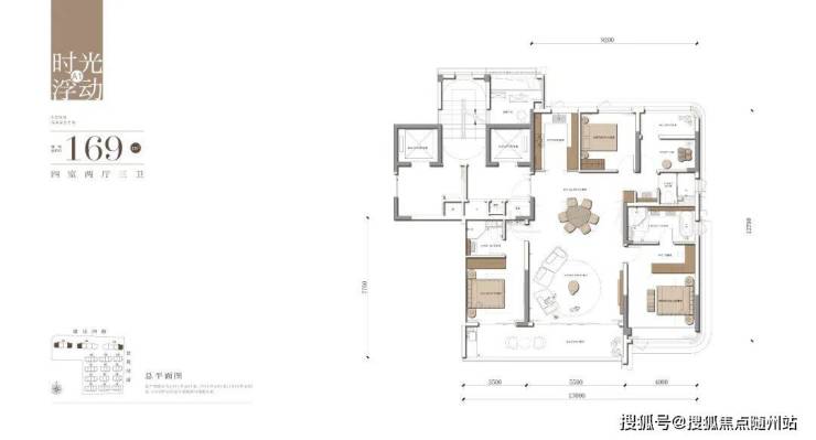
计容新规结合大面积赠送空间,赋予了户型设计极大的灵活性,使得高层产品使用率最高可达惊人的93%。
具体而言,松川境建面约169方的户型:北阳台内包,飘窗不计面积,空间利用率远超同类产品。对购房者而言,则意味着显著的性价比优势,相当于节省了约一个房间的成本。售楼热线:☎ 400 832 8823「售楼处」☎〢🔻已认证〢◆🔻
在每一平方米都弥足珍贵的奥体,松川境以超高得房率,完成了一次对生活尺度的慷慨兑现。尤其是199㎡奥体绝版大5房,约16.5米巨幕开间,实现了约93%惊人得房率,全奥体罕见;售楼热线:☎ 400 832 8823「售楼处」☎〢🔻已认证〢◆🔻
博世五件套、其中冰箱是博世8系最高顶配,全嵌入式、全进口的。还有方太万元侧吸油烟机,爆炒辣椒也不用担心跑烟。空调、厨余处理器、净水器等,也都包在交付标准内;卫生间:镜柜配置美妆冰箱,守护主人高端的护肤美容产品;
轻轻的一句「我住奥体」,已经让人羡慕;如果再来一句「我在奥体住排屋」,那就有点太霸气外露了。
在摩天大楼林立、不得不向天空要居住权的奥体,有天有地有院子的生活是奢侈的。在奥体拥有一套有天有地,没有值不值得的问题,只有实力允许不允许的问题。
所以,无论是松川境刚推出的最后一批高层,还是待字闺中的这批奥体排屋,它们都有一个共同点是:超级浓烈的获得感。

联排立面通过“虚实对比”,实体墙部分采用仿砖涂料,虚体部分为玻璃幕墙,既保证私密性又提升通透感。联排产品采用“双坡屋顶+金属格栅”设计,屋顶坡度模拟江南传统民居,格栅则过滤强光,形成斑驳的光影效果。
钱塘江畔,时代所向。滨江集团以远见执笔,于杭州“拥江发展”的壮阔 蓝图上,续写一江两岸的豪宅传奇。从金色海岸、阳光海岸,再到仁恒滨江园等,每一作品皆以时代地标之姿,代言杭州人居新高度。

年,兴耀房产携手滨江集团,于钱塘江南岸,合力打造滨奥四子重磅作品。以滨江集团强大的豪宅基因,融汇兴耀房产深耕江南岸的属地匠心,联袂擘画钱塘江南岸新的豪宅制高点。以奥体正轴住宅大平层首发作品,珍藏一江两岸潮头稀贵恒藏。

奥体3公里峰脊线,纵向金鸡路奥体顶豪林立,横向建设四路滨江产业澎湃。交相辉映的黄金十字轴,是见证杭州蓬勃向前的重要板块。


🏬步行180米奥体首座龙湖天街(规划),享约10万方丰盛商业配套。近临奥体印象城、SKP(建设中)、万象汇宝龙城。
相邻的微医绿谷冲刺港股IPO,估值490亿,已正式向港交所递交上市申请,预计25年下半年开放。





联排地下层设置“多功能夹层”,层高2.8米,可设置为健身房、琴房或储藏室,通过楼梯与主空间连接。
杭州滨江兴耀·松川境府,以1.8容积率的低密规划、六大国际设计团队的深度协作、从立面到室内的精细化设计,重新定义了奥体南改善住宅的标准。
它不仅是滨江与兴耀联合打造的标杆作品,更以“全架空平台+山水文化”的创新理念,将传统人居智慧与现代生活方式融合,成为承载杭州高净值人群生活理想的终极载体。在这里,设计不再是形式的堆砌,而是对土地、文化与生活的深刻回应——这或许正是松川境府能够以4.8万+/㎡价格引发市场热捧的核心逻辑。
声明:本文由入驻焦点开放平台的作者撰写,除焦点官方账号外,观点仅代表作者本人,不代表焦点立场。
